Jane Eyre
作品详情
  • Details of the work 标题横线
    头像或者logo
    图片 杨凌祺
    城市:深圳
    公司: 一合一舍空间设计
    参赛作品: 简 · 影
    空间类型:公寓(150㎡以下)
    个人/公司简介:
    擅长风格:现代简约,现代轻奢,台式极简,现代法式... 主要作品:壹城中心,招商观园,星河银湖谷,博林君瑞,四季花城,玮鹏花园,大族云峰,春华四季园,万丰海岸城... 获奖情况: 2020 星河第三空间最受欢迎设计师奖 深圳市室内设计师协会 个人 2021 金湾设计奖年度十佳设计师 深圳市室内设计师协会 个人 2021 星河第三空间最佳合作伙伴 深圳市室内设计师协会 个人 2021 年度优秀设计师 深圳市室内设计师协会 个人 2023 年度中国国际空间设计大赛【十大设计之星】 中国建筑装饰协会 个人 2023 年度家居设计新锐设计师 中国潮流设计排行榜组委会 个人 设计理念:生活因设计而改变,成就空间和谐,让设计物有所值,让细节缔造完美。 个人介绍:从业八年,一直秉承每一套设计作品都以实际落地的原则来服务客户。与时俱进,不断提升自身设计能力,设计出客户最满意的家。
    设计说明 | Design Instruction
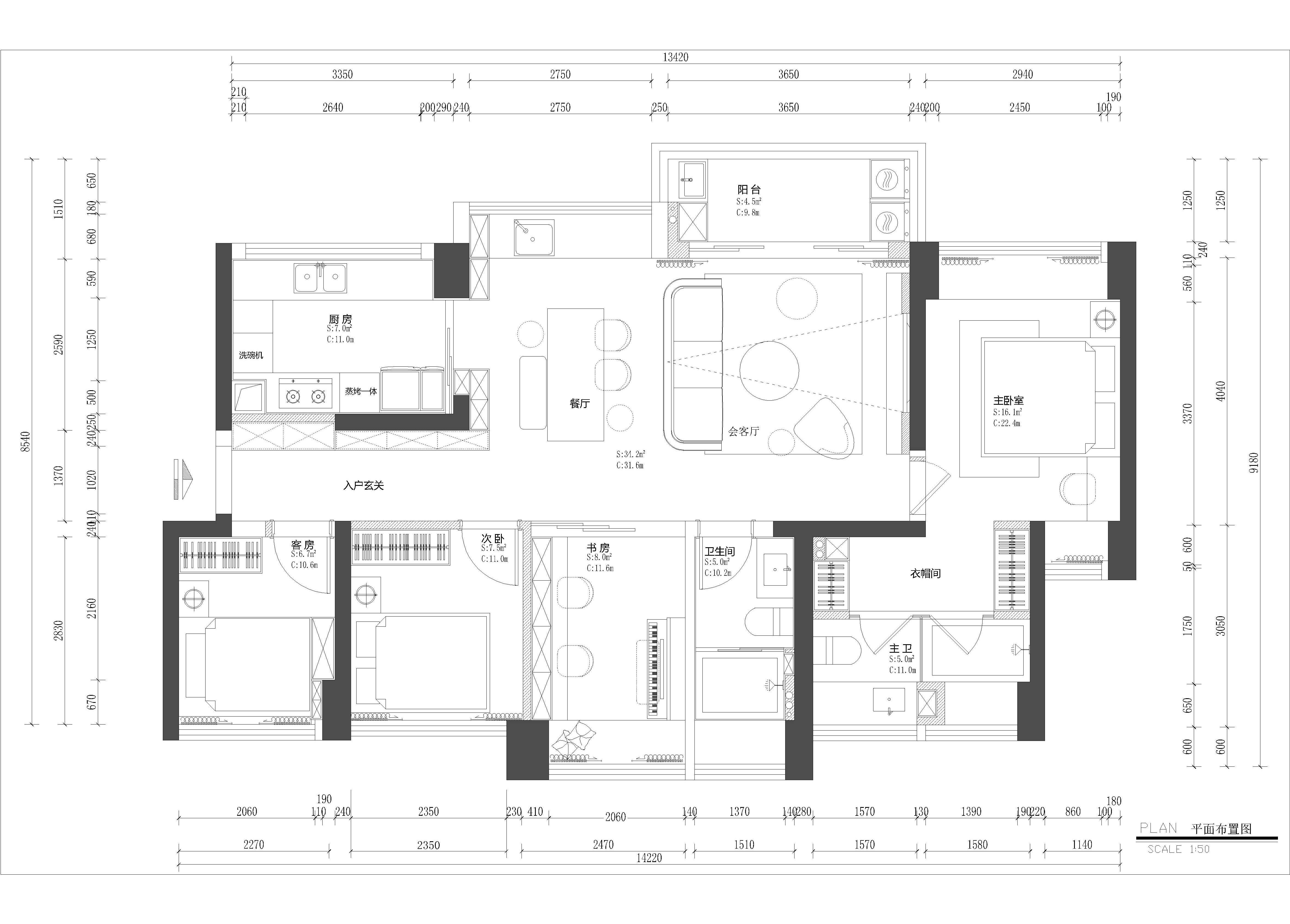
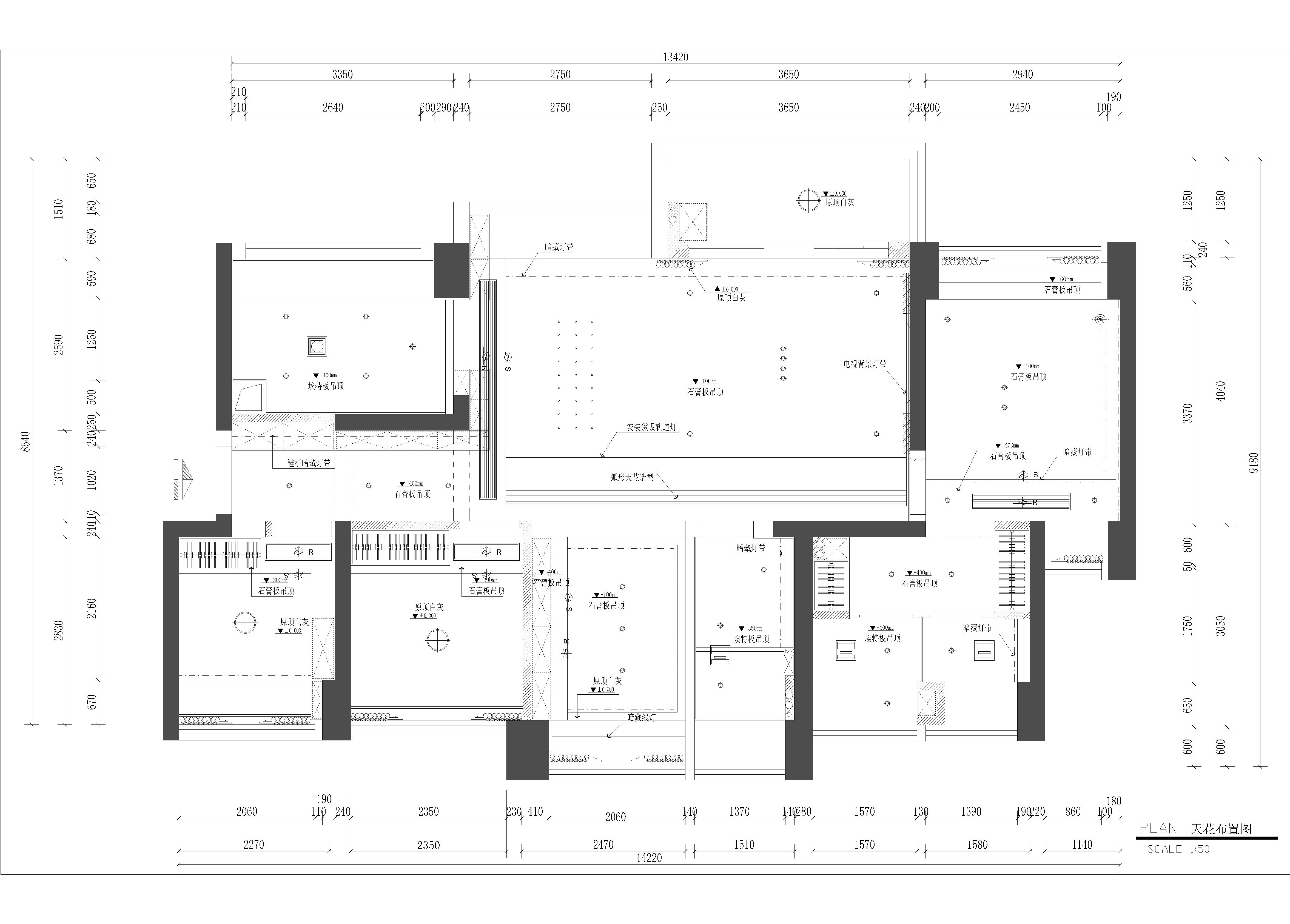
  • 本套方案位于深圳•壹城中心璞誉府,业主在国外生活,装修期间都是远程监管,由我全权负责,小到后期的饰品都是我来帮业主搭配的,男主人是个企业家,比较喜欢简洁温馨一点,所以在家居的风格上也是选择更加沉稳的色调和材质来展开设计。厚墙打薄增加空间的使用面积,书房位置打开,使客餐厅空间更大,通风采光效果更佳,满足业主需求在简约风中,墙面没有过多的修饰,大面积木饰面使整个空间更佳简洁,块面明确。隐形门的设计及竖向的分割线来保持空间的完整性,天花吊平顶下来有运用灯带、磁吸轨道灯、满天星小射灯及主射灯,增加了吊顶造型的层次感,软装方面没有过多的造型,以块面为主,让空间显得更加简洁精炼。在整个空间中我也运用了一些不锈钢元素,起到点缀作用,增加空间感的装饰效果,与木饰面的整体关系在不同材质之间把控得恰到好处,无丝毫凌乱突兀,反而将层次感展现得淋漓尽致。电视背景墙就是直接做了白色的艺术涂料,使整个面跳脱出来,层次分明。不同的材质都在它自己的位置发挥自己仅有的气质,用最简单的方式呈现出最不一般的本质。木饰面本身就是一种温润且大方的材质,其明确的的分割方法,干净利落的线条,让本单一的温馨高级氛围感变得简洁且有趣味性。
  • 图片
  • 图片
  • 图片
  • 图片
  • 图片
  • 图片
  • 图片
  • 图片
  • 图片
  • 图片
  • 图片
  • 图片
  • 图片
  • 图片
  • 图片
  • 图片
  • 图片
  • 图片
  • 图片
  • 图片
  • 图片
  • 图片
  • 图片
  • 图片
  • 上一个 下一个
    《金腾奖优秀作品年鉴》 私宅丨地产丨餐饮丨酒店丨办公丨商业丨公共丨产品丨公益丨人气 jintengAWARD(小金_金腾奖组委会) 广州市海珠区琶洲大道68号华新中心21楼
    金腾奖视频号 金腾奖小红书号 监制:闫虹
    统筹:吴佳佳
    运营:朱倩仪 王赫萱 张芷莹 胡岚恩 小金
    新媒体:王贝贝 严洁 侯乐 鹅姐
    经纪:刘译遥 石征 曹凯月
    技术:张桐 黄天佑
    最终解释权归金腾奖主办方所有