Warm Sun
作品详情
  • Details of the work 标题横线
    头像或者logo
    图片 杨凌祺
    城市:深圳
    公司: 一合一舍空间设计
    参赛作品: 暖 · 阳
    空间类型:公寓(150㎡以下)
    个人/公司简介:
    擅长风格:现代简约,现代轻奢,台式极简,现代法式... 主要作品:壹城中心,招商观园,星河银湖谷,博林君瑞,四季花城,玮鹏花园,大族云峰,春华四季园,万丰海岸城... 获奖情况: 2020 星河第三空间最受欢迎设计师奖 深圳市室内设计师协会 个人 2021 金湾设计奖年度十佳设计师 深圳市室内设计师协会 个人 2021 星河第三空间最佳合作伙伴 深圳市室内设计师协会 个人 2021 年度优秀设计师 深圳市室内设计师协会 个人 2023 年度中国国际空间设计大赛【十大设计之星】 中国建筑装饰协会 个人 2023 年度家居设计新锐设计师 中国潮流设计排行榜组委会 个人 设计理念:生活因设计而改变,成就空间和谐,让设计物有所值,让细节缔造完美。 个人介绍:从业八年,一直秉承每一套设计作品都以实际落地的原则来服务客户。与时俱进,不断提升自身设计能力,设计出客户最满意的家。
    设计说明 | Design Instruction
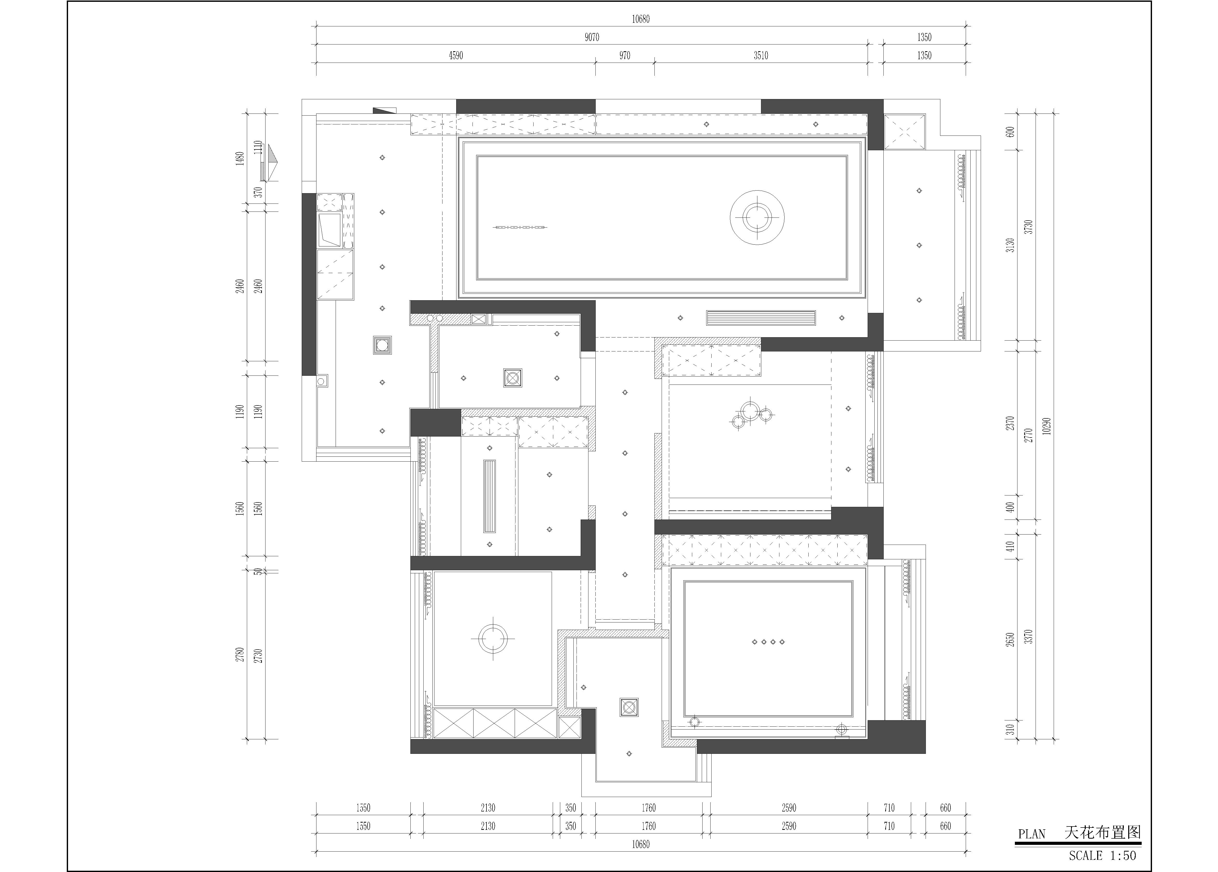
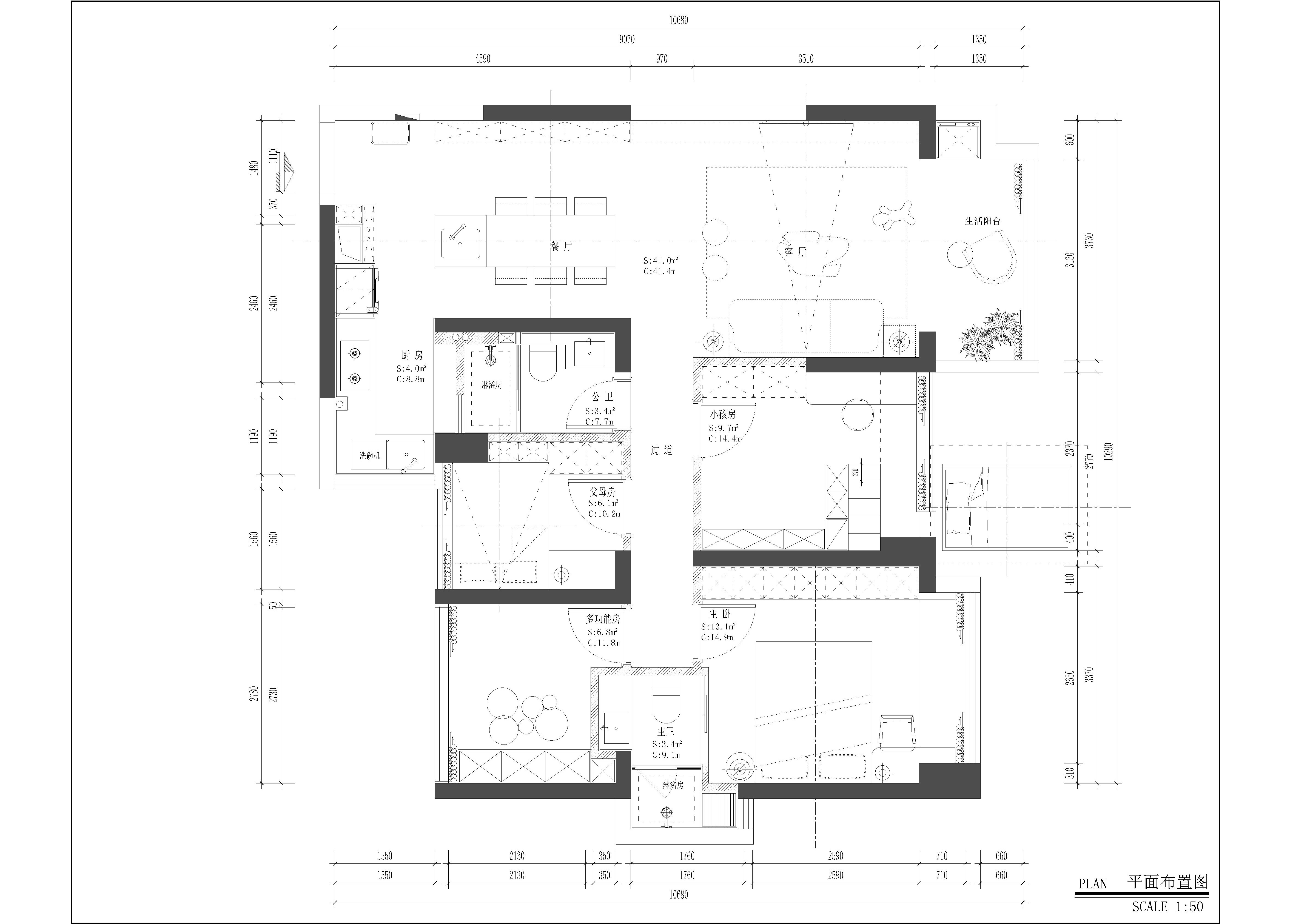
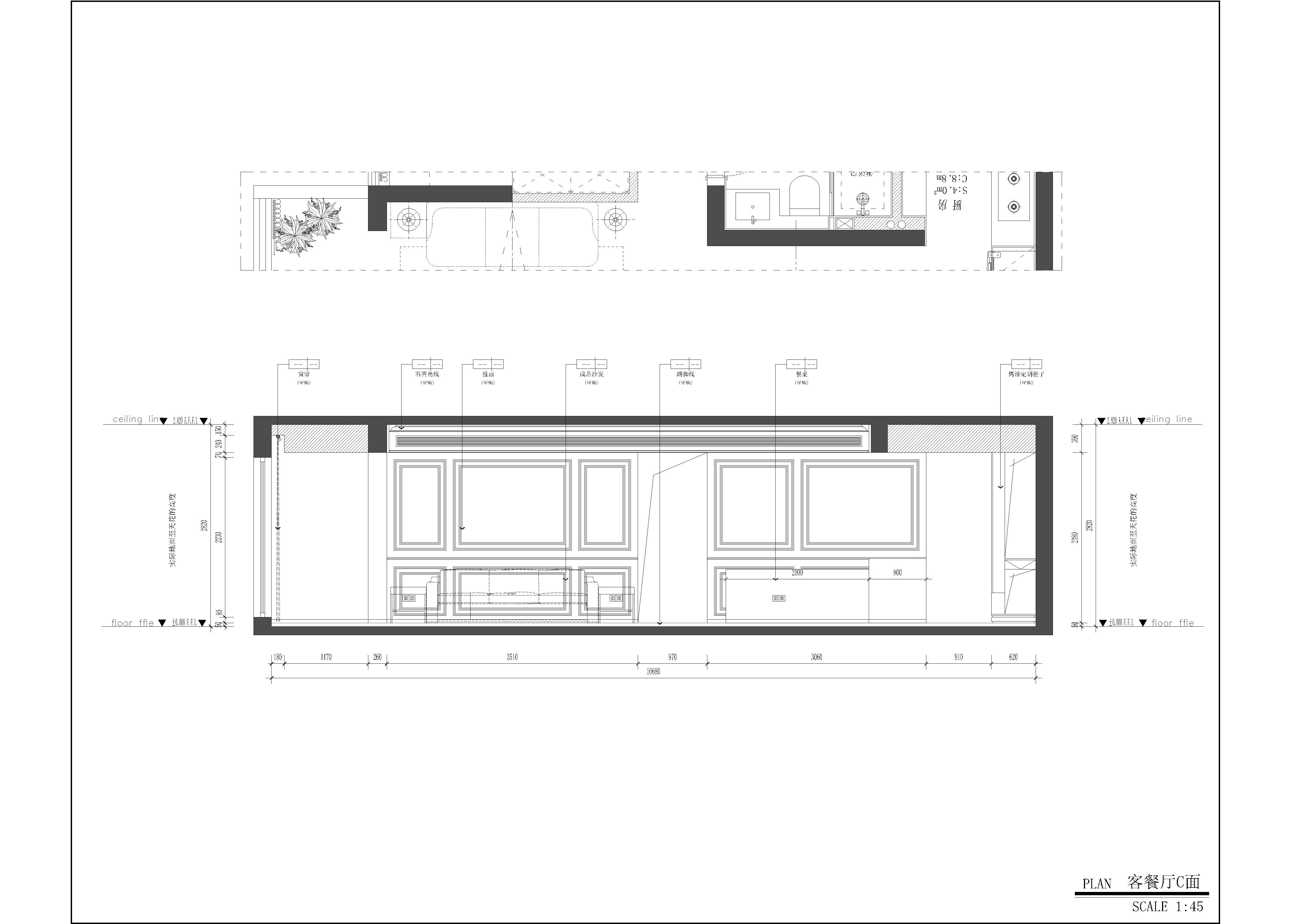
  • 本套方案位于深圳•大族云峰二期,业主是一名自由职业者,装修期间基本都在旅行,远程监管工地,由我全权负责,小到后期的饰品都是我来帮业主搭配的,比较喜欢简洁温馨一点,带一点线条造型丰富整个墙面造型,所以在家居的风格上也是选择更加丰富的色调和材质来展开设计。厚墙打薄增加空间的使用面积,开放式厨房,使客餐厅空间更大,通风采光效果更佳,满足业主需求在简约法式风格中,墙面我运用了线条造型的修饰,主色调我采用了暖灰色,使整个空间更佳温馨。餐导台双动线设计使整个空间动线更佳通畅。由于厨房空间有限,我将卫生间空间缩小了,增加了厨房台面。小孩房我采用了上床下柜的形式,增加了下方小孩活动空间,楼梯我做在靠飘窗位置,为的就是不挡采光,踏步是抽屉也增加了储物空间。主卧采用无主灯设计,结合上方石膏线造型,让空间感拉伸效果做到最大化,床头采用软包的形式,起到了装饰作用也去掉了传统床的靠背,节省了空间。在整个空间中我大量运用了线条元素,丰富了整个画面,与岩板、木饰面的碰撞,整体关系在不同材质之间把控得恰到好处,无丝毫凌乱突兀,反而将层次感展现得淋漓尽致。不同的材质都在它自己的位置发挥自己仅有的气质,用最简单的方式呈现出最不一般的本质。
  • 图片
  • 图片
  • 图片
  • 图片
  • 图片
  • 图片
  • 图片
  • 图片
  • 图片
  • 图片
  • 图片
  • 图片
  • 图片
  • 图片
  • 图片
  • 图片
  • 图片
  • 图片
  • 上一个 下一个
    《金腾奖优秀作品年鉴》 私宅丨地产丨餐饮丨酒店丨办公丨商业丨公共丨产品丨公益丨人气 jintengAWARD(小金_金腾奖组委会) 广州市海珠区琶洲大道68号华新中心21楼
    金腾奖视频号 金腾奖小红书号 监制:闫虹
    统筹:吴佳佳
    运营:朱倩仪 王赫萱 张芷莹 胡岚恩 小金
    新媒体:王贝贝 严洁 侯乐 鹅姐
    经纪:刘译遥 石征 曹凯月
    技术:张桐 黄天佑
    最终解释权归金腾奖主办方所有