IN VILLA
作品详情
  • Details of the work 标题横线
    头像或者logo
    图片 大相设计
    城市:杭州
    公司:大相设计
    参赛作品: 隐外餐厅
    空间类型:民宿
    个人/公司简介:
    1999年起步杭州,团队专注于林泉美学语境下的精品餐厅、酒店、文化性建筑的空间、陈设及景观设计的实践和研究,追求东方文化背景下的空间意境表达,强调空间与环境的交融,创导美学和商业的平衡。
    设计说明 | Design Instruction
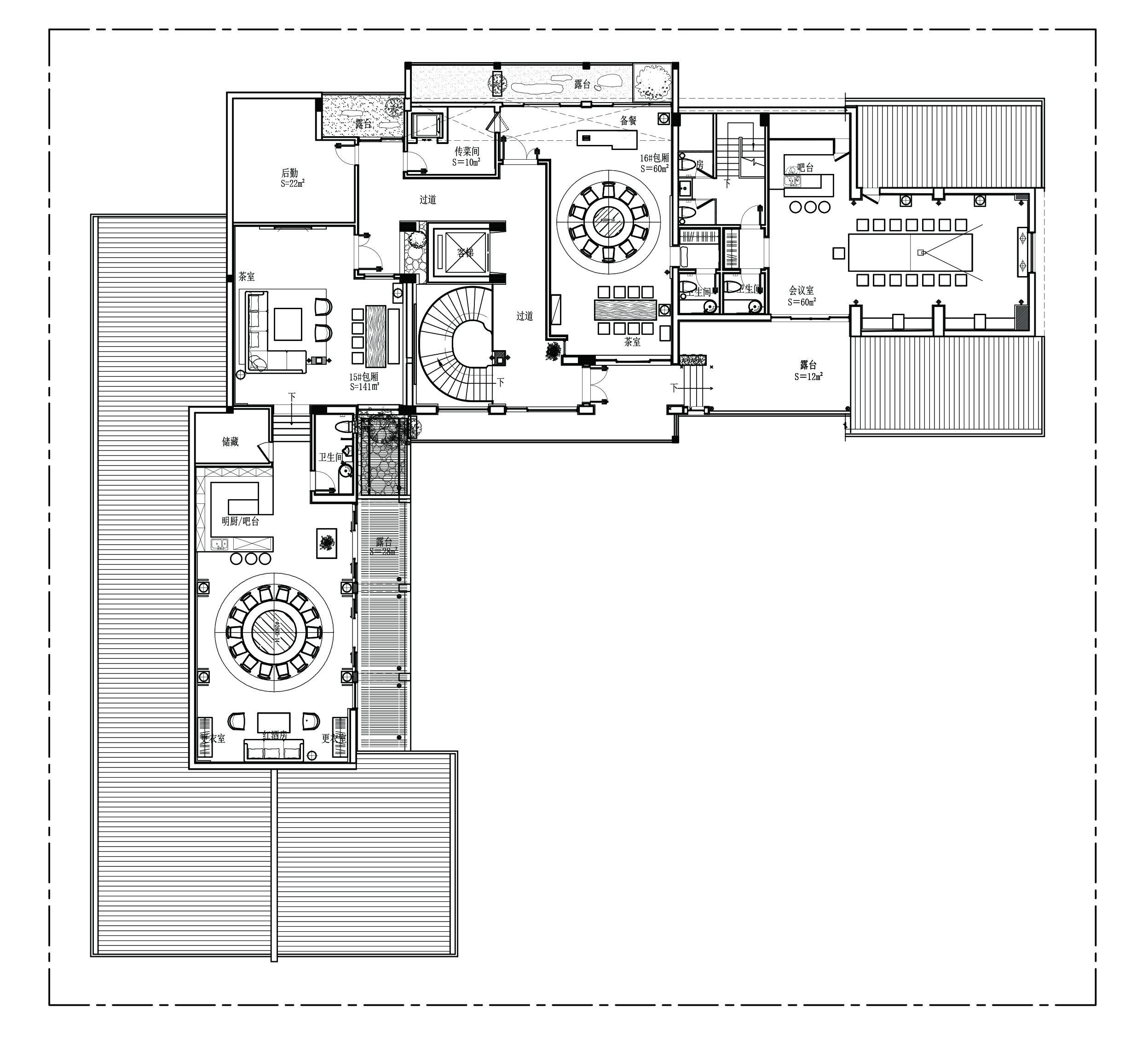
  • 此间是西湖沿岸难觅的静雅之所,隐于岁月之中,匿于城嚣之外,美食、家宴、名邸皆聚于此,在民国风韵的象牙之境,找寻自我的认同感与归属感,是谓隐于境,而心无界。 原始建筑是一座民国时期留下来的建筑,改造过程中整体遵循“巧于因借,精在体宜”的理念,整体建筑外观没有较大的改动,选择性的添加新的元素与构建,因此在外立面上可看到新旧材料的结合,场地的改造需求由内而外,应运而生,边角方位的原入口变为次要,墙体被打破,楼梯被转换,空间由紧而松,得以呼吸。 在L形建筑凹点增添体块,中心方位彰显入口主权 ,也弥补功能上的缺失,形体的修改,引导着人物行进的动线。 入口集风雨廊、门厅、天井、大堂等功能于一体,一连串的空间压缩,与敞亮前院形成对比,贯穿三层的旋转楼梯作为视觉中心,只见它螺旋状向上升腾,配合顶部光线,完成引导的功能,纵横的梁柱结构裸露,辅以异色木材覆盖,用餐区顶部被阁楼自然压低,镜面消解了屋面与立柱体量的同时,反射餐桌与户外的光景。 料理研发室将原有的屋面掀开一角改做露台,雨季玻璃顶叮咚作响,颇有园林“雨打芭蕉”之意,借助听觉、味觉以及利用时令、气候变化赋予空间意境之美。 包厢区域将民国的怀旧氛围推至高潮,记忆被物体化和空间化,纵横的梁柱结构裸露,辅以异色木材覆盖,用餐区顶部被阁楼自然压低,镜面消解了屋面与立柱体量的同时,反射餐桌与户外的光景。 有起、有伏、有抑、有扬的空间序列如故事高潮娓娓道来,逐一展开,框景空间在整个餐厅的重复与再现,相似与相异的交错,产生一种有序节奏,一场私宅的餐饮体验落下序幕,拾级而下,曲径漫步,星点灯光引路,返程处,再望湖光山色。
  • 图片
  • 图片
  • 图片
  • 图片
  • 图片
  • 图片
  • 图片
  • 图片
  • 图片
  • 图片
  • 图片
  • 图片
  • 图片
  • 图片
  • 图片
  • 图片
  • 图片
  • 图片
  • 图片
  • 图片
  • 图片
  • 图片
  • 图片
  • 图片
  • 图片
  • 图片
  • 图片
  • 图片
  • 图片
  • 图片
  • 图片
  • 上一个 下一个
    《金腾奖优秀作品年鉴》 私宅丨地产丨餐饮丨酒店丨办公丨商业丨公共丨产品丨公益丨人气 jintengAWARD(小金_金腾奖组委会) 广州市海珠区琶洲大道68号华新中心21楼
    金腾奖视频号 金腾奖小红书号 监制:闫虹
    统筹:吴佳佳
    运营:朱倩仪 王赫萱 张芷莹 胡岚恩 小金
    新媒体:王贝贝 严洁 侯乐 鹅姐
    经纪:刘译遥 石征 曹凯月
    技术:张桐 黄天佑
    最终解释权归金腾奖主办方所有