A villa spoiled by natural plants and good times
作品详情
  • Details of the work 标题横线
    头像或者logo
    图片 黄凯
    城市:北京
    公司: 北京风亚
    参赛作品: 被自然与时光偏爱的家
    空间类型:公寓(150㎡以下)
    个人/公司简介:
    黄凯,Carlos Wong, 香港室内设计师协会专业会员; APDC国际设计交流中心资深会员;全国工商联家具装饰业商会中国家居行业实战专家团导师;西海基石教育庐山艺术特训营专家导师。 从事空间美学与生活方式的研究/教学/实践16年。以“用文化演绎设计,用设计导演生活”作为设计理念,以独特的个人魅力和美学修养得到广大客户的认可;先后服务过10+上市企业老板私人住宅、20多家TOP100房企,全国设计项目累计达200+个;作品连续多年获得APDC金奖,伦敦OPAL,巴黎DNA,美国IDA,墨西哥PI等国际设计大奖。
    设计说明 | Design Instruction
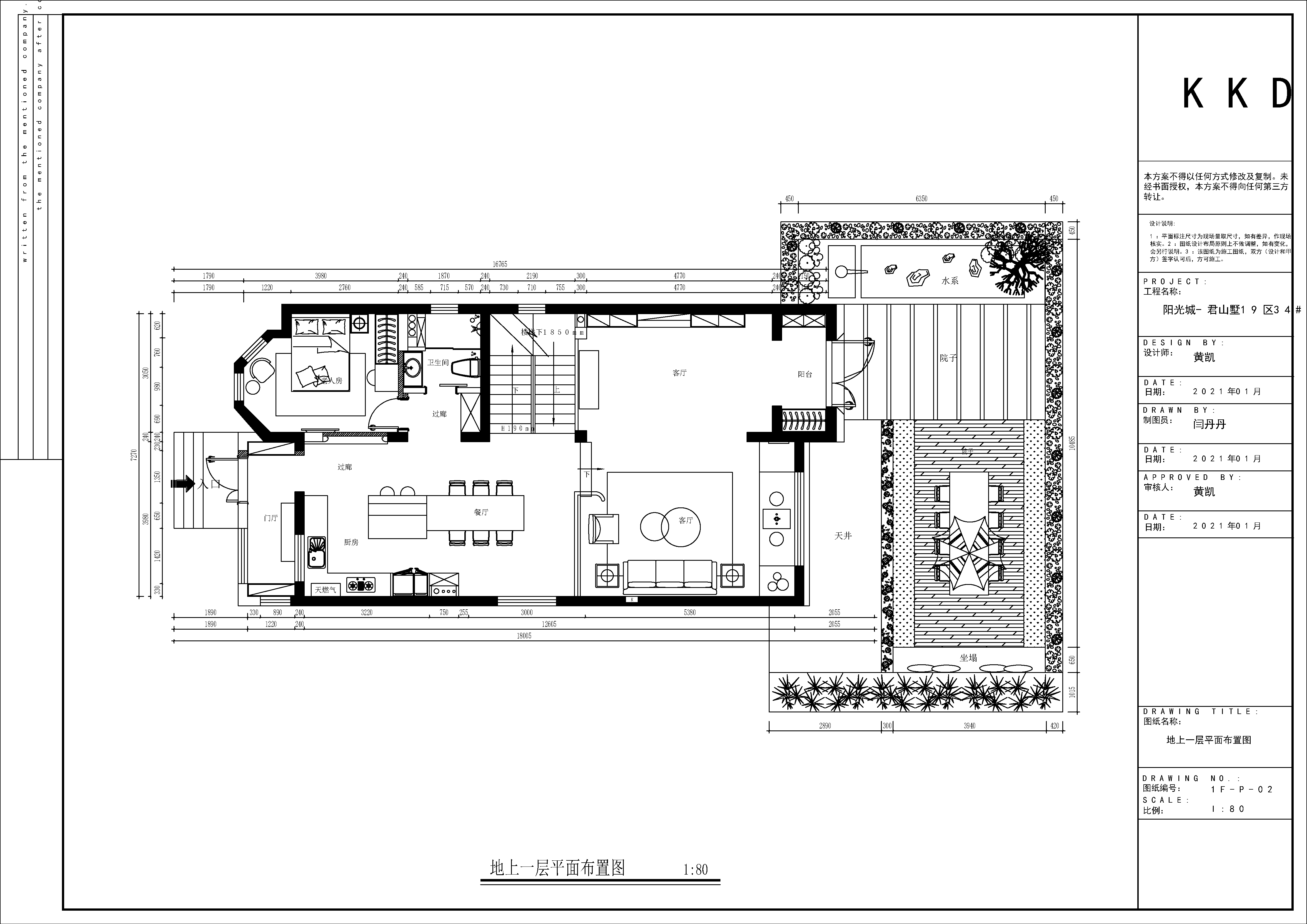
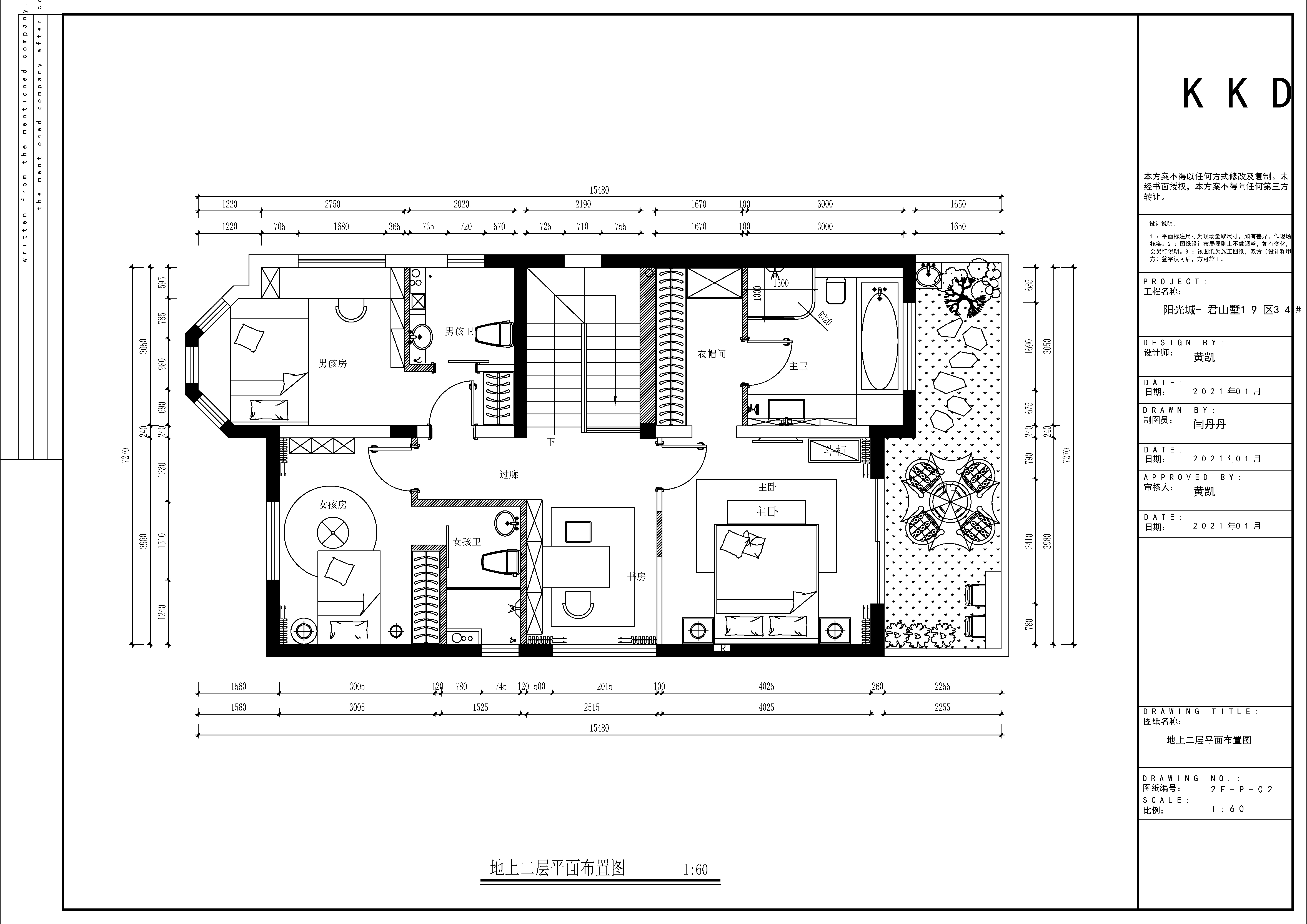
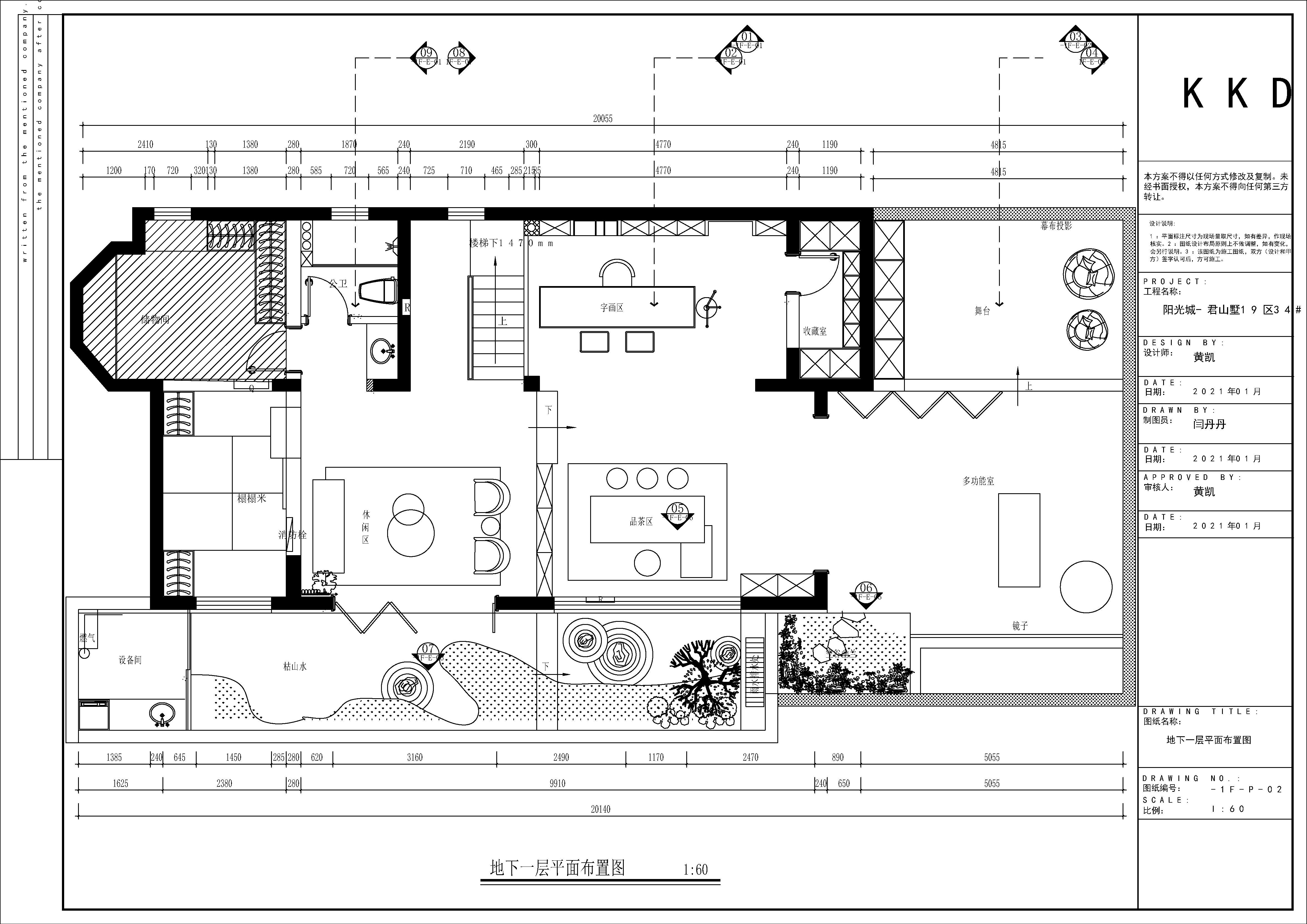
  • 本项目位于北京密云水库附近,整个小区被5座公园环绕,一条河流横穿,天然森系氧吧。这是客户的第二居所,疫情之后希望成为整个家庭放松度假的合家欢会所。整体空间的调性以黑白灰三色为主的现代休闲风格,搭配从丽江古城淘回来的根雕,仿佛被古老时光、自然植物和现代生活亲吻般充满爱意。女主人喜欢空间的开阔和原木的包围感,特别排斥大理石的冰冷。所以整个项目一层的餐厨和客厅,地下的休闲娱乐空间全是打通,视野特别的开阔;同时地面通铺了木地板,包括地下一层选了防潮木地板。在玄关和走廊以及休闲区都专门设置了展示台,为了后期女主人从公园采撷花植做插花提供了便利。 一层客厅的飘窗直接用木头拉通做成品茶区,冬天晒晒太阳看看书,下下围棋。客厅与楼梯间用整面水晶砖墙相隔,把小院的阳光直接引入进来。为了更好的使用社交厨房,在岛台上专门设置了电源,节假日包饺子吃火锅,一起动手参与进来。 一层小院专门做了动静分区,有孩子们玩耍和养花的秋千区,聚餐的烧烤区,看星星休憩的多功能区,有水池造景的展示区。用低矮的黄杨灌木围城篱笆遮挡天井的玻璃造型。 二层的小会客厅做成了可以上网课,孩子们做作业和大人办公的小家庭图书馆。 地下天井区特别狭长设置成了空谷幽兰,墙面铺贴户外崖石造型软砖,用兰花做点缀,地上设置了取水点,与旁边的茶道区形成一个互动,有高山流水觅知音的神来之笔。地下健身区和影音室打通,专门做了一个台阶通铺形成一个舞台,散做几个懒人沙发,日常一家人联动打游戏,节假日孩子们可以玩乐队演舞台剧都很合适。
  • 图片
  • 图片
  • 图片
  • 图片
  • 图片
  • 图片
  • 图片
  • 图片
  • 图片
  • 图片
  • 图片
  • 图片
  • 图片
  • 图片
  • 图片
  • 图片
  • 图片
  • 图片
  • 图片
  • 上一个 下一个
    《金腾奖优秀作品年鉴》 私宅丨地产丨餐饮丨酒店丨办公丨商业丨公共丨产品丨公益丨人气 jintengAWARD(小金_金腾奖组委会) 广州市海珠区琶洲大道68号华新中心21楼
    金腾奖视频号 金腾奖小红书号 监制:闫虹
    统筹:吴佳佳
    运营:朱倩仪 王赫萱 张芷莹 胡岚恩 小金
    新媒体:王贝贝 严洁 侯乐 鹅姐
    经纪:刘译遥 石征 曹凯月
    技术:张桐 黄天佑
    最终解释权归金腾奖主办方所有