ME FUN Light Power Gym
作品详情
  • Details of the work 标题横线
    头像或者logo
    图片 一兀设计
    城市:厦门
    公司:一兀设计
    参赛作品: ME FUN 轻力量健身
    空间类型:办公
    个人/公司简介:
    何谓一兀 / 道生一,一生二,二生三,三生万物。 ——《道德经》·老子 道生万物 万物归元 取一取兀 名为“一兀” 四方上下 谓之空间 人所及处 空间才有了温度 创造人与空间的和谐 是“一兀设计”诞生的意义 关于一兀 每个人都有自己的脾性喜好 生活轨迹和方式也不尽相同 家是身心的栖息地 空间里的细微末节 都该有主人独一无二的气场 用设计的力量 传递主人的性格语言和生活方式 探寻人与空间环境的和谐支点 营造出融于自然、融于现实的理想居所 潮流的脚步不断在向前 审美也没有恒定的某个标准 空间的表达手法可多元可多变 不变的是 一兀秉承的那颗初心 即是回归主人的内心需求 在一方天地里 创造出无限的可能 给主人一个有温度、有感染力的、有幸福感的美学空间 一兀主人 创始人 高仲元 资质认证 国家注册设计师 高级室内建筑设计师 中国室内装饰协会会员 厦门室内设计师协会副秘书长 行业荣誉 APDC(亚太室内设计精英邀请赛) 大奖 CIID(中国室内设计)大奖赛 铜奖 40 UNDER 40中国(福建)设计杰出青年 祝融奖照明全国赛 银奖 金堂奖 年度优秀住宅 国际艾特奖 入围奖 红棉中国设计奖 IFI中国室内设计大赛 双优奖 我们很乐意与您一起探索空间居所的美好
    设计说明 | Design Instruction
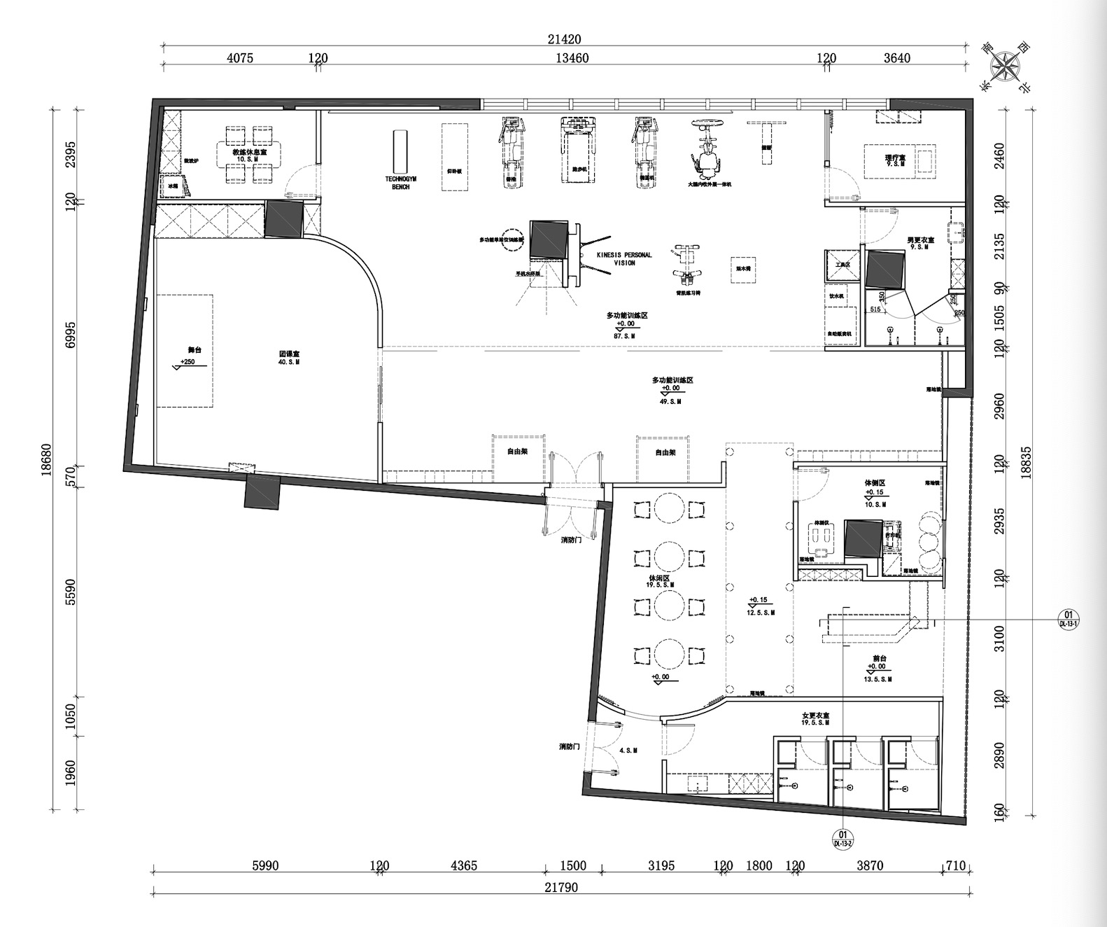
  • 起心动念:做一个不常规的健身房|MEFUN轻力量健身馆 MEFUN轻力量健身馆位于厦门JFC品尚中心,本案健身房客群70%为女性群体,我们主张将身心灵的内在情绪价值导入空间,结合具有社交属性的休闲区及力量训练区,将健身馆的优雅知性的女性调性凸显出来。 整个健身房动线顺畅明朗,入门即是前台,穿过前台通过布帘即是更衣室区,走过门廊即可到达健身区及团队室。我们用入门口的黑色区域和非常有仪式感的门廊结构来勾勒出一个拥有神秘感的女性专属的健身房形象。大空间训练区域,我们把优雅高贵的灰紫色作为空间的主色调,抛却传统硬朗的黑灰色系,给女性朋友创造一个独有的温馨典雅的运动环境,同时享受健身空间带来的幸福感。 对于健身空间的区域设计,细节上结合了商业空间的个性化定制属性,让消费者能够拥有自在及宾至如归的健身氛围,如公区器械收纳区,我们解决它不要太占用空间尺度的问题,用金属材质,根据小器材的尺寸量身定制金属架子,让它既精致又不占用空间。旁边的圆形镜面,扩大了空间延伸感的同时,增加圆弧的元素给空间带来的柔美感。 弧形的墙面,我们希望它是又采光,若隐若现的感觉。团课室用大量镜面与色彩营造蹦迪的氛围,墙面上的洞让空间又穿透感和呼吸感。舞台的中心营造了酷炫的灯光,让以教练与学员组成的课堂氛围有了轻松自由的基调。
  • 图片
  • 图片
  • 图片
  • 图片
  • 图片
  • 图片
  • 图片
  • 图片
  • 图片
  • 图片
  • 图片
  • 图片
  • 图片
  • 图片
  • 图片
  • 图片
  • 图片
  • 图片
  • 图片
  • 图片
  • 图片
  • 上一个 下一个
    《金腾奖优秀作品年鉴》 私宅丨地产丨餐饮丨酒店丨办公丨商业丨公共丨产品丨公益丨人气 jintengAWARD(小金_金腾奖组委会) 广州市海珠区琶洲大道68号华新中心21楼
    金腾奖视频号 金腾奖小红书号 监制:闫虹
    统筹:吴佳佳
    运营:朱倩仪 王赫萱 张芷莹 胡岚恩 小金
    新媒体:王贝贝 严洁 侯乐 鹅姐
    经纪:刘译遥 石征 曹凯月
    技术:张桐 黄天佑
    最终解释权归金腾奖主办方所有