Work cabin at home
作品详情
  • Details of the work 标题横线
    头像或者logo
    图片 苌硕
    城市:北京
    公司: 独立设计师
    参赛作品: 家里的“工作舱”
    空间类型:公寓(150㎡以下)
    个人/公司简介:
    2013.09 首届“中装杯”空间与环境艺术设计大赛 三等奖 2013.10 2013年中国室内设计师黄金联赛(第三季) 优秀奖 2015.11 “定制超级蓝天”室内设计大赛 优秀奖 2016.10 “2016年中国装饰界“营造空间”优秀设计作品大赛” 别墅豪宅 类 金 奖 2017.08 创新中国 最佳创意作品 金 奖 2018.09 CBDA 软装陈设艺术高峰论坛(住宅类) 银 奖 2018.09 第六届“艾舍奖”设计峰会住宅建筑设计 优秀奖 2018.09 第六届“艾舍奖”设计峰会设计人物类 十佳全案设计师
    设计说明 | Design Instruction
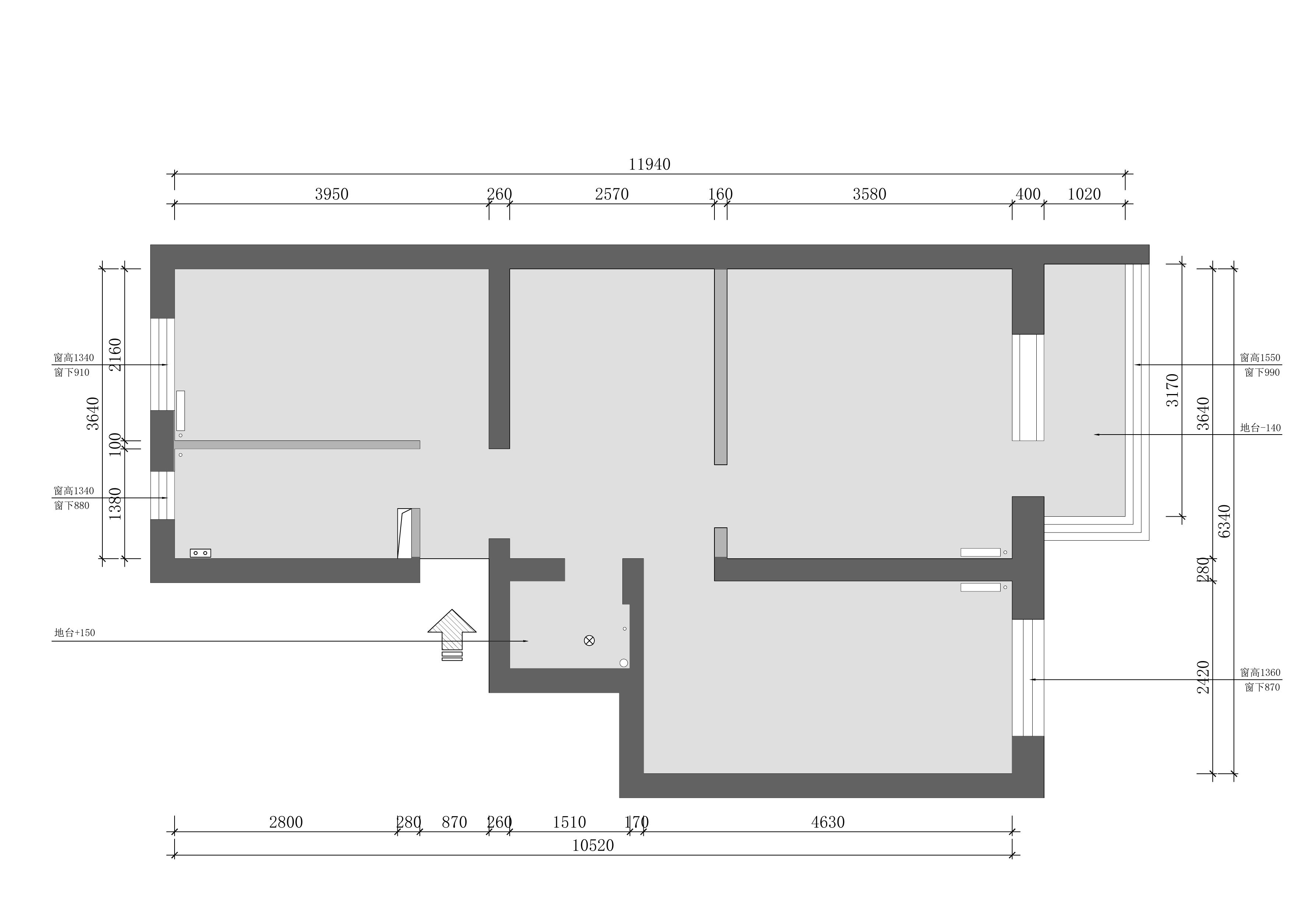
  • 定义一种新的可能性,“口罩”之前我们的办公空间可能就是床头旁边的一个梳妆台兼书桌,49平的房子还能有个独立的工作间更是奢望,但“口罩”让我们有了更大胆的想法,居家办公成了刚需,如何在老破小里满足我们的业主更独立、更放松、更专注的工作?这个项目让我们做了一次勇敢的尝试。 玄关的设计根据屋主的需求,增加了进门玄关,旁边打造了一个复古风的鞋柜,黑色实木框架+藤编双门的设计让柜体更有体块感,柜子上方的绿植增加了生命力,背部是原木板打造的储物间。将玄关后边打造的是一个储物间,可以用来放一些杂物,收纳的问题就得到了部分的解决。 玄关左边是餐厅,打掉了原有卧室和厨房之间的墙体,改造成为餐厅、厨房、家政、储物为一体的混合空间。结合了我们屋主家对于收纳需求比较多,所以整体打造了组合柜。橱柜旁边是镶嵌式洗衣-烘干机、挂式小洗衣机,所以三台机器完美的镶嵌入了橱柜中,也是最极致的利用整个空间,家政设备集中安排,减少不必要的动线。 原先的卫生间空间狭小且阴暗,配的很老的洗手台,而且没有淋浴的地方,改造以后看起来明亮多了,这样也终于有了一个可以舒服淋浴的空间了!卫改造后将洗手台挪到了过道位置,还增加了储物空间。 客厅的背景墙是业主特别喜欢的白色文化砖设计,最顶端没有采用一贯的形式通铺,采用传统盖房的方式顶端竖向排列砖块,让背景墙更有细节。地板选择的是黑胡桃人字形铺贴的地板,不仅能体现北欧的随性,还能够体现出复古风的雅致。客厅中的绿植给客厅带来了无限的生机和活力。 两夫妻都是互联网工作者,需要也能在家有个独立的工作间,并且满足两个人同时使用。所以在原始户型餐厅的位置打造了一个工作间,宽敞的书桌,能够很好的满足两人的日常办公,背后的一侧结合了洗手台背面而打造的书柜,一体化的设计视觉上更加的干净统一。书房面向客厅,满足了充足的采光,空间上也不会显得拥挤了~ 主卧采用地柜的设计,因为主卧的面积很小,而且我们还加入了算是女业主刚需的衣帽间,对于这样的小卧室我们采用了多功能的地台形式,阶梯也是一个同样有收纳属性的抽屉,这样的储物应该能让小户型的收纳压力降低很多。为了节省空间梳妆台没有设计常规凳子,取而代之的是下部挖空,坐在地台床上双脚可以伸到下方,满足了人体工学也节省了空间。
  • 图片
  • 图片
  • 图片
  • 图片
  • 图片
  • 图片
  • 图片
  • 图片
  • 图片
  • 图片
  • 图片
  • 图片
  • 图片
  • 图片
  • 图片
  • 图片
  • 图片
  • 图片
  • 图片
  • 图片
  • 图片
  • 图片
  • 上一个 下一个
    《金腾奖优秀作品年鉴》 私宅丨地产丨餐饮丨酒店丨办公丨商业丨公共丨产品丨公益丨人气 jintengAWARD(小金_金腾奖组委会) 广州市海珠区琶洲大道68号华新中心21楼
    金腾奖视频号 金腾奖小红书号 监制:闫虹
    统筹:吴佳佳
    运营:朱倩仪 王赫萱 张芷莹 胡岚恩 小金
    新媒体:王贝贝 严洁 侯乐 鹅姐
    经纪:刘译遥 石征 曹凯月
    技术:张桐 黄天佑
    最终解释权归金腾奖主办方所有