Any Gate
作品详情
  • Details of the work 标题横线
    头像或者logo
    图片 苌硕
    城市:北京
    公司: 独立设计师
    参赛作品: 我家有个任意门,还可以秒变“总统套”
    空间类型:公寓(150㎡以下)
    个人/公司简介:
    2013.09 首届“中装杯”空间与环境艺术设计大赛 三等奖 2013.10 2013年中国室内设计师黄金联赛(第三季) 优秀奖 2015.11 “定制超级蓝天”室内设计大赛 优秀奖 2016.10 “2016年中国装饰界“营造空间”优秀设计作品大赛” 别墅豪宅 类 金 奖 2017.08 创新中国 最佳创意作品 金 奖 2018.09 CBDA 软装陈设艺术高峰论坛(住宅类) 银 奖 2018.09 第六届“艾舍奖”设计峰会住宅建筑设计 优秀奖 2018.09 第六届“艾舍奖”设计峰会设计人物类 十佳全案设计师
    设计说明 | Design Instruction
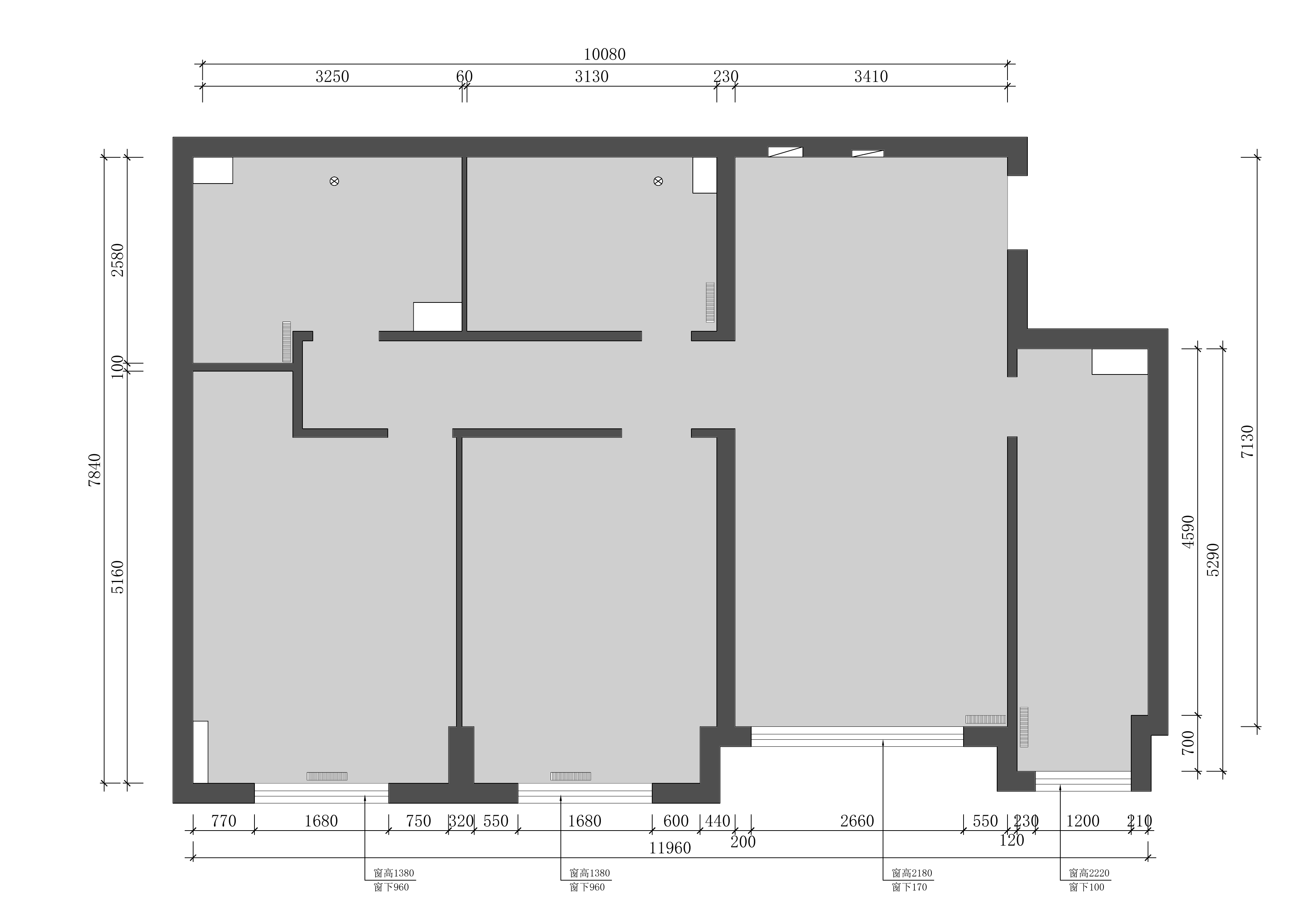
  • 这是一个可以一键切换两居or三居的房子(如何一秒切换文章会说到)。 房屋的主人是一个刚从国外留学回来的年轻小姐姐,目前还是单身,所以这个房子需要承载的任务和时间跨度需要很长。 进门处的储物间,利用一面墙充当了玄关背景。 储物间的设定考虑到,业主小姐姐每次回国后拖着疲惫的身体和沉甸甸的行李箱时,能最快速解放双手和完成收纳。进门的右手边还有一组很薄的柜子,可以放随手的包钥匙等,底柜是鞋柜可以存放日常用的鞋子,最下部采用了悬空的设计,可以放双拖鞋更方便的实现“不弯腰换鞋”。储物间内部,没有定制柜体,取而代之的是货架式的储物架,可以很方便的调整每层的高度。 餐边柜对于每个家庭来说都是必不可少的,同样对于本案热爱美食的小姐姐也同样如此,家里的咖啡机、破壁机等等这种提高幸福指数的小家电需要考虑收纳和日常使用方便,所以在此我们设计了上下储物中间开放的餐边柜,中间区域我们预留了轨道插座,根据小家电的多少可以任意增加减少插座数量。 客厅、餐厅、西厨三个空间打通后,显得公共区域更大了,没有原来户型的狭长感,客厅增加了纵向空间。 冰箱、烤箱这些厨房电器安排在了西厨靠近中厨一侧,退远几步可以看到大型电器的位置处于中西厨的中间位置方便中西厨使用时动线最短的原则,同时也没有遮挡住西厨的采光。可以看到西厨的采光非常棒,为了不影响采光,我们特意设计成了悬浮台面。 我们单独设计了一个能容下两人同时操作的中厨,面积并不大但是里边的功能一点也不少,集成消毒柜功能的一体式灶台给中厨腾出了不少空间。 因为次卧更多是老人居住,所以没有做过多复杂造型,取而代之的是床头墙面用深浅颜色区分出的造型,从床头墙一直延续到侧墙,包裹着床头区域,深色区域营造出更好的包裹感,增加了睡眠者的安全感。父母对于储物的需求可所谓根深蒂固,所以在床尾做了一整面墙的储物。进门右手边通过改变原有墙体格局,增加了一个步入式的衣帽间。另外,墙体转角处考虑到长辈行动的安全性,特意采用了圆角处理。 主卧也运用了很多弧形元素,吊顶的弧形与垂直墙体的碰撞,靠窗一侧这个竖向的墙体是原始房屋结构中无法拆除的结构,我们将原有墙体尖锐的棱角做成了圆弧角,一方面符合整体的风格造型,另一方面也削弱了尖角对人的不适感。储物空间也是主卧的一个刚需,利用空间的错位设计让主卧也能有一个步入式的衣帽间。 主卧的隔壁是新增加的书房,因为想尽可能有自然光的引入不至于关上门就是一个小黑屋,所以卧室和书房之间开了个窗保证书房也可以有自然光。作为一个兼容卧室的书房最重要的就是要有张床,最好还能是个双人床,so我们选用了比较省空间的翻折床,大多数时间为书房功能,翻折床可以收起,偶尔充当客房的时候可以把床放下来,满足两人的睡眠需求。 在过道处我们增设了一个任意门,开启时整个户型是一个3室2卫的布局;关闭此门后神奇的事情发生了,瞬间变成了1房1卫外加1“总统套”。关上门效果,门内是小姐姐的主卧空间,包含1个卧房+1个衣帽间+1个独立书房+1个独立主卫。
  • 图片
  • 图片
  • 图片
  • 图片
  • 图片
  • 图片
  • 图片
  • 图片
  • 图片
  • 图片
  • 图片
  • 图片
  • 图片
  • 图片
  • 图片
  • 图片
  • 图片
  • 图片
  • 图片
  • 图片
  • 图片
  • 图片
  • 图片
  • 图片
  • 图片
  • 图片
  • 图片
  • 图片
  • 图片
  • 图片
  • 图片
  • 上一个 下一个
    《金腾奖优秀作品年鉴》 私宅丨地产丨餐饮丨酒店丨办公丨商业丨公共丨产品丨公益丨人气 jintengAWARD(小金_金腾奖组委会) 广州市海珠区琶洲大道68号华新中心21楼
    金腾奖视频号 金腾奖小红书号 监制:闫虹
    统筹:吴佳佳
    运营:朱倩仪 王赫萱 张芷莹 胡岚恩 小金
    新媒体:王贝贝 严洁 侯乐 鹅姐
    经纪:刘译遥 石征 曹凯月
    技术:张桐 黄天佑
    最终解释权归金腾奖主办方所有