Structure of home
作品详情
  • Details of the work 标题横线
    头像或者logo
    图片 叶芳 橙设传媒特约推荐
    城市:温州
    公司: 合意空间设计
    参赛作品: 家的构造
    空间类型:公寓(150㎡以下)
    个人/公司简介:
    巨人制 一榫一卯 一转一折一行云 一物一城一个家 合意设计,取意“称心如意”,用心为您打造舒适、温暖、时尚的理想室内 空间。合意空间设计事务所是做专注于别墅大宅的私属工作室,配套以专业设计师 团队、精细工程施工团队、整体软装设计及高端家具品牌个性定制服务等。各品牌 团队分工合作,全方位、精细化、零距离为您提供私宅、别墅、办公、商业等各类 空间设计项目的完整解决方案。
    设计说明 | Design Instruction
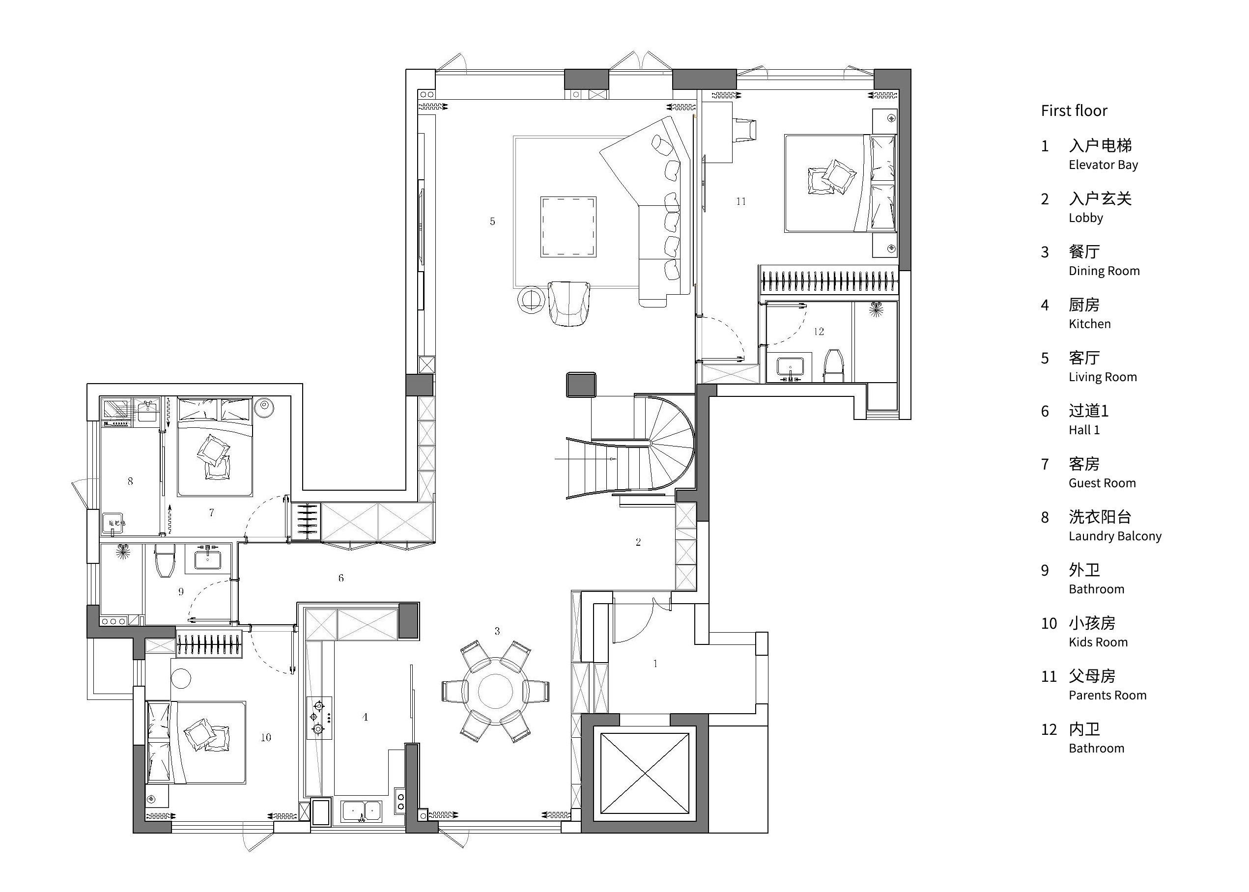
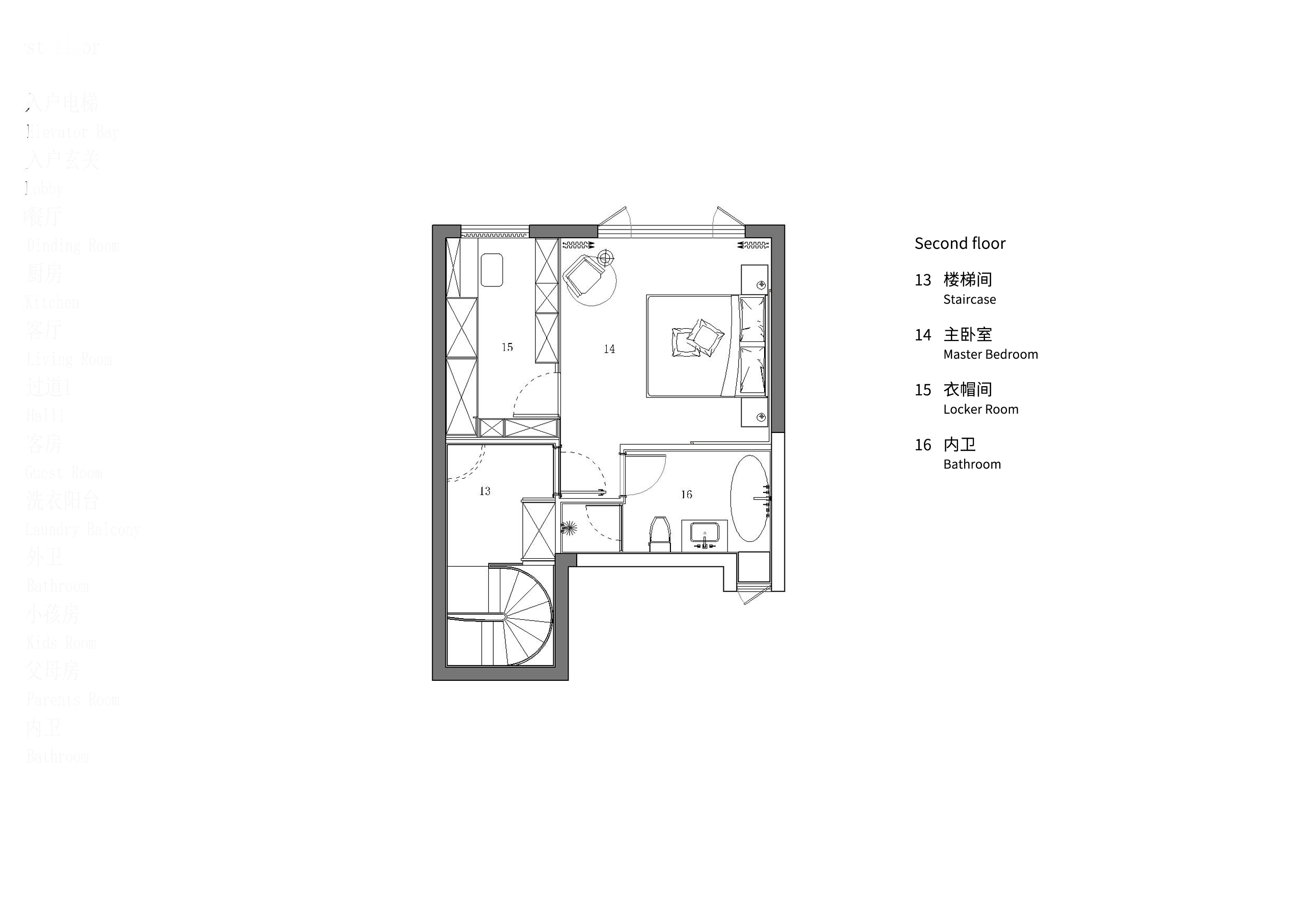
  • 原来最抚人心的,是一切如常。 那张皮沙发还在原来的位置,甚至光晕也打在同一片地方,坐垫还保持着你上次离家时的样子,未喝完的茶水已凉,但仍散着似有似无的幽香,风吹过纱帘轻轻地飘,你坐回最喜欢的位置上,一如寻常。 本案是位于瑞安瑞祥公园边200平方的错越住宅。东临清河,南面望之视野开阔,阳光明媚。清晨打开窗帘,户外的草木与嶙峋的波光,晃花了双眼,一日之始,也自此开始。 户型整体方正,但生活阳台紧邻客厅,造成客厅的整体比例相较于空间偏小,动线杂乱。 设计从破局开始,拆解多余的隔断之后,空间整体外移,容纳进阳台空间,扩大客厅面积。 同时移位楼梯方向,重新梳理空间动线,使之适配空间的功能布局,符合委托方的生活习惯。 色彩遵循简单的黑白灰,同时以一抹橘黄作为跳色,形成温暖精致的空间质感,灯带如同画笔的勾线描红,在平面空间中,勾勒出立体且生动的块面。 空间不做多余的装饰,最简单的平铺直述,只凭借材质间的不同色彩与肌理表达明暗的层次感。 黑白看似是最经典的组合,但其中蕴藏着无数种变换,蕴含着千万种色调,有无限的玩法。 空间看似简单的黑白,却因材质的不同,而存在着不同的光泽、肌理,木质的温润哑光,玻璃的晶莹,金属的冷硬……使色彩呈现着有趣的变幻。 楼梯位于客餐厅之间,经改造过后,走势更加符合空间的基本动线。 楼梯整体呈现纽带般的飘逸感,体现着隔、透、叠的艺术,同时蕴含着向上的张力,形成一二层之间的连接。 设计空间的过程,更像是在讲述一个关于家的故事,从视觉的美感为始,最终落于生活的实质。 私宅空间予人,应是绝对包容的所在,设计师赋予空间大量的留白,容纳悄然生长的情绪,而转角处的一袭画作,则代表着生活中跃动的惊喜,光沿楼梯旋转而上,似是引领,向生活的内心生发。 客厅向外,卧室朝内。二层作为起居空间,更注重私密与温馨的表达。不同于一楼的黑白色调带来强烈的反差感,而是偏向于低饱和度的灰调色彩,引述向平静的内心感受。 设计师希望通过全新布局,营造简单却不输品质的空间质感,秉持着少则多,多则惑的设计理念,强调工艺细节的坚持与产品品质的要求,让生活中本不起眼的物件,都散发着优雅的艺术之美。
  • 图片
  • 图片
  • 图片
  • 图片
  • 图片
  • 图片
  • 图片
  • 图片
  • 图片
  • 图片
  • 图片
  • 图片
  • 图片
  • 图片
  • 图片
  • 图片
  • 图片
  • 图片
  • 图片
  • 图片
  • 图片
  • 图片
  • 图片
  • 图片
  • 图片
  • 图片
  • 图片
  • 图片
  • 图片
  • 图片
  • 图片
  • 图片
  • 上一个 下一个
    《金腾奖优秀作品年鉴》 私宅丨地产丨餐饮丨酒店丨办公丨商业丨公共丨产品丨公益丨人气 jintengAWARD(小金_金腾奖组委会) 广州市海珠区琶洲大道68号华新中心21楼
    金腾奖视频号 金腾奖小红书号 监制:闫虹
    统筹:吴佳佳
    运营:朱倩仪 王赫萱 张芷莹 胡岚恩 小金
    新媒体:王贝贝 严洁 侯乐 鹅姐
    经纪:刘译遥 石征 曹凯月
    技术:张桐 黄天佑
    最终解释权归金腾奖主办方所有