Simple life
作品详情
  • Details of the work 标题横线
    头像或者logo
    图片 叶芳 橙设传媒特约推荐
    城市:温州
    公司: 合意空间设计
    参赛作品: 简素生活
    空间类型:公寓(150㎡以下)
    个人/公司简介:
    叶 芳 合 意 空 间 设 计 事 务 所 创 始 人 / 设 计 总 监
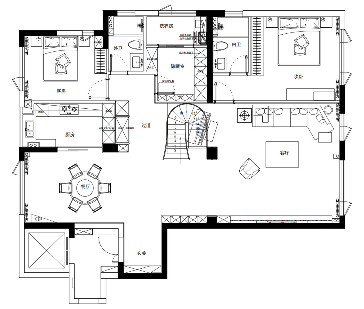
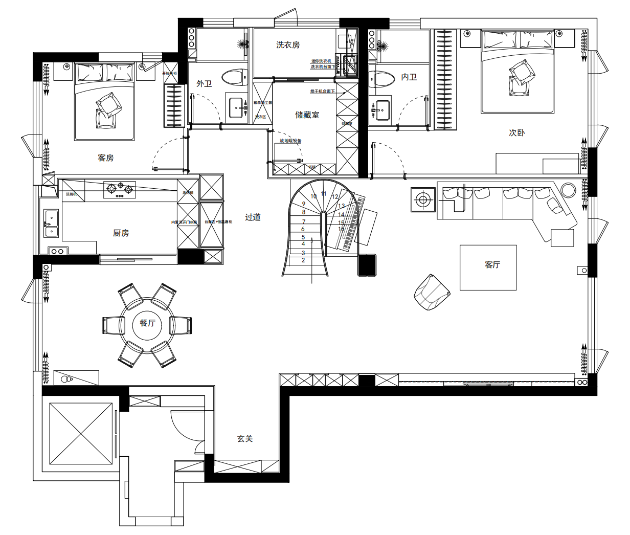
    设计说明 | Design Instruction
  • 回溯内心, 回归自然,回到生活。 我们想要的家, 是还原生活最初的样子。 生活因空间而润色 家居空间,因使用而生 为生活而添色 本案空间在满足使用功能的基础之上 删繁就简,意图在简化空间的同时 简化生活,提高人在空间中的居住感受 落地窗引入光线 为空间打下层次分明的影 不同的家具材质在光照下 不同肌理更显分明,极富韵味。 橙与蓝撞色的休闲沙发成为空间中的重笔 为灰调的空间添上一抹亮色 两色相交,如若旷野平原生出的一朵鲜花 刹那惊艳。 楼梯蜿蜒而上 若丝带飘忽,缱绻温柔 半透明玻璃扶手带来视线的无限延伸 也成为这开放式空间的灵魂一笔 空间不因楼梯而打断 视野开阔流畅 光线得以从四面八方汇入 简约空间的秘诀 是在日常生活中保持这份洁净 于是收纳功能实是重中之重 玄关设置到顶式收纳,加大储物空间 沿用整体的色彩方案 大面积灰白色为基底 缀以深邃的棕色木纹 定调自然温馨,提升空间整体性的感知 餐厅紧邻玄关而设 极具雕塑感餐桌 为静态空间带来动态的流动感 彰显时尚张力 相较于一楼的冷静克制之美 二楼作为私密场所而更显温馨 随楼梯旋转进入二楼 木地板温润柔和,触感细腻 保留大量落地窗,引入光线 主卧与休息区、更衣室呈开放式形态 动线清晰明了 闲时落座于窗前,便是一番岁月静好 晴有光,雨有声,这声光之间,便是生活 一年四季,岁岁年年 我们大部分的时间,都与家相关 家本不复杂,也无需复杂 只需承载情感,只需给灵魂一个栖息之地 余下的,交给时间,慢慢填满
  • 图片
  • 图片
  • 图片
  • 图片
  • 图片
  • 图片
  • 图片
  • 图片
  • 图片
  • 图片
  • 图片
  • 图片
  • 图片
  • 图片
  • 图片
  • 图片
  • 图片
  • 图片
  • 图片
  • 图片
  • 图片
  • 图片
  • 图片
  • 图片
  • 图片
  • 图片
  • 上一个 下一个
    《金腾奖优秀作品年鉴》 私宅丨地产丨餐饮丨酒店丨办公丨商业丨公共丨产品丨公益丨人气 jintengAWARD(小金_金腾奖组委会) 广州市海珠区琶洲大道68号华新中心21楼
    金腾奖视频号 金腾奖小红书号 监制:闫虹
    统筹:吴佳佳
    运营:朱倩仪 王赫萱 张芷莹 胡岚恩 小金
    新媒体:王贝贝 严洁 侯乐 鹅姐
    经纪:刘译遥 石征 曹凯月
    技术:张桐 黄天佑
    最终解释权归金腾奖主办方所有