With hopes in his heart, his eyes have stars
作品详情
  • Details of the work 标题横线
    头像或者logo
    图片 叶曼 橙设传媒特约推荐
    城市:温州
    公司: 象限空间设计
    参赛作品: 心存希冀,目有繁星
    空间类型:公寓(150㎡以下)
    个人/公司简介:
    象限空间设计 设计总监
    设计说明 | Design Instruction
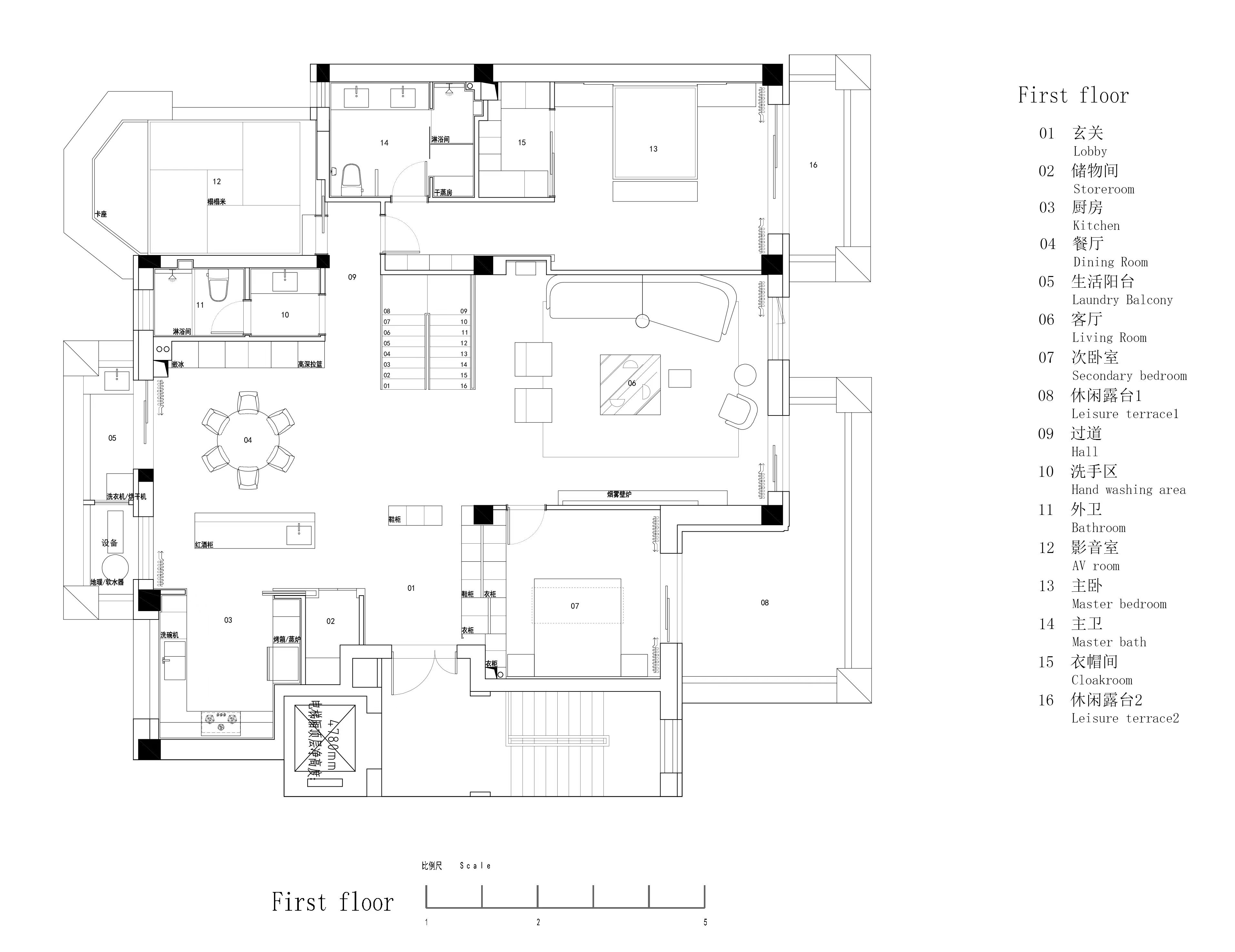
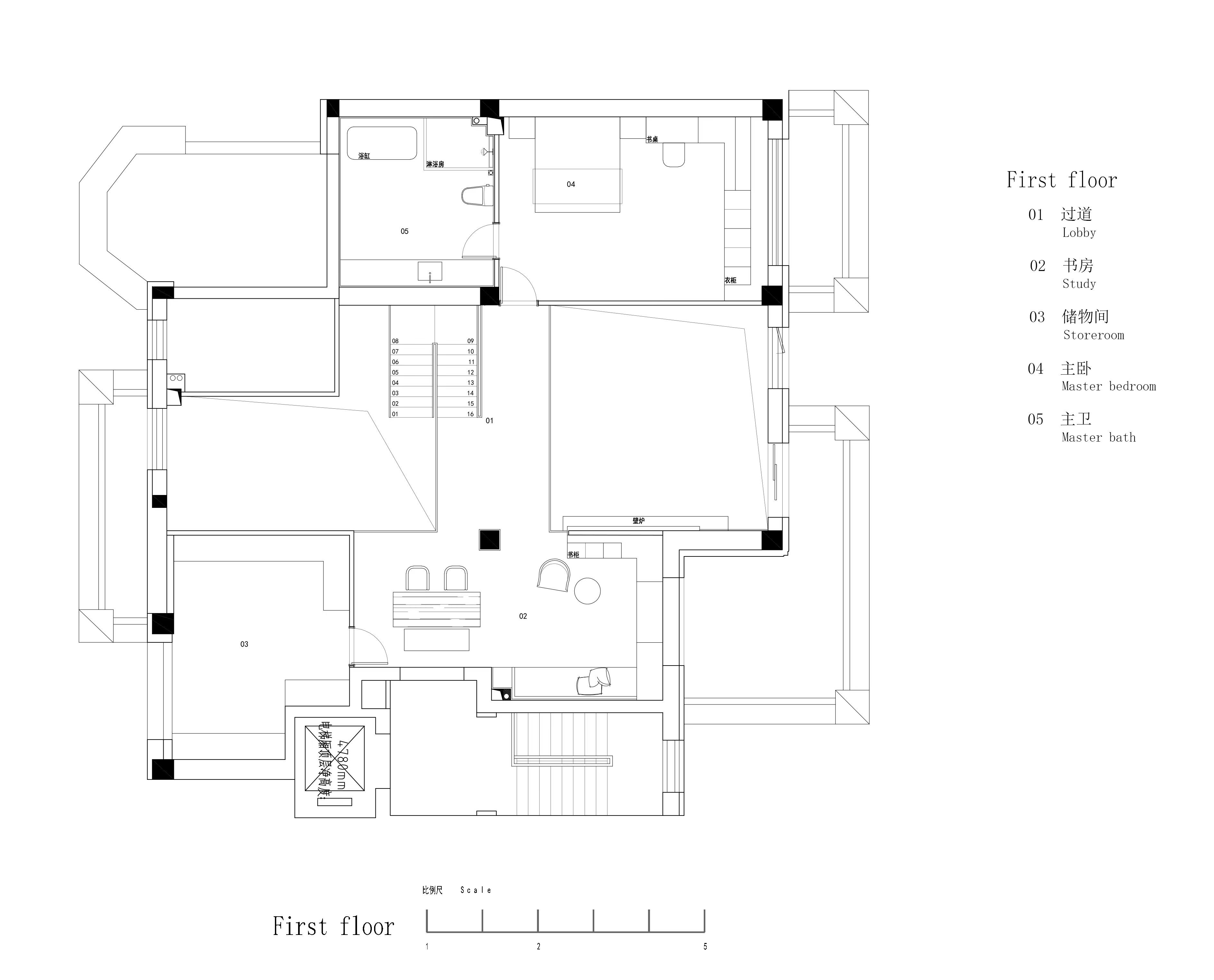
  • 日月星辰,喧嚣烟火 世间的浪漫 便是在炊烟渐起之余 抬头遇见繁星满天 以融合之姿 本案空间处于洋房顶跃,中间高两边低的结构让我们意外地获得了一间阁楼,在客厅与餐厅上方挑空,保留倾斜的屋顶,再缀以“星辰”,这样,日月山河与人间烟火,便不再冲突。 空间以温暖的木色搭配纯净的白,营造温暖自然的家居底色。打开的结构使阳光与空气得以自由流通,视线不被打断之后,空间愈发连贯开阔。 之字形楼梯成为空间中的中心,将客餐厅区域一分为二,但同时透明的结构又让这种分割藕断丝连,彼此之间独立又融合。 以开放之态 厨房空间分离出导台区域,形成与餐厅之间的过渡,使用动线更清晰简洁,同时也丰富了餐厅空间的功能,除就餐以外,亦可以承担部分待客休闲的用途。 餐厅吊灯自顶部悬挂而下,如悬浮般形成与餐桌的联动关系。 自楼梯而上的时候,视线随楼梯的辗转将一楼空间尽收眼底,阳光明媚,溯光而生,映衬地空间熠熠生辉。如同一首清浅的散文诗,含蓄地表达着家的意义。 以静制衡 步入二层空间之后,倾斜的屋顶营造出强烈的氛围感,休闲空间沿窗而设,恣意地浸透阳光的照射,低矮的结构带来童话般居住感受,夜晚可以靠在靠垫上看星空,室外真实的星河璀璨与室内人造的星光点点,相映成趣,别有意味。 相合而生 空间原本是无生命的,但因为阳光的射入,而有了明暗的流转,因为空气的流通,形成温度的感知。家的意义之于人,早已不是栖居之所那样简单,而是因为其沉静而宽厚的空间影响力,不断地给予人内心的满足与治愈。 主卧同样纳入倾斜的天窗,布置以飘窗,得到一个可供休憩,赏月的场景,空间的排布依结构而设,自在流淌,自然形成的几何结构,带来强大有力的拉伸气场。 延续空间整体的色彩方案,次卧不做多余赘述,旨在满足基础的睡眠功能,还原空间最本身的样子。 人生何不像这满目烟火与漫天繁星一样,一半属于现实,一半奔向理想。而设计,则是理想与现实的交融之处,安下一个叫做“家”的壳,你可以在这尘世中轻轻一抬头,徒手便可摘星辰。
  • 图片
  • 图片
  • 图片
  • 图片
  • 图片
  • 图片
  • 图片
  • 图片
  • 图片
  • 图片
  • 图片
  • 图片
  • 图片
  • 图片
  • 图片
  • 图片
  • 图片
  • 图片
  • 图片
  • 图片
  • 图片
  • 图片
  • 图片
  • 图片
  • 图片
  • 图片
  • 图片
  • 上一个 下一个
    《金腾奖优秀作品年鉴》 私宅丨地产丨餐饮丨酒店丨办公丨商业丨公共丨产品丨公益丨人气 jintengAWARD(小金_金腾奖组委会) 广州市海珠区琶洲大道68号华新中心21楼
    金腾奖视频号 金腾奖小红书号 监制:闫虹
    统筹:吴佳佳
    运营:朱倩仪 王赫萱 张芷莹 胡岚恩 小金
    新媒体:王贝贝 严洁 侯乐 鹅姐
    经纪:刘译遥 石征 曹凯月
    技术:张桐 黄天佑
    最终解释权归金腾奖主办方所有