Grandma Liu's home
作品详情
  • Details of the work 标题横线
    头像或者logo
    图片 叶美梅 橙设传媒特约推荐
    城市:温州
    公司: 云信设计
    参赛作品: 刘姥姥的家
    空间类型:公寓(150㎡以下)
    个人/公司简介:
    云信设计 设计总监
    设计说明 | Design Instruction
  • 一个人生气蓬勃的时候决不问为什么生活,只是为生活而生活,为了生活是桩美妙的事而生活。 ——罗曼·罗兰 以直觉为导向 _ 空间的纯粹性,是为本案的叙述表达,抛弃艺术的技法,从对空间根源性进行探讨,遵从内心精神的方向出发,以直觉为导向叙述一个温馨的家庭力场。 回归平实却有致的家居氛围,强调自然而然的发生,在柔化空间锐利的棱角之后,强调质朴温润的状态,回归空间最本质的需求。 凭借意识的自然流露 _ 设计提出“压力真空带”的设计概念,不事雕琢家的具体形状,而是全凭意识的自然流露。最大限度的打开形成通透明亮的内部空间,平衡原始框架与体系,以温暖的木材铺陈温暖柔和之感,与屋主形成同频的情感共鸣。 不追求繁复的设计,亦不强调极致的极简,中庸的取舍之道背后是对设计应对生活方式的再次探讨。 精神层面的精简之后,留下的是日常生活中平凡的琐碎,刻画家人相聚的温馨松弛感。 内与外的交互关系 _ 引导阳光入室,经由结构的层层打断而落下几何的阴影。冬日的煦暖因此而来,空间与外界的交互被赋予强烈的生活气息与生命感,于潜移默化中引导居住者的感官记忆。 摒弃刻意且矫揉造作的浮夸装饰,还原一个空间最质朴的样子,以功能定调设计,是对家空间最纯粹的表达,这亦是设计师对居住者反复揣摩之后的答卷,是基于生活方式理解之后的思考。 回到最初的构想 家也不过是容纳三餐四季的盒子 人与物与空间 构成了故事的开篇
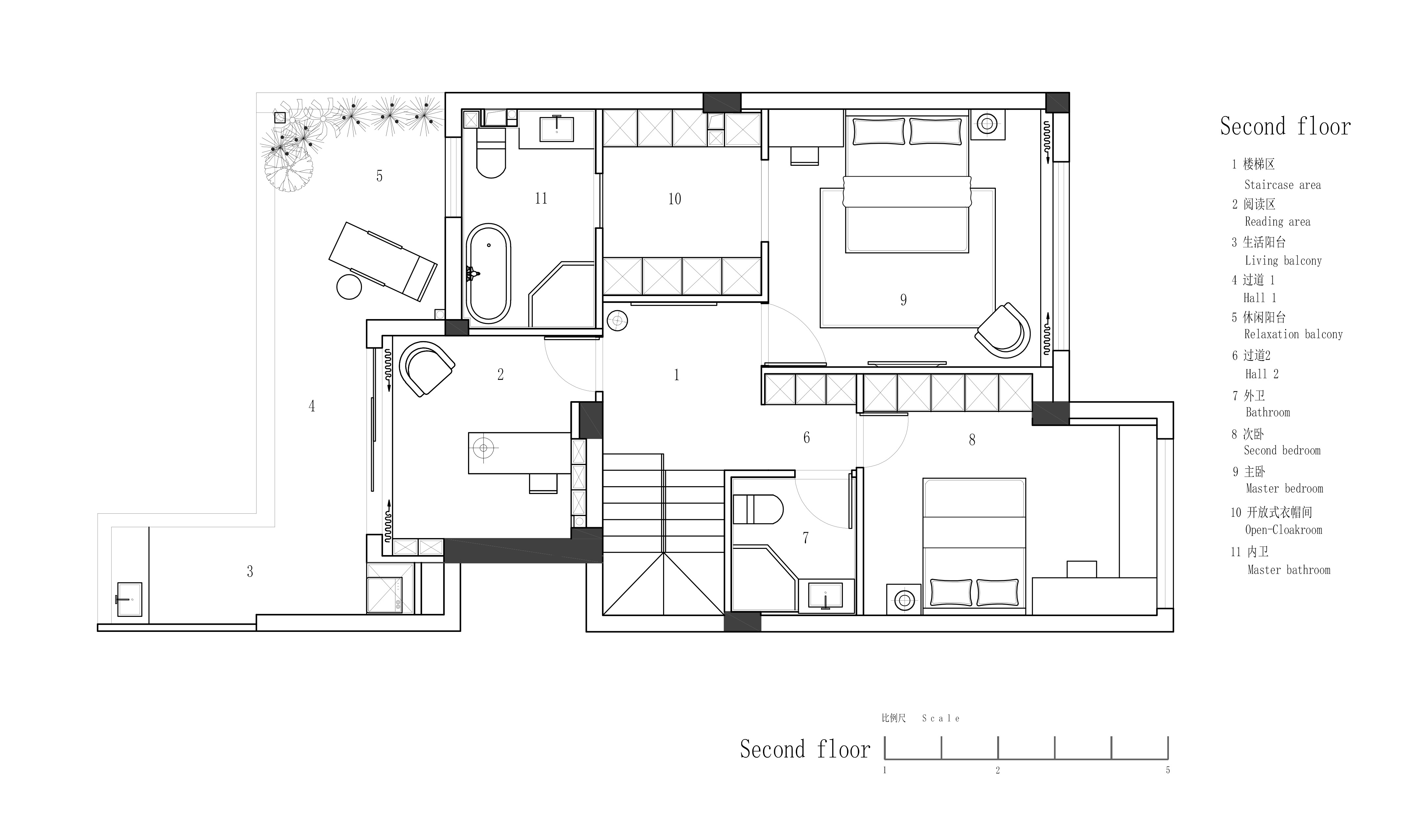
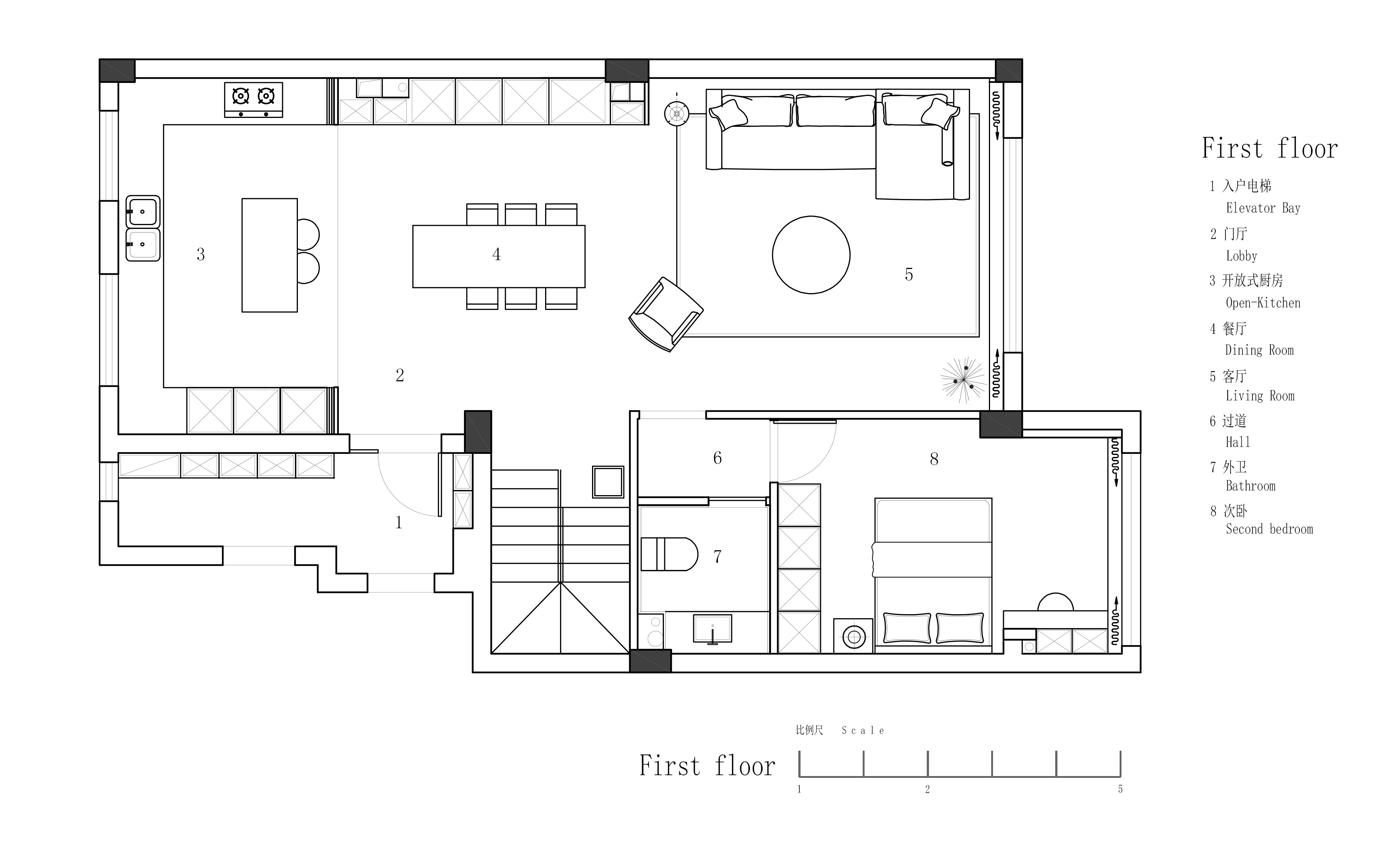
  • 图片
  • 图片
  • 图片
  • 图片
  • 图片
  • 图片
  • 图片
  • 图片
  • 图片
  • 图片
  • 图片
  • 图片
  • 图片
  • 图片
  • 图片
  • 图片
  • 图片
  • 图片
  • 图片
  • 图片
  • 图片
  • 图片
  • 图片
  • 图片
  • 图片
  • 图片
  • 图片
  • 图片
  • 上一个 下一个
    《金腾奖优秀作品年鉴》 私宅丨地产丨餐饮丨酒店丨办公丨商业丨公共丨产品丨公益丨人气 jintengAWARD(小金_金腾奖组委会) 广州市海珠区琶洲大道68号华新中心21楼
    金腾奖视频号 金腾奖小红书号 监制:闫虹
    统筹:吴佳佳
    运营:朱倩仪 王赫萱 张芷莹 胡岚恩 小金
    新媒体:王贝贝 严洁 侯乐 鹅姐
    经纪:刘译遥 石征 曹凯月
    技术:张桐 黄天佑
    最终解释权归金腾奖主办方所有