TO ENCOUNTER
作品详情
  • Details of the work 标题横线
    头像或者logo
    图片 叶智丽 橙设传媒特约推荐
    城市:温州
    公司: 家和丽舍空间设计
    参赛作品: TO ENCOUNTER
    空间类型:办公
    个人/公司简介:
    2010 年评“高级住宅室内设计师”称号 2010 年荣获中国国际设计艺术博览会 2010-2011 年度杰出设计师奖 2016 年 CBDA 中国装饰设计奖荣获餐饮空间工程奖“银奖” 2017 年获兰德国际设计中心 软装配饰师职业证书 2017 年亚太空间设计年度评选“生活美学家” 2018 年 CBDA 中国软装陈设艺术节住宅空间类 银奖 2018 年第六届日立中央空调 Hi-Design 室内设计大赛中荣获“公寓奖” 2020 年完成设易学院杭州站《总监班》课程学习 2020 年修完亚洲设计艺术十堂课(第九季)课程 2020 年“三翼鸟”杯第三届中国室内设计冠军赛温州赛区“最佳潜力奖” 2020-2021 中国设计头条年鉴榜·城市榜 年度优秀设计项目 2021-2022 CIFF 设交圈·设计千人计划 入选设计师 2021.2022 40 UNDER 40 中国(浙江)设计杰出青年 ID+C2021 金创意奖家居空间“国际创新设计奖” 2021 百度馨居奖 “年度最佳中户型设计奖.全国 TOP50” 2021in-home award 金住奖 全国百杰居住空间设计师 2022-2023 设计千人计划 入选设计师 2021-2022 设计头条城市榜 年度优秀设计项目
    设计说明 | Design Instruction
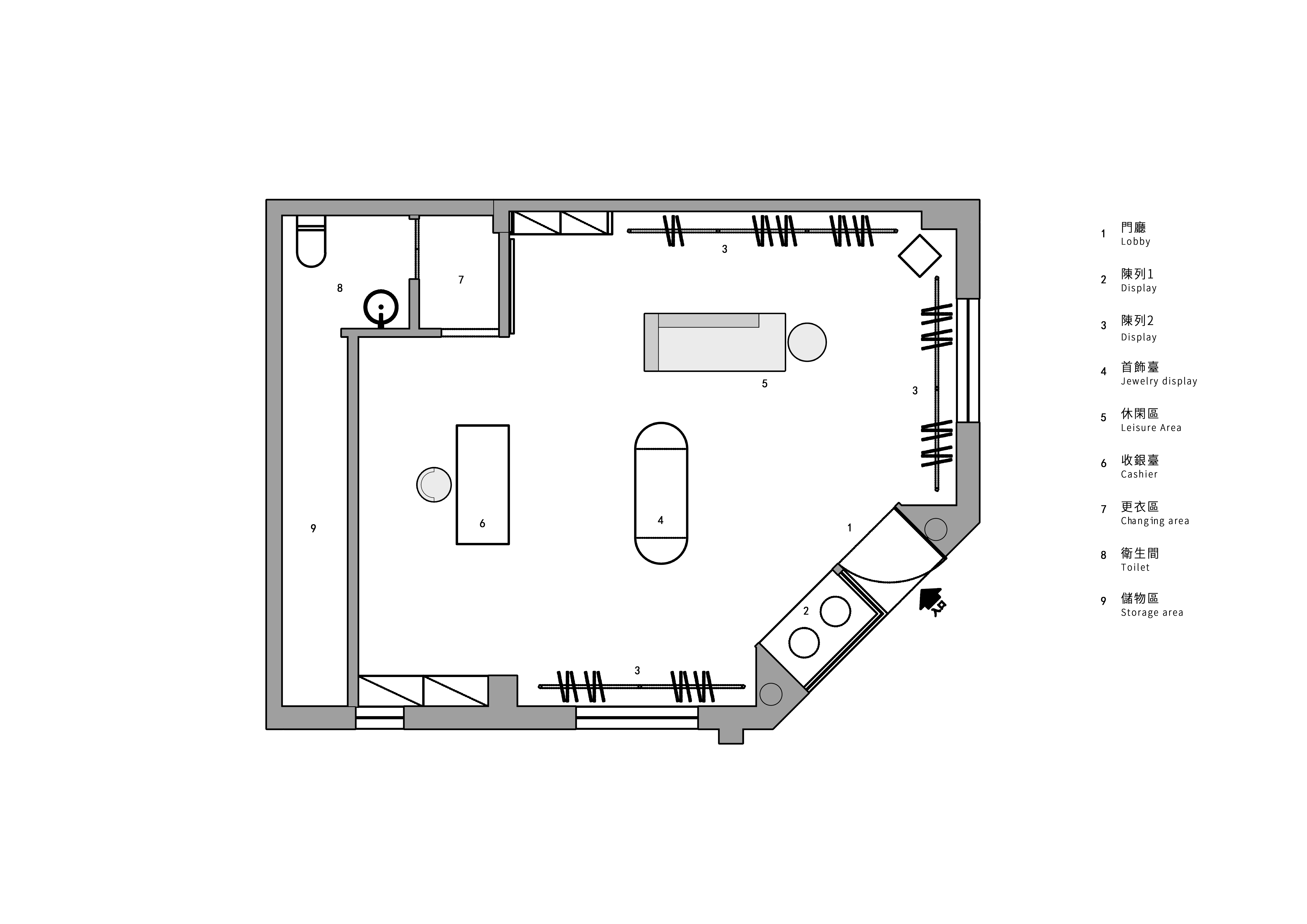
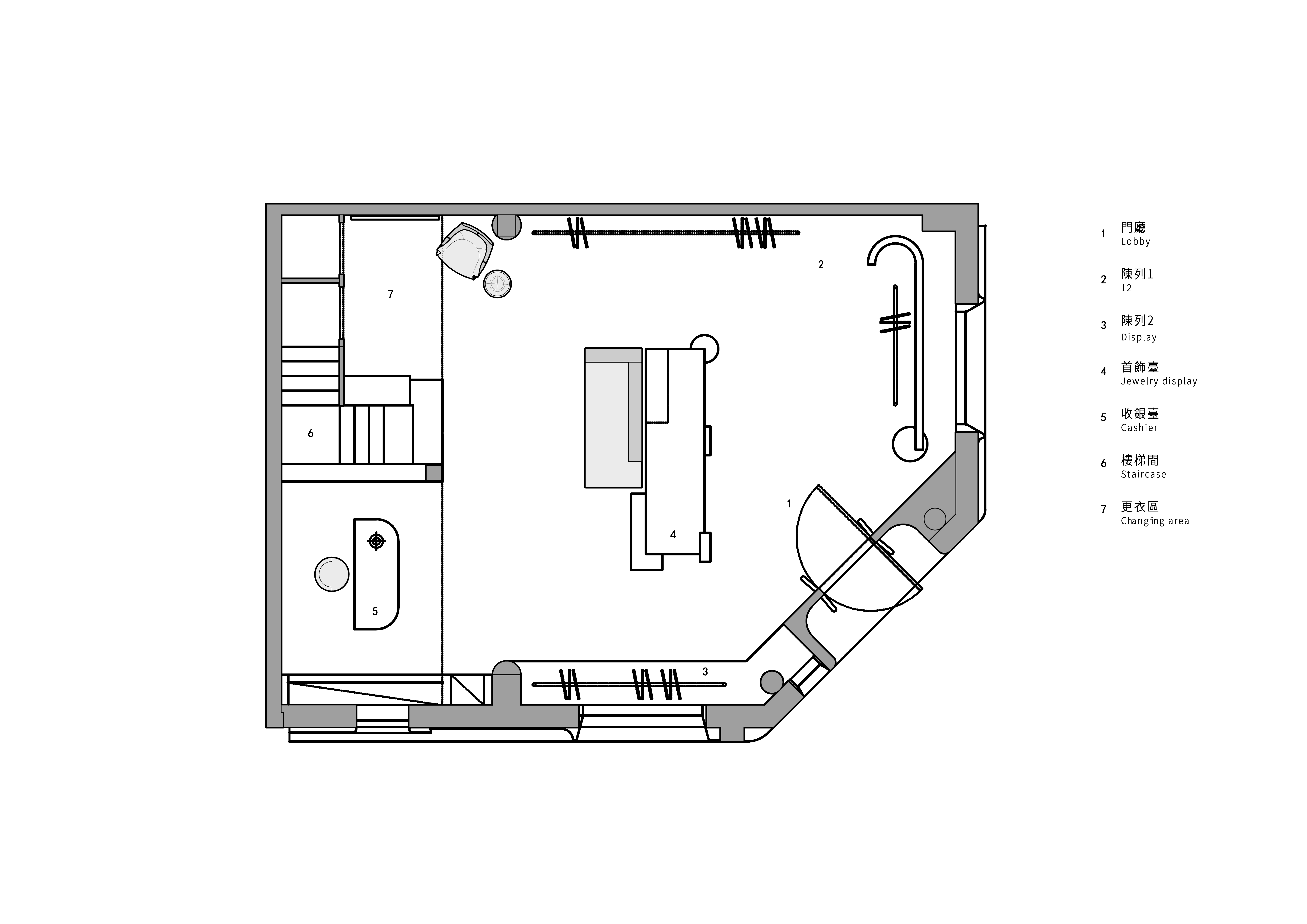
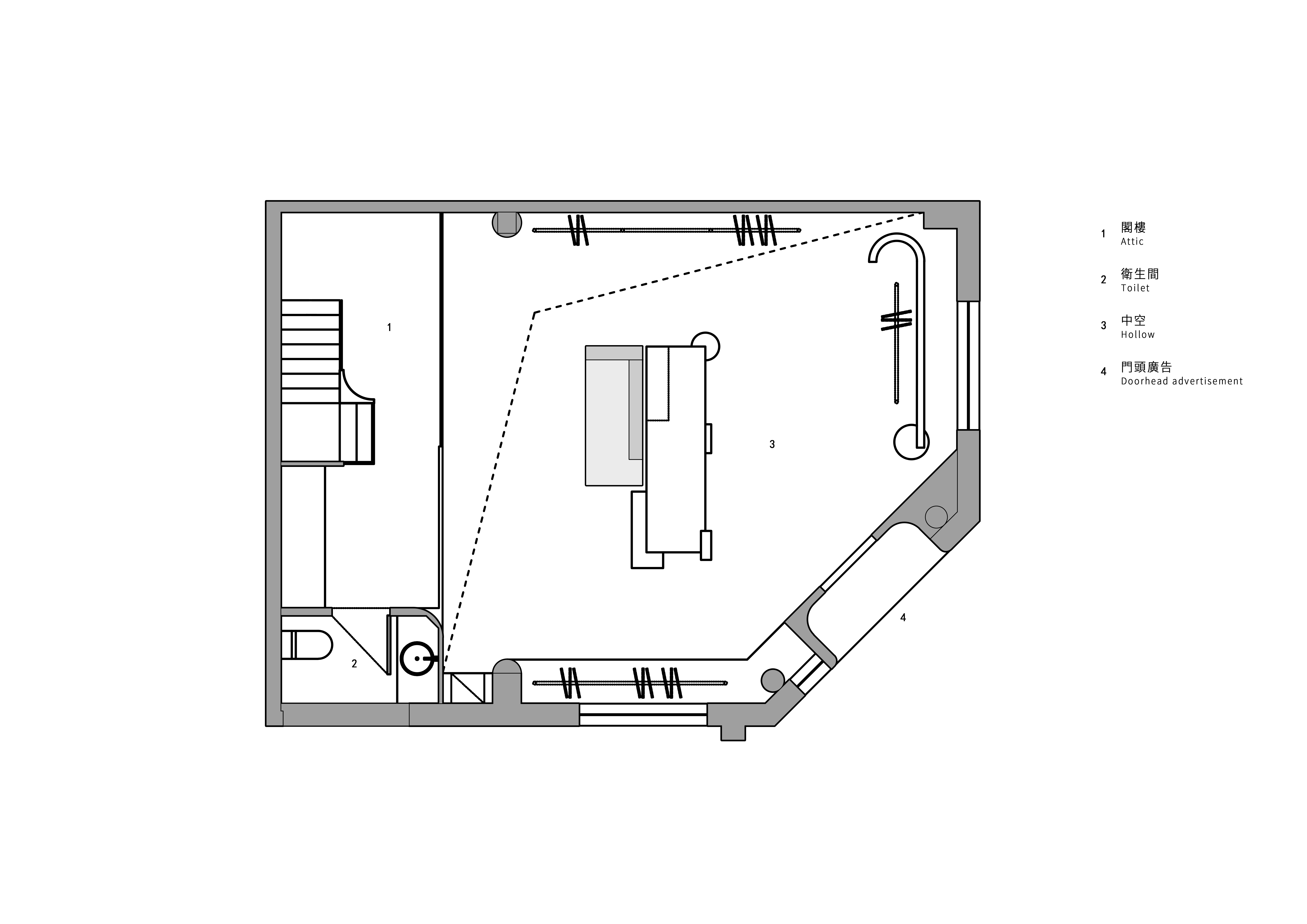
  • 灵感,沟通 情绪的刹那回闪与聚焦 落于方寸空间内 化为绵而有力的结构笔法 如一场太极,柔中带刚,朗而有致。 老空间的改造,意味着对既有框架的重新理解,既要打破原始形态,又要直击痛点。 设计给到向内与向外的的双向命题,所谓“向外”,即指向门头与橱窗区的外向张力,以引人深入为触发点。“向内”则为访客步入空间以后,由空间而布局的展示功能,呈现由凝聚再爆发的视觉张力。 直为力,弧为柔。 设计以建筑的笔法造境。几何呈现柔和的姿态,落于空间的起势。 辗转有折,隐而有力。 色彩的极致克制,代表绝对理性的场所。 将视觉吸引力让位于空间的陈列之中,只透过叠与透的艺术思考,表达明亮开阔,但不失神秘感的空间形式。 引述直角的魅力,层叠的叙事,体块的自然衔接,表达错落的空间结构。 金属以线条的形式点缀于微水泥空间内,如光入隧道,隐喻空间平静外表下,闪光的内里。 陈列被赋予不同的表达方式,步入空间其内,阳光温柔,透过结构的刻意遮挡,与展陈的错落分布,落下参差的阴影,在一片纯白的空间中,落下富有生命力的空间节奏感。 商业空间的设计逻辑,表现为突出空间商业目的的需求,而非空间本身。且随着商业业态的不断升级,商业空间已不再止步于展陈这一单一的需求,而在于空间与人与物三者之间的交流互动。 自想象中提取几何的要素,归结于空间的线性表达。以现代的感官审美去构建空间的筋骨,通过块面之间的互为依托,传递简单且宁静的空间遐想。 异形,是整体空间的不规则呈现,亦是对商业空间本身,不甘于既定规则的呼应,从始至终,空间意在通过结构的语言与极简的呈现,凸显商业空间的本质价值。
  • 图片
  • 图片
  • 图片
  • 图片
  • 图片
  • 图片
  • 图片
  • 图片
  • 图片
  • 图片
  • 图片
  • 图片
  • 图片
  • 图片
  • 图片
  • 图片
  • 图片
  • 图片
  • 图片
  • 图片
  • 图片
  • 图片
  • 图片
  • 图片
  • 图片
  • 图片
  • 图片
  • 图片
  • 图片
  • 图片
  • 图片
  • 图片
  • 图片
  • 图片
  • 图片
  • 图片
  • 图片
  • 图片
  • 图片
  • 图片
  • 图片
  • 图片
  • 图片
  • 图片
  • 图片
  • 图片
  • 图片
  • 上一个 下一个
    《金腾奖优秀作品年鉴》 私宅丨地产丨餐饮丨酒店丨办公丨商业丨公共丨产品丨公益丨人气 jintengAWARD(小金_金腾奖组委会) 广州市海珠区琶洲大道68号华新中心21楼
    金腾奖视频号 金腾奖小红书号 监制:闫虹
    统筹:吴佳佳
    运营:朱倩仪 王赫萱 张芷莹 胡岚恩 小金
    新媒体:王贝贝 严洁 侯乐 鹅姐
    经纪:刘译遥 石征 曹凯月
    技术:张桐 黄天佑
    最终解释权归金腾奖主办方所有