The vessel of night and light
作品详情
  • Details of the work 标题横线
    头像或者logo
    图片 卢维涛 贰拾柒设计经纪特约推荐
    城市:广州
    公司: 大匠室内设计
    参赛作品: 夜与光的容器
    空间类型:民宿
    个人/公司简介:
    资深与杰出室内建筑师 国际建筑装饰协会认证专业设计师 中国高级室内建筑师 大匠室内设计 创始人 G.M INTERIORS 008 年金羊奖全国十大设计师 2008IDC 酒店设计奖最佳酒店设计概念奖 2008 年上海金外滩室内空间设计大赛类最佳概念设计奖 广东第二届室内设计大赛【住宅工程类银奖】 广东岭南杯室内设计大赛【住宅工程类金奖】 第六届室内设计双年展【住宅工程类银奖】 第七届室内设计双年展【住宅工程类金奖】 CIID 第七届中国室内设计大赛学会奖【住宅工程类银奖】 金堂奖——2011 第六 届 2014 年国际空间设计大奖 艾特奖【住宅工程类金奖】 2017 年,作品《住宅 2306》获建筑设计作品奖项公寓空间设计作品金奖 2017 年,卢维涛的作品《再设计》荣获第五届“艾舍奖”建筑设计作品奖项别 墅豪宅设计作 品金奖 2017 年,荣获亚太地区设计大赛【最具影响力设计师】 2018 年香港室内设计师协会&亚太设计师大赛 “领军人物” 商业空间(方案类) “至尊奖” 2020-2021 年 40under40 中国(广州)设计杰出青年 2020-2021&2021-2020 连续两年 蝉联 中国设计星全国 36 强 2021 年获得 G+AWARDS 全球设计精英大赛中国(广州)TOP10 2021 年获得寸匠奖,获奖作品是《垣酒吧》设计 2021 年一兜糖 APP-展出作品是 400㎡的《生活氛围与时光雕琢》设计
    设计说明 | Design Instruction
  • 围绕着“日咖夜酒”的经营模式,设计基于现有场地、空间功能、消费人群徐徐展开。在不过百方的空间当中,我们完成了自古典结构到现代空间的转译。 与咖啡相关的装置在入口形成视觉缓冲,引导视线并与通行流线形成空间过渡区域。 视觉符号是一种诱导,用来引发人们对内部构造的好奇,吸引其向内,融入一种莫测的洞窟感。 整个空间当中,古典的符号与当下的身体感知重叠,以现代性的尺度有机结合在一起。通过光线与空间尺度、色彩的关联把控制氛围,以安静又独特的姿态示人。 两种时间、两种功能交替演变。白昼,空间于光明与黑暗之间过渡;黑夜,熟悉又神秘的构造勾勒出独特的沉浸式环境,为空间赋予仪式感和强大的张力。顶面LED屏幕动态艺术影像的加持,创造出一种流动的、贯通的甚至迷离的效果。 对于酒吧和咖啡厅这种复合式的经营业态,灵活的主题与独特环境造就其多样的氛围变化。在这里,顶面LED演绎的影像不止是影像本身,也同时作为三维空间中的景观,能够进一步激活空间氛围。 温和平静、饱有情感。在酒吧立面的展陈设计中,我们构想超越传统单一的酒品展示功能,将灯膜形成的发光体作为独特的结构语言,跟随天顶的曲度,沿着立面与平行方向徐徐铺陈开,形成另一种空间叙事媒介。 软膜通过过滤光线,建立起柔和而有力的视觉秩序,接近一种温和且理性的状态。在匀质的光源种,空间犹如一个滤清器,人们在此体验到的是一种格外松弛的状态。 细节上,粗糙的质感与金属材质的配饰形成极富现代意味的对比,动态的视觉效果,呈现时而清醒时而混沌的状态。不同材质间的对比,让空间体块的语言不再是单一的立体构成,而是如戏剧一样,留给观众无限想象的开放式空间叙事。 我们希望这里是时间与光的容器,包容熟悉的松弛感和新鲜的想象力,允许一切的故事发生。 它似曾相识 ,又具有当下深刻的时代精神。
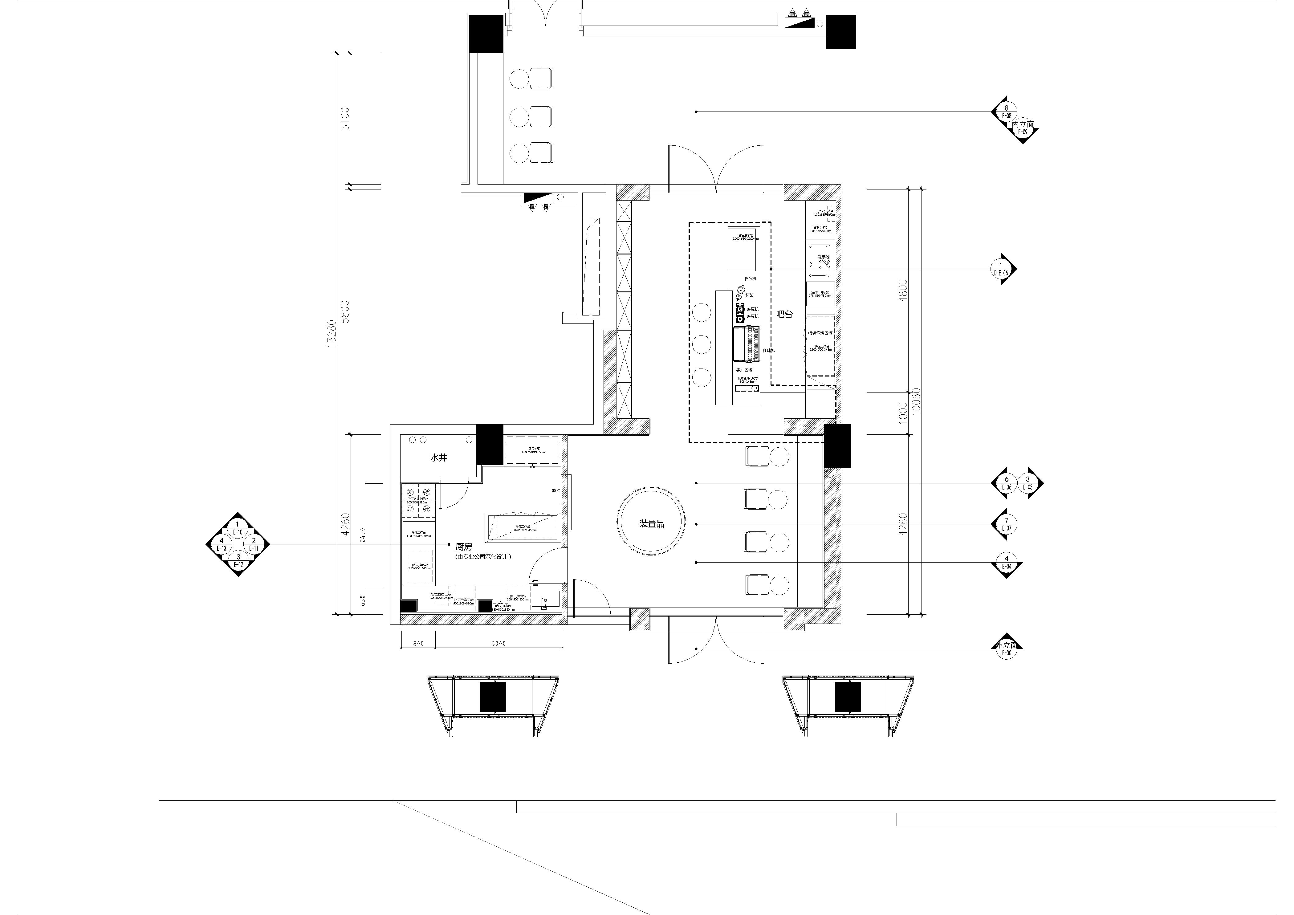
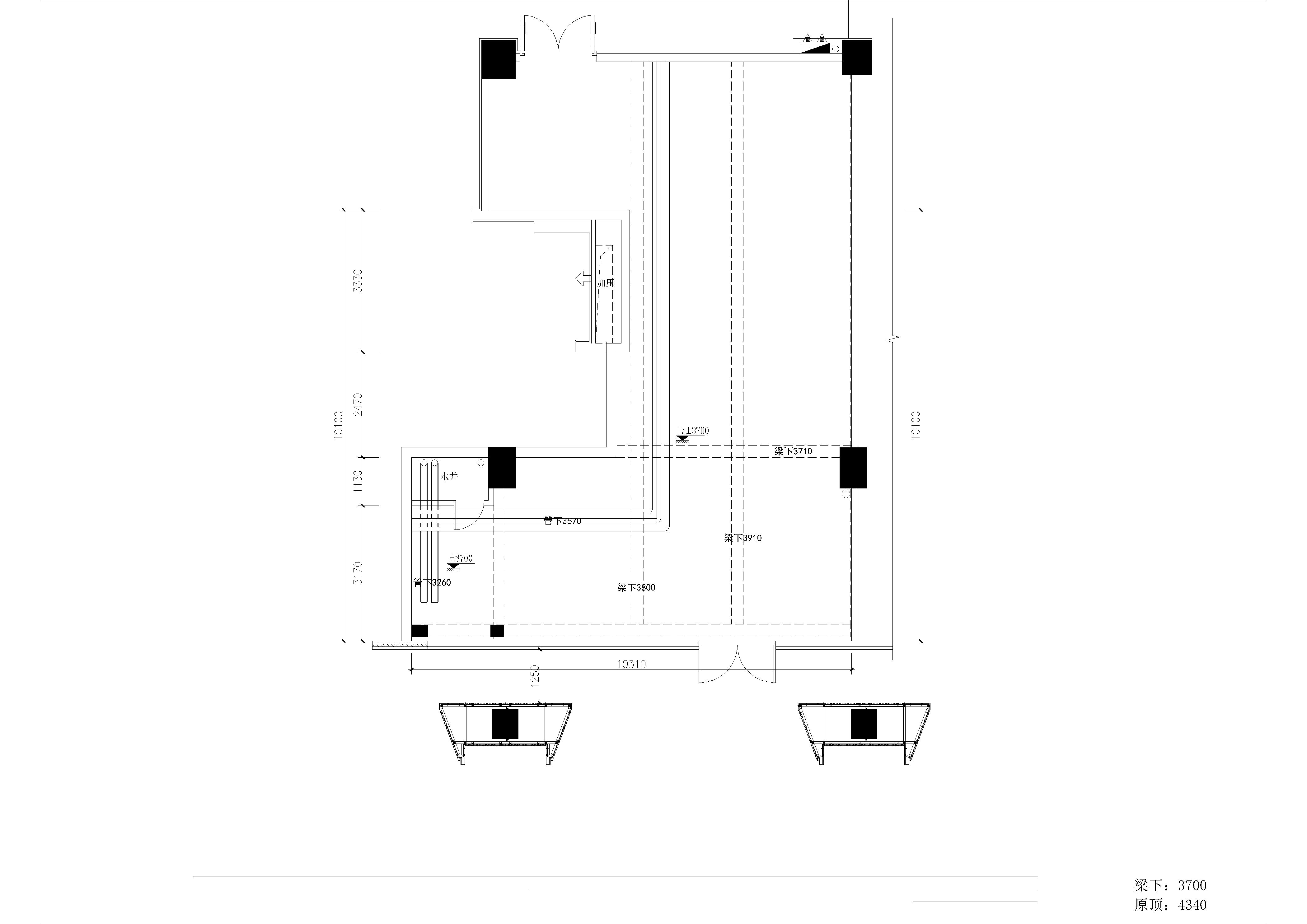
  • 图片
  • 图片
  • 图片
  • 图片
  • 图片
  • 图片
  • 图片
  • 图片
  • 图片
  • 图片
  • 图片
  • 图片
  • 图片
  • 图片
  • 图片
  • 图片
  • 图片
  • 图片
  • 图片
  • 图片
  • 图片
  • 上一个 下一个
    《金腾奖优秀作品年鉴》 私宅丨地产丨餐饮丨酒店丨办公丨商业丨公共丨产品丨公益丨人气 jintengAWARD(小金_金腾奖组委会) 广州市海珠区琶洲大道68号华新中心21楼
    金腾奖视频号 金腾奖小红书号 监制:闫虹
    统筹:吴佳佳
    运营:朱倩仪 王赫萱 张芷莹 胡岚恩 小金
    新媒体:王贝贝 严洁 侯乐 鹅姐
    经纪:刘译遥 石征 曹凯月
    技术:张桐 黄天佑
    最终解释权归金腾奖主办方所有