off gravi
作品详情
  • Details of the work 标题横线
    头像或者logo
    图片 孟晓虎
    城市:苏州
    公司: 光合作用空间设计
    参赛作品: 引力咖啡
    空间类型:办公
    个人/公司简介:
    我们希望构建一个浪漫而孤独的生长空间,就像在地球上遥望巨大的月球一般,日复 一日生生不息,而这背后让我们得以生存的氧气是源自植物的 光合作用,是生命让我们拥有了这份感受。所以我们选择一个很专业却又稀疏平常的词“光合作用”代表 我们,英 文选择SPACE GROW (空间站种植)的概念合理化 我们的想象,希望自由种植速度和我们发展一样未来可期。
    设计说明 | Design Instruction
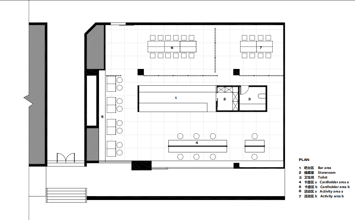
  • 在他们不断的实验中,他们懂得怎样把知识储存在空间本身的结构里,把思想永久凝聚成光格。 ——《2001:太空漫游》 未来发生于现在。 当我们打破时间、空间,去触摸所谓幻想,那么永恒已经到来。启动一切的按钮,就藏在Gravitation Space。 01新生 在电影《2001:太空漫游》中,一块黑石不期而现,它蕴藏着一股神秘的力量,引领人类走向新的进化。 我们将此定义为新生而不是初生,是不希望赋予“起源”固定的说辞,而把这个概念交给每个人自行联想。创造Gravitation Space,就是在创造新的自己。 以电影中的黑石为灵感来源,选用黑色长方体造设吧台,分割空间,同时放置这样一个假定:到达Gravitation Space,就触及一次“进化新生”的开关。作为初创品牌,Gravitation Coffee并非单纯意义上的“一家咖啡店的诞生”,是基于人际环境蜕变后品牌理念的初次构建,这是我们空间呈现的第一要义。 除却吧台区,其他区域相对自由,我们摒弃绝对,是想探求更深层次的漫无边际。新生,从未停止。 02解构 电影中,人类文明在“黑石”指点下飞速进化,直至进入浩瀚宇宙探索奥秘,我们不必去探讨可知论或是不可知论的观点,将目光聚焦于数学上的有限空间,Gravitation Space,是否能成为无边际的空间? 雅克·德里达提出“解构”概念,提倡去中心,去权威,对既定秩序、定势思维、甚至是先有人类的一切知识体系加以拆解和重建。我们在此引入解构的原理,是希望释放形式和体量的无限可能,这是一个不被定义的空间。 将旋转的形态融入开闭的设计中,创造一种全新的空间体验,瞬间的割裂感让人产生遁入时空隧道的错觉,在这条连结过去、现在与未来的通道中来去自由。顶面做了块状布局,相互独立又同气连枝,同时运用灯光的变化来加强观感的跳跃,充分彰显场景的多元性。 在这种趣味交互中,完成了空间的重塑、功能的延伸以及情感的翻覆。 03自我 《2001:太空漫游》在宏大深邃的体系中讨论人类文明的起源与走向,一个最朴素的问题由此产生:超越时间与空间,人类孜孜以求的到底是什么? 这听起来似乎是个哲学问题,但我们想从生活化的角度切入去窥探本质,一杯咖啡、一句对白、一场展览,Gravitation Space不仅仅是个载体,更像是一个指路者,如同电影中的“黑石”,带领我们参与其中,找到自己的存在。 思想的漫游,终究要回归自我。这种自我并不超脱于物质而存在,在真实的物质世界,于社交领域内彼此试探、回应,如同电影所说“把思想永久凝聚成光格”,那就是Gravitation Space存在的意义。 后记 《小王子》里写:“对于未来,你的任务不是去预知它,而是去启动它。”Gravitation Space《2001:太空漫游》概念店,未来正在发生。
  • 图片
  • 图片
  • 图片
  • 图片
  • 图片
  • 图片
  • 图片
  • 图片
  • 图片
  • 图片
  • 图片
  • 图片
  • 图片
  • 图片
  • 图片
  • 图片
  • 图片
  • 图片
  • 图片
  • 图片
  • 图片
  • 图片
  • 图片
  • 图片
  • 图片
  • 图片
  • 图片
  • 图片
  • 图片
  • 图片
  • 图片
  • 图片
  • 图片
  • 图片
  • 图片
  • 图片
  • 图片
  • 图片
  • 图片
  • 图片
  • 图片
  • 图片
  • 图片
  • 图片
  • 图片
  • 上一个 下一个
    《金腾奖优秀作品年鉴》 私宅丨地产丨餐饮丨酒店丨办公丨商业丨公共丨产品丨公益丨人气 jintengAWARD(小金_金腾奖组委会) 广州市海珠区琶洲大道68号华新中心21楼
    金腾奖视频号 金腾奖小红书号 监制:闫虹
    统筹:吴佳佳
    运营:朱倩仪 王赫萱 张芷莹 胡岚恩 小金
    新媒体:王贝贝 严洁 侯乐 鹅姐
    经纪:刘译遥 石征 曹凯月
    技术:张桐 黄天佑
    最终解释权归金腾奖主办方所有