Longhu · Stack odel room in front of the mountain
作品详情
  • Details of the work 标题横线
    头像或者logo
    图片 重庆研质共设建筑设计 贰拾柒设计经纪特约推荐
    城市:重庆
    公司:重庆研质共设建筑设计
    参赛作品: 龙湖·山前叠拼样板间
    空间类型:公寓(150㎡以下)
    个人/公司简介:
    研质共设以创新为理念构建多元化设计。作品思考当代、探索未来,团队成员具有丰富的设计经验及前瞻设计理念。提供酒店、会所、商业空间等多领域的综合室内设计服务及软装、艺术品解决方案,用精准创新的理念及全面细致的服务营造多元的艺术空间。
    设计说明 | Design Instruction
  • 在“山城”重庆,“山居”始终是深入城市灵髓的自然生活理想,静心以服四季之气象,归意安赏异域之奇珍。设计以“自然”为主题,以开阔的视野将绿意与山脉融入室内空间,保障居住私密性的同时,突破内外界限,模糊空间,嵌入木制品家具,厚重感的物件,以原木色为主调配合自然,形成万物自然,和谐一体之景象,使得天光、雨水、温度与清新流动的空气都变得可观、可感,户外庭院也成为家庭场景的自然延伸。绿意相融,地气相通,提升居住品质,踏入家中一瞬,只见树影婆娑,南山静徉,窗外幽水竹深,静怡平和,漫向山林深处。居在山,享在山,念在山,诗意般艺术的生活触手可及,真正做到离尘不离城,淋漓地拥抱大自然的慷慨赠予。 自然和艺术,像是互相藏躲,可是出乎意料的,又遇在一起,当我们把自然与艺术带入空间,诗意在每天的生活中都能感受。——歌德《自然和艺术》 设计师借助自然的神功与其自身的美学底蕴,采用开放与围合的设计手段,借助自然的光影,构建出充满自然美的家,此时的家不仅仅是生活的地方,而是一件充满生活气息的艺术品,植物在生长,光在生长,人也在生长。 研质共设以创新为理念构建多元化设计。作品思考当代、探索未来,团队成员具有丰富的设计经验及前瞻设计理念。提供酒店、会所、商业空间等多领域的综合室内设计服务及软装、艺术品解决方案,用精准创新的理念及全面细致的服务营造多元的艺术空间。
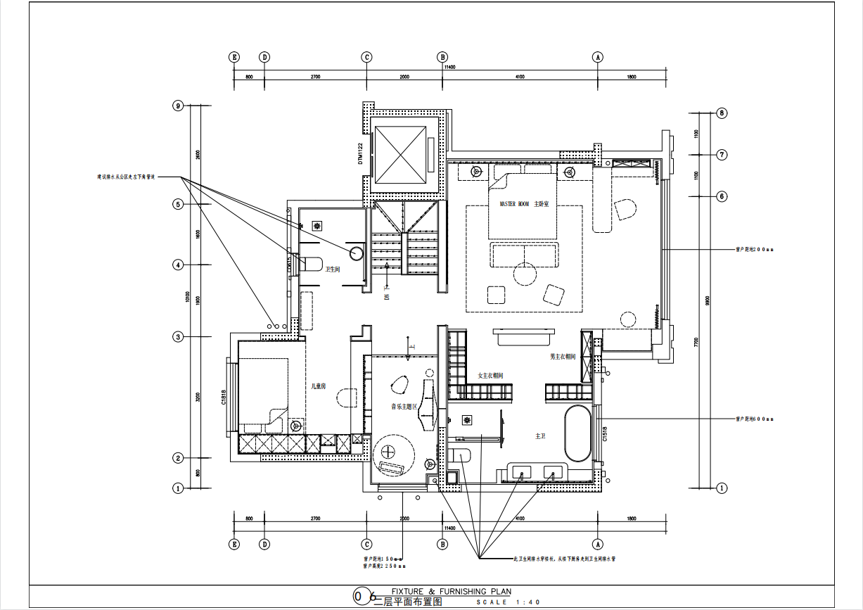
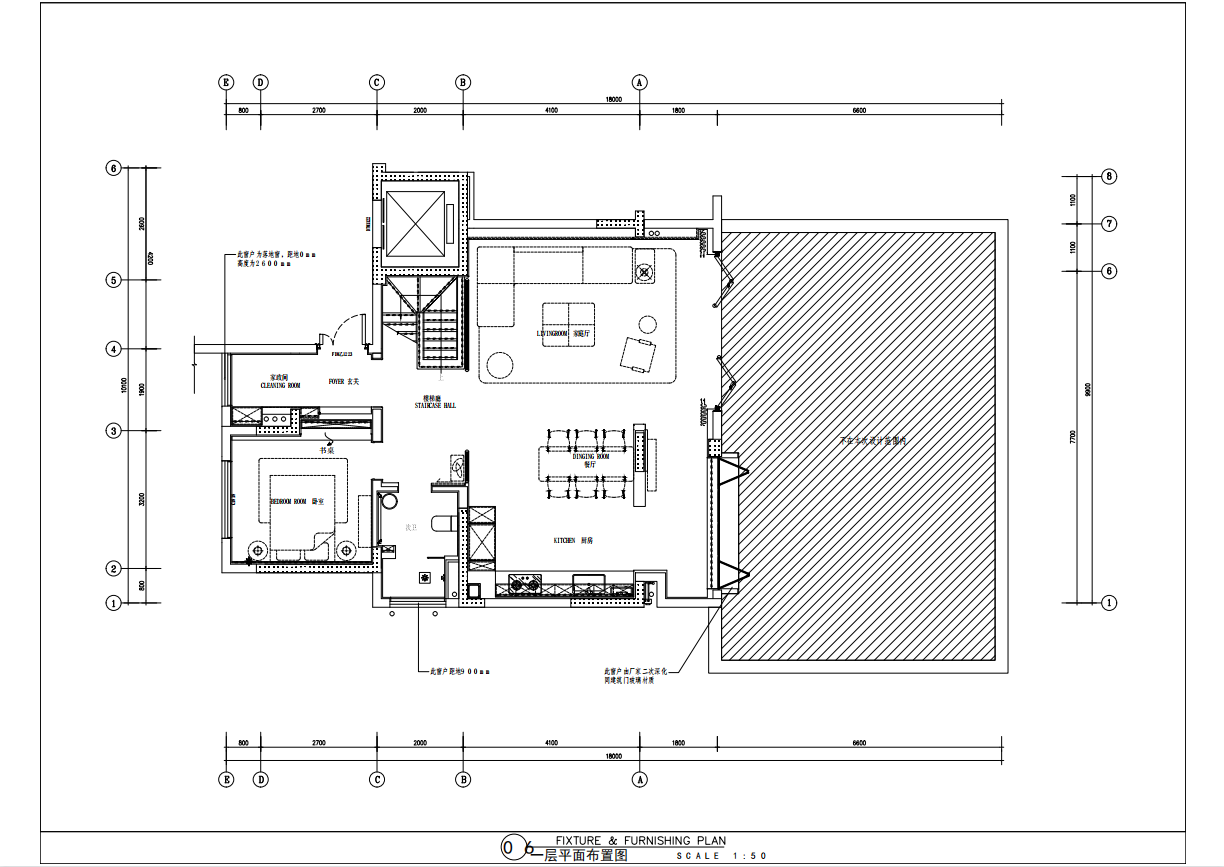
  • 图片
  • 图片
  • 图片
  • 图片
  • 图片
  • 图片
  • 图片
  • 图片
  • 图片
  • 图片
  • 图片
  • 图片
  • 图片
  • 图片
  • 图片
  • 图片
  • 图片
  • 图片
  • 图片
  • 图片
  • 图片
  • 上一个 下一个
    《金腾奖优秀作品年鉴》 私宅丨地产丨餐饮丨酒店丨办公丨商业丨公共丨产品丨公益丨人气 jintengAWARD(小金_金腾奖组委会) 广州市海珠区琶洲大道68号华新中心21楼
    金腾奖视频号 金腾奖小红书号 监制:闫虹
    统筹:吴佳佳
    运营:朱倩仪 王赫萱 张芷莹 胡岚恩 小金
    新媒体:王贝贝 严洁 侯乐 鹅姐
    经纪:刘译遥 石征 曹凯月
    技术:张桐 黄天佑
    最终解释权归金腾奖主办方所有