The rhythm of life
作品详情
  • Details of the work 标题横线
    头像或者logo
    图片 不器空间设计事务所
    城市:苏州
    公司: 不器空间设计事务所
    参赛作品: 生活旋律
    空间类型:公寓(150㎡以下)
    个人/公司简介:
    不器 器者,形也 不器,不拘于形,形之有度 不器空间设计事务所成立于2021年10月 我们是一家以原创为主的新生代创意型设计公司 坚持新工艺的不断研发和实景1:1落地 通过科学性的市场调查,详细的数据分析 为每个不器家梳理生活与设计的关系
    设计说明 | Design Instruction
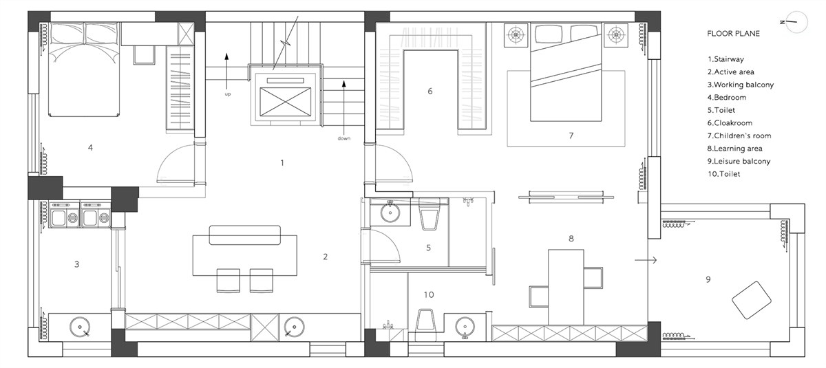
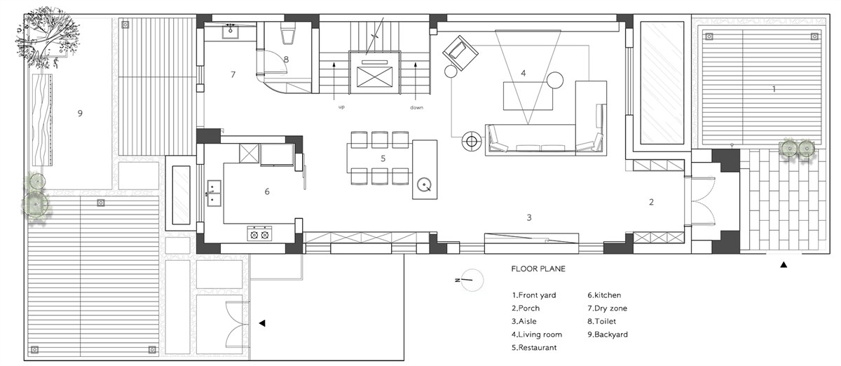
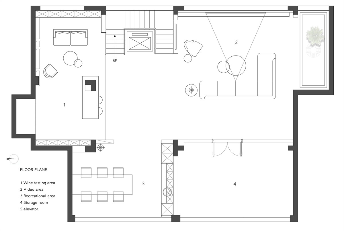
  • 我尝试所有方面的可能性, 包括技术、形式、材料和功能等方面, 但我最关心的仍是人的情感因素。 —— 娜娜·第赛尔 久居城市的现代人,拥有着各自不同的人生轨迹,但对于“家”的向往都是相似的,在回归各自居住空间后,卸下疲惫、洗净铅华后才是最真实的自己。 不器空间设计通过对居住者内心世界的洞察,明确了内在精神追求,从色调、层次、明暗、尺度及材质等角度,去营造沉稳、静谧的空间记忆,予以居住者一种舒适、自由的居住体验。 源于对城市精英圈层的深层次理解,在这400m²住宅的室内设计中,设计师把家庭成员之间的互动、以及社交、私密性作为设计重点。采用不同材质去构建生活公区、个人兴趣区、睡眠私区,各区域之间相对独立又完美融合,带来了未来生活方式的创新体验。 整个空间的材质选择遵循功能和搭配的和谐相处,充满质感的木饰面、天然肌理的微水泥,以及朴素的石材,形成时光静默的画面感,让人产生一种回归生活最初的纯粹。 徜徉在阳光中的客厅沙发区,方寸之内洒满了生活的诗意,清晨时饮咖阅读或午后三两好友的甜点闲叙,不经意间感受无限美好。 借助功能布局、动线调整,将客厅、餐厅、水吧以及厨房等活动尺度最大化,紧邻水吧的长方形餐桌,与独立完善的厨房贯通,契合当下家庭生活与社交需求。 各生活场景的自由开合,家庭成员独处或是聚合,视线内均能通透开阔,完美成就了家庭生活与社交欢聚的主场。 负一层是整个奢宅的第二会客厅,纳入影音区、品酒区、茗茶区、休闲区等多元化场景模式,延展出生活中的更多可能性,创造惬意、愉悦的感官氛围和兴趣体验。 设计上不去框定个人兴趣区域,可家庭互动、休闲娱乐,或兴趣收藏,亦或是个人独处,留出一处纯粹自我的心灵天地,背靠沙发感受阳光,让目光聚焦于独我的世界。 基于不同的房屋条件,并充分考量居住者未来与空间的共处与互动,将二、三层作为家庭成员学习工作及休息区。 步入二层,宽阔的走廊最大化采光,以及色彩、材质、造型等外在形式的呈现,让居住者居家时也能够拥有一处舒展的学习或办公环境,亦实现收纳功能的补充。 以大面积留白,将空间还原至极简状态。环视内外,整个空间以一种静谧的姿态,徐徐展开生活的日常画卷。 每一位居住者对空间的诉求都不同,自然而然,每间卧室所适配的格局、材质也会有所差异化。 留白处理的主卧空间,给人一种静谧的安定感。天花采用斜顶设计,与光影的交叠,形成了舒适的美学感官体验。漫步于其中,卸下疲惫,享受身心放空。 主卧的亮点之一,体现在采用循环动线,使得衣帽间与卫浴区之间的动线切换更加便捷自如。 卫生间设计了充足的储物空间,简约的大理石材质结合镜子的视觉延伸,营造出空间的通透感。每一处细节的精心雕琢,实现了审美与实用的平衡。 居所是一家人生活的主场,链接着过往记忆、当下时光与未来畅想,情感与温度是永恒的主题。在生活场景、互动画面的丰富下,描绘出渐入佳境的诗意新居
  • 图片
  • 图片
  • 图片
  • 图片
  • 图片
  • 图片
  • 图片
  • 图片
  • 图片
  • 图片
  • 图片
  • 图片
  • 图片
  • 图片
  • 图片
  • 图片
  • 图片
  • 图片
  • 图片
  • 图片
  • 图片
  • 图片
  • 图片
  • 图片
  • 图片
  • 图片
  • 图片
  • 图片
  • 图片
  • 图片
  • 图片
  • 图片
  • 图片
  • 图片
  • 图片
  • 图片
  • 图片
  • 图片
  • 图片
  • 图片
  • 图片
  • 图片
  • 图片
  • 图片
  • 图片
  • 图片
  • 图片
  • 图片
  • 图片
  • 上一个 下一个
    《金腾奖优秀作品年鉴》 私宅丨地产丨餐饮丨酒店丨办公丨商业丨公共丨产品丨公益丨人气 jintengAWARD(小金_金腾奖组委会) 广州市海珠区琶洲大道68号华新中心21楼
    金腾奖视频号 金腾奖小红书号 监制:闫虹
    统筹:吴佳佳
    运营:朱倩仪 王赫萱 张芷莹 胡岚恩 小金
    新媒体:王贝贝 严洁 侯乐 鹅姐
    经纪:刘译遥 石征 曹凯月
    技术:张桐 黄天佑
    最终解释权归金腾奖主办方所有