Decorative design of Four Seasons pavilion • Run Restaurant
作品详情
  • Details of the work 标题横线
    头像或者logo
    图片 广东朔土雕塑工程有限公司
    城市:广州
    公司:广东朔土雕塑工程有限公司
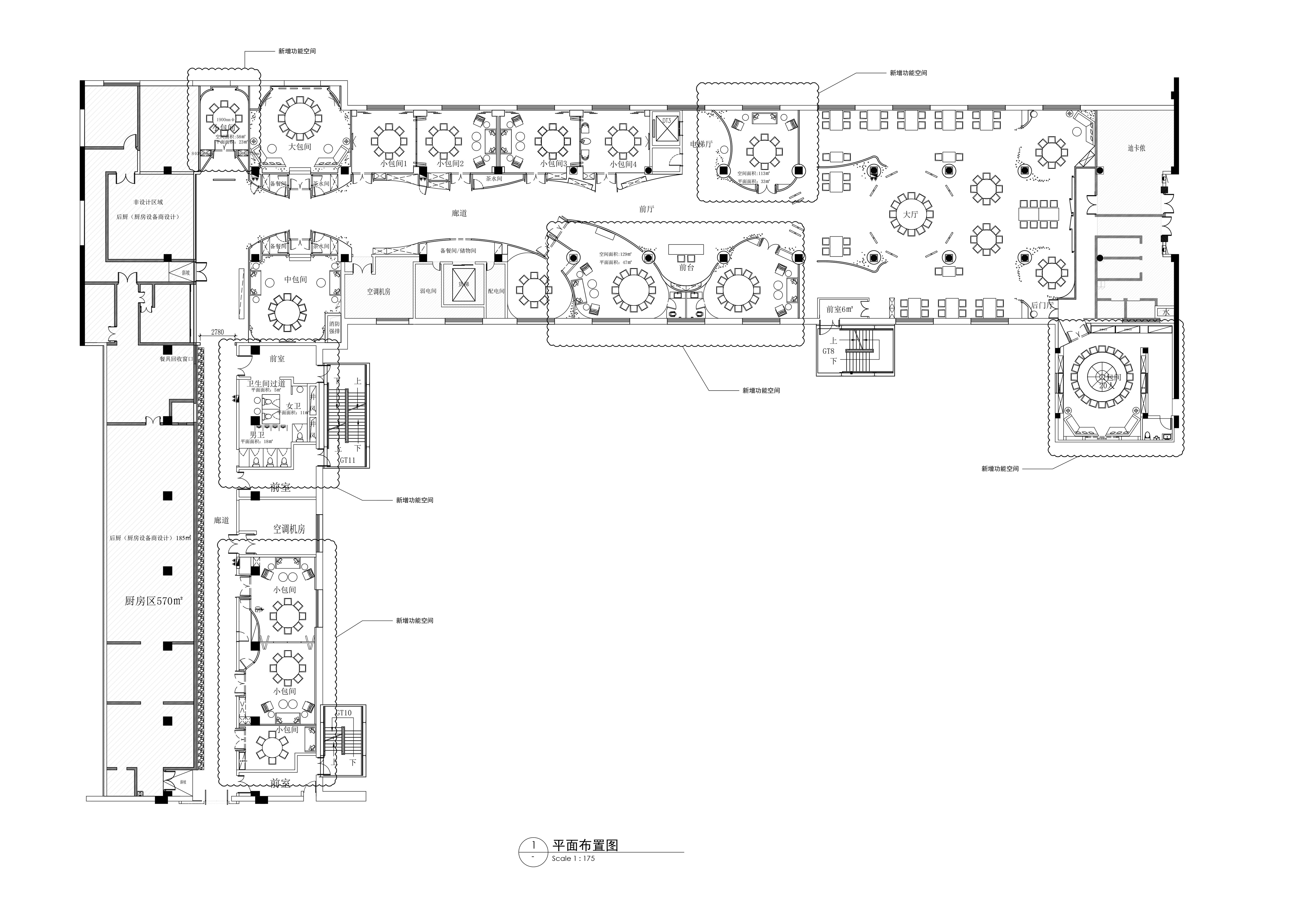
    参赛作品: 四季小馆 · 润装饰设计工程项目
    空间类型:民宿
    个人/公司简介:
    【东方朔土 · “塑”造艺术】 WISELAND朔土艺术起于雕塑,不止于雕塑。 团队于2012年建立至今,扎根于全属性类环境设计,由外至里,着眼未来,前行于公共艺术、室内设计、建筑规划、展示陈列等专业领域,坚持艺术相通共融的理念,探寻地将雕塑的设计思维语言运用于各类型空间,似雕塑艺品精雕细琢,实现公艺单品与空间作品之间的自由切换。
    设计说明 | Design Instruction
  • 春始,草木萌动 生木者,必水也 润,水曰润下 润,饰也 以水兴润,润泽万物。 四季丰润主打的中国菜系无疑是对传统文化的一脉传承,中华饮食文化之精髓,延续中华烹饪文化,让食客坐享传统精华的润泽。中华文化传承正如春风化雨一样润泽人民,润泽千家万户。 虚实之影 润,静默之态,定格天地间,静于山水之境,拂水面微波幻影,泛一叶扁舟,匿诗意之间,润形世界的倒影,柔和其线条,色泽,体块,化之朦胧于流水上,润绘出虚与实的桃源意境...... 水之态 水是“润”的载体,流水,为净,为静,为镜,净化世间污尘,静抚世间浮躁,镜映世间之影,幻化 “水”的意向于空间中,营造一种静谧、诗意的环境氛围。 润之意 润,形水也,润泽万物、丰泽世间,是天地万物循环往复中生长之魂,春风化雨,细致无声......
  • 图片
  • 图片
  • 图片
  • 图片
  • 图片
  • 图片
  • 图片
  • 图片
  • 图片
  • 图片
  • 图片
  • 图片
  • 图片
  • 图片
  • 上一个 下一个
    《金腾奖优秀作品年鉴》 私宅丨地产丨餐饮丨酒店丨办公丨商业丨公共丨产品丨公益丨人气 jintengAWARD(小金_金腾奖组委会) 广州市海珠区琶洲大道68号华新中心21楼
    金腾奖视频号 金腾奖小红书号 监制:闫虹
    统筹:吴佳佳
    运营:朱倩仪 王赫萱 张芷莹 胡岚恩 小金
    新媒体:王贝贝 严洁 侯乐 鹅姐
    经纪:刘译遥 石征 曹凯月
    技术:张桐 黄天佑
    最终解释权归金腾奖主办方所有