望舒
作品详情
  • Details of the work 标题横线
    头像或者logo
    图片 行十设计
    城市:北京
    公司:行十设计
    参赛作品: 望舒
    空间类型:公寓(150㎡以下)
    个人/公司简介:
    TEN DESIGN 行十设计立志创作兼备实用性、手工感、人性关怀、经得起考验的品质空间。实践着将中国人的传统观念与生活方式,在现代空间中进行内向转译的设计方向。作品涉及室内、景观、产品、艺术陈设等领域。
    设计说明 | Design Instruction
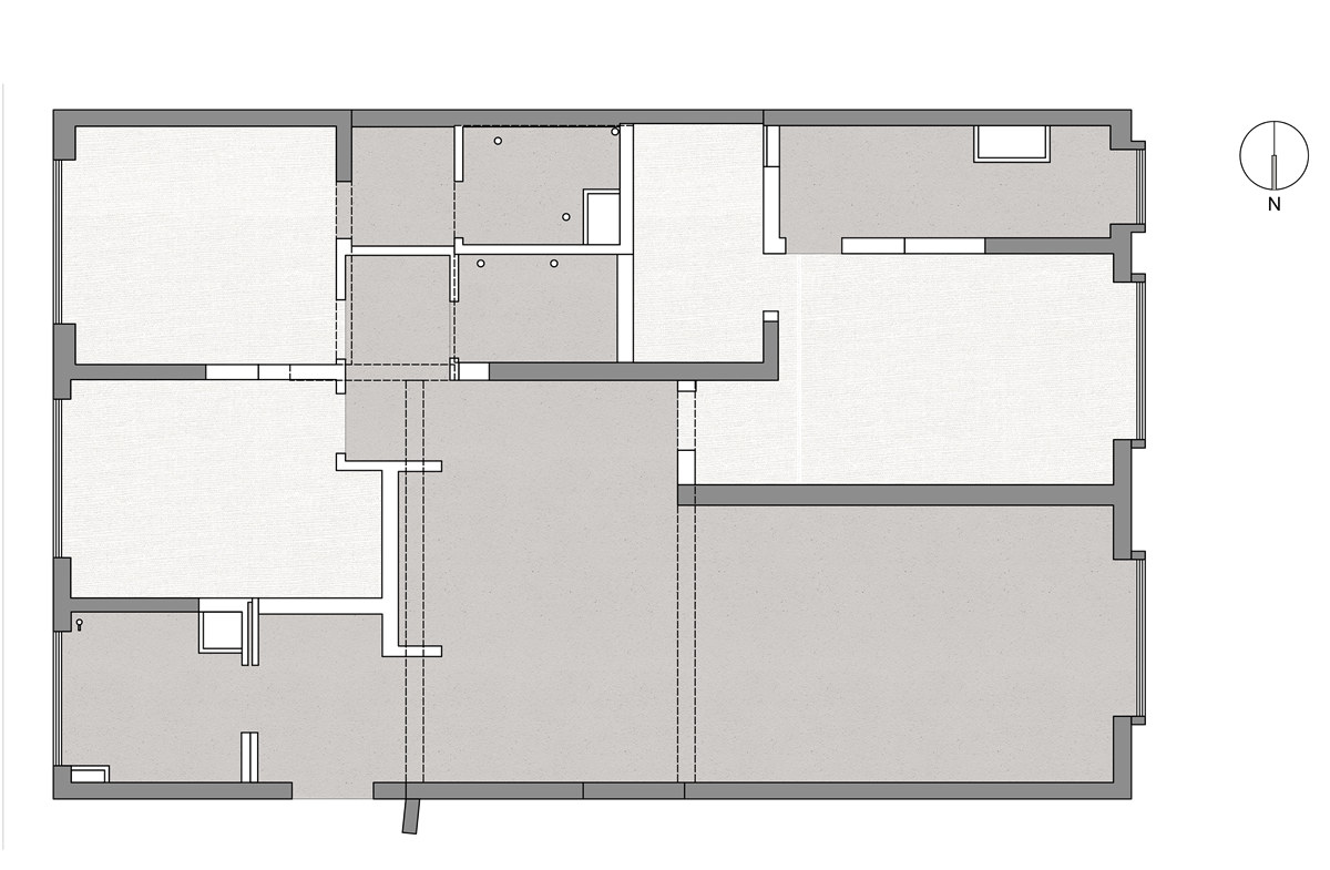
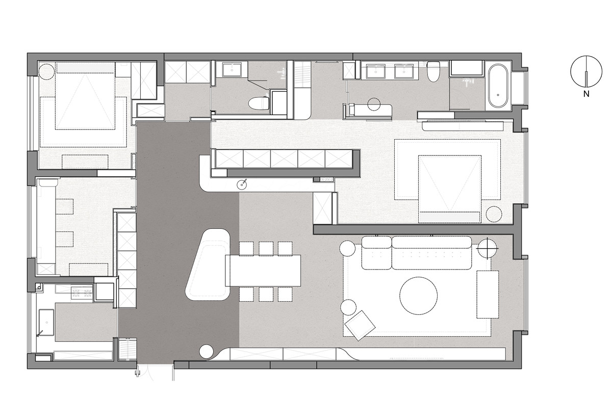
  • 本期屋主是一对在北京工作的年轻夫妻,家中还有一位可爱的猫咪成员,这套房子会作为他们 未来 3-5 年的居所。屋主夫妻平时的工作强度较高,所以他们希望家足够的舒适明亮,可以使 忙碌了一天的身心得到放松。 以屋主人的需求为切入点,将房屋原始较为封闭的玄关进行拆改,整屋变得通透而开阔;在视 觉体验上,屋主偏爱清爽治愈的奶油风,所以我们用奶油白铺满整屋,带来视觉上的温暖和质 感;重新整合洄游动线,屋主夫妻可以住得满意舒心,也合理照顾到“猫主子”的需求;平衡好工 作与生活是屋主的生活理念,“日出而作,日落而息”的中国传统生活方式在现代生活中仍可沿用, 当黎明到来时投身到事业中,当月亮升起时与爱人用心生活。
  • 图片
  • 图片
  • 图片
  • 图片
  • 图片
  • 图片
  • 图片
  • 图片
  • 图片
  • 图片
  • 图片
  • 图片
  • 图片
  • 图片
  • 图片
  • 图片
  • 图片
  • 图片
  • 图片
  • 图片
  • 图片
  • 图片
  • 图片
  • 图片
  • 图片
  • 图片
  • 图片
  • 图片
  • 图片
  • 图片
  • 图片
  • 图片
  • 图片
  • 图片
  • 图片
  • 图片
  • 图片
  • 图片
  • 图片
  • 图片
  • 图片
  • 图片
  • 图片
  • 图片
  • 图片
  • 图片
  • 图片
  • 图片
  • 图片
  • 图片
  • 图片
  • 图片
  • 图片
  • 图片
  • 上一个 下一个
    《金腾奖优秀作品年鉴》 私宅丨地产丨餐饮丨酒店丨办公丨商业丨公共丨产品丨公益丨人气 jintengAWARD(小金_金腾奖组委会) 广州市海珠区琶洲大道68号华新中心21楼
    金腾奖视频号 金腾奖小红书号 监制:闫虹
    统筹:吴佳佳
    运营:朱倩仪 王赫萱 张芷莹 胡岚恩 小金
    新媒体:王贝贝 严洁 侯乐 鹅姐
    经纪:刘译遥 石征 曹凯月
    技术:张桐 黄天佑
    最终解释权归金腾奖主办方所有