blue mountain residence
作品详情
  • Details of the work 标题横线
    头像或者logo
    图片 镇江佰壹装饰设计有限公司
    城市:镇江
    公司:镇江佰壹装饰设计有限公司
    参赛作品: 蓝山居
    空间类型:公寓(150㎡以下)
    个人/公司简介:
    佰壹营造是一家集室内设计、硬装施工、软装设计为一体化的专业设计公司。致力于为各类空间提供创新专业的整体设计和施工服务 ,对于每一个委托人都有属于自己的气质与诉求,站在专业角度通过对空间的设计,帮助他们找到想要的生活方式并创造舒适、宜居的高品质生活空间。
    设计说明 | Design Instruction
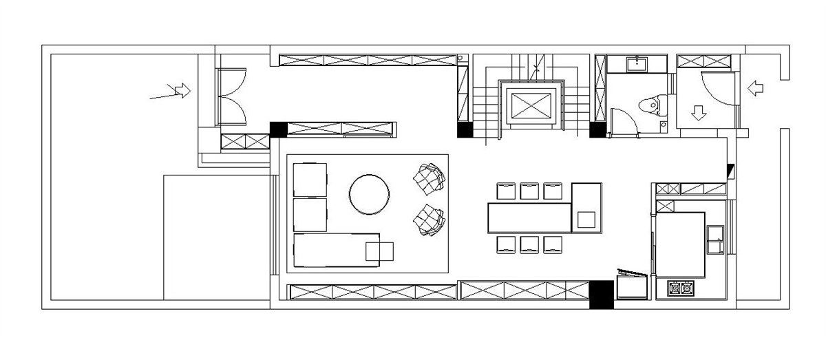
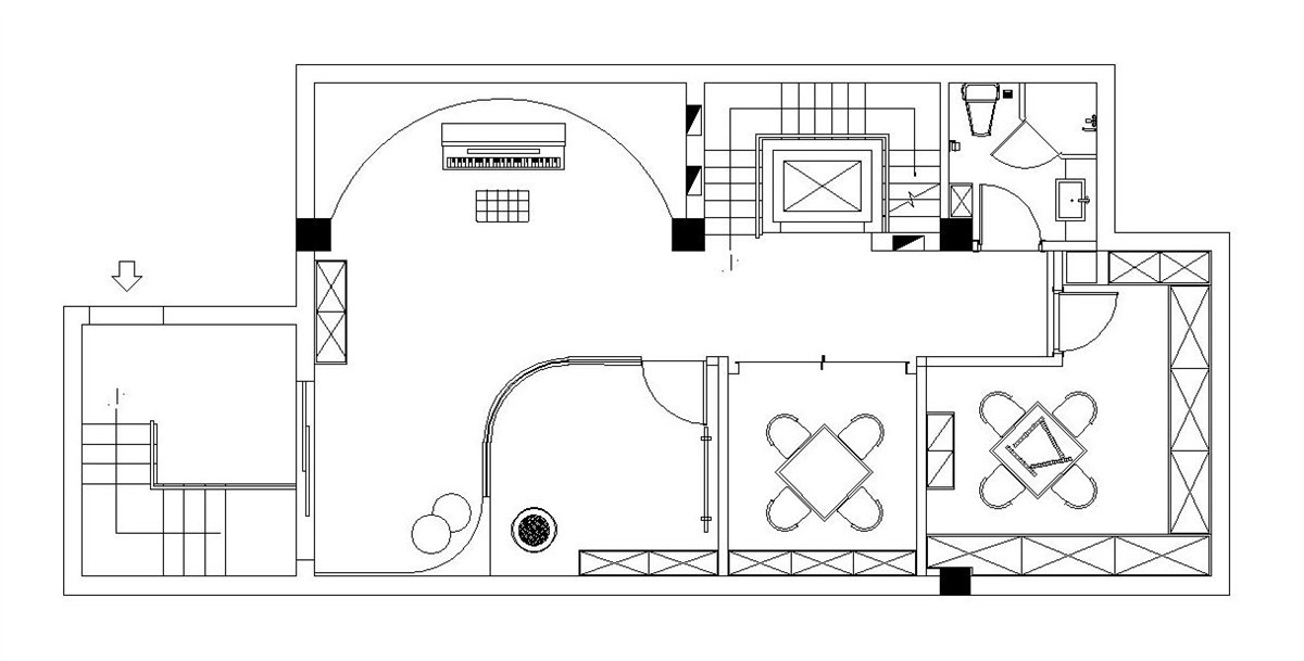
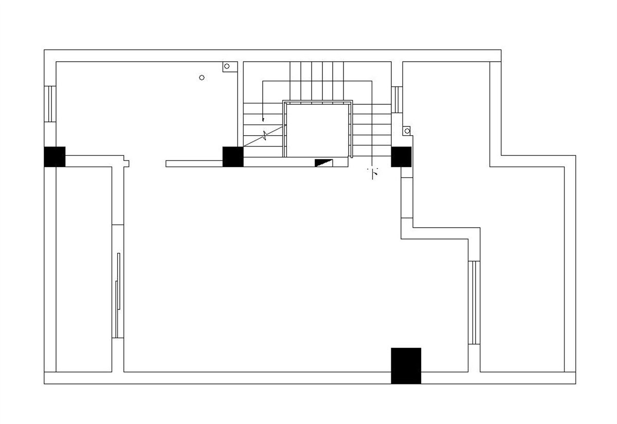
  • 家的空间美学从来没有固定的说法,心之所想,眼之所见,能触动心弦,就是你的标准。本案是一个四口之家,整体空间以简约、质感的现代风为主调,规划出每层的各自功能区域,提高实用性。同时增加电梯的使用,便于入住后的体验感和生活品质。客餐厅部分,增加储物空间面积,满足女业主中心厨房、岛台设计。二三楼卧室区域,重新分布格局,充分利用每个空间,满足其需求。、
  • 图片
  • 图片
  • 图片
  • 图片
  • 图片
  • 图片
  • 图片
  • 图片
  • 图片
  • 图片
  • 图片
  • 图片
  • 图片
  • 图片
  • 图片
  • 图片
  • 图片
  • 图片
  • 图片
  • 图片
  • 图片
  • 图片
  • 图片
  • 图片
  • 图片
  • 图片
  • 图片
  • 图片
  • 图片
  • 图片
  • 图片
  • 图片
  • 图片
  • 图片
  • 上一个 下一个
    《金腾奖优秀作品年鉴》 私宅丨地产丨餐饮丨酒店丨办公丨商业丨公共丨产品丨公益丨人气 jintengAWARD(小金_金腾奖组委会) 广州市海珠区琶洲大道68号华新中心21楼
    金腾奖视频号 金腾奖小红书号 监制:闫虹
    统筹:吴佳佳
    运营:朱倩仪 王赫萱 张芷莹 胡岚恩 小金
    新媒体:王贝贝 严洁 侯乐 鹅姐
    经纪:刘译遥 石征 曹凯月
    技术:张桐 黄天佑
    最终解释权归金腾奖主办方所有