Spring
作品详情
  • Details of the work 标题横线
    头像或者logo
    图片 长沙观迹设计有限公司
    城市:长沙
    公司:长沙观迹设计有限公司
    参赛作品: 陌上芳菲
    空间类型:公寓(150㎡以下)
    个人/公司简介:
    观迹设计有限公司是一个由设计驱动的创意团体,专注私宅设计领域,希望用细节温暖人心,用温柔的力量去解读空间里人与物、人与人的尺度关系,改善和提升人们的居住环境和居住的心境。 所获奖项: 2023 湖南TOP100设计年鉴菁英设计机构 2022十间坊城市最具设计价值机构 2021年卓群奖湖南十大优秀室内设计机构 2020-2021湖南设计机构总评榜TOP100
    设计说明 | Design Instruction
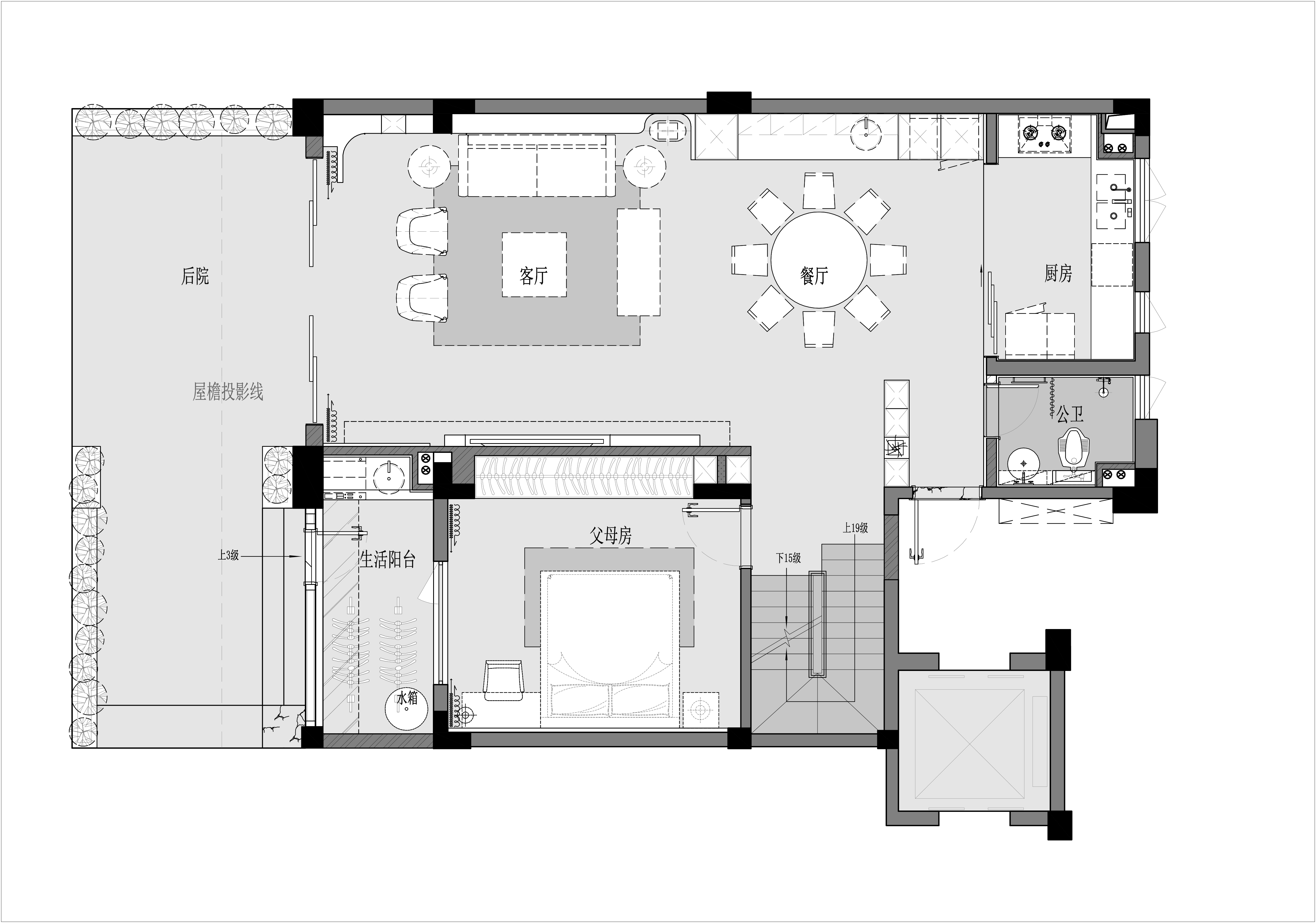
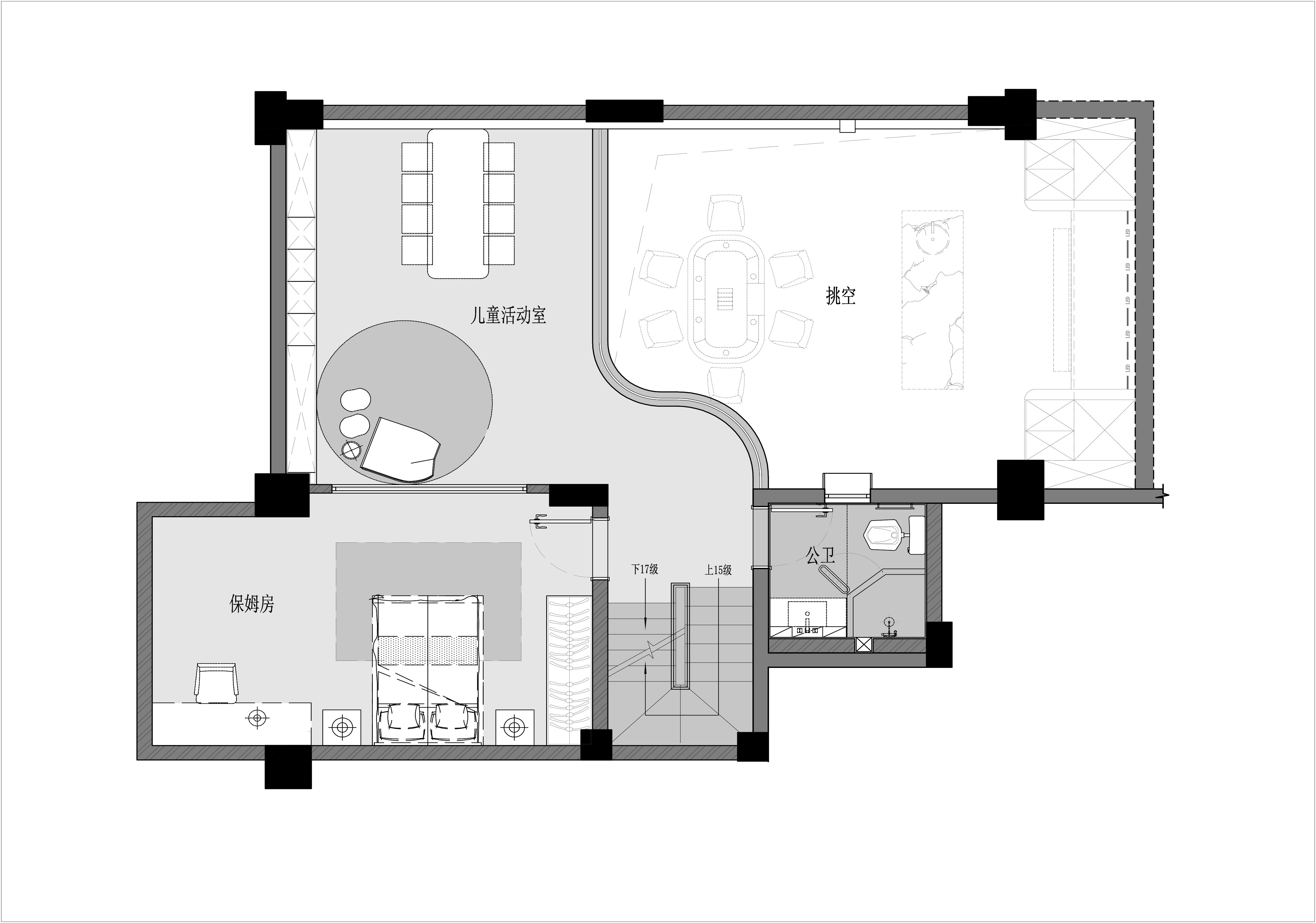
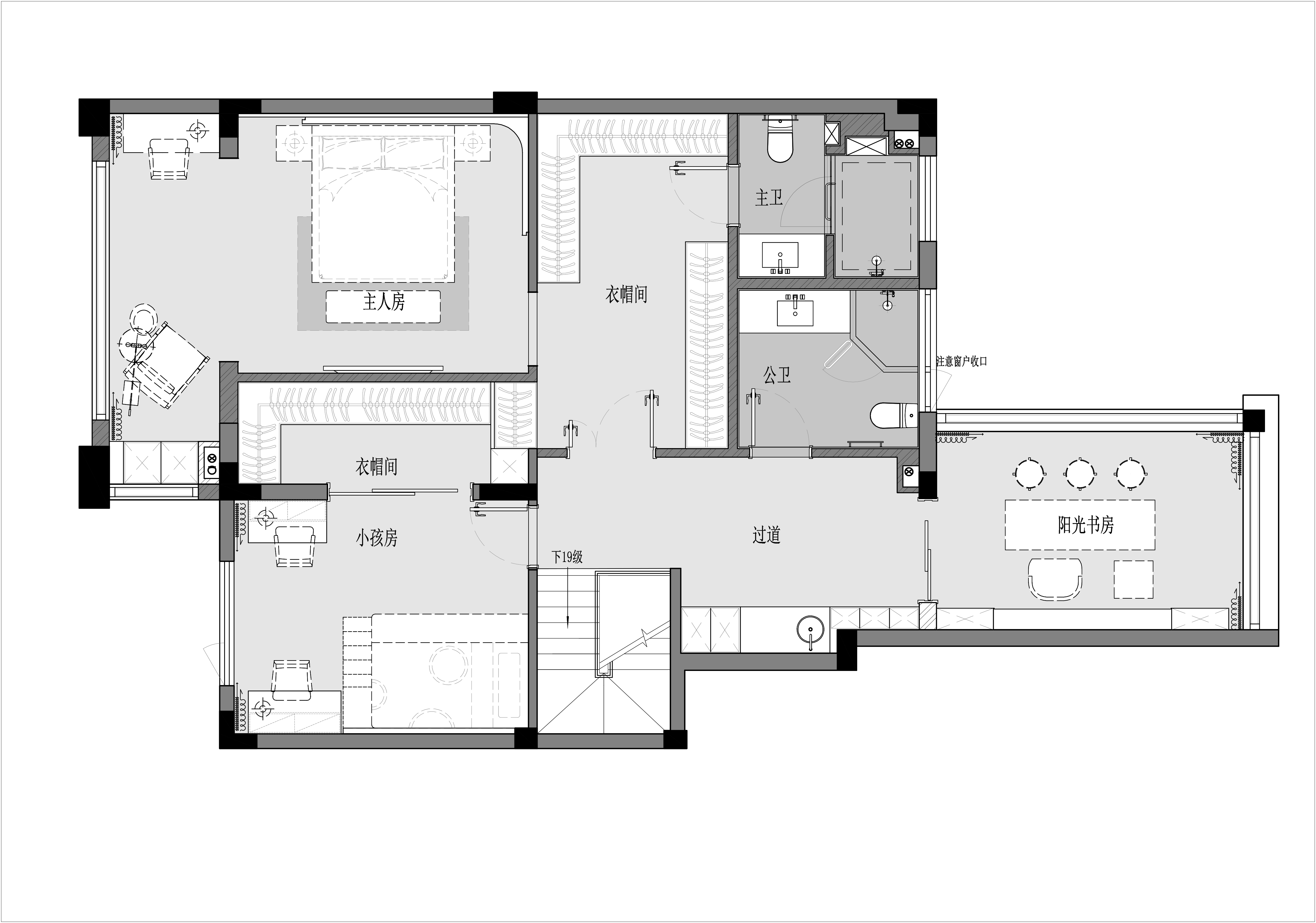
  • 80后青年人喜欢的中式是怎么样的?没有父辈们对于红木家具的执着追求,更多的是对于传统文化的认同感和归属感,我们的委托人很明确自己的喜好,不喜欢现代风格的硬朗,不喜欢美式欧式的繁杂,喜欢传统文化但是不要太过拘谨,所以呈现出来的最终感觉,是传统为骨,现代为皮的新中式风格。 “春草正芳菲,重楼启曙扉”,这套位于下叠的叠墅,赠送的地下室采光并不理想,我们在有限的条件里尽可能的保留了天井的自然采光。一个改造成生活阳台的同时,预留了一部分做为负一层保姆房的采光,另一个留为负二层会客厅的采光。将一层客厅拓宽,更接近花园,树影照进客厅,客厅四季风景如画,树影婆娑。二层的空间分为主卧套间,小孩房和书房,赠送的露台搭建改造成一个全景书房,这里是男主人的专属空间。地下室规划为整个家庭的休闲娱乐区域,负二层的会客厅,充分满足了业主的功能需求。和朋友聚会玩牌唱K,不影响楼上家人的生活。而负一层就留给两兄弟做娱乐游戏区。
  • 图片
  • 图片
  • 图片
  • 图片
  • 图片
  • 图片
  • 图片
  • 图片
  • 图片
  • 图片
  • 图片
  • 图片
  • 图片
  • 图片
  • 图片
  • 图片
  • 图片
  • 图片
  • 图片
  • 图片
  • 图片
  • 图片
  • 图片
  • 图片
  • 图片
  • 图片
  • 图片
  • 图片
  • 上一个 下一个
    《金腾奖优秀作品年鉴》 私宅丨地产丨餐饮丨酒店丨办公丨商业丨公共丨产品丨公益丨人气 jintengAWARD(小金_金腾奖组委会) 广州市海珠区琶洲大道68号华新中心21楼
    金腾奖视频号 金腾奖小红书号 监制:闫虹
    统筹:吴佳佳
    运营:朱倩仪 王赫萱 张芷莹 胡岚恩 小金
    新媒体:王贝贝 严洁 侯乐 鹅姐
    经纪:刘译遥 石征 曹凯月
    技术:张桐 黄天佑
    最终解释权归金腾奖主办方所有