Sunshine
作品详情
  • Details of the work 标题横线
    头像或者logo
    图片 长沙观迹设计有限公司
    城市:长沙
    公司:长沙观迹设计有限公司
    参赛作品: 沐光
    空间类型:公寓(150㎡以下)
    个人/公司简介:
    观迹设计有限公司是一个由设计驱动的创意团体,专注私宅设计领域,希望用细节温暖人心,用温柔的力量去解读空间里人与物、人与人的尺度关系,改善和提升人们的居住环境和居住的心境。 所获奖项: 2023 湖南TOP100设计年鉴菁英设计机构 2022十间坊城市最具设计价值机构 2021年卓群奖湖南十大优秀室内设计机构 2020-2021湖南设计机构总评榜TOP100
    设计说明 | Design Instruction
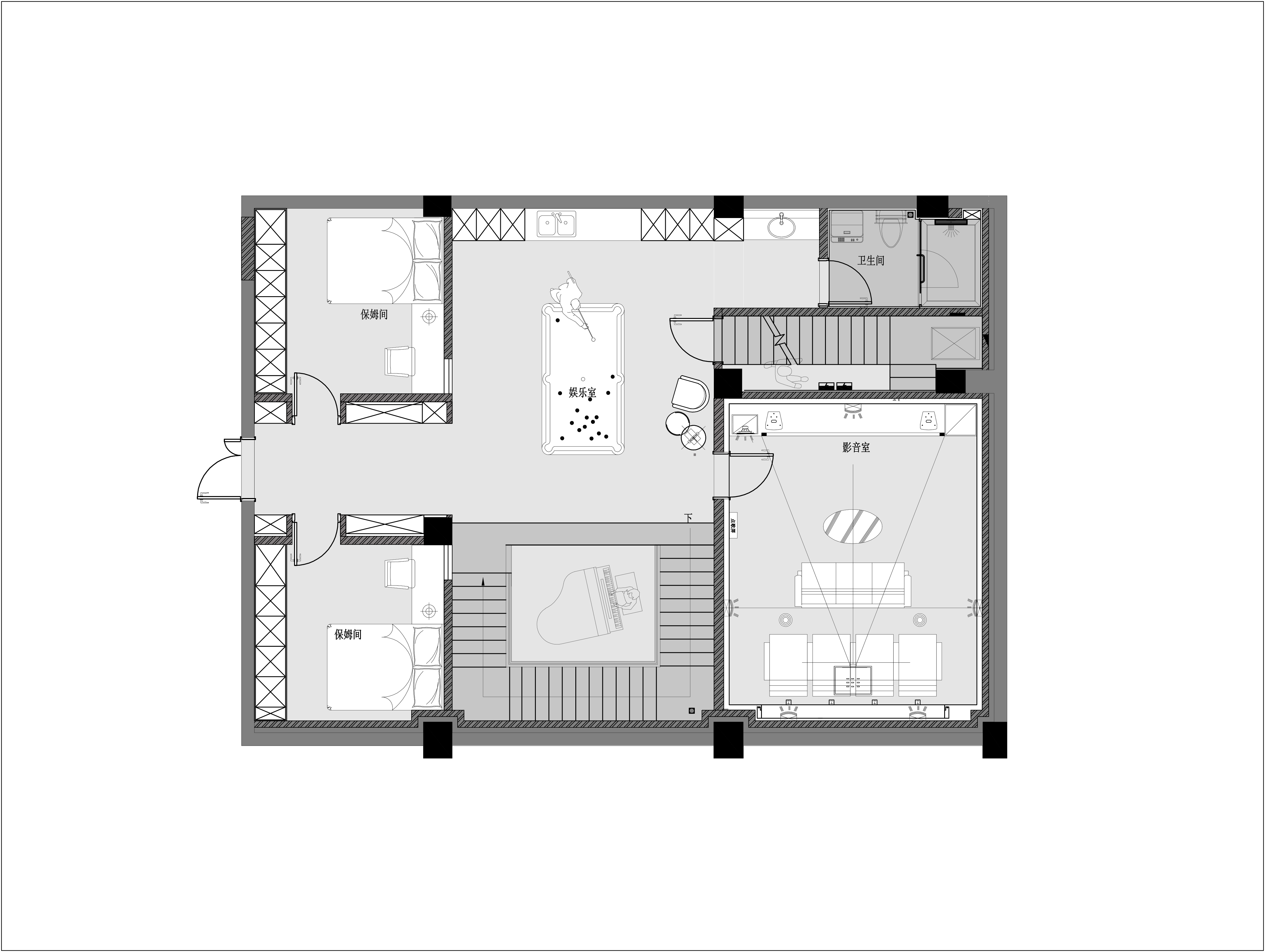
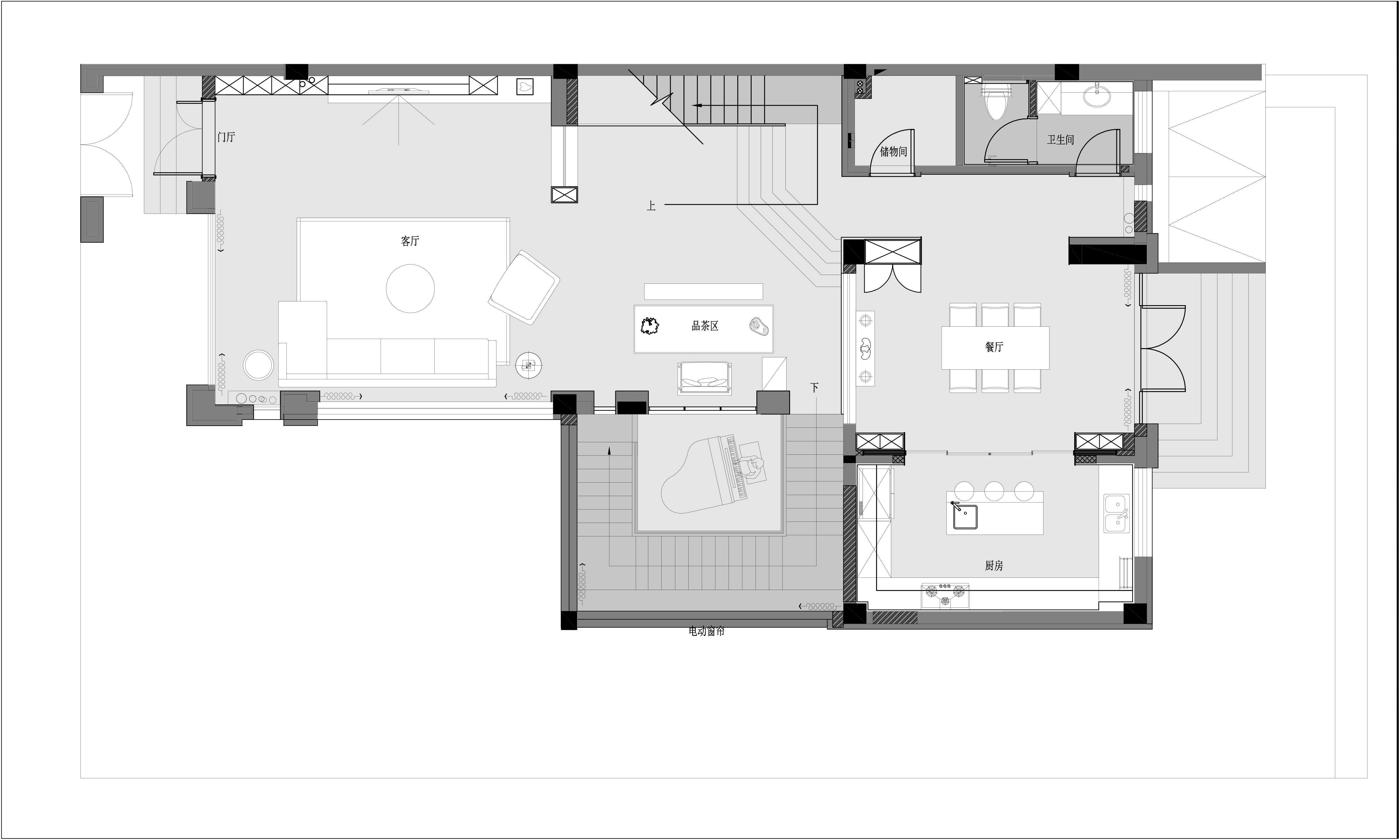
  • 我们的委托人是一个幸福美满的五口之家,他们对空间的要求是简单、开阔、舒适、适合孩子的学习和成长。 因为原建筑外观条件有限,所以我们先进行大刀阔斧的改造,将室内和户外做了更多的视觉上的连接,在处理客厅空间的时候,我们将沙发后面的墙全部打掉,引入户外景观。同时从中国传统建筑中提取到线条的元素,用以构思整个空间的视觉表达,并希望将“与光同住,沐在爱中”作为我们的设计主题。 客户日常进出的通道是连通车库的地下室,这里因为天井过小,导致光线昏暗,空气潮湿,所以我们拓展其建筑空间,上下延伸,创造了一个类似于下沉式庭院的楼梯间,让更多的光,能进入这里,解决采光和通风的需求,再辅以钢琴区、影音室的功能,增强这个空间的使用性。 一层原建筑客厅的动线局促,光线昏暗,视觉狭长,空间组织关系凌乱,通往地下室的楼梯也是狭窄、幽闭。不过因为我们改变了通往地下室的方式,就将那个原本很鸡肋的楼梯间利用起来做了一个储物空间。而新楼梯位置大面积的落地窗成为了整个空间的视觉中心。在这里设置了一个品茗的茶空间,使用虚实错落的表现手法,增添了整个空间的文化氛围,同时也满足了已经入乡随俗的主人家对本地饮茶文化的认同与需求。 餐厨空间,也是贯穿了开阔的理念,可以完全隐藏起来的口袋门,拓展了两个空间之间的联系,也增进了空间的互动关系。 二层整体规划为三个孩子的空间,将改造出来的中厅位置的上方区域,做了一个大开间的娱教区,孩子们可以在这里阅读、玩耍、交流。卧室的设计,我们根据三个女儿不同的生活习惯和喜好,为她们量身定制了三个完全不同的公主房。而这一层,也是应客户的要求,风格和表现上稍微略有不同,更为活泼、童趣和浪漫。 三层为主人的私属空间,一整层为夫妻二人服务。满足女主人对大卧室、大衣帽间、大卫生间的套间需求。超大的卧室及双人按摩冲浪浴缸是夫妻二人在繁忙的工作后,放松和休息的最佳场所,而豪华配置的衣帽间是女主人的最爱,精心设计的书房,不仅是男主人需要的独处空间,更是在深夜下班回家时尽量不打扰爱人的贴心。 在这里,每一个人都有着自己的空间,但同时每一个人也都跟家人有着亲密的联系,与光同住,沐在爱中。
  • 图片
  • 图片
  • 图片
  • 图片
  • 图片
  • 图片
  • 图片
  • 图片
  • 图片
  • 图片
  • 图片
  • 图片
  • 图片
  • 图片
  • 图片
  • 图片
  • 图片
  • 图片
  • 图片
  • 图片
  • 图片
  • 图片
  • 图片
  • 图片
  • 图片
  • 图片
  • 图片
  • 图片
  • 图片
  • 上一个 下一个
    《金腾奖优秀作品年鉴》 私宅丨地产丨餐饮丨酒店丨办公丨商业丨公共丨产品丨公益丨人气 jintengAWARD(小金_金腾奖组委会) 广州市海珠区琶洲大道68号华新中心21楼
    金腾奖视频号 金腾奖小红书号 监制:闫虹
    统筹:吴佳佳
    运营:朱倩仪 王赫萱 张芷莹 胡岚恩 小金
    新媒体:王贝贝 严洁 侯乐 鹅姐
    经纪:刘译遥 石征 曹凯月
    技术:张桐 黄天佑
    最终解释权归金腾奖主办方所有