Nyingchi nine thousand feet Tibetan restaurant
作品详情
  • Details of the work 标题横线
    头像或者logo
    图片 刘冰琳
    城市:成都
    公司: 独立设计师
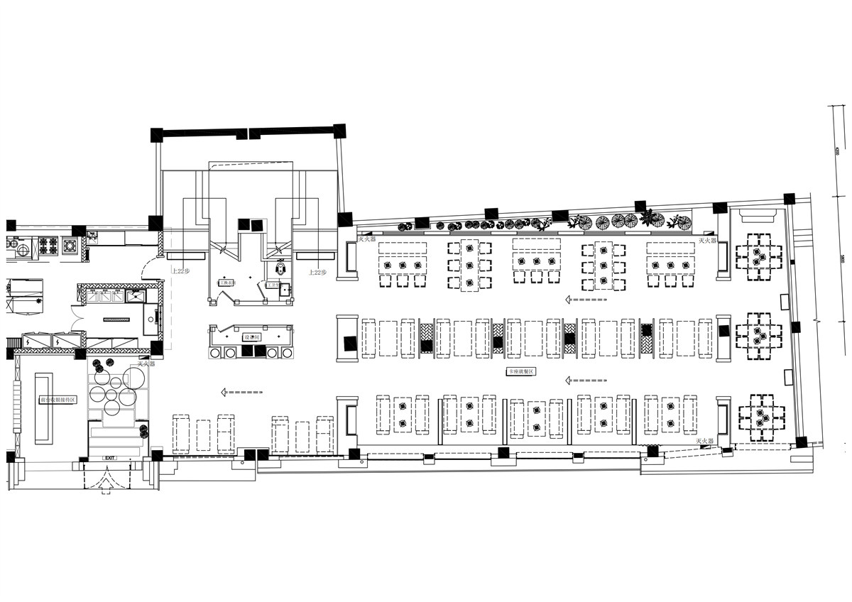
    参赛作品: 林芝九千尺藏式餐厅
    空间类型:民宿
    个人/公司简介:
    良好的艺术环境和扎实的绘画功底造就了她对艺术的热爱以及对空间设计的独特见解和高雅品位,主要案例:南延线蔚蓝卡地亚楼王三千平方私宅、蔚蓝卡地亚别墅私宅、麓湖麒麟荟私宅、三亚半岛云邸千万私宅、九龙仓御园样板间、雍雅河鲜会展店、雍雅河鲜桐梓林旗舰店、雍雅河鲜东坡店…… 中国建筑装饰协会高级室内建筑师。 法国ACAE建筑空间色彩研究协会大中华区副秘书长 荣获创新中国空间设计艺术大赛暨 “2020 年度中国十大杰出家装设计师”、“她设计奖·2020年度优秀软装设计奖”。 设计项目“UPARK公园+”荣获2018中国西部最具创新性商业项目奖、2018新浪四川微博口碑榜商业类最具创新奖,2017年度城南地产流量ICON期待盛业奖;雍雅河鲜桐梓林店黑珍珠二钻、入围法国LALISTE国际排行榜…… 书画作品在国际国内获金银铜等各大奖项60余次,其中参加美国菲尼克斯市“世界青年艺术家作品展”并获市民最收欢迎奖、美国菲尼克斯市姐妹城市艺术家联合作品展获最受欢迎奖、澳洲中国美术馆藏品展并被该馆收藏……
    设计说明 | Design Instruction
  • 林壑悠远,承千年原野苍茫,芝霭升腾,迎万世佛光吉祥。 聚藏地天地之食材,汇来客四面于八方。 山川峻逸,河谷涤荡,白云悠悠,人间无恙,此地九千尺,悠然神山上。 这是一个在西藏林芝的餐厅项目,分为两层,1000平方米。一层为开放式卡座空间,开拓年轻人的新餐饮业态,二层为私享包间,提升私密性应对传统藏餐习惯。我们将藏元素和林芝当地文化融入餐厅,简化藏式纹样,采用木制的窗格、门等使空间具有现代感,墙面采用夯土黄真石漆来营造传统藏房夯土墙的粗糙纹理质感,软装家具上我们结合当地面料和时下最新的面料碰撞,在色彩上烘托藏式氛围。饰品方面我们到很多藏族朋友的村庄收集和发掘当地很多传统器具,藏戏面具、氆氇、牦牛地毯和特有的名族服饰做装饰。
  • 图片
  • 图片
  • 图片
  • 图片
  • 图片
  • 图片
  • 图片
  • 图片
  • 图片
  • 图片
  • 图片
  • 图片
  • 图片
  • 图片
  • 图片
  • 图片
  • 图片
  • 图片
  • 图片
  • 图片
  • 图片
  • 图片
  • 图片
  • 图片
  • 图片
  • 图片
  • 图片
  • 图片
  • 上一个 下一个
    《金腾奖优秀作品年鉴》 私宅丨地产丨餐饮丨酒店丨办公丨商业丨公共丨产品丨公益丨人气 jintengAWARD(小金_金腾奖组委会) 广州市海珠区琶洲大道68号华新中心21楼
    金腾奖视频号 金腾奖小红书号 监制:闫虹
    统筹:吴佳佳
    运营:朱倩仪 王赫萱 张芷莹 胡岚恩 小金
    新媒体:王贝贝 严洁 侯乐 鹅姐
    经纪:刘译遥 石征 曹凯月
    技术:张桐 黄天佑
    最终解释权归金腾奖主办方所有