Warm light
作品详情
  • Details of the work 标题横线
    头像或者logo
    图片 刘冰琳
    城市:成都
    公司: 独立设计师
    参赛作品: 暖光
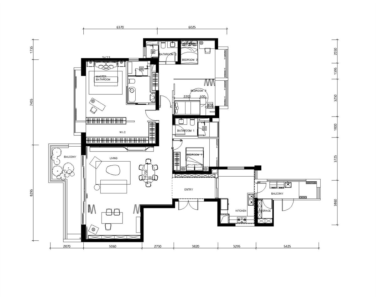
    空间类型:公寓(150㎡以下)
    个人/公司简介:
    良好的艺术环境和扎实的绘画功底造就了她对艺术的热爱以及对空间设计的独特见解和高雅品位,主要案例:南延线蔚蓝卡地亚楼王三千平方私宅、蔚蓝卡地亚别墅私宅、麓湖麒麟荟私宅、三亚半岛云邸千万私宅、九龙仓御园样板间、雍雅河鲜会展店、雍雅河鲜桐梓林旗舰店、雍雅河鲜东坡店…… 中国建筑装饰协会高级室内建筑师。 法国ACAE建筑空间色彩研究协会大中华区副秘书长 荣获创新中国空间设计艺术大赛暨 “2020 年度中国十大杰出家装设计师”、“她设计奖·2020年度优秀软装设计奖”。 设计项目“UPARK公园+”荣获2018中国西部最具创新性商业项目奖、2018新浪四川微博口碑榜商业类最具创新奖,2017年度城南地产流量ICON期待盛业奖;雍雅河鲜桐梓林店黑珍珠二钻、入围法国LALISTE国际排行榜…… 书画作品在国际国内获金银铜等各大奖项60余次,其中参加美国菲尼克斯市“世界青年艺术家作品展”并获市民最收欢迎奖、美国菲尼克斯市姐妹城市艺术家联合作品展获最受欢迎奖、澳洲中国美术馆藏品展并被该馆收藏……
    设计说明 | Design Instruction
  • 受到折衷主义的启发,遵循裸色方案和有机形状和纹理的平静效果,乳胶漆与复古人字拼木地板与墙面相结合。整体房间和自然光之间保持平衡,RH弧形沙发living圆形茶几弧形有趣的边几结合的落地灯、mogg设计感十足餐桌等家具并置为室内增添了复古和有趣的氛围,抱枕的橙色和墨绿色使空间色彩层次丰富,艺术家郭燕的雕塑“天使”更是彰显了室内空间灵气及独特。空间布局上将客餐厅和书房融为一体,最大程度的延长家庭成员的相处时间和方式,一家人其乐融融的在同一的无疑是最温暖美好的家的概念,雅致和谐的如同一首浪漫的乐曲。
  • 图片
  • 图片
  • 图片
  • 图片
  • 图片
  • 图片
  • 图片
  • 图片
  • 图片
  • 图片
  • 图片
  • 图片
  • 图片
  • 图片
  • 图片
  • 图片
  • 图片
  • 图片
  • 图片
  • 图片
  • 图片
  • 图片
  • 图片
  • 图片
  • 图片
  • 图片
  • 图片
  • 图片
  • 图片
  • 图片
  • 图片
  • 图片
  • 图片
  • 上一个 下一个
    《金腾奖优秀作品年鉴》 私宅丨地产丨餐饮丨酒店丨办公丨商业丨公共丨产品丨公益丨人气 jintengAWARD(小金_金腾奖组委会) 广州市海珠区琶洲大道68号华新中心21楼
    金腾奖视频号 金腾奖小红书号 监制:闫虹
    统筹:吴佳佳
    运营:朱倩仪 王赫萱 张芷莹 胡岚恩 小金
    新媒体:王贝贝 严洁 侯乐 鹅姐
    经纪:刘译遥 石征 曹凯月
    技术:张桐 黄天佑
    最终解释权归金腾奖主办方所有