Simplicity in luxury, at your own pace
作品详情
  • Details of the work 标题横线
    头像或者logo
    图片 奚媛媛
    城市:北京
    公司: 筑美壹号室内设计事务所
    参赛作品: 蕴奢于简,自在随心
    空间类型:公寓(150㎡以下)
    个人/公司简介:
    奚媛媛 筑美壹号室内设计事务所创始人及设计总监 自幼学习中国画、油画,具有传统艺术功底并熟悉西方艺术史。 2004年 就读苏州大学艺术设计专业,进行系统学习。 2013-2018年间 曾在米兰理工学院、RCA英国皇家艺术学院、东京艺术大学游学深造。 2013年 设计河狸家移动美甲车,重新定义移动互联网时代美业产业模式; 2014年 主持设计新加坡、洛杉矶等私宅项目; 2016年创立筑美壹号设计事务所,专注私宅和中小型商业空间设计,致力于研究室内设计的原创性与个人作品的辨识度,不一味追求风格,更加注重创新,缔造出具有文化内涵,个性鲜明的私人订制完美空间。 ———— 获奖记录 2022年 【为爱上色】中国大学生农村支教奖青年导师 2020年 HDA她设计奖年度优秀空间设计奖 2020年 【为爱上色】中国大学生农村支教奖青年导师 2019年 第九届“筑巢奖-普通户型类”优秀奖 2019年 40 UNDER 40 中国(北京)设计杰出青年(2019—2020) 2019年 中国建筑装饰协会及设计艺术博览会《华鼎奖》十大最具原创设计师 2019年 中国建筑装饰协会及设计艺术博览会《华鼎奖》住宅公寓空间类金奖 2019年 中国设计品牌榜年度中青年影响力设计师 2017年 40under40中国(北京)设计杰出青年 2016年 中国室内装饰协会居然杯中国室内设计新人奖 2016年 居然杯别墅设计项目最佳作品奖 2016年 金外滩别墅空间设计优秀方案奖 2015年 筑巢奖公寓型项目优秀作品奖 2015年 金外滩奖入围奖 2015年 北京居然之家居然杯新锐设计师奖 2014年 金外滩最佳作品提名 2014年 筑巢奖商业空间设计优秀作品奖 2014年 筑巢奖别墅空间设计优秀方案奖 2013年 美化家居别墅空间优秀作品奖 2013年 华鼎奖商业空间设计优秀方案奖 2012年 筑巢奖住宅空间优秀作品奖 2011年 北京居然之家居然杯十佳设计师
    设计说明 | Design Instruction
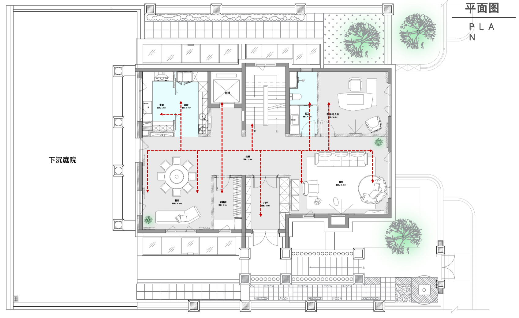
  • 本案是一套530平米的别墅设计,常住人口是夫妻二人,三个小朋友和保姆。虽然房子面积很大,但阁楼和地下室基本不太常用,主要活动区域集中在一层的共享空间,二层睡眠层和花园层的亲子空间。 整个房子我们是以屋主喜欢的白色系来呈现的,同时搭配一些明亮的彩色,让空间更加丰富。 设计的灵感来源于草间弥生和高迪的创作表达:波点、圆形、曲线......充满律动和前瞻性的设计手法被应用到私宅空间当中。一个有灵魂的空间,一定要有艺术的存在,并以自然而不着痕迹的方式表达出美学和生活。
  • 图片
  • 图片
  • 图片
  • 图片
  • 图片
  • 图片
  • 图片
  • 图片
  • 图片
  • 图片
  • 图片
  • 图片
  • 图片
  • 图片
  • 图片
  • 图片
  • 图片
  • 图片
  • 图片
  • 图片
  • 图片
  • 图片
  • 图片
  • 图片
  • 图片
  • 图片
  • 图片
  • 图片
  • 上一个 下一个
    《金腾奖优秀作品年鉴》 私宅丨地产丨餐饮丨酒店丨办公丨商业丨公共丨产品丨公益丨人气 jintengAWARD(小金_金腾奖组委会) 广州市海珠区琶洲大道68号华新中心21楼
    金腾奖视频号 金腾奖小红书号 监制:闫虹
    统筹:吴佳佳
    运营:朱倩仪 王赫萱 张芷莹 胡岚恩 小金
    新媒体:王贝贝 严洁 侯乐 鹅姐
    经纪:刘译遥 石征 曹凯月
    技术:张桐 黄天佑
    最终解释权归金腾奖主办方所有