Change
作品详情
  • Details of the work 标题横线
    头像或者logo
    图片 天津深白设计
    城市:天津
    公司:天津深白设计
    参赛作品: 更迭
    空间类型:公寓(150㎡以下)
    个人/公司简介:
    深:深度 专业 视野 白:取舍 纯净 空间 深白:有温度的家 深白设计创立于2013年,专注于公寓别墅与商业空间设计领域, 是一家集室内设计、商业设计、软装设计、配套施工为一体的精品设计公司。 年产百余套设计落地项目,每年斩获多个国内外设计奖项。 司目前共有40余人,分为设计部、产品部、工程部、运营部、行政部及独立的软装公司。 有能够高度实现创意、细节、工艺、品质的优秀施工团队,以及完整的建材厂商供应链。 设计团队均由专业设计院校科班出身和从业经验八年以上的设计师组成,拥有科学设计居住方案的专业能力和丰富的多年工地对接设计经验。团队配置:主创设计师+执行设计师+深化设计师+软装设计师+设计评审团+产品主管+客户经理 已经建立成熟独到的设计管理模式、团队管理制度,竣工全程规范流畅的客户服务流程与内外管控标准,深度促进设计成果的高效落地与实景品质的整体提升。
    设计说明 | Design Instruction
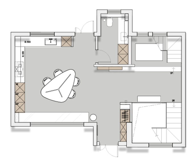
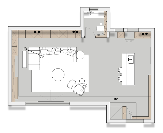
  • 屋主——常住人口为三人,一对年轻夫妻和他们的女儿,通过网络途径找到我们,对我们的设计风格一见倾心。在设计之前,屋主就告知,不喜欢一切非功能性的繁杂装饰,希望在极简风格中融入原木的温馨。他们眼中,未来的家应该是舒适的、方便的,耐看并且永不过时的。于是我们将自然材质与现代生活进行融合,追寻繁华都市中回归小家后的惬意,以木质材料贯穿全屋,无处不在的温润原木色系能让人倍感温暖与放松!
  • 图片
  • 图片
  • 图片
  • 图片
  • 图片
  • 图片
  • 图片
  • 图片
  • 图片
  • 图片
  • 图片
  • 图片
  • 图片
  • 图片
  • 图片
  • 图片
  • 图片
  • 图片
  • 图片
  • 图片
  • 图片
  • 图片
  • 图片
  • 图片
  • 图片
  • 图片
  • 图片
  • 图片
  • 图片
  • 图片
  • 图片
  • 图片
  • 图片
  • 图片
  • 图片
  • 图片
  • 图片
  • 图片
  • 图片
  • 图片
  • 图片
  • 图片
  • 图片
  • 图片
  • 图片
  • 图片
  • 图片
  • 图片
  • 图片
  • 图片
  • 图片
  • 图片
  • 图片
  • 图片
  • 图片
  • 图片
  • 图片
  • 图片
  • 图片
  • 图片
  • 上一个 下一个
    《金腾奖优秀作品年鉴》 私宅丨地产丨餐饮丨酒店丨办公丨商业丨公共丨产品丨公益丨人气 jintengAWARD(小金_金腾奖组委会) 广州市海珠区琶洲大道68号华新中心21楼
    金腾奖视频号 金腾奖小红书号 监制:闫虹
    统筹:吴佳佳
    运营:朱倩仪 王赫萱 张芷莹 胡岚恩 小金
    新媒体:王贝贝 严洁 侯乐 鹅姐
    经纪:刘译遥 石征 曹凯月
    技术:张桐 黄天佑
    最终解释权归金腾奖主办方所有