宁波泊璟廷
作品详情
  • Details of the work 标题横线
    头像或者logo
    图片 陈道响
    城市:宁波
    公司: 宁波广建建筑设计有限公司
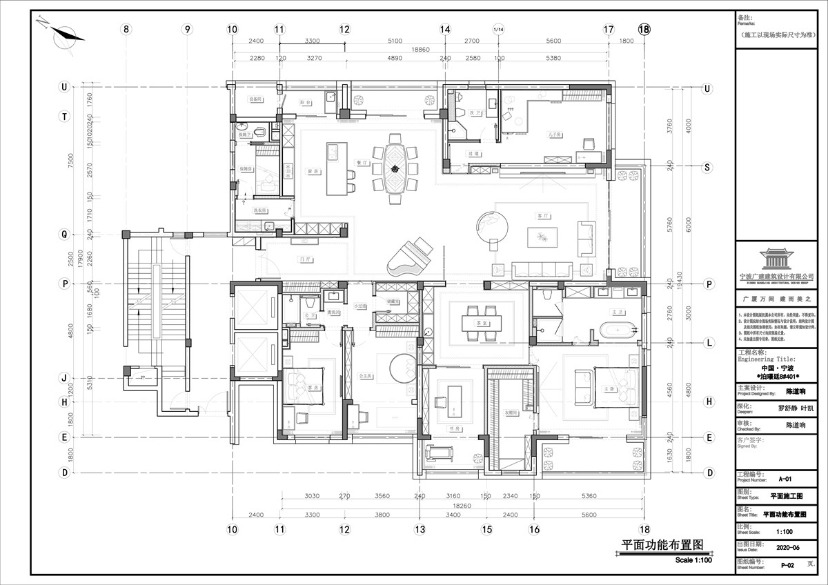
    参赛作品: 宁波泊璟廷
    空间类型:公寓(150㎡以下)
    个人/公司简介:
    宁波广建建筑设计有限公司创始人、设计总监,高级室内建筑师。中国建筑学会室 内设计分会资深会员,中国房地产协会商业地产专委会商业地研究员。从业12年间,带领设团队20余位享誉业界的设计师,精研顶级豪宅别墅、高端会所、酒店及度假村等设计服务 获奖荣誉 亚太十大豪宅设计师 全国优秀设计师 最佳别墅空间设计奖 中国长三角室内设计金奖 德国iF设计室内建筑金质奖 德国红点设计大奖 2021-2022 DESIGN FOCUS国际空间设计大奖 2021-2022年度“NEXT DESIGN”未来场景设计奖 2021-2022年度上海国际设计周匠心设计奖 2020-2021中国新商业空间大奖 2020第六届 CRED AWARD地产设计大奖 2019年DESIGN FOCUS空间设计奖 2019年DF空间大奖赛年度商业空间设计奖 2018年十二届中国国际室内设计双年展设计奖 2018年亚太十大豪宅空间设计师  2017年评为最佳别墅空间设计奖 2012年评为浙江省优秀设计奖 2008年评为浙江省优秀设计师 主要案例:宁波天赋九唐一期、二期;宁波比华利一期、二期 宁波卡纳湖谷一期、二期;宁波御玺 宁波檀宫;宁波江南一品;宁波帝宝;宁波东方一品 宁波四季花园;宁波柳逸花苑;宁波香湖湾;宁波江山万里 宁波华城花园;宁波名人大别墅;奉化波导山水桃园;奉化绿城玫瑰园 慈溪维科太子湾;慈溪香湖丹提;慈溪浅水湾;慈溪保利滨湖天地 镇海九龙湖;余姚悦龙湾;余姚阳光威尼斯;余姚姚江上上城 舟山龙湖山庄;舟山东方润园;方太展厅;TATA木门;
    设计说明 | Design Instruction
  • 泊璟廷: 本案设计偏重现代轻奢风格,区别传统张扬、堆砌的华贵,主张低调内敛的同时注重设计内涵的艺术性,色彩选用质感稳重的灰黑白、可可棕等色系,颜色基调协调,整体空间的布局,橱柜、窗帘、艺术品和定制家具、开放式空间的相互搭配,精致的细节处理、巧用金属质感装饰、无主灯的光影设计,现代、精致赋予整体空间内敛高贵的气质,实现了一个既实用又富有魅力的家,让生活在这个空间里显得丰富多彩。 玄关区域低调时尚,采用灰黑棕色系基调,左边高级质感的置物台在射灯光线衬托下,温暖质感,与入眼处的钢琴遥相呼应,整个玄关空间显得干净精致。 客厅空间中灰棕色系下的沙发、茶几、地毯、墙面、木饰等自然巧妙的混搭与组合一起,沙发点缀的不同颜色的抱枕,增添了空间活力和艺术气息,大面积的灰白地毯显得沉稳而有格调,加上艺术气息浓厚的茶几布置,既提高了空间的奢华感,又打造出现代家居感。 厨餐厅注重轻奢风开阔的感觉,选择了开放式的设计,令空间显得更为开阔明亮。干净清爽的白色橱柜,大理石台面的餐桌,搭配一抹金属质感的背景,既延续了客厅的设计风格,又使得整体家装风格和谐统一。 书房贴合需求将办公与休闲结合,书房区安静采光较好,可工作、学习、创作,休闲区可会客、交流、商讨,商务式的沉静优雅,搭配大理石纹的椅子,恰到好处的运用现代空间,使得简单的家居设计中让人有一种奢华感受。 卧室空间采取同色系的灰棕硬包背景,原木色系地板搭配温暖质感的床和床品,床头灯的造型看起来非常别致,深色元素的运用为空间奠定了沉稳的基调,又处处彰显优雅品味。同时卫浴间的设计也十分经典。洗手台部分的对称设计营造出对称的美感,搁置式浴缸的布置,让惬意的泡澡时光永不凋零。整体布置干净利落,现代轻奢感氛围满满。
  • 图片
  • 图片
  • 图片
  • 图片
  • 图片
  • 图片
  • 图片
  • 图片
  • 上一个 下一个
    《金腾奖优秀作品年鉴》 私宅丨地产丨餐饮丨酒店丨办公丨商业丨公共丨产品丨公益丨人气 jintengAWARD(小金_金腾奖组委会) 广州市海珠区琶洲大道68号华新中心21楼
    金腾奖视频号 金腾奖小红书号 监制:闫虹
    统筹:吴佳佳
    运营:朱倩仪 王赫萱 张芷莹 胡岚恩 小金
    新媒体:王贝贝 严洁 侯乐 鹅姐
    经纪:刘译遥 石征 曹凯月
    技术:张桐 黄天佑
    最终解释权归金腾奖主办方所有