宁波红星方太
作品详情
  • Details of the work 标题横线
    头像或者logo
    图片 陈道响
    城市:宁波
    公司: 宁波广建建筑设计有限公司
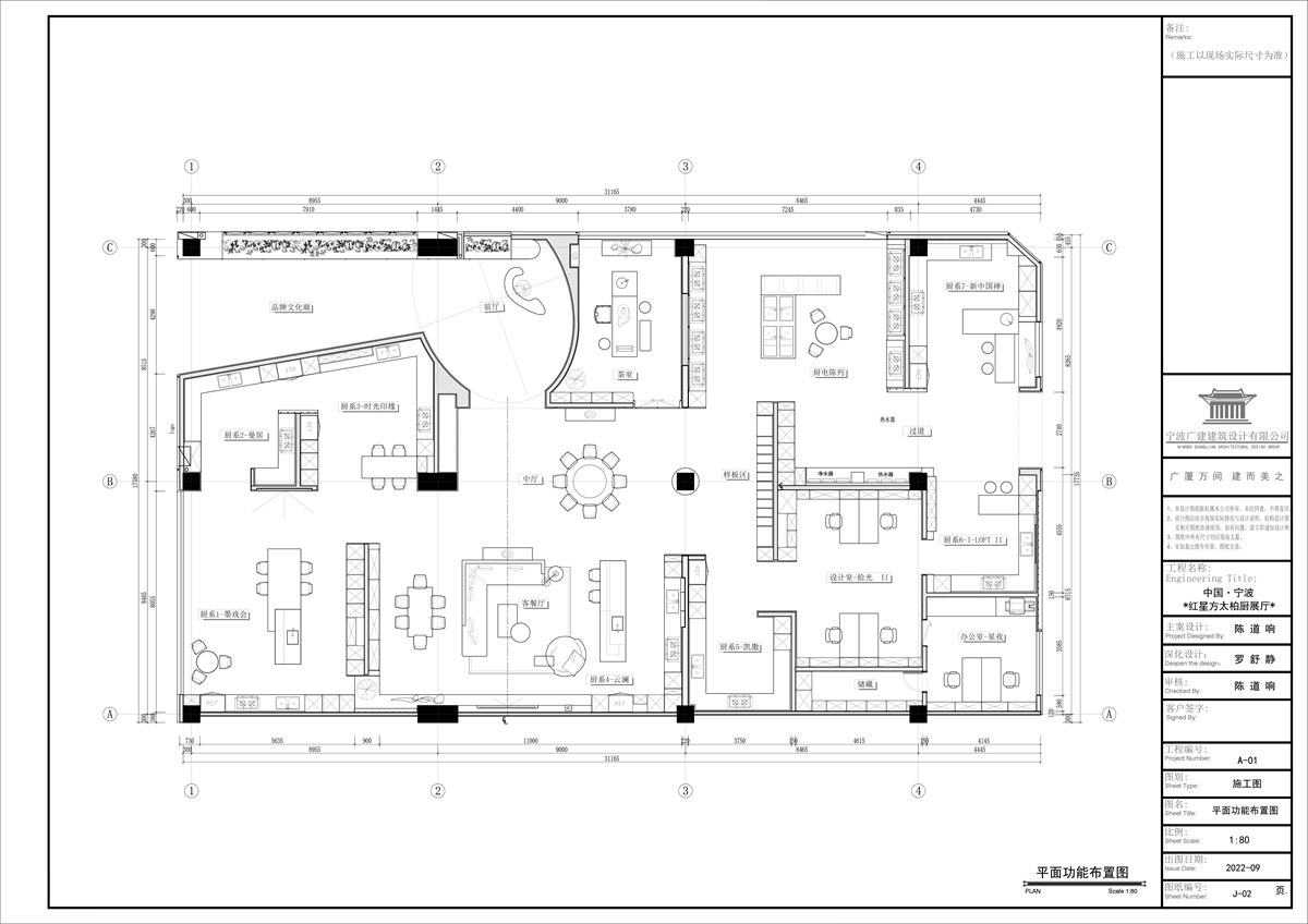
    参赛作品: 宁波红星方太
    空间类型:办公
    个人/公司简介:
    宁波广建建筑设计有限公司创始人、设计总监,高级室内建筑师。中国建筑学会室 内设计分会资深会员,中国房地产协会商业地产专委会商业地研究员。从业12年间,带领设团队20余位享誉业界的设计师,精研顶级豪宅别墅、高端会所、酒店及度假村等设计服务 获奖荣誉 亚太十大豪宅设计师 全国优秀设计师 最佳别墅空间设计奖 中国长三角室内设计金奖 德国iF设计室内建筑金质奖 德国红点设计大奖 2021-2022 DESIGN FOCUS国际空间设计大奖 2021-2022年度“NEXT DESIGN”未来场景设计奖 2021-2022年度上海国际设计周匠心设计奖 2020-2021中国新商业空间大奖 2020第六届 CRED AWARD地产设计大奖 2019年DESIGN FOCUS空间设计奖 2019年DF空间大奖赛年度商业空间设计奖 2018年十二届中国国际室内设计双年展设计奖 2018年亚太十大豪宅空间设计师  2017年评为最佳别墅空间设计奖 2012年评为浙江省优秀设计奖 2008年评为浙江省优秀设计师 主要案例:宁波天赋九唐一期、二期;宁波比华利一期、二期 宁波卡纳湖谷一期、二期;宁波御玺 宁波檀宫;宁波江南一品;宁波帝宝;宁波东方一品 宁波四季花园;宁波柳逸花苑;宁波香湖湾;宁波江山万里 宁波华城花园;宁波名人大别墅;奉化波导山水桃园;奉化绿城玫瑰园 慈溪维科太子湾;慈溪香湖丹提;慈溪浅水湾;慈溪保利滨湖天地 镇海九龙湖;余姚悦龙湾;余姚阳光威尼斯;余姚姚江上上城 舟山龙湖山庄;舟山东方润园;方太展厅;TATA木门;
    设计说明 | Design Instruction
  • 方太展厅: 生活躲不开的柴米油盐,厨房里的烟火气,藏着生活的温度。而通过设计师的努力,除了烟火的温度,也可以有艺术的魅力,我们也可以将其变成一个艺术展厅,现在的厨房,已经不仅仅是一个单一的烹饪场所,它被使用者融入了用餐,饮酒,储物、休闲的功能,同样也被设计师融入了更加人性化的设计,高科技与实际使用相结合,厨房已逐渐变成了一个多功能厅,成为了家庭中的一个核心场所,简约时尚的厨柜,现代科技的厨电,色彩光效的运用,艺术装饰的点缀,点点滴滴的细节都能让厨房充满艺术格调,缔造出一种闲适的生活姿态和浪漫格调。 科技飞速发展的今天,主流消费群体日益年轻化,已经无法单独孤立地谈设计创新,需紧跟时代,拥抱变化,学会融合科技与艺术。本案设计低调而时尚,充满高科技气息,规整、考究的陈列与设计,严谨的空间布局,高级黑与深灰的色彩搭配,营造出神秘高贵的氛围。既符合方太“专业、高端、负责”的定位,展现品牌产品的设计与价值,传达品牌的形象与声音,又展现艺术与科技的高度融合,传达美好的生活态度与理念,吸引消费者的注意力与兴趣。
  • 图片
  • 图片
  • 图片
  • 图片
  • 图片
  • 图片
  • 图片
  • 图片
  • 图片
  • 图片
  • 图片
  • 上一个 下一个
    《金腾奖优秀作品年鉴》 私宅丨地产丨餐饮丨酒店丨办公丨商业丨公共丨产品丨公益丨人气 jintengAWARD(小金_金腾奖组委会) 广州市海珠区琶洲大道68号华新中心21楼
    金腾奖视频号 金腾奖小红书号 监制:闫虹
    统筹:吴佳佳
    运营:朱倩仪 王赫萱 张芷莹 胡岚恩 小金
    新媒体:王贝贝 严洁 侯乐 鹅姐
    经纪:刘译遥 石征 曹凯月
    技术:张桐 黄天佑
    最终解释权归金腾奖主办方所有