Hidden Luxury Mansion
作品详情
  • Details of the work 标题横线
    头像或者logo
    图片 任喆辉  
    城市:杭州
    公司: 扎哈国际设计
    参赛作品: 隐奢大宅
    空间类型:公寓(150㎡以下)
    个人/公司简介:
    国际注册高级室内设计师(注册号:ICDADJA4263 ) 中国装饰协会会员 中国建筑装饰协会室内设计师 在设计行业行走十几载,始终保持设计以人为本的初心,用设计手法来解决甲方的需求,长期专注私人大宅/豪宅/高端商业空间等项目,为此不断进修与参赛来突破自我对于地域上的壁垒,并曾进修清华大学空间环境艺术设计高级研修班,同时参加各类设计游学,跟随外部大环境不断自我迭代,丰富自我同时给予合作甲方更多设计思维。 近期获奖及荣誉经历 / Recent Awards And Honors: 2021年第十届筑巢奖别墅空间公众提名奖 2021年第十届筑巢奖大户型优秀奖 2021年第十一届IDEA-TOPS艾特奖别墅设计入围奖 2021年40 UNDER 40中国(台州)设计杰出青年 2020年金住奖-中国(台州)十大居住空间设计师 2020年第六届包豪斯奖国际设计大赛专业组 银奖 2020年40 UNDER 40中国(台州)设计杰出青年 2020年红棉中国设计奖年度优秀雅奢空间设计奖 2020年第十五届金外滩奖最佳居住空间设计优秀奖 2020年第十届IDEA-TOPS艾特奖公寓设计奖 铜奖 2020年第十三届大金内装设计奖 优胜奖 2019年第九届IDEA-TOPS艾特奖公寓设计奖 铜奖 2018年现代设计奖  银奖 2018年金堂奖年度优秀住宅公寓设计奖 2018年第八届“IDS大奖”公寓空间设计奖 2018年第三届“BERYL杯”国际高端住宅设计奖 2017进修于第三届清华大学空间环境艺术设计高级研修班 2016年受邀台州音乐电台做室内设计专访 设计让我们重新去品味更好的生活,设计让空间合理规划并给人们以美的感受,设计要勇于探索时代技术赋予空间的新形象;每个设计作品不能为“设计”而设计,应该是对生活细节以及对生活感悟而自然流露的情感表现,这样的设计作品才是真正体现设计以人为本。
    设计说明 | Design Instruction
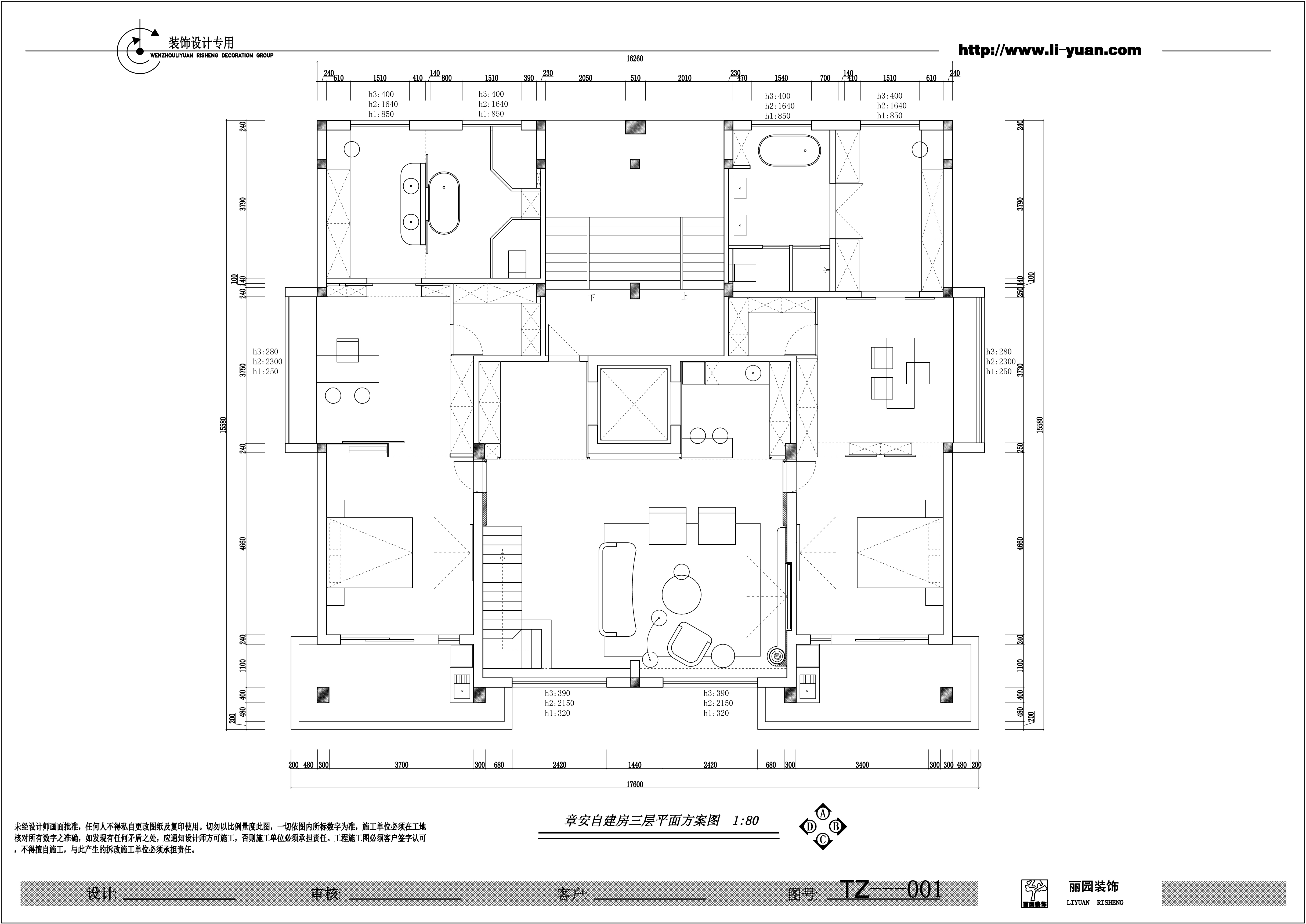
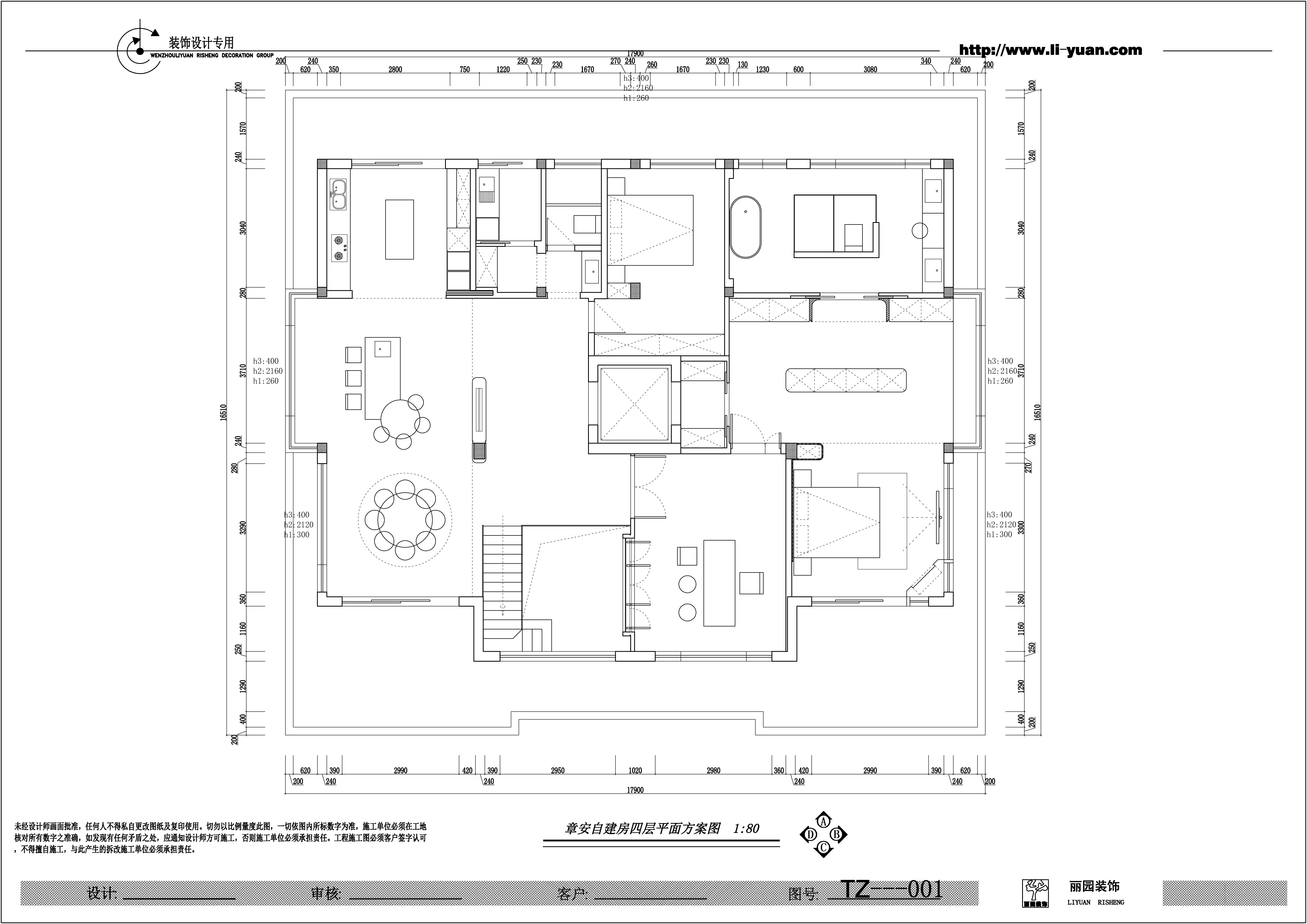
  • 本案为四口之家,客户一家在外经商,作为落叶归根的家,客户需要的是一种有家的沉淀感和时间抚过家中各个空间的年代感,所以本案以有时间沉淀感的侘寂感为基调去展开设计,别墅里拿出三层和四层空间去打造一个跃层空间,三层做为两个男孩的卧室,两个男孩房都设计成套间式空间,卧室内部包含睡眠空间、书房工作空间、衣帽空间、卫浴空间使之成为一个多地能卧室空间,两卧室连接空间是一个公共会客区域再加一副有艺术感的造型楼梯跟四层进行连接过渡,四层公共空间做为用餐空间和厨房空间,看着窗外山景进行餐饮时间把最美的餐食与最美的景色进行结合设计,享受人间美食享受人美景,除了餐饮空间,在四层还设置了一个套间式的主人房间,内部包含一个超大卫浴空间和一个造型感的衣帽空间,整个空间以复古的艺术涂料为基础,加上原木色墙板以及原石感的洞石石材来进行综合搭配让之呈现出本案最终所需要的基调。
  • 图片
  • 图片
  • 图片
  • 图片
  • 图片
  • 图片
  • 图片
  • 图片
  • 图片
  • 图片
  • 图片
  • 图片
  • 图片
  • 图片
  • 图片
  • 图片
  • 图片
  • 图片
  • 图片
  • 图片
  • 图片
  • 图片
  • 图片
  • 图片
  • 图片
  • 图片
  • 图片
  • 图片
  • 图片
  • 图片
  • 图片
  • 图片
  • 图片
  • 图片
  • 图片
  • 图片
  • 图片
  • 图片
  • 图片
  • 图片
  • 图片
  • 图片
  • 图片
  • 图片
  • 图片
  • 图片
  • 图片
  • 图片
  • 图片
  • 图片
  • 图片
  • 图片
  • 图片
  • 图片
  • 图片
  • 图片
  • 图片
  • 图片
  • 图片
  • 图片
  • 图片
  • 图片
  • 图片
  • 图片
  • 图片
  • 图片
  • 图片
  • 图片
  • 图片
  • 图片
  • 图片
  • 图片
  • 图片
  • 图片
  • 图片
  • 图片
  • 图片
  • 图片
  • 图片
  • 图片
  • 图片
  • 图片
  • 图片
  • 图片
  • 图片
  • 图片
  • 上一个 下一个
    《金腾奖优秀作品年鉴》 私宅丨地产丨餐饮丨酒店丨办公丨商业丨公共丨产品丨公益丨人气 jintengAWARD(小金_金腾奖组委会) 广州市海珠区琶洲大道68号华新中心21楼
    金腾奖视频号 金腾奖小红书号 监制:闫虹
    统筹:吴佳佳
    运营:朱倩仪 王赫萱 张芷莹 胡岚恩 小金
    新媒体:王贝贝 严洁 侯乐 鹅姐
    经纪:刘译遥 石征 曹凯月
    技术:张桐 黄天佑
    最终解释权归金腾奖主办方所有