STAGE self-service photo gallery
作品详情
  • Details of the work 标题横线
    头像或者logo
    图片 李嘉鹏&陈汐言
    城市:苏州
    公司: 不止设计
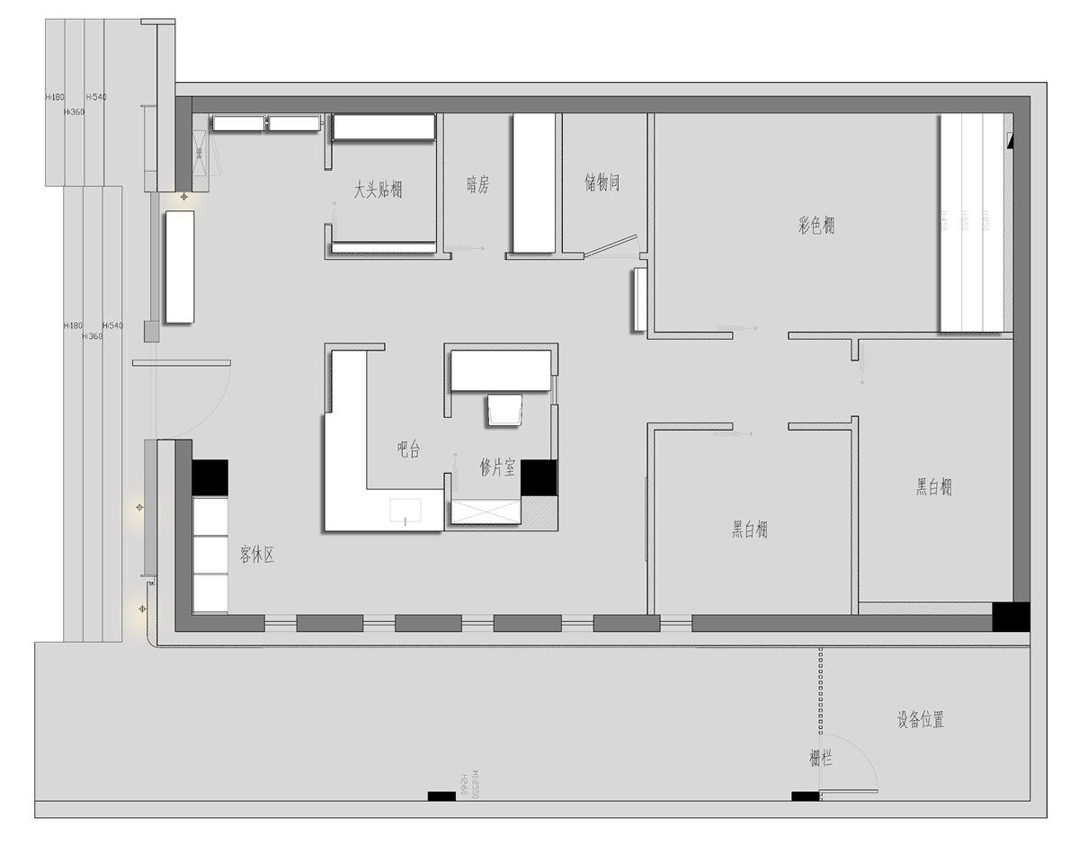
    参赛作品: STAGE自助写真馆
    空间类型:办公
    个人/公司简介:
    创始人简介: 李嘉鹏 毕业于厦门大学嘉庚学院室内设计专业,从业8年 回苏州后创办不止设计,致力于开创新时代设计道路,探索设计的无限可能性。 获奖荣誉: 2022 中国设计星全国36强 2022 金堂奖年度杰出公共空间设计 2022 老宅新生奖优秀商业空间设计奖 2022 苏州好设计大赛年度公共空间设计金奖 2021 金腾奖年度商业空间设计大奖提名奖 2022 老宅新生奖苏州十大改造设计师 2022 金住奖苏州十大居住设计师 2022 年度金堂奖苏州十佳设计师 2022-2023设计头条城市榜 2023-2024设计千人计划 2018 美国室内设计中文网 大师选助手 吴滨组优胜选手
    设计说明 | Design Instruction
  • 设计背景 | Background 作为一个全新的业态,苏州首家自助写真馆。 STAGE希望打造一个无干扰的自拍空间,将按快门的决定留给顾客,希望在放松的状态下,记录最真实的一切。 店铺选址在姑苏区的一个创意园区的沿街店铺,在苏州老城区的新业态,我们希望呈现一个独树一帜的面貌。在门头的整体呈现中,我们打造了一个带着鲜艳色彩的基调,复古、明艳,也希望给老城区带来鲜活的语言色彩。 设计理念 | The Design Concept 在小型商业空间中,我们更关注品牌符号和空间设计的融合。在品牌文化盛行的时代,任何品牌想要出圈,都必须重视形象的可视化,无论是店铺形象、包装物料和周边产品。 我们从整体的品牌形象出发,希望通过视觉量化元素和符号的运用到空间中,通过品牌符号的运用,达到视觉的冲击加深人们对于品牌的印象,增强品牌粘性。 在考虑品牌本身特性的前提下,整个的设计方向的色彩是偏复古的,我们把品牌色运用到了空间中,通过复古的色彩及材质叠加,营造空间的情绪和色彩。希望置身其中,可以穿越到复古的场景中享受拍摄的乐趣。 在预算有限的情况下,我们通过大量灯箱符号的运用,强调了品牌的文化输出,同时灯箱的运用也能够让空间更具有氛围感。也利用了一些手法,将品牌符号很好的融入在我们的空间里,希望增强大众的记忆点。 整个空间是一个相对方正的盒子,在整体布局相对来说比较刚需的情况下,我们利用了柱子,把前台区域相对独立做了体块的置入。打造了室内体块,加强用户的视觉冲击。
  • 图片
  • 图片
  • 图片
  • 图片
  • 图片
  • 图片
  • 图片
  • 图片
  • 图片
  • 图片
  • 图片
  • 图片
  • 图片
  • 图片
  • 图片
  • 图片
  • 图片
  • 图片
  • 图片
  • 图片
  • 图片
  • 上一个 下一个
    《金腾奖优秀作品年鉴》 私宅丨地产丨餐饮丨酒店丨办公丨商业丨公共丨产品丨公益丨人气 jintengAWARD(小金_金腾奖组委会) 广州市海珠区琶洲大道68号华新中心21楼
    金腾奖视频号 金腾奖小红书号 监制:闫虹
    统筹:吴佳佳
    运营:朱倩仪 王赫萱 张芷莹 胡岚恩 小金
    新媒体:王贝贝 严洁 侯乐 鹅姐
    经纪:刘译遥 石征 曹凯月
    技术:张桐 黄天佑
    最终解释权归金腾奖主办方所有