黑白咏叹调
作品详情
  • Details of the work 标题横线
    头像或者logo
    图片 谢雄峰
    城市:广州
    公司: 北京尚层广州海珠分公司
    参赛作品: 黑白咏叹调
    空间类型:公寓(150㎡以下)
    个人/公司简介:
    2014年3月入职广东星艺装饰集团股份有限公司 2022年3月入职北京尚层广州海珠分公司现任主案设计师 设计理念:设计源于生活且高于生活
    设计说明 | Design Instruction
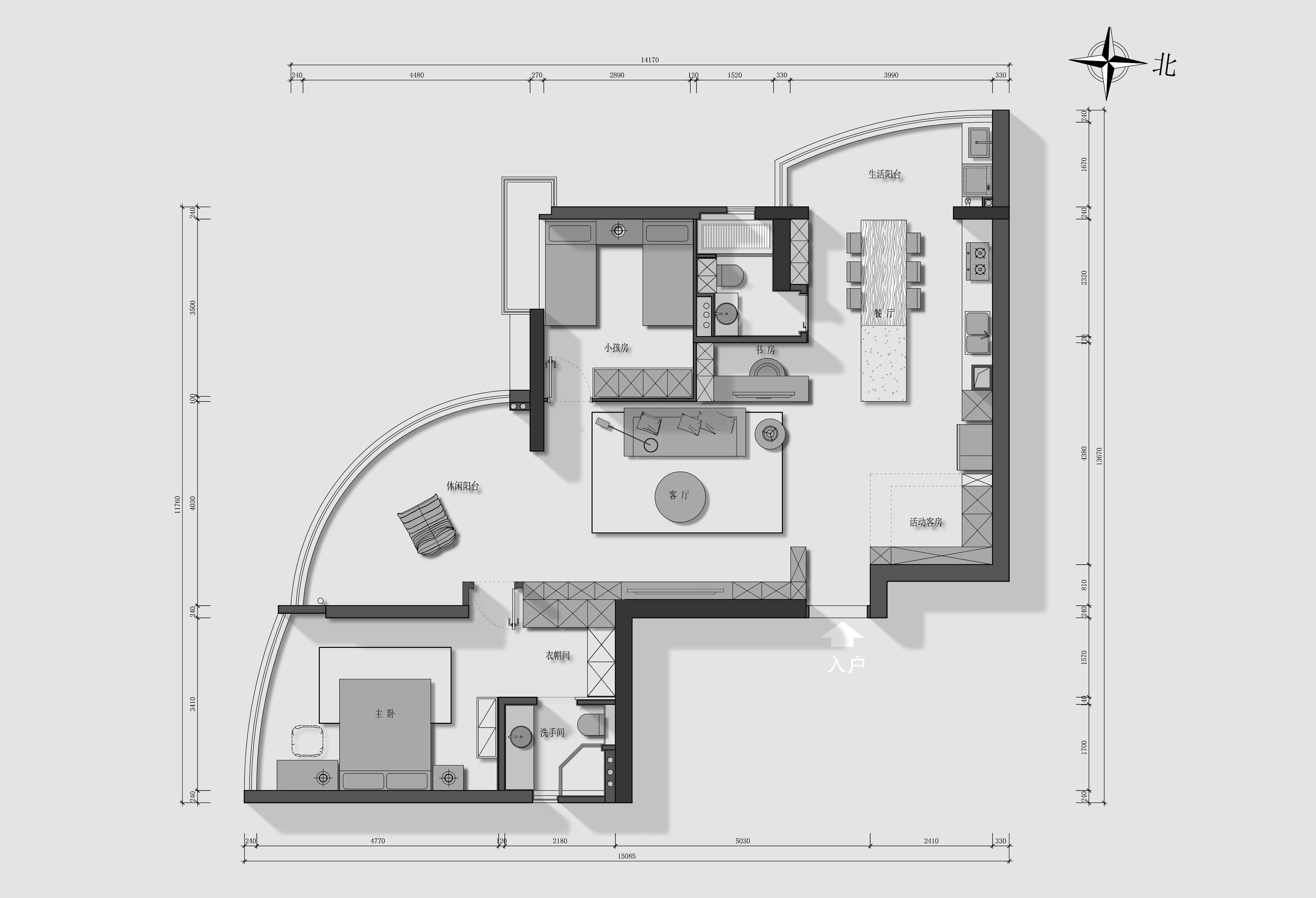
  • 原始户型为三房两厅,带有两个弧形景观阳台,窗外即是高楼与街景。空间格局较规整传统,其中一个次卧面积相对较小。目前家里主要为一家三口居住,亲朋留宿的频次不高,原始户型无法满足屋主的个性化居住需求。 为了充分利用弧形景观阳台,纵览城市的旖旎风光,设计师顺应屋主的需求将其改为两房,拆掉不必要的墙体,将空间功能重新整合,并用黑白两色勾勒出简约干练的时尚气质。起承转合之间成就了通透开放的格局,在自然光的浸润之下,这个家显得高级耐看又有烟火气。现代简约的家居空间,是对少即是多的完美诠释。让空间从人居角度出发,让设计服务于真实的居住需求,没有堆砌或浮夸的表达,和谐、自然,就是设计最大的意义,也是最高级的呈现方式。
  • 图片
  • 图片
  • 图片
  • 图片
  • 图片
  • 图片
  • 图片
  • 图片
  • 图片
  • 图片
  • 图片
  • 图片
  • 图片
  • 图片
  • 图片
  • 图片
  • 图片
  • 图片
  • 图片
  • 图片
  • 图片
  • 图片
  • 图片
  • 上一个 下一个
    《金腾奖优秀作品年鉴》 私宅丨地产丨餐饮丨酒店丨办公丨商业丨公共丨产品丨公益丨人气 jintengAWARD(小金_金腾奖组委会) 广州市海珠区琶洲大道68号华新中心21楼
    金腾奖视频号 金腾奖小红书号 监制:闫虹
    统筹:吴佳佳
    运营:朱倩仪 王赫萱 张芷莹 胡岚恩 小金
    新媒体:王贝贝 严洁 侯乐 鹅姐
    经纪:刘译遥 石征 曹凯月
    技术:张桐 黄天佑
    最终解释权归金腾奖主办方所有