蒹葭-霞影
作品详情
  • Details of the work 标题横线
    头像或者logo
    图片 董权 宁波市室内设计师协会特约推荐
    城市:宁波
    公司: 宁波众冉设计事务所有限公司
    参赛作品: 蒹葭-霞影
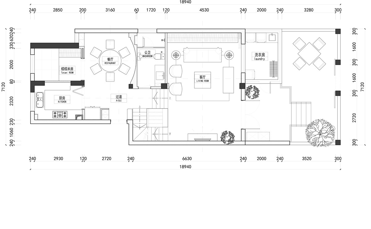
    空间类型:公寓(150㎡以下)
    个人/公司简介:
    中国室内装饰协会CIDA中级室内设计师 2015年艾特奖优秀作品入围奖 2015年浙江设计精英邀请赛专业组年度佳作奖“The Mazay” 2017年中国(浙江)青年室内设计奖 2018年住宅空间设计优秀奖(实景类) 2019年最美艺术空间设计 2019年度住宅公寓空间设计大奖(方案类) 2020年年度商业空间优秀奖(实景类) 2021年年度最佳别墅设计奖 全国top30
    设计说明 | Design Instruction
  • 蒹葭-霞影 本案对空间对称的结构、材质的运用及软装陈列方式都体现出中式的韵味与仪式感,在东方美学被不断提起的今天,呈现出一种开放的姿态,并保持自我的风格。  入口玄关的空间规划恰 到好处地实现了储藏和展示的双重功能。客厅整体设计极力呈现别墅空间雅致、安静的力量。满墙书架式设计作为立面极具震撼力的精神载体,搭配水墨大理石背景让整体空间大气凝远、通达而有识鉴。      餐厅设计不仅延续了含蓄、高雅的生活方式与礼制之道,提炼出经典元素加以简化和丰富,圆形实木餐桌更显简约与流畅,人性化布局搭配触感顶级的材质,营造安静、舒适的用餐空间。 二层作为长辈房与主人房,与整个空间的步调一脉相承。天花设计采用木架斜屋顶造型,大气而稳重;木质温润的触感、淡雅素净的配色及艺术品的点缀为主卧进行了全新的定位。卧室背景墙采用木饰面与硬包的结合,简洁明朗的木质、时尚稳重的家具以及暖色的灯光氛围,使空间兼具温馨舒适与典雅贵气。
  • 图片
  • 图片
  • 图片
  • 图片
  • 图片
  • 图片
  • 图片
  • 图片
  • 图片
  • 图片
  • 图片
  • 图片
  • 图片
  • 图片
  • 图片
  • 图片
  • 图片
  • 图片
  • 图片
  • 图片
  • 图片
  • 图片
  • 图片
  • 图片
  • 上一个 下一个
    《金腾奖优秀作品年鉴》 私宅丨地产丨餐饮丨酒店丨办公丨商业丨公共丨产品丨公益丨人气 jintengAWARD(小金_金腾奖组委会) 广州市海珠区琶洲大道68号华新中心21楼
    金腾奖视频号 金腾奖小红书号 监制:闫虹
    统筹:吴佳佳
    运营:朱倩仪 王赫萱 张芷莹 胡岚恩 小金
    新媒体:王贝贝 严洁 侯乐 鹅姐
    经纪:刘译遥 石征 曹凯月
    技术:张桐 黄天佑
    最终解释权归金腾奖主办方所有