四·季
作品详情
  • Details of the work 标题横线
    头像或者logo
    图片 沈垚 宁波市室内设计师协会特约推荐
    城市:宁波
    公司: 美龄阁设计事务所
    参赛作品: 四·季
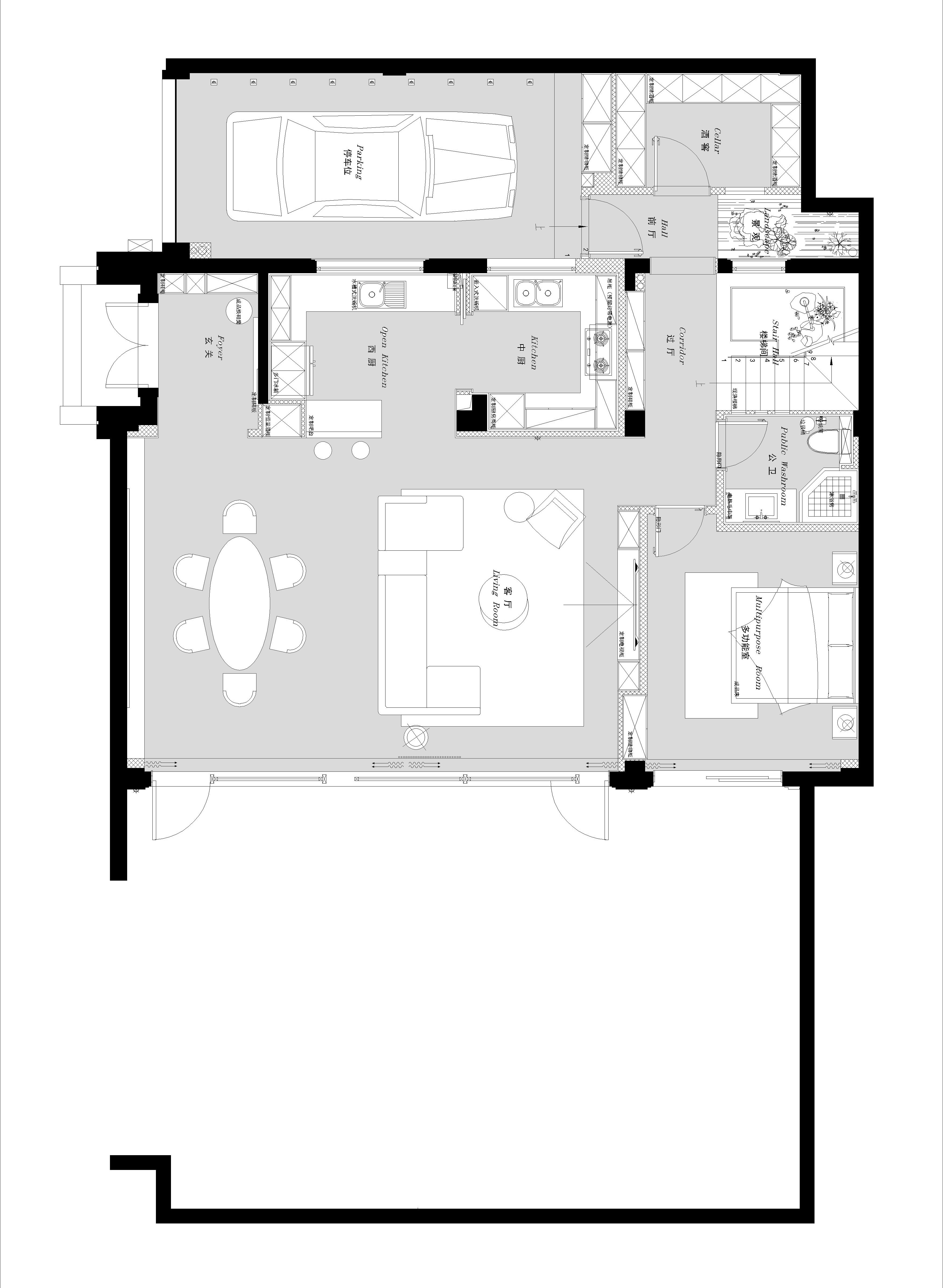
    空间类型:公寓(150㎡以下)
    个人/公司简介:
    首席创意总监 美龄阁设计品牌创始人​   设计理念 主张空间有界,设计无限,坚信设计创新的价值。在家装设计、餐饮设计、办公设计等设计领域,竭诚为业主提出设计与施工的最佳解决方案。   设计作品已在多个媒体报导发布,在建项目涉及上海、杭州、宁波、余姚、慈溪、上虞等各区域,与客户保持良好的合作关系。 荣誉奖项 十三届中国国际建筑装饰协会2017-2018年度中国室内设计杰出青年设计师 荣获2017年第六届艾舍奖十佳全案设计师荣誉称号(实景类) 荣获2017年第六届艾舍奖住宅建筑设计金奖(实景类) 2018年M+中国高端室内设计大赛中,荣获全国城市榜TOP900 2018年中国浙江青年室内设计奖陈设软装设计大奖(实景类) 2018年中国浙江青年室内设计奖十佳陈设软装空间设计大奖(实景类) 荣获2018创意生活设计(金蝴蝶)奖 2018年国际设计大奖-艾鼎奖 优秀住宅空间奖项(实景类) 金住奖-2019中国(余姚)十大居住空间设计师(实景类) 2019年第七届Hi-Design室内设计大赛中荣获“宁波十佳设计师”(实景类) 2019年DESIGN FOCUS年度别墅豪宅空间设计大奖(实景类) 2020年红棉中国设计奖“2020年度最美雅奢空间设计”
    设计说明 | Design Instruction
  • “宅中有园,园中有屋,屋中有院,院中有树,树上有天,天中有月,不亦快哉”林语堂笔下的院落,是每个人心中栖居梦想。 空间是极自由的,客厅、餐厅一字排开,光线从南向窗户撒进来,照射在并不复杂的装修上,恰到好处。 素色沙发、实木大理石茶几,温暖的色彩搭配,舒适而不失质感。 Plain sofa, solid wood marble tea table, warm color matching, comfortable and without losing texture. 餐厅和客厅串联交流,一方小天地,万千气韵聚。 在高低错落的边几放上一杯茶,懒在座椅上,对着窗外发呆,也何尝不是一种美好。 窗外参差不齐的绿意,忽而间的微风吹的绿植轻轻摇摆,鸟虫的鸣叫,一切都是如此恰到好处的美好,身心也渐渐地放松下来 走上楼梯,放置的是画家John walker的画作《Fireground》。 二楼的主卧&起居室,让人在里面释放所有疲惫,此外还兼具交流、获取信息和休闲等多功能性的重叠,令坐卧起居等更舒适。生活的便捷、行动的从容、欢畅的随性、心绪的沉淀都在这里发生。 二楼的起居室相对于一楼客厅,多了一丝静谧,透过窗户是绿意与生机。 3 院落 尽可能地将建筑、室内、院落、花园融为一体 眼望四周,将些许疲累托付给这一室,身处人声鼎沸、车马喧嚣的商圈之中,未曾想还有能拥抱自然的舒适。 四·季,从生活点滴着笔,舒畅至上,采用中性优雅的色调,尊重材料本身的质感,统筹室内与自然景观的平衡,打造诗意栖居之所!
  • 图片
  • 图片
  • 图片
  • 图片
  • 图片
  • 图片
  • 图片
  • 图片
  • 图片
  • 图片
  • 图片
  • 图片
  • 图片
  • 图片
  • 图片
  • 图片
  • 图片
  • 图片
  • 图片
  • 图片
  • 图片
  • 图片
  • 图片
  • 上一个 下一个
    《金腾奖优秀作品年鉴》 私宅丨地产丨餐饮丨酒店丨办公丨商业丨公共丨产品丨公益丨人气 jintengAWARD(小金_金腾奖组委会) 广州市海珠区琶洲大道68号华新中心21楼
    金腾奖视频号 金腾奖小红书号 监制:闫虹
    统筹:吴佳佳
    运营:朱倩仪 王赫萱 张芷莹 胡岚恩 小金
    新媒体:王贝贝 严洁 侯乐 鹅姐
    经纪:刘译遥 石征 曹凯月
    技术:张桐 黄天佑
    最终解释权归金腾奖主办方所有