君湾中心
作品详情
  • Details of the work 标题横线
    头像或者logo
    图片 程崇高 宁波市室内设计师协会特约推荐
    城市:宁波
    公司: 尚层装饰
    参赛作品: 君湾中心
    空间类型:公寓(150㎡以下)
    个人/公司简介:
    个人简介 毕业于宁波大学科学技术学院 尚层装饰主创设计师 宁大科院文创学院空间营造工作室成员 中国建筑与艺术青年设计师铜奖 浙江精英设计邀请赛年度最佳设计 茶花奖十佳公寓设计 DESIGN FOCUS国际空间设计大奖优秀作品
    设计说明 | Design Instruction
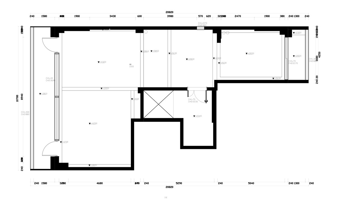
  • 设计说明 项目名称 | 君湾中心 项目地点 | 宁波市江北区 设计面积 | 230㎡ 完工时间 | 2021年6月 设计主创 | 程崇高 视觉陈列 | 程崇高 “如果说音乐是一剂治愈心灵的良药,它可以慰藉无处安放的心灵,那家又意味着什么呢?” —— 寄语 本案业主是一对“90后”年轻夫妇,女主人拥有独特的艺术审美,男主人爱好音乐和各类乐器。他们追崇二人世界的仪式感与小确幸。 整个户型的空间规划服务于二人的日常生活起居,开阔的客厅,配上瑰丽色彩的石材与温润的木,嵌入墙体的壁炉,尤显灵动,冷暖交映。 生活的仪式感自然离不开餐厅的调味与补充,餐客一体的设计,不仅是空间上的优化,色彩上也延续了客厅的色系搭配。 当下最in的一体式天花设计,衬托出浪漫温馨的空间氛围。整面超高玻璃,完美的让江边美景映入眼帘,或云淡风轻,天蓝海阔,或华灯初上,星空万里。 楼梯踏步延伸之处,往上是整墙乐器与藏品,随之蒙上悦目的光线,宛如一座乐园。往下是亦是慰藉心灵的美妙去处。 工作间是男主人孕育创造力的催化之所,两端墙面上的凹凸几何,解决了对于声音传播的环绕功能,也为空间注入多一丝活力。 卧室空间独特的构成手法,重设空间秩序,多种材料的视觉碰撞,给人以无限遐想,增添一抹节奏与时尚之美。 目之所及,床品与墙面材质的特殊纹路,彰显个性与格调。细节的质感与恬静气息暗自弥漫,每一隅都是艺术沉浸式的感受。 浴缸放置于地台,用于区隔,打破视线阻隔的同时,亦是另类表达。 内部还设有专属衣帽间,实现对此区域的最大化利用,达到功用与美学的完美融合。细致分区的摆放陈列,通透的形式,灯带的适宜设置,都是梦想中的该有样子。
  • 图片
  • 图片
  • 图片
  • 图片
  • 图片
  • 图片
  • 图片
  • 图片
  • 图片
  • 图片
  • 图片
  • 图片
  • 图片
  • 图片
  • 图片
  • 图片
  • 图片
  • 图片
  • 图片
  • 图片
  • 图片
  • 图片
  • 图片
  • 图片
  • 图片
  • 图片
  • 图片
  • 图片
  • 图片
  • 图片
  • 上一个 下一个
    《金腾奖优秀作品年鉴》 私宅丨地产丨餐饮丨酒店丨办公丨商业丨公共丨产品丨公益丨人气 jintengAWARD(小金_金腾奖组委会) 广州市海珠区琶洲大道68号华新中心21楼
    金腾奖视频号 金腾奖小红书号 监制:闫虹
    统筹:吴佳佳
    运营:朱倩仪 王赫萱 张芷莹 胡岚恩 小金
    新媒体:王贝贝 严洁 侯乐 鹅姐
    经纪:刘译遥 石征 曹凯月
    技术:张桐 黄天佑
    最终解释权归金腾奖主办方所有