银龙-牙掌柜茶空间
作品详情
  • Details of the work 标题横线
    头像或者logo
    图片 付海龙 宁波市室内设计师协会特约推荐
    城市:宁波
    公司: 众冉设计事务所
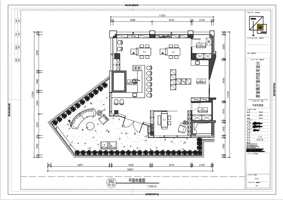
    参赛作品: 银龙-牙掌柜茶空间
    空间类型:办公
    个人/公司简介:
    《无间》第五届“包豪斯奖”国际设计大赛专业组优秀奖 《木墨》第五届“包豪斯奖”国际设计大赛专业组金奖 2017年艾鼎奖最佳商业空间入围奖
    设计说明 | Design Instruction
  • 银龙-牙掌柜茶空间 「 牙掌柜茶室 」 坐落于宁波鄞州区华侨城。华侨城,占地面积23万平方米,边上“曲水弯环,绿意四绕”,是一个集城市湿地、滨江绿道、文体休闲于一体的商业区。 茶室改造前存在着顶部建筑结构粗糙和顶部设备交错,层高局限等问题。设计师付海龙在与业主沟通和对茶室的了解分析后,他们希望能够打破传统,同时又保留原始建筑结构的力量感,达到文化与建筑的共生目的。正如客户所希望的那样 ——“在现代建筑内部的古典建筑”诞生了。 沿着老木地板缓缓步入整个空间中,左侧尽头处是一片室外的微型的自然景观,与室外的景色交相呼应。当阳光穿透玻璃射入空间中,随着光影的摆动,窗外的景色似乎拥有了生命,斑驳的树影,静谧的器皿、灵动而美妙。此刻时间被无限延长,犹如一场心安是归处的经行。 设计师在保护传统柱梁结构的基础的上,为设计做了减法,沿江景观窗采用了大落地玻璃,露出建筑本身的骨架,入口处的原始建筑结构裸露呈现和侧面老木头木屋的结合,既将四周江景与室内空间相互打通,又增强了整个室内的采光性与建筑美学的力量感。走入其中,有种虚实之间交错之感,颇有佛法中“一切有为法,如梦幻泡影”的意味。 在内建筑古建中,放上一把古椅,一盏白茶,顶面悬空着一根来自匠人手工锻打的铜灯,当灯光照射时,器皿墙上展现出曲折蜿蜒的斑驳,奉化江景色在室内得到延续。古建随时可以变身为一间大型会议空间,可以在此开设会议、论坛进行交流。品茶观景,让会议变成是一件怡然自得的事情,模糊了规则的边界,也能让思考更加具有效率和意义。 吧台区域灵感来自于一个佛罗伦萨的小咖啡吧,环绕式吧台让客人围绕着中间的茶艺师,不同于传统的一对一茶礼,使人在刹那间仿佛置身于一个中古咖啡店,三两好友轻语细品,静观台中的茶水缓缓冲泡着,吧台背景也没有繁琐的各类陈设,只有铁板上的一簇花艺肆意绽放,配合着简单的茶饮文字,直白而精确。设计师将器皿格子巧妙地划分成了“井”字,在空间中更加凸显出茶文化经久不息的神韵,架子前方的吧台上嵌入了一个日本炉端烧,冬日暖阳下放上一壶老白茶,伴随着袅袅白烟,茶香四溢,炉上的桃山房陶器灯具随烟轻摆煞是好看。 在整个茶空间设计中,尽量将墙面留白,用自然植物作为点缀,一切都来源于自然,这样的空间才更加纯粹、和谐。靠近内部街景的窗边做了一整排的器皿展示柜,每年的七八月店主就会邀请当代陶艺家来做艺术展陈,为国内陶艺的传播做出自己的贡献。而为了让器皿盏自由,中间配了两排泡台,方便客人体验陶器与茶汤融合之美的那一刹那。四周灰白的肌理墙面、玻璃面、传统木柱之间保持着一定距离,像是某种精神上的对话,产生了时空对撞之美。 项目名称:牙掌柜茶空间 设计单位:众设计事务所 联系邮箱:13995948@qq.com 完成时间:2021.04 设计师:付海龙 项目地点:浙江省宁波市鄞州区华侨城 建筑面积:132㎡ 摄 影:祝立铭 材 料:老杨松木板、橡木实木、手刮艺术肌理、自流平、瓷砖、手工陶器
  • 图片
  • 图片
  • 图片
  • 图片
  • 图片
  • 图片
  • 图片
  • 图片
  • 图片
  • 图片
  • 图片
  • 图片
  • 图片
  • 图片
  • 图片
  • 图片
  • 图片
  • 图片
  • 图片
  • 图片
  • 图片
  • 图片
  • 图片
  • 图片
  • 图片
  • 图片
  • 图片
  • 图片
  • 图片
  • 图片
  • 图片
  • 图片
  • 图片
  • 图片
  • 图片
  • 图片
  • 图片
  • 上一个 下一个
    《金腾奖优秀作品年鉴》 私宅丨地产丨餐饮丨酒店丨办公丨商业丨公共丨产品丨公益丨人气 jintengAWARD(小金_金腾奖组委会) 广州市海珠区琶洲大道68号华新中心21楼
    金腾奖视频号 金腾奖小红书号 监制:闫虹
    统筹:吴佳佳
    运营:朱倩仪 王赫萱 张芷莹 胡岚恩 小金
    新媒体:王贝贝 严洁 侯乐 鹅姐
    经纪:刘译遥 石征 曹凯月
    技术:张桐 黄天佑
    最终解释权归金腾奖主办方所有