宁波市张科斐服饰旗舰店
作品详情
  • Details of the work 标题横线
    头像或者logo
    图片 留白室内设计有限公司 宁波市室内设计师协会特约推荐
    城市:宁波
    公司:留白室内设计有限公司
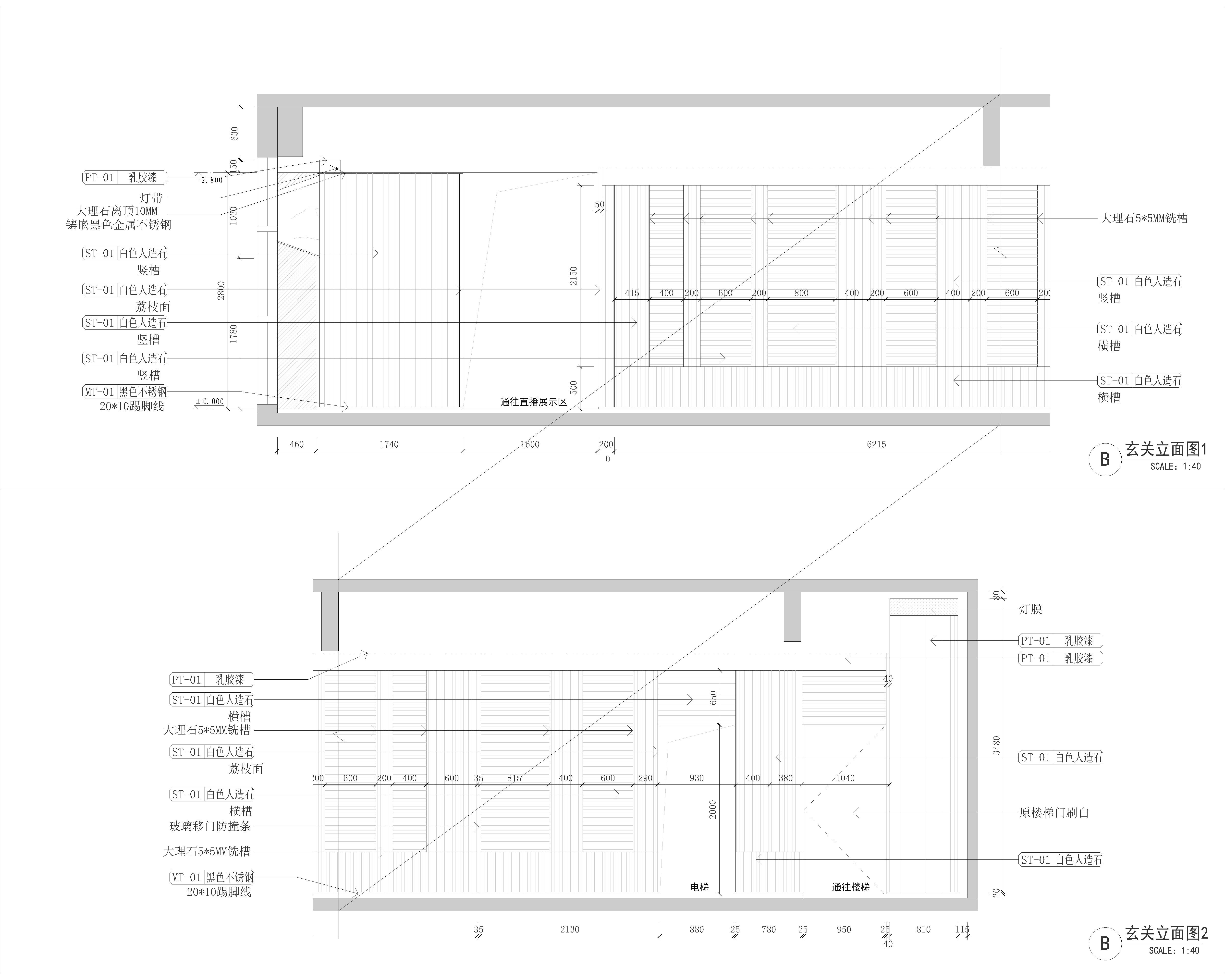
    参赛作品: 宁波市张科斐服饰旗舰店
    空间类型:办公
    个人/公司简介:
    由高金锋创立的留白室内设计有限公司,是一家立足于中国宁波的多元化建筑、室内设计公司。留白设计提供国际化的建筑、室内、软装、平面以及产品设计服务。总部位于宁波市余姚远东峰会19幢。扎根宁波地区近十年,以高品质的设计和新加坡式的管家服务,赢得了高端客户的一致认可。
    设计说明 | Design Instruction
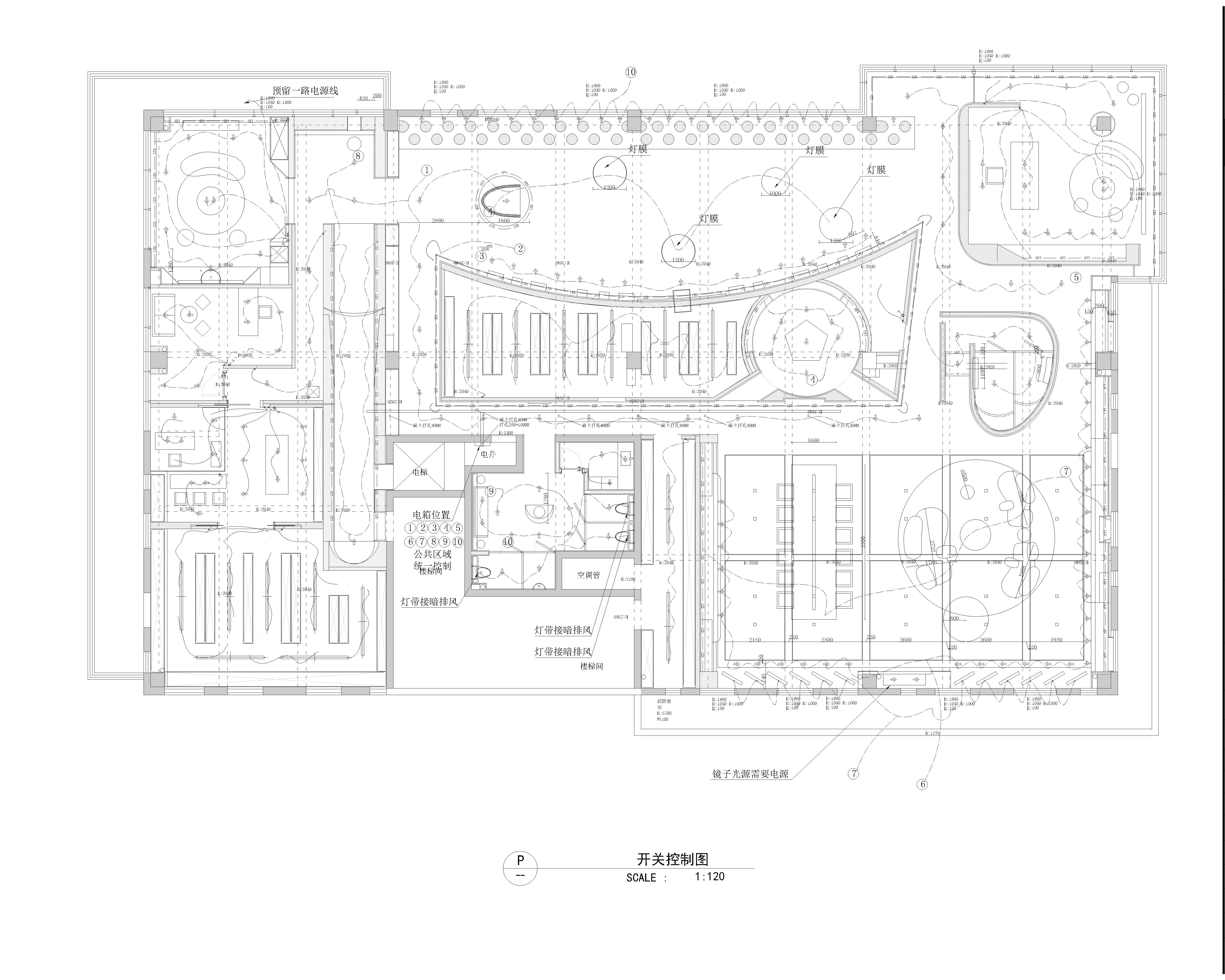
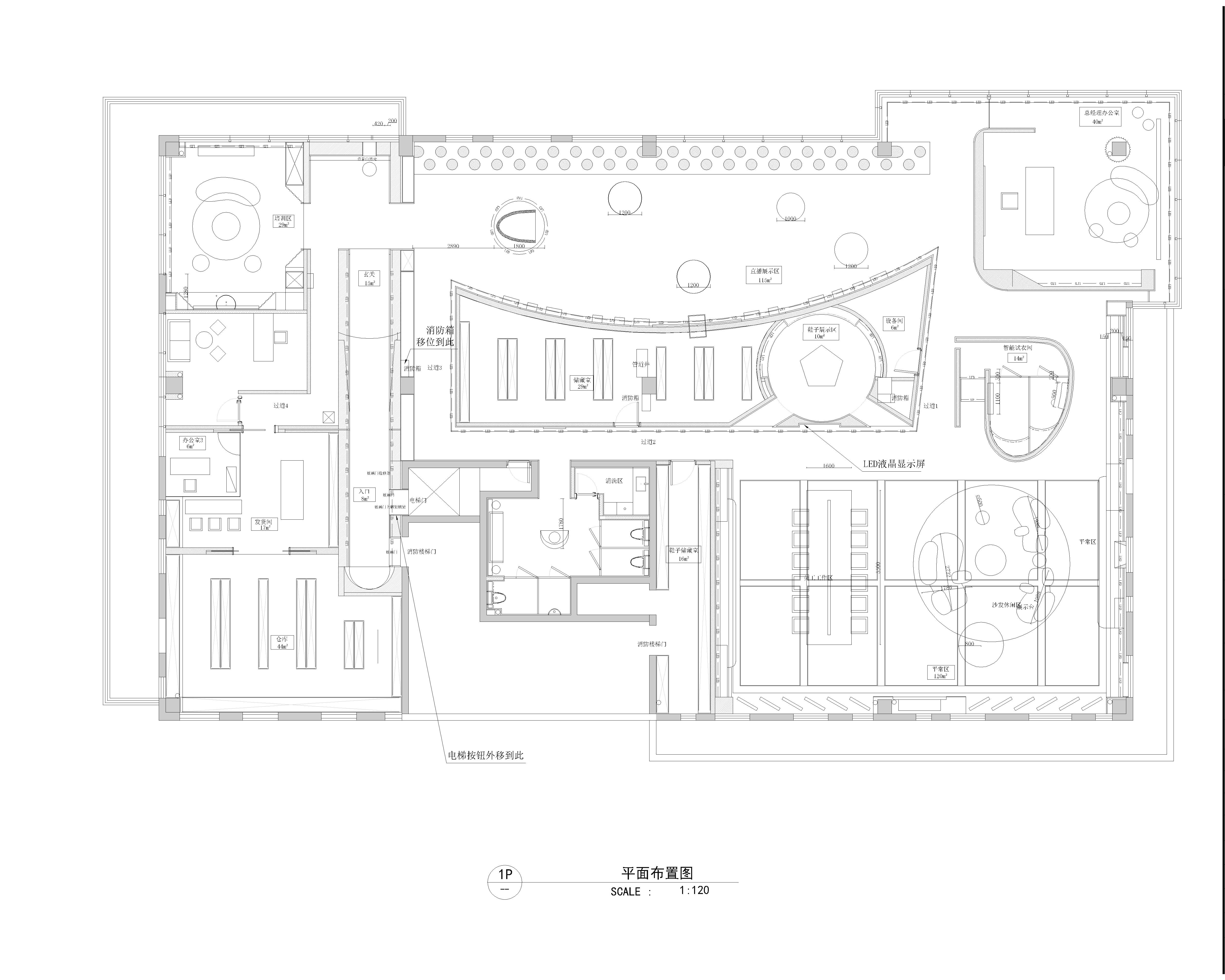
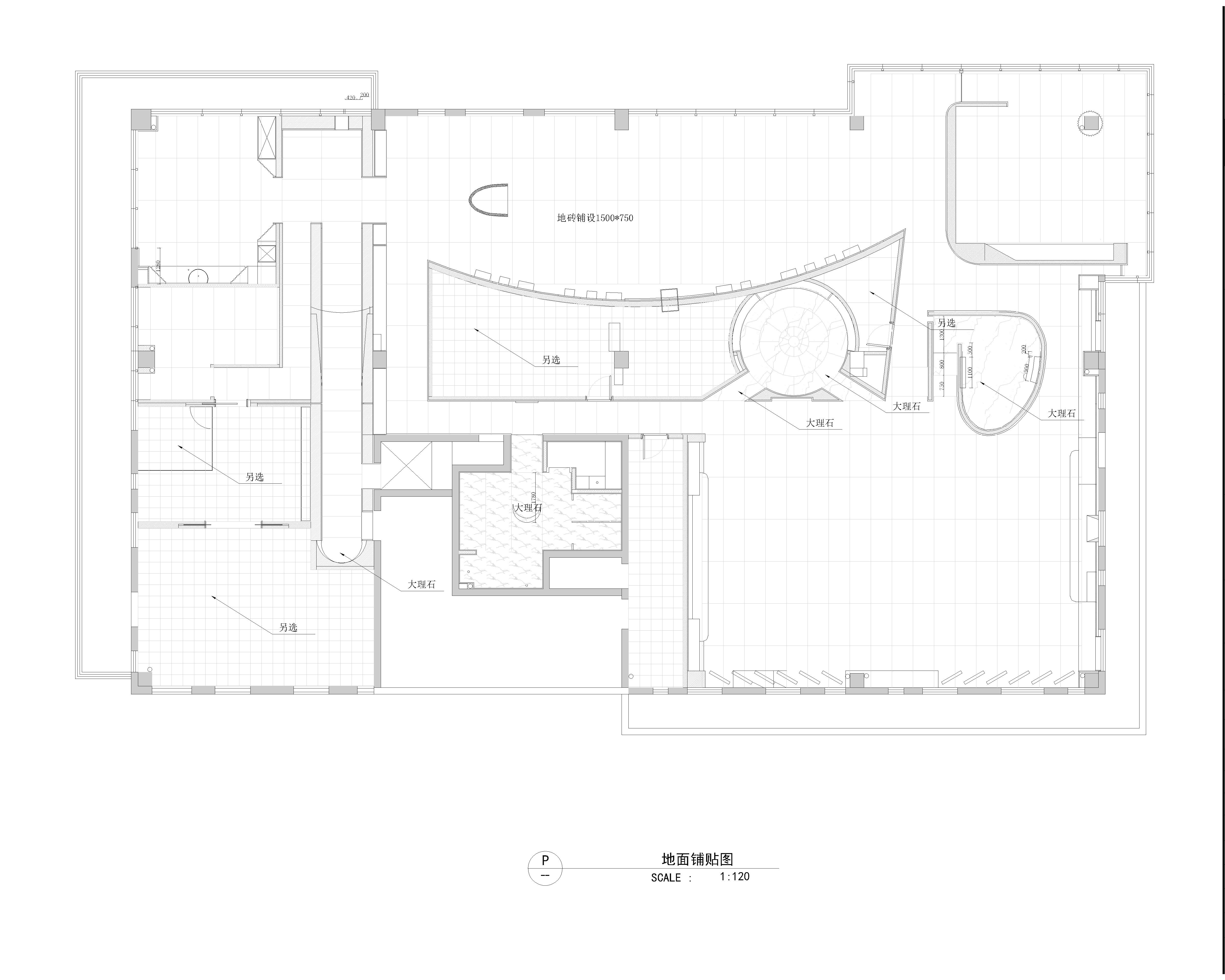
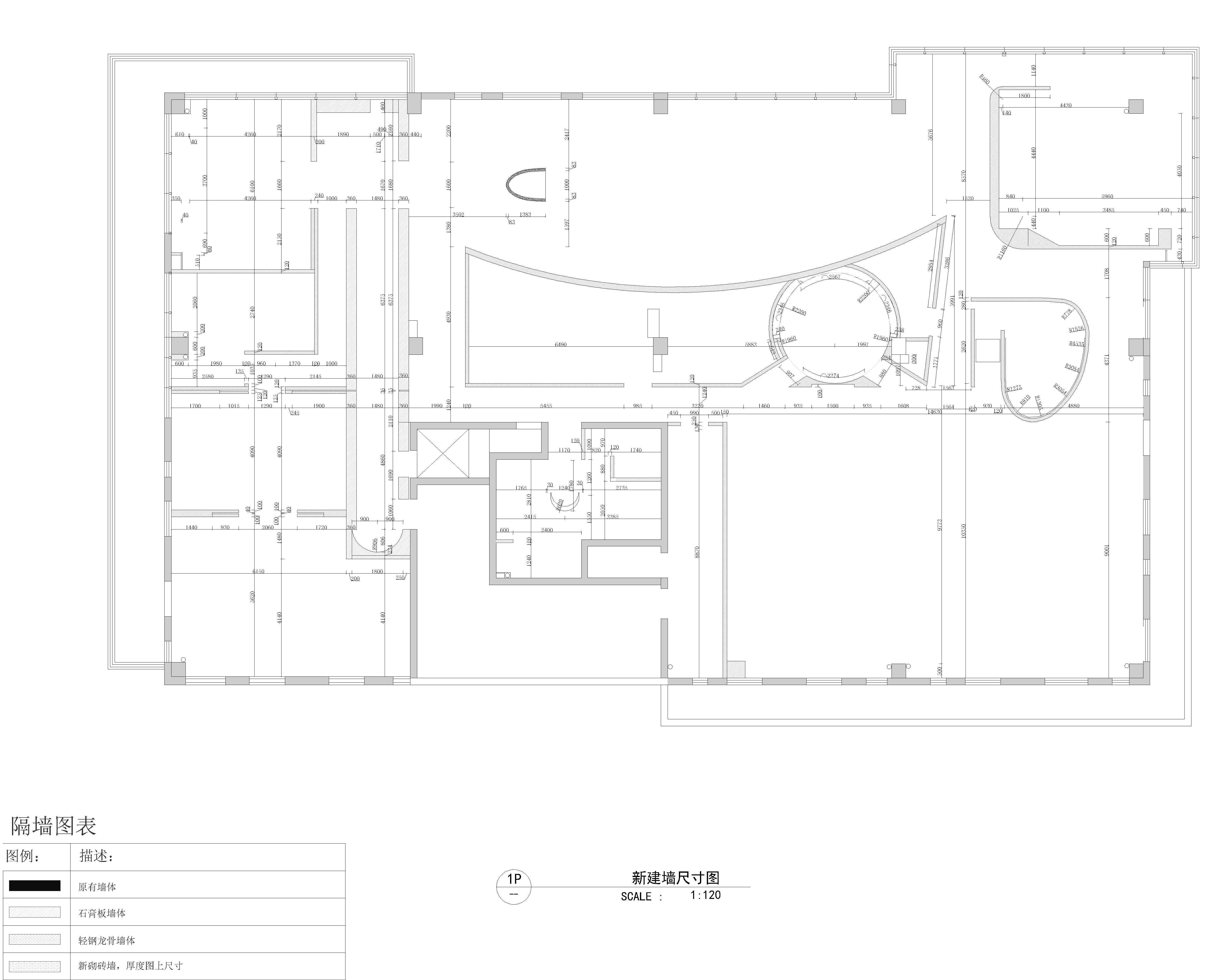
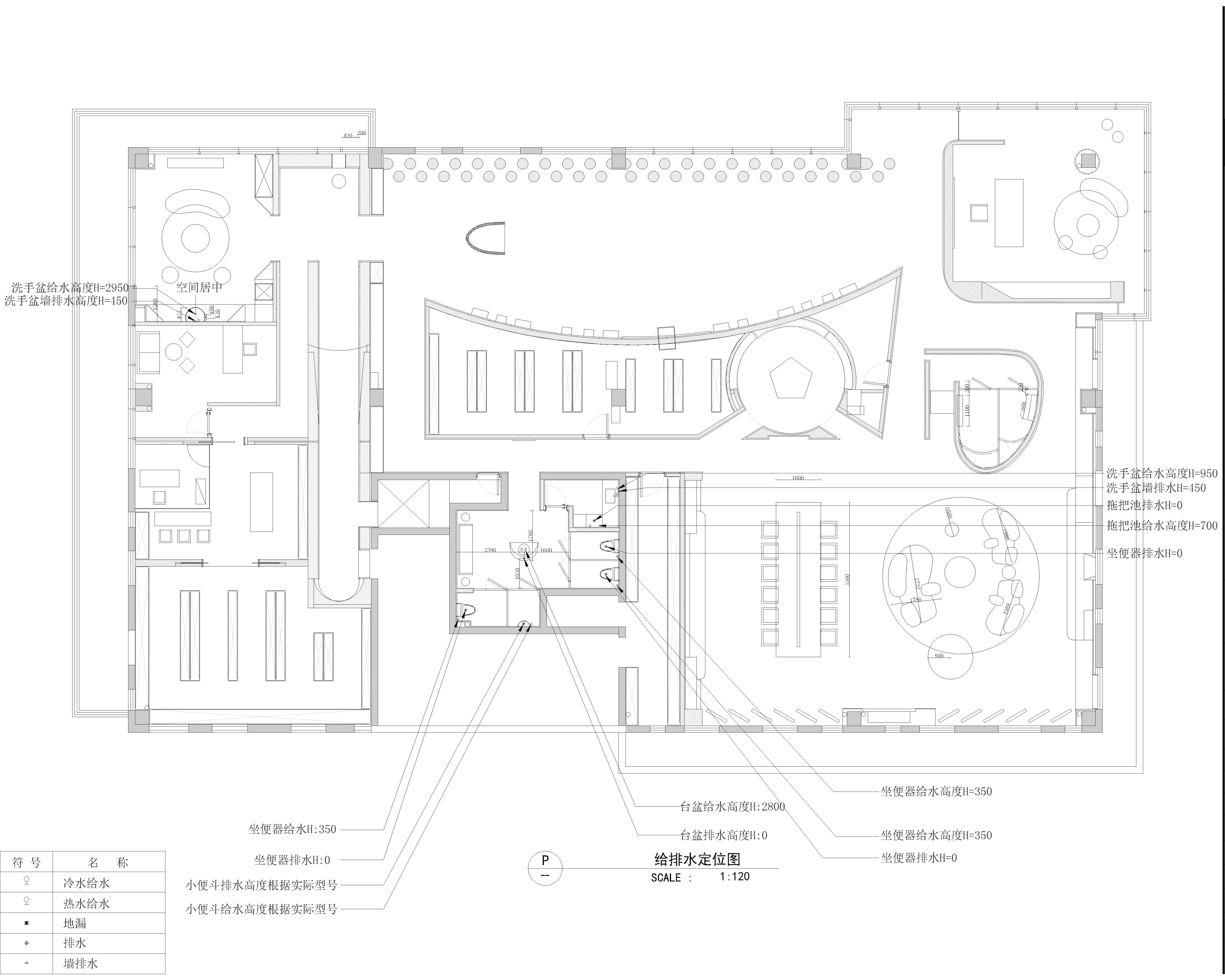
  • 空的空间 本案是一个女性服饰精品空间,在构思设计过程中,设计师希望把客户张科斐本人精神上的思想跟空间融为一体,人即是空间、空间即是人 ,当人走进空间的同时就能感受到主人的一种思想。 我们要做一个空间,一种气质或者一种境界,能够将空间本身与空间主人联系在一起。设计的时候业主说:“清淡且丰饶、寂寥且温暖、放肆且克制。”整个空间以白色为基调,表达一种空的空间,我可以把任何一个空的空间,当作空的舞台。众人都有表演欲,好的空间应该让人变成舞者,同时也是观众。你在那里展现的同时,你也看着其他人展示。 从电梯门打开的一瞬间来到一个长长的过道,入口的顶端做了一面镜子,使有限尺度的虚空空间,此时此刻被无限的延伸了,无限在有限中生存,有限尺度的无限延伸。沿着倾斜墙体的最上方有一道光的缝隙,使得原本半圆弧的顶棚看起来像悬浮在空中一样。当沿着过道往前走,眼睛收入了远处的景色,甚至聚焦于近处的细节,景观也是被分割为图像的片段,远处的窗口指引着你往里面走去,你来到一个相对大的空间,靠窗两排整齐的柱子,光在这些的柱子中回旋、转折、回弹、穿透、逆转、衰减、消失。顶棚圆天井的光,为空间建立了明亮的同时,即让空间由下而上视觉趋向于向上聚焦,垂直引导又锻造了空间的纵向连续性,打开视觉向上穿越内部边界的抗重力性,延伸我们的场域到达想像中的天空或遥远的星河。 空间弯曲的墙面“给出了一个广阔的暗示,通过凹进的表面,似乎要接纳整个周边的事物”,在白色的空间里通过镜面不锈钢材质本身的特性,使得空间更加的空灵及神秘,椭圆形的柱子慢慢的消失在顶棚上面,仿佛上面还有一个另外的空间等着去探索。 日出的第一道曙光驱走了寒意,每天只要那一线阳光初露,石材之间的缝隙随同影子的苏醒,由东向西,准备分秒演变的一日复始。 在一个相对大的服装展示空间,东方的一道光芒总能撕裂天空与大地,也赋予了空间与空间的层次,通过一些有次序的排列,光透过石材的缝隙,将空间内的人物和景象,在视觉可感中穿越瞬间、其效果引发空间的相溶呈现了宁静,其孕育而出的宁静让人得以聆听灵魂的声音。 日落的最后一线暮光是温暖的最后拥抱。光线透过柔软的纱,光线将给予你更多的形状-但影子须有立足之地。时间借助影子停留在空间向度里,影子也会量度了时间在空间中的长度。 从充足的光线之下到昏暗之中,这是一个旋律。通过一个镜面不锈钢独立的脸盆上升至顶棚的链接,似乎是无重量的上升,穿过了顶面。你被抓住了,你失去了正常的尺度感。你被一个感觉的旋律和一些巧妙的尺度征服,到了一个自在的世界,它对你说它坚持要对你说的东西。 处在整个空间里是一种“舞台”,每个人都可以看到自己和别人同时在一个空间中。人即是舞者,又是观众。同样是商业空间,可是这里,人比商品的重要性相对变大了。
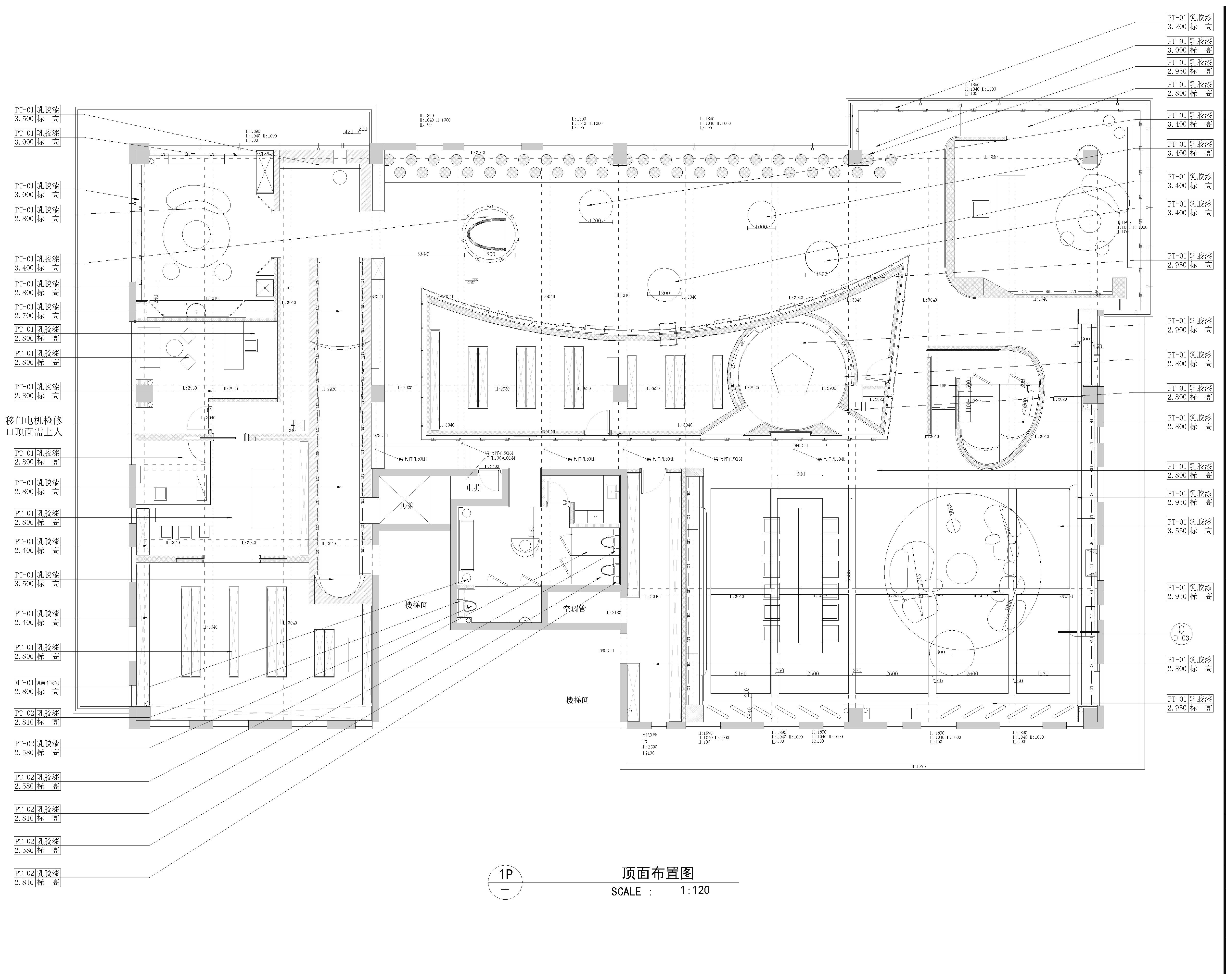
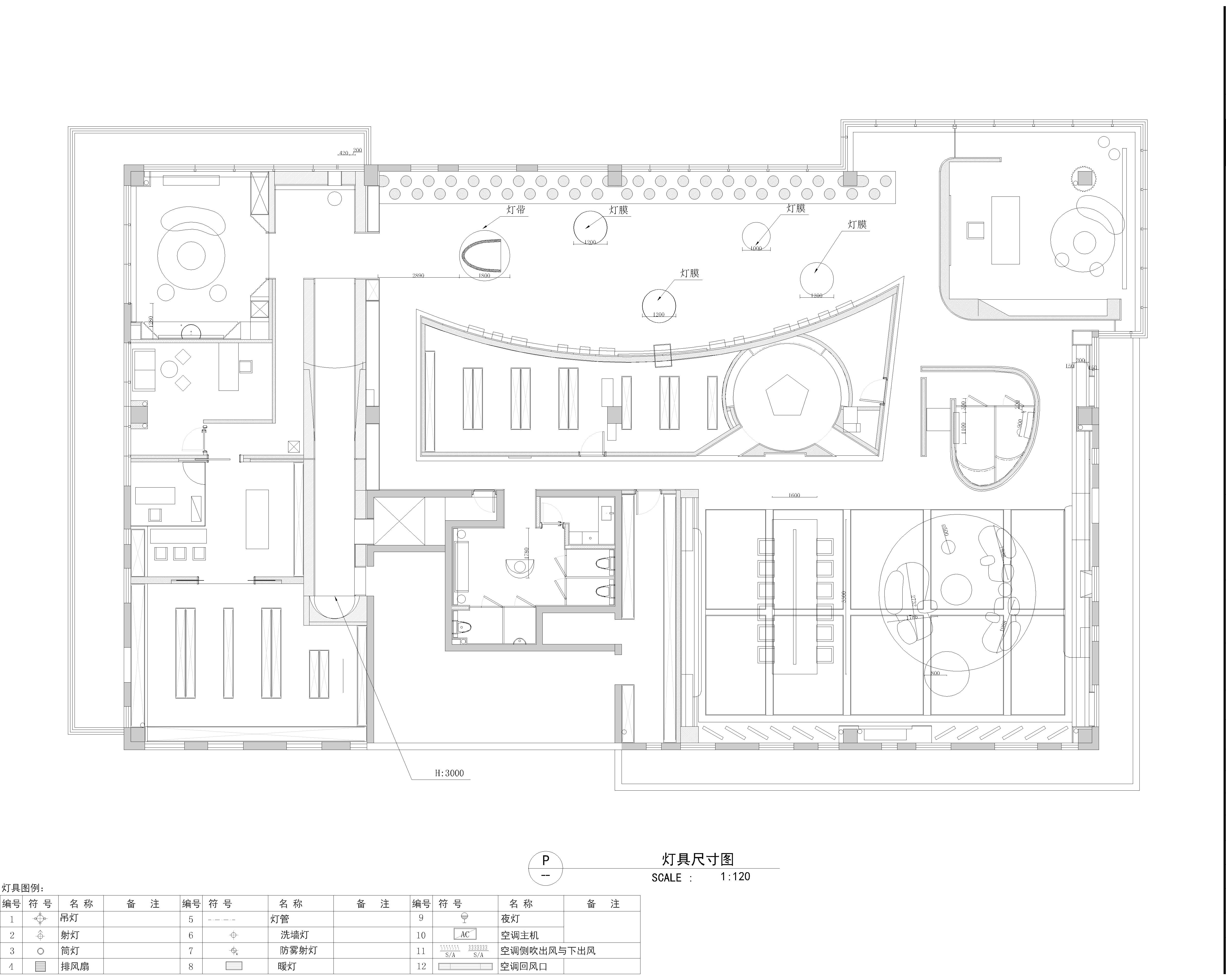
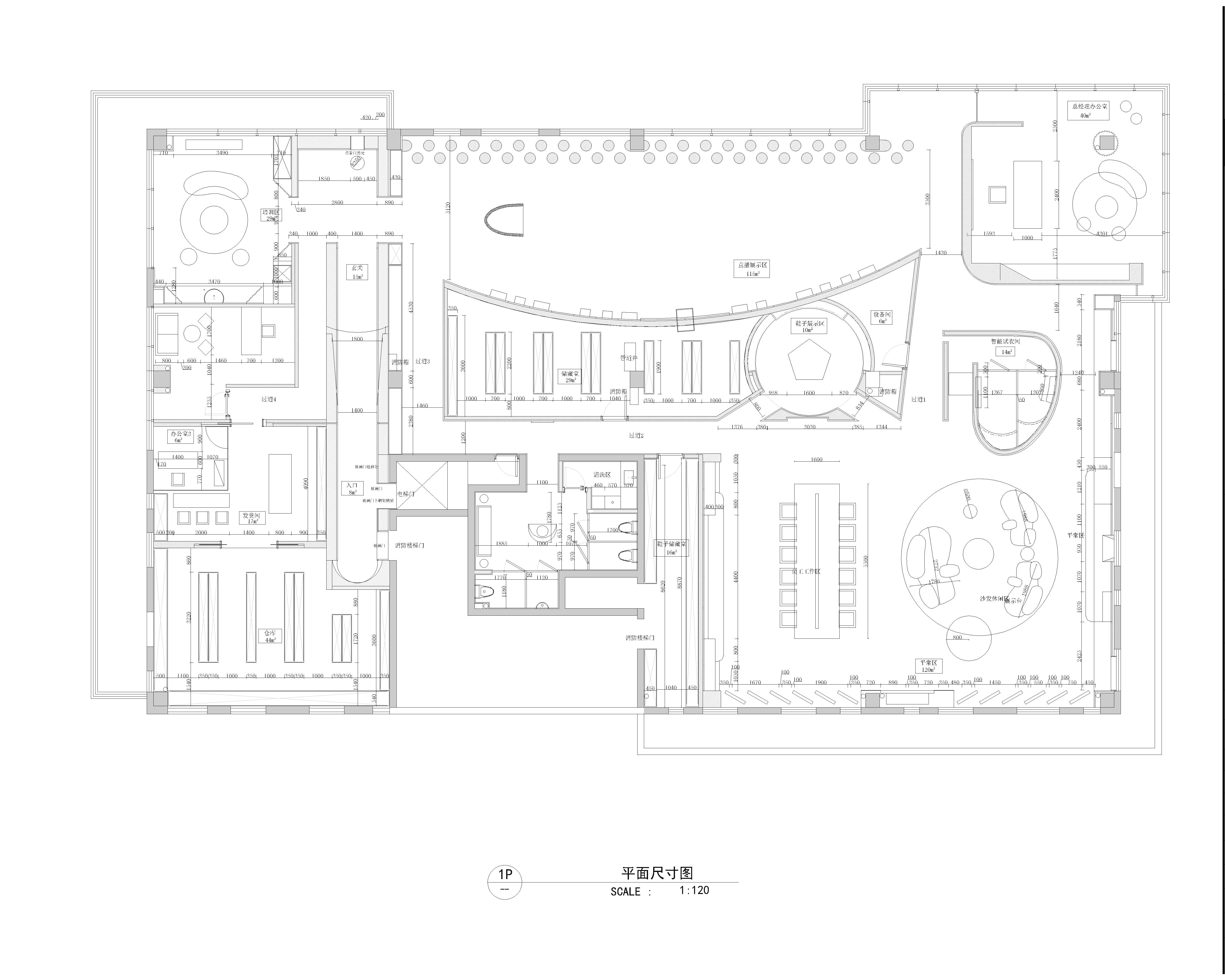
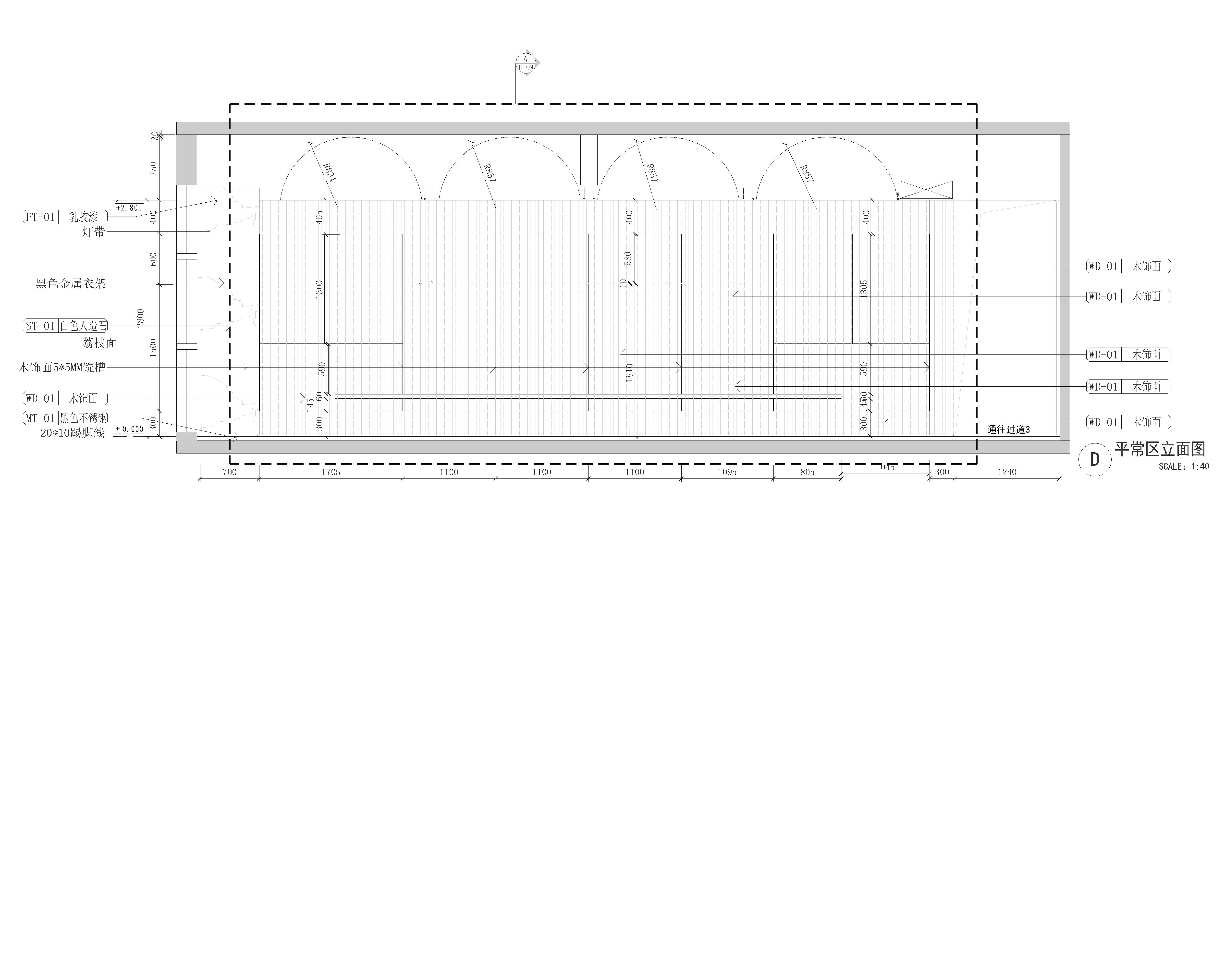
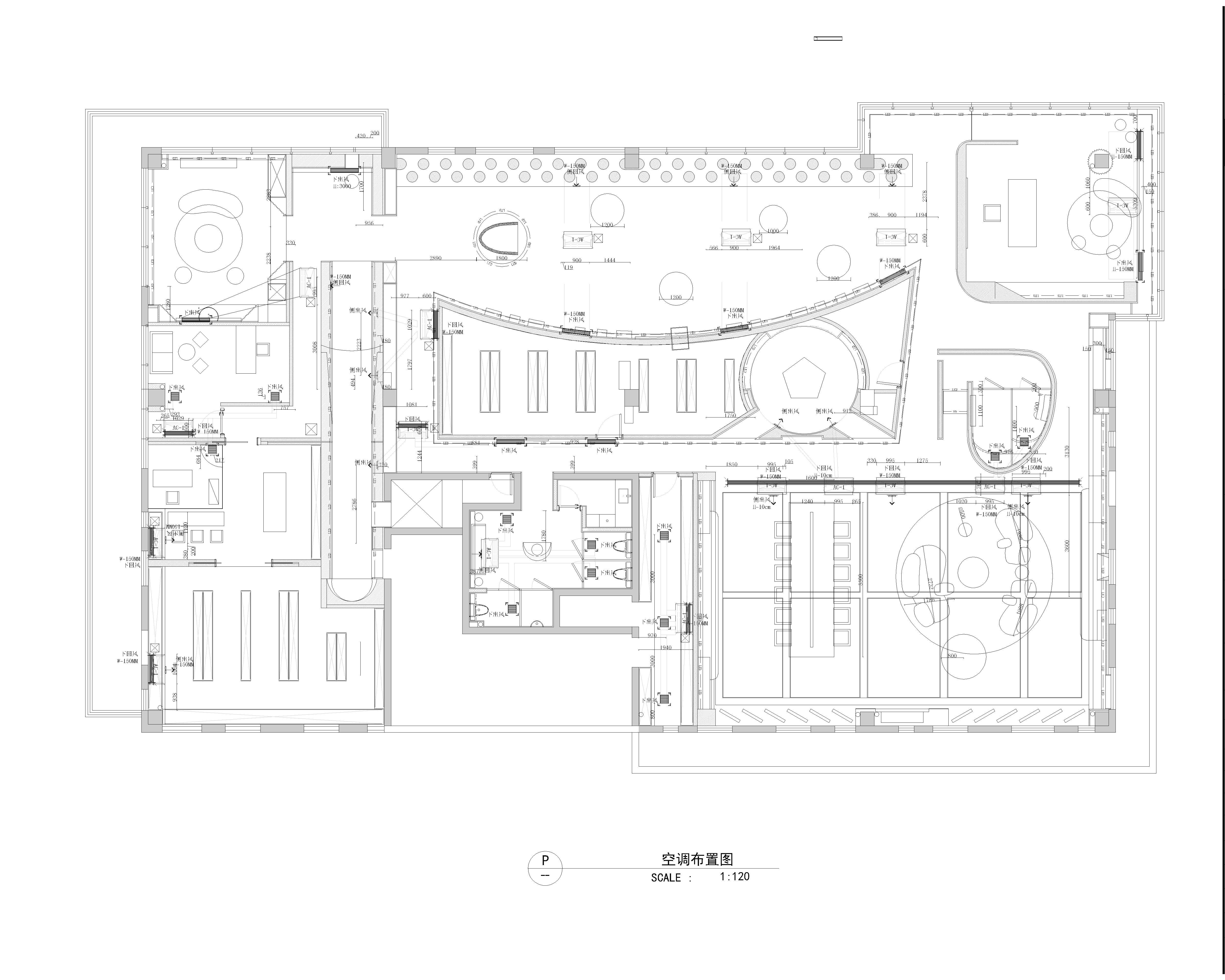
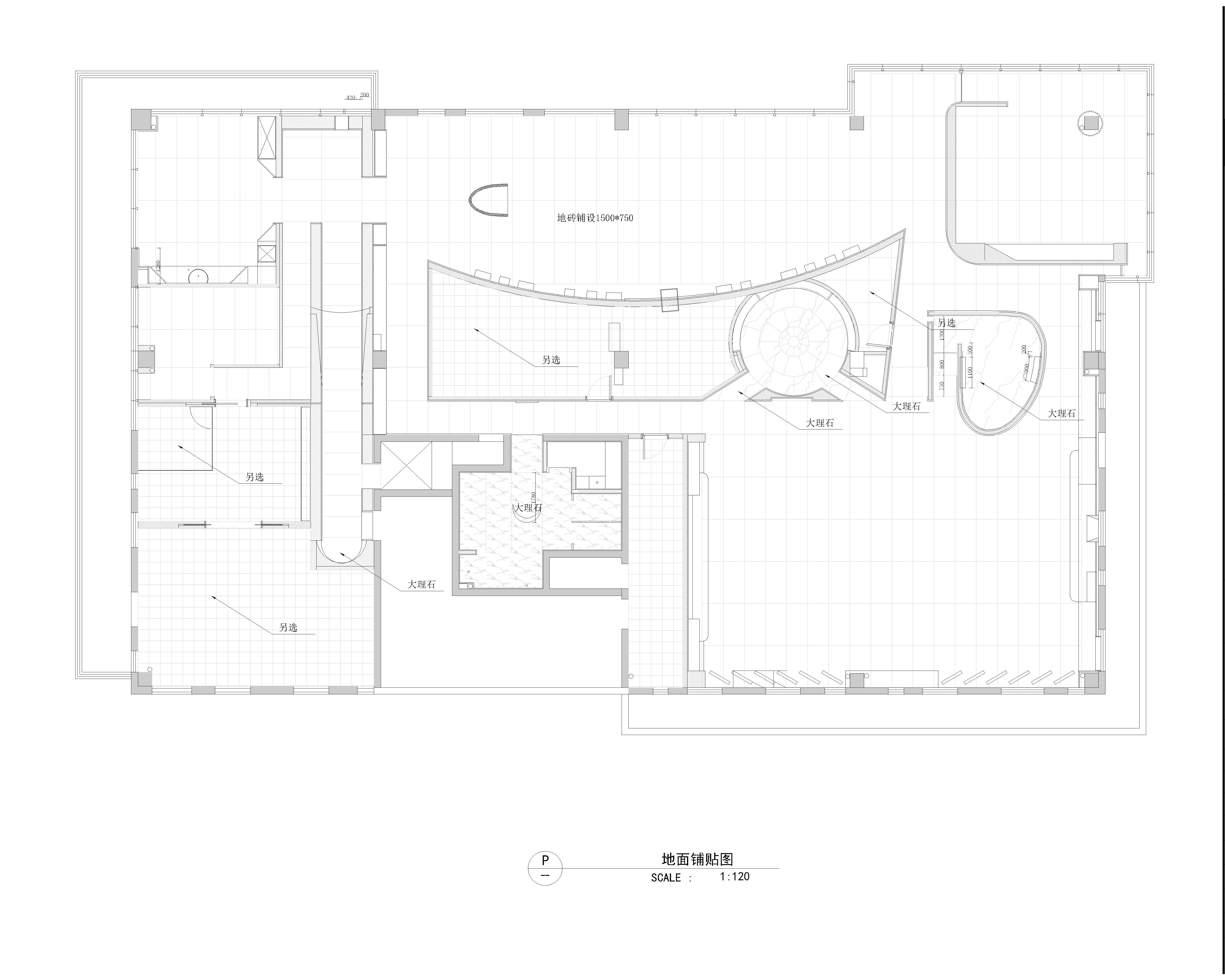
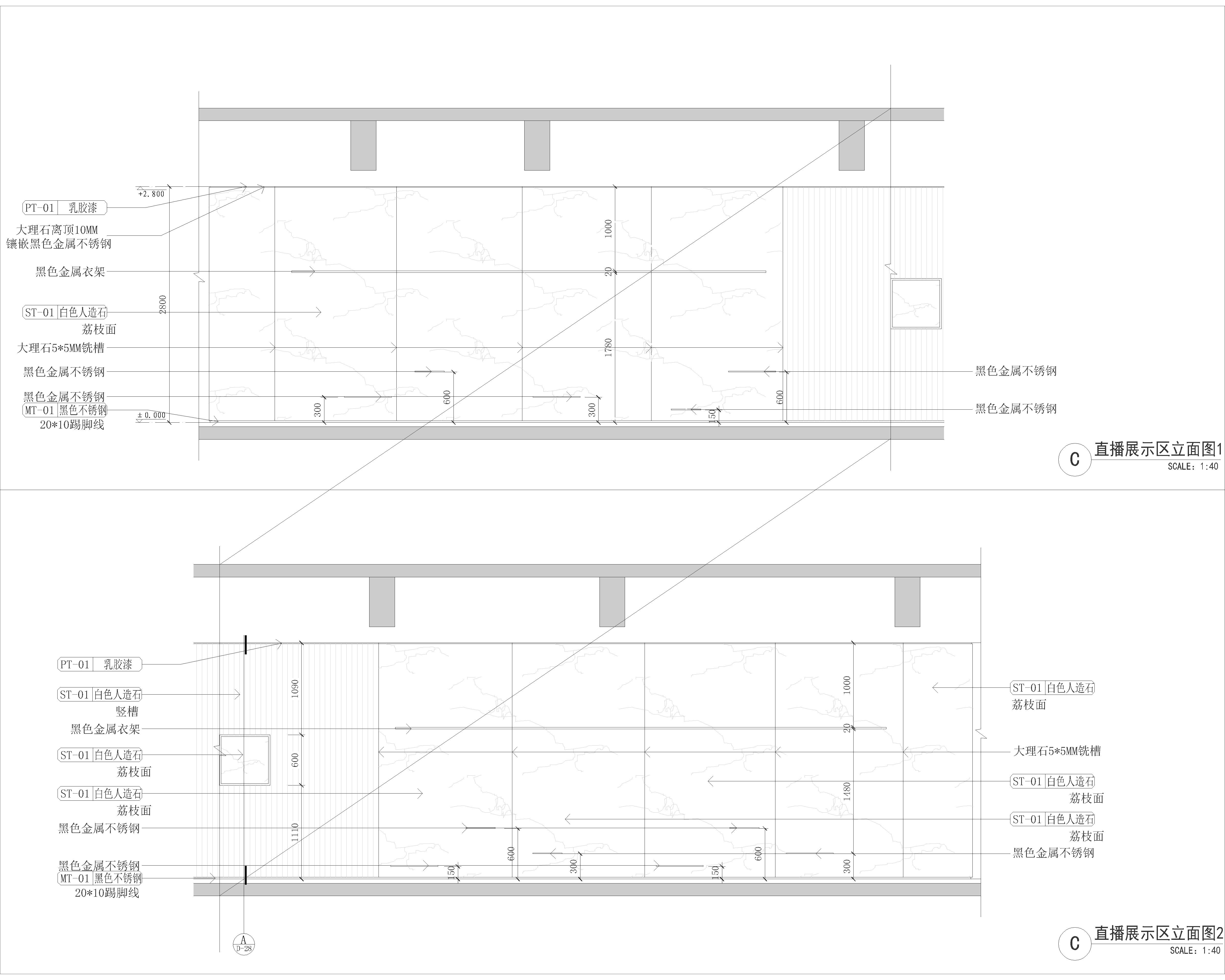
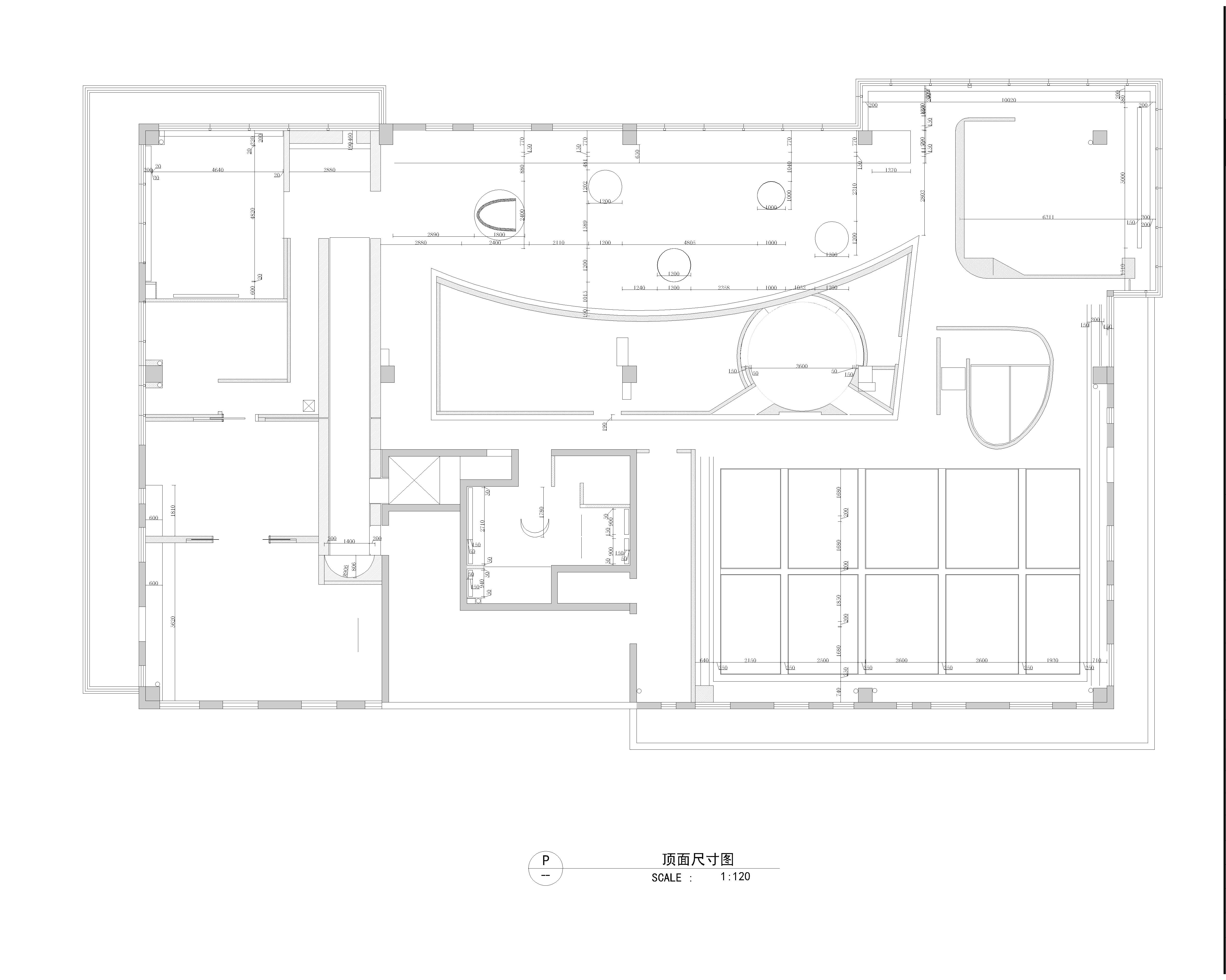
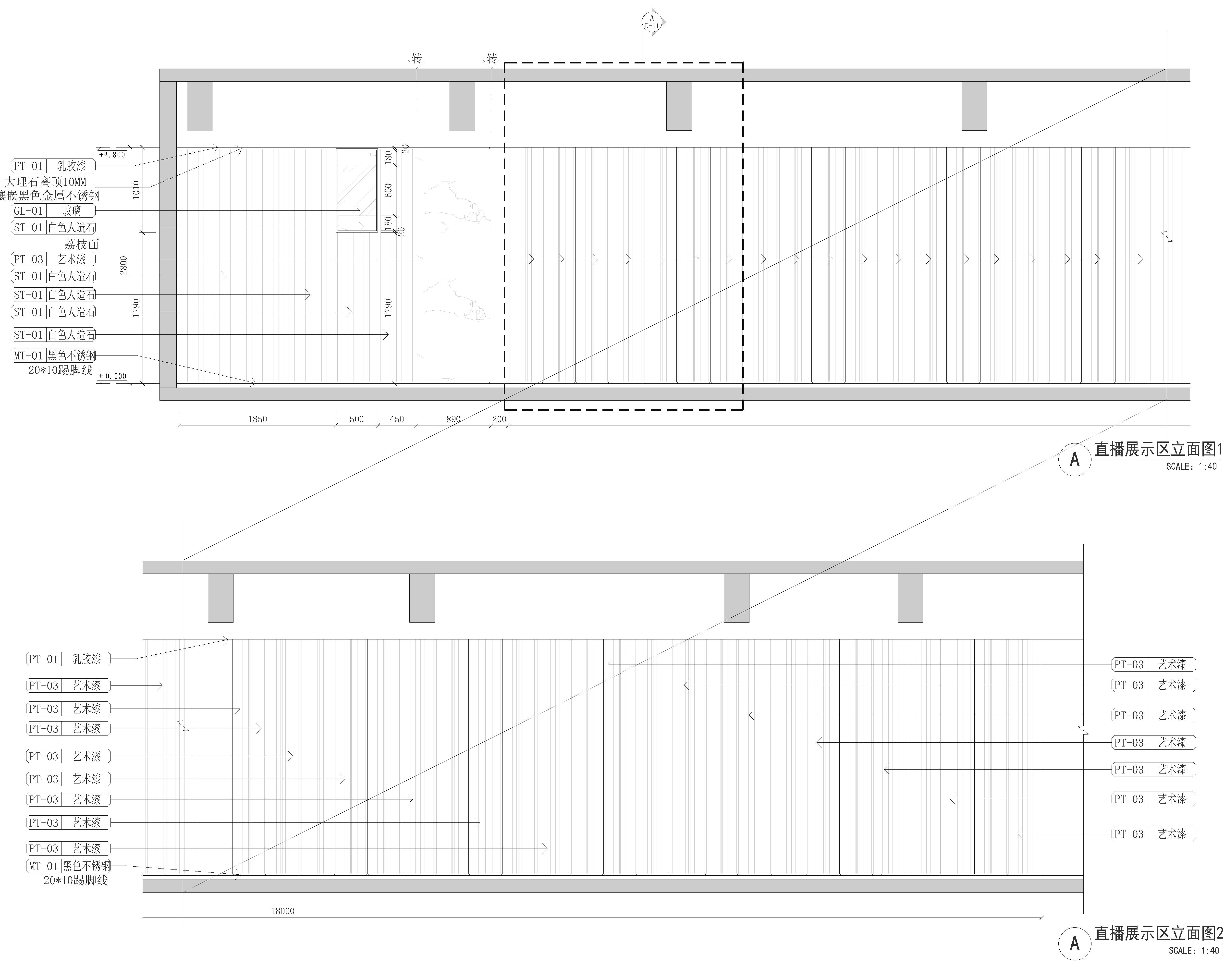
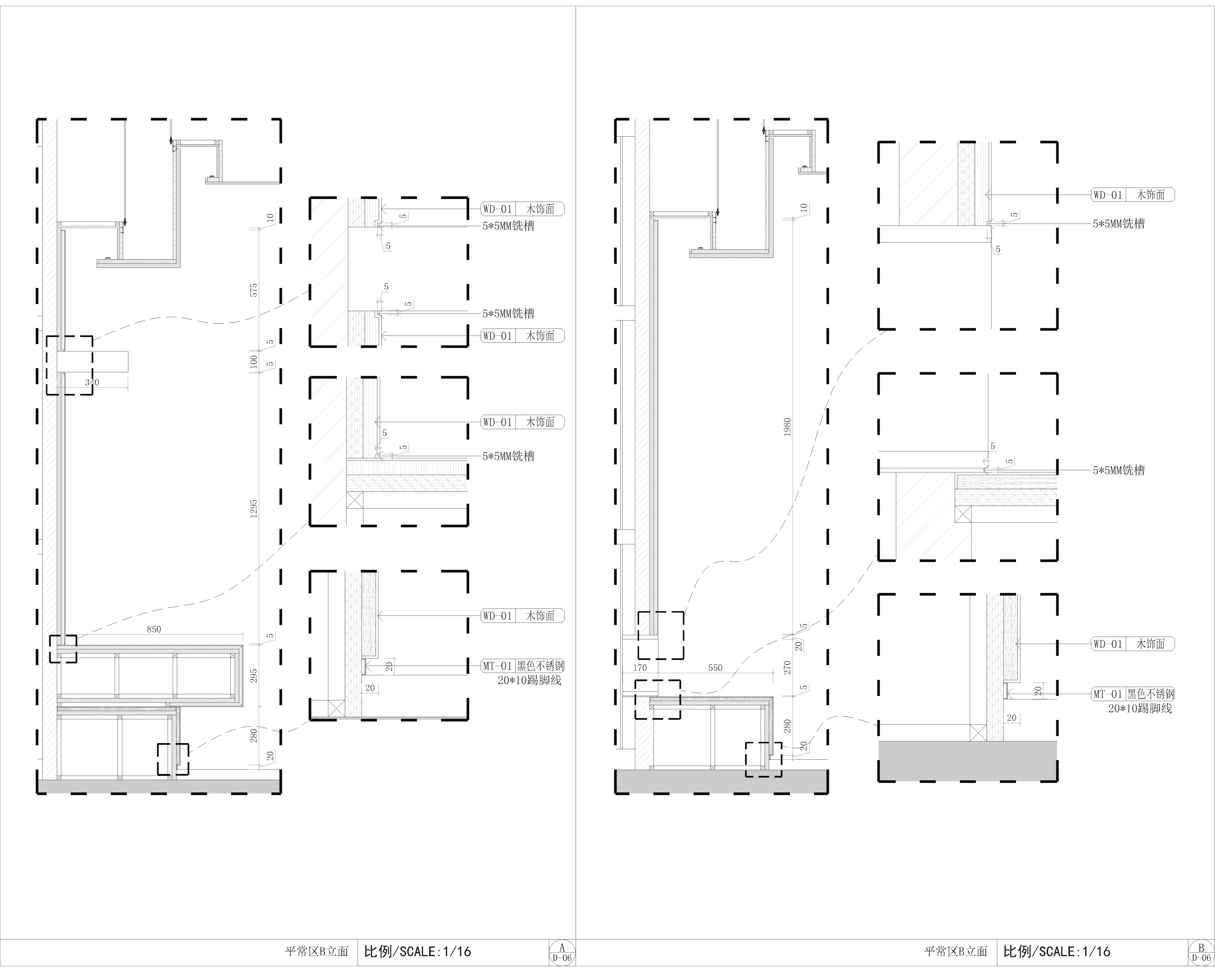
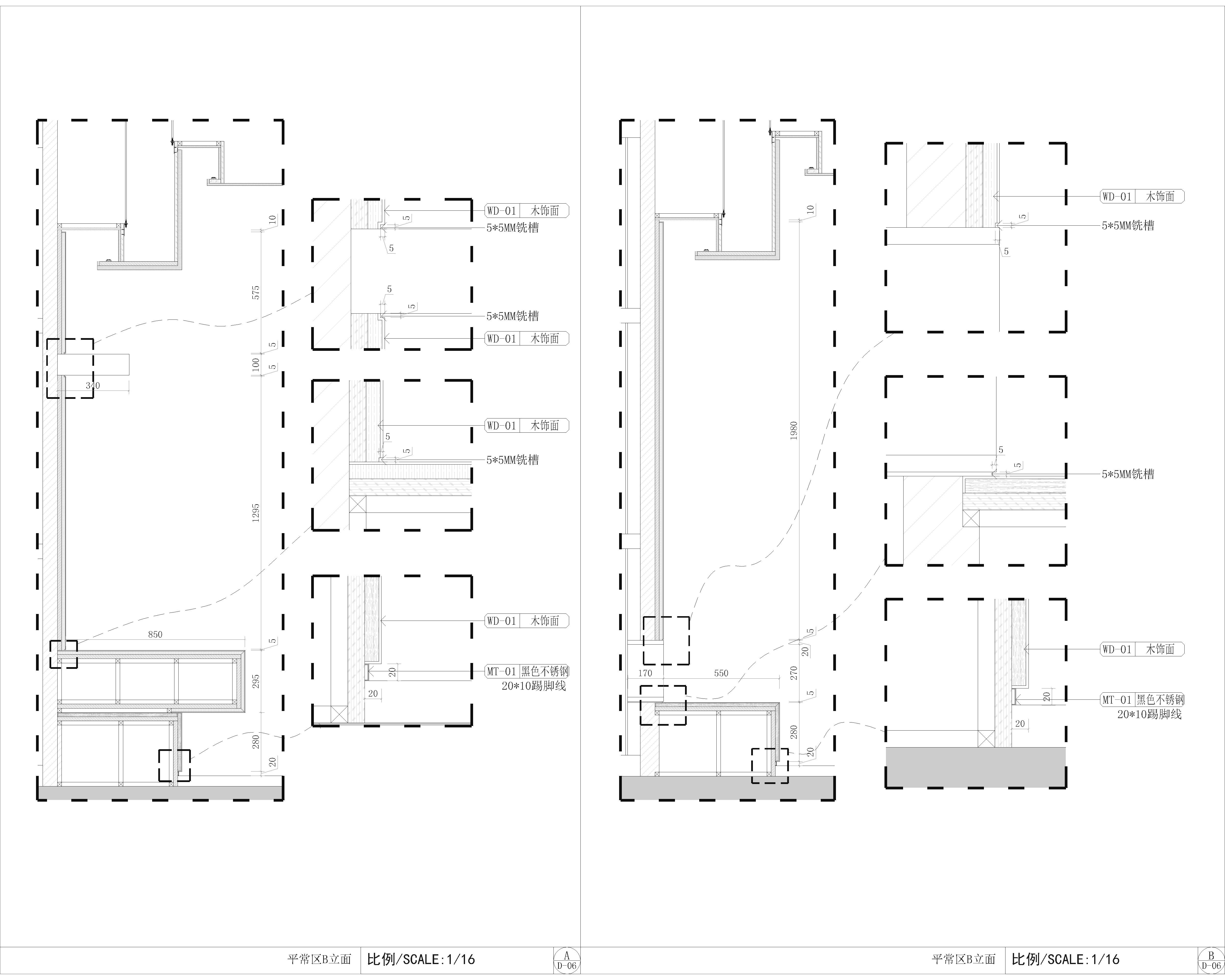
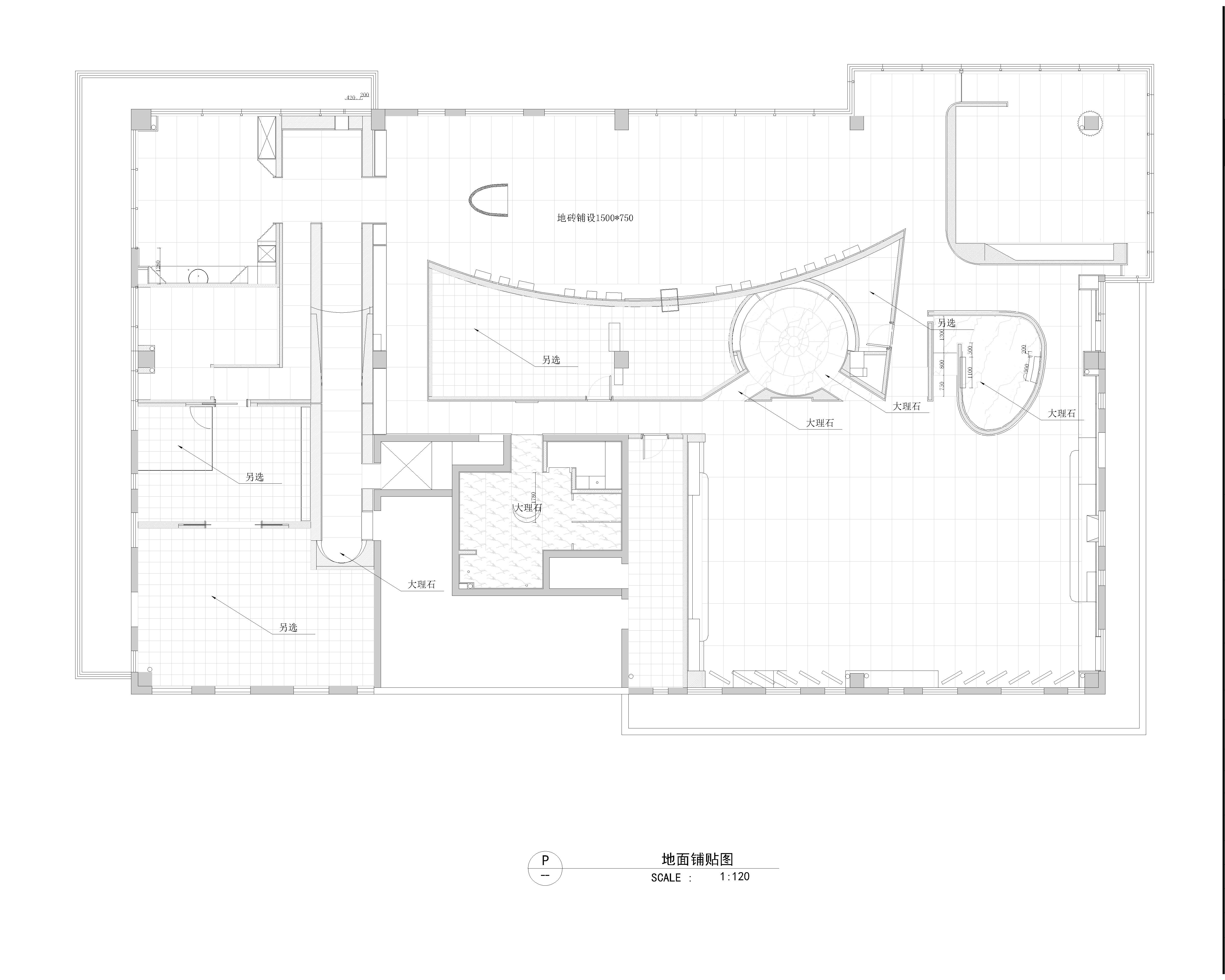
  • 图片
  • 图片
  • 图片
  • 图片
  • 图片
  • 图片
  • 图片
  • 图片
  • 图片
  • 图片
  • 图片
  • 图片
  • 图片
  • 图片
  • 图片
  • 图片
  • 图片
  • 图片
  • 图片
  • 图片
  • 图片
  • 图片
  • 图片
  • 图片
  • 图片
  • 图片
  • 图片
  • 图片
  • 图片
  • 图片
  • 图片
  • 图片
  • 图片
  • 图片
  • 图片
  • 图片
  • 图片
  • 图片
  • 图片
  • 图片
  • 图片
  • 图片
  • 图片
  • 图片
  • 图片
  • 图片
  • 图片
  • 图片
  • 图片
  • 图片
  • 图片
  • 图片
  • 图片
  • 图片
  • 图片
  • 图片
  • 图片
  • 图片
  • 图片
  • 图片
  • 图片
  • 图片
  • 图片
  • 图片
  • 图片
  • 图片
  • 图片
  • 图片
  • 图片
  • 图片
  • 图片
  • 图片
  • 上一个 下一个
    《金腾奖优秀作品年鉴》 私宅丨地产丨餐饮丨酒店丨办公丨商业丨公共丨产品丨公益丨人气 jintengAWARD(小金_金腾奖组委会) 广州市海珠区琶洲大道68号华新中心21楼
    金腾奖视频号 金腾奖小红书号 监制:闫虹
    统筹:吴佳佳
    运营:朱倩仪 王赫萱 张芷莹 胡岚恩 小金
    新媒体:王贝贝 严洁 侯乐 鹅姐
    经纪:刘译遥 石征 曹凯月
    技术:张桐 黄天佑
    最终解释权归金腾奖主办方所有