TING’S POWER HOUSE
作品详情
  • Details of the work 标题横线
    头像或者logo
    图片 唐鹏云 宁波市室内设计师协会特约推荐
    城市:宁波
    公司: 百仕合装饰设计
    参赛作品: 阪急健身房
    空间类型:办公
    个人/公司简介:
    百仕合装饰设计 设计总监 从事室内设计行业 10年 获得PRDA泛太设计联盟 青花奖 金奖 商业设计(实景类)
    设计说明 | Design Instruction
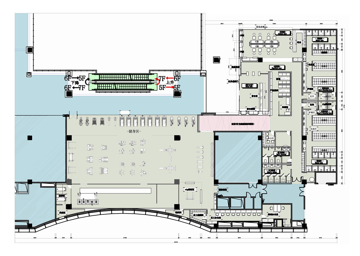
  • 前台区域 曹操在《观沧海》中叹曰:“星汉灿烂,若出其里。”银河中的灿烂群星,像从大海的怀抱中涌现出来的。 不锈钢冲压板与灯光完美结合制作的前台背景,宛如星辰大海,用大小不一的三角形组合排列,星星点点,透出璀璨星光。 而健身房,拥有着大海般的包容力,也有着大海般的挑战性,它磨炼你,更雕塑你,让你从这里出去就成为茫茫人海中最亮最靓的那一颗! 工装的前台就是门面担当,英文字“TING'S POWER HOUSE”与logo的排版,时尚闪亮,透着引人入胜的魔力,似乎能相信,当迈进这一步,就能蜕变。So power! “静区”——休闲区、更衣区 从前台进入,随后来到“静”区——休息处。这里的设计干净简约,并不商务,而是透着如家一般的温馨感。在长沙发上可以休息小憩,在落地窗边,也可以作为业务员商务洽谈的区域。 “过渡区”——“时光隧道” “时光隧道”是链接“动、静”区的纽带。这里漫天的条形灯光好似飞速滑过身边的流星雨,营造一种“穿越时空”的视觉盛宴。 这样炫目的“时光隧道”设计,让即将迈进这里的健身者有了心里建设,好似通过这段时光的打造,我们将蜕变成有马甲线的时髦人士。表达了我们对身体健康与形象管理的美好愿望,同时这个通道就像是通往成功的象征,更是刺激着我们的征服欲。 “动区”——器材区、私教区、有氧区 阪急健身房致力于打造高端休闲与健身。那么健身区所采用的器材就得专业又齐全,可以让撸铁人士体会到器械带给他的力量与快感。 从美国全进口器材,专业师资教练,全方位塑造我们的形体,增加力量美! 器材的摆放,体现了“运动与秩序”的融洽感。 拳击区 拳击,一项超酷的塑形有氧运动,追求速度与力量。 鲜红耀眼的拳击柱,就像火一样的热烈,带动着拳击手的情绪,让汗水也染上了一丝炽烈潇洒的味道。
  • 图片
  • 图片
  • 图片
  • 图片
  • 图片
  • 图片
  • 图片
  • 图片
  • 图片
  • 图片
  • 图片
  • 图片
  • 图片
  • 图片
  • 图片
  • 图片
  • 图片
  • 图片
  • 图片
  • 图片
  • 图片
  • 图片
  • 图片
  • 图片
  • 图片
  • 图片
  • 图片
  • 图片
  • 图片
  • 图片
  • 图片
  • 图片
  • 图片
  • 图片
  • 图片
  • 图片
  • 图片
  • 图片
  • 图片
  • 图片
  • 图片
  • 图片
  • 图片
  • 图片
  • 图片
  • 图片
  • 图片
  • 图片
  • 图片
  • 图片
  • 图片
  • 图片
  • 图片
  • 图片
  • 图片
  • 图片
  • 图片
  • 图片
  • 图片
  • 图片
  • 图片
  • 图片
  • 图片
  • 图片
  • 上一个 下一个
    《金腾奖优秀作品年鉴》 私宅丨地产丨餐饮丨酒店丨办公丨商业丨公共丨产品丨公益丨人气 jintengAWARD(小金_金腾奖组委会) 广州市海珠区琶洲大道68号华新中心21楼
    金腾奖视频号 金腾奖小红书号 监制:闫虹
    统筹:吴佳佳
    运营:朱倩仪 王赫萱 张芷莹 胡岚恩 小金
    新媒体:王贝贝 严洁 侯乐 鹅姐
    经纪:刘译遥 石征 曹凯月
    技术:张桐 黄天佑
    最终解释权归金腾奖主办方所有