味上日料店
作品详情
  • Details of the work 标题横线
    头像或者logo
    图片 郑勤科 宁波市室内设计师协会特约推荐
    城市:宁波
    公司: 宁波一绪空间设计有限公司
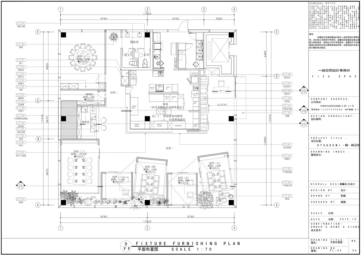
    参赛作品: 味上日料店
    空间类型:办公
    个人/公司简介:
    一绪空间设计 创始人 中国高级住宅室内设计师 宁波市室内设计师协会荣誉会员 中国室内装饰协会(CIDA)会员 青设会宁波分会副会长 玩转空间,匠心臻善 设计是一件好玩的事情
    设计说明 | Design Instruction
  • 在解构美学的探索里,丰满空间层次,正如在食材本鲜的领域,玩儿出概念料理,修得美味之上,觅得品味之上。思者如斯,作也秀丽。 本案微妙,是置身悠然处,喧嚣不扰,为私享、为共乐,精铸巧设一尊味蕾的后花园。通过私人定制,以西餐形式推出日、韩佳肴。 院里,树丛围裹、枝叶茂盛,绿意幽盖昼夜。一路连绵的景致,穿过如巨幕般的落地窗,延伸入室,画面由此,形影交融。屋内,庭院式的布景使空间无所拘束,各个包厢独立存在着。选用宣纸糊窗,保持中部遮蔽,作上下活动,即有隔断赋予的私密感,又不曾切断与自然的一面相遇,花叶经光照投影至此,不必修饰,即成画作。 为了让所有包厢都能拥有更好地观景视野,设计师对原本的用餐区加以改造,将其错落、斜拼,极力打造房中房的建筑质感,且不荒废任何一处的采光。夯土墙的古朴最适于搭配昏暗环境里隐约可见的轮廓光,在神秘感的层层递进中,枯山水所蕴含的禅宗释意渐渐感染着当下,琳琅满目的酒柜、规整密布的格子墙,乃至一束插花、一星点光,无一不在相互烘托着,如同一幕附了生命的诗卷,使目光所及之处,皆有可观之景。
  • 图片
  • 图片
  • 图片
  • 图片
  • 图片
  • 图片
  • 图片
  • 图片
  • 图片
  • 图片
  • 图片
  • 上一个 下一个
    《金腾奖优秀作品年鉴》 私宅丨地产丨餐饮丨酒店丨办公丨商业丨公共丨产品丨公益丨人气 jintengAWARD(小金_金腾奖组委会) 广州市海珠区琶洲大道68号华新中心21楼
    金腾奖视频号 金腾奖小红书号 监制:闫虹
    统筹:吴佳佳
    运营:朱倩仪 王赫萱 张芷莹 胡岚恩 小金
    新媒体:王贝贝 严洁 侯乐 鹅姐
    经纪:刘译遥 石征 曹凯月
    技术:张桐 黄天佑
    最终解释权归金腾奖主办方所有