Minimalist Lifestyle
作品详情
  • Details of the work 标题横线
    头像或者logo
    图片 亢品
    城市:北京
    公司: 合域设计工作室
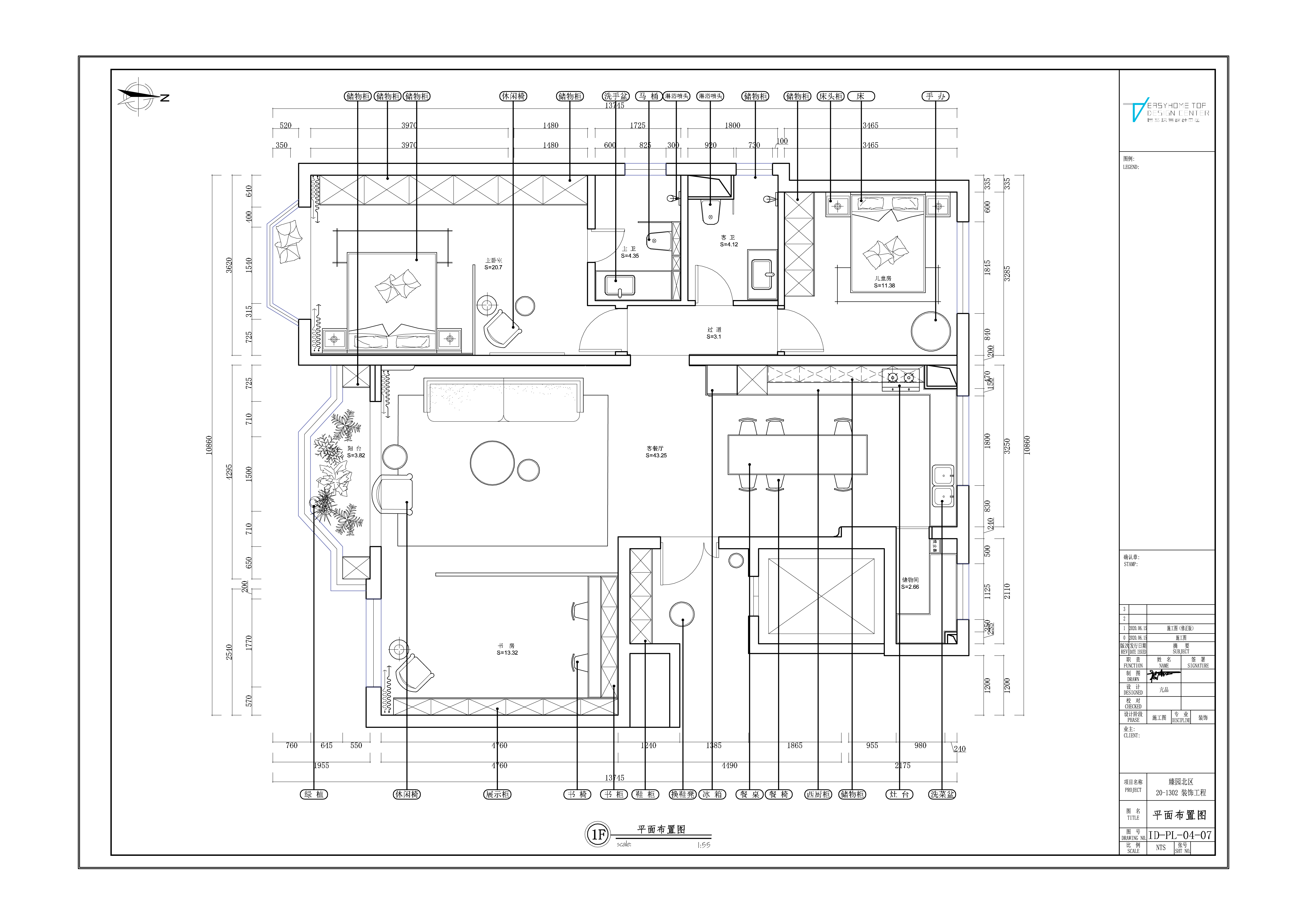
    参赛作品: 致简生活
    空间类型:公寓(150㎡以下)
    个人/公司简介:
    合域装饰设计有限公司 创始人/设计总监 进修于中央美术学院 从业20年 公司经营理念:专业让生活更简单。 居然顶层设计中心 签约设计师 2020中国人健康宜居计划 设计大使 居然设计家&阿里巴巴 云设计家项目 设计顾问 2019北京国际设计周IDCC创造赛 特约专家委员 2018北京国际设计周 作品入选大家据国际家居展 2018北京国际设计周 鳞角生活 特约嘉宾 2018居然之家异业联盟新闻发布会 特约嘉宾 凤凰卫视设计家栏目 特约设计师
    设计说明 | Design Instruction
  • 本案业主是:孙女士一家三口,儿子初中,夫妻四十来岁,事业有成,希望自己的生活简单,但有品质。因此我们在设计中主要以化繁为简的理念,简化所有不必要的内容,用材上也以归纳概括的手法,减少多余的造型、线条、元素。以最具释放力的白色为主调,搭配纯粹的原木色,使空间开阔明亮。在产品配置上,主要以细节工艺、材料品质均高的进口产品为主,满足了客户对高品质生活的需求,达到了简单而精致的生活理念。
  • 图片
  • 图片
  • 图片
  • 图片
  • 图片
  • 图片
  • 图片
  • 图片
  • 图片
  • 图片
  • 图片
  • 图片
  • 图片
  • 图片
  • 图片
  • 图片
  • 图片
  • 图片
  • 图片
  • 图片
  • 图片
  • 上一个 下一个
    《金腾奖优秀作品年鉴》 私宅丨地产丨餐饮丨酒店丨办公丨商业丨公共丨产品丨公益丨人气 jintengAWARD(小金_金腾奖组委会) 广州市海珠区琶洲大道68号华新中心21楼
    金腾奖视频号 金腾奖小红书号 监制:闫虹
    统筹:吴佳佳
    运营:朱倩仪 王赫萱 张芷莹 胡岚恩 小金
    新媒体:王贝贝 严洁 侯乐 鹅姐
    经纪:刘译遥 石征 曹凯月
    技术:张桐 黄天佑
    最终解释权归金腾奖主办方所有