DingShan Premium Dishes
作品详情
  • Details of the work 标题横线
    头像或者logo
    图片 顾鑫 贰道杠传媒特约推荐
    城市:苏州
    公司: 甲子造设计
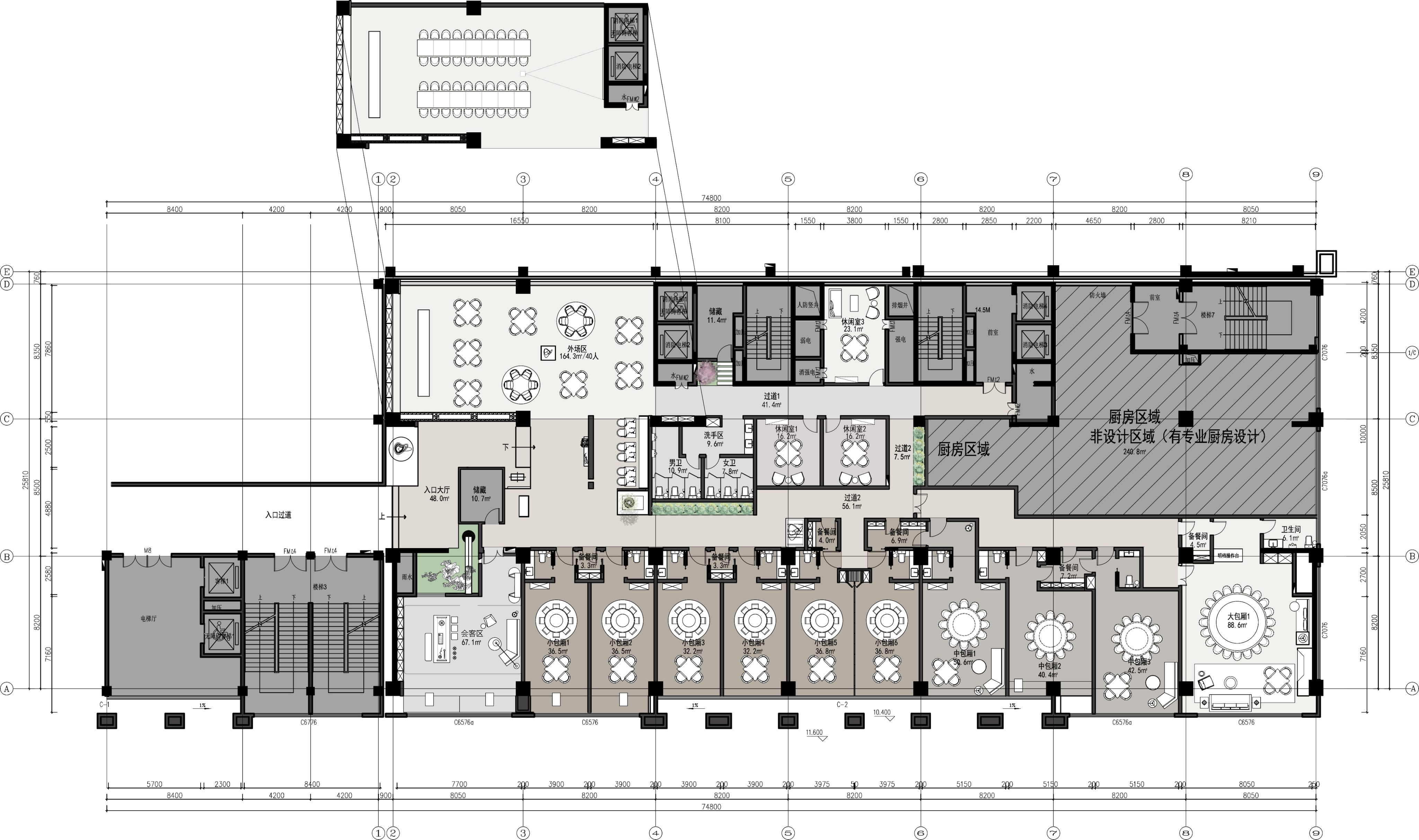
    参赛作品: 顶膳会 · 餐饮会所
    空间类型:民宿
    个人/公司简介:
    个人荣誉: 国家注册高级室内建筑师(已纳入设计人才库) 苏州装饰设计行业协会 理事 2015年 获室内设计精英邀请赛 二等奖 2015年 获筑巢奖(酒店类) 金奖 2016年 获第七届中国国际空间设计大赛 银奖 2017年 获国际环艺创新设计作品大赛(华鼎奖) 办公类 金奖 2019年 获亚太室内设计精英邀请赛 一等奖 2020年 获广州设计周红棉中国设计奖(酒店类) 2020年 获腾讯家居评选"先锋设计品牌" 2020年 获年度最佳"民宿建筑改造设计" 2021年 获包豪斯国际设计大赛 金奖 2021年 获老宅新生-2021年度最佳古建筑保护设计奖 2022年 获红棉设计奖-最美艺术空间设计奖 2022年 获40UNDER40中国(江苏)设计杰出青年
    设计说明 | Design Instruction
  • 设计理念: 该品牌主要经营高端粤菜,空间氛围上会吸取一些南洋海派的建筑语言:1.殖民背景影响下的欧洲文化和根深蒂固的东方文化在这片土地上特有的混搭,拱门元素、中式建筑构架、黑白+跳色的视觉感,2.以及亚热带气候的地域环境造就对藤编、竹编在家具上的运用等... 在空间布局的分配上:由入口处的前厅及游走的转折过道,刻意的拉长了客人进入后的情绪,吊挂的半透半掩的透光混凝土隔墙,在窥探、吊起游走路径上客人的好奇心,入口路径的末端通过一个解构手法的悬空挡墙将客流分流为左右两侧的开敞用餐区和包厢区,流线清晰互不干扰。开放宽敞的用餐区由入口及走道处压抑后再放开,更增强了空间的层次感受。 整体空间呈现低照度的氛围感,温和高消费人群对消费空间的心理述求,无论处于空间任何角落用餐都不会感受到被瞩目的不适感,隐于空间内恰恰是让人感受到静谧适宜...
  • 图片
  • 图片
  • 图片
  • 图片
  • 图片
  • 图片
  • 图片
  • 图片
  • 图片
  • 图片
  • 图片
  • 图片
  • 图片
  • 图片
  • 图片
  • 图片
  • 图片
  • 图片
  • 图片
  • 图片
  • 图片
  • 图片
  • 图片
  • 图片
  • 图片
  • 图片
  • 上一个 下一个
    《金腾奖优秀作品年鉴》 私宅丨地产丨餐饮丨酒店丨办公丨商业丨公共丨产品丨公益丨人气 jintengAWARD(小金_金腾奖组委会) 广州市海珠区琶洲大道68号华新中心21楼
    金腾奖视频号 金腾奖小红书号 监制:闫虹
    统筹:吴佳佳
    运营:朱倩仪 王赫萱 张芷莹 胡岚恩 小金
    新媒体:王贝贝 严洁 侯乐 鹅姐
    经纪:刘译遥 石征 曹凯月
    技术:张桐 黄天佑
    最终解释权归金腾奖主办方所有