融化的奶酪
作品详情
  • Details of the work 标题横线
    头像或者logo
    图片 陈智超
    城市:广州
    公司: 广州不合时宜设计有限公司
    参赛作品: 融化的奶酪
    空间类型:公寓(150㎡以下)
    个人/公司简介:
    姓名:陈智超 出生年月:1997年8月8日 从业经验:5年 设计机构:广州不合时宜设计有限公司 在职机构职务:首席设计师 设计理念:擅长为独特的屋主做独特的家 主设项目:经济型住宅类 曾获荣誉: 2023 2022-2023 TOP DESIGN 100设计头条年鉴榜——全国榜TOP100 2023玩色主义空间设计大赛-玩色主义创意奖 第十五届“CBDA照明应用设计大赛”三等奖 2022 中国设计星(2022-2023)全国36强候选人 红棉设计奖·2022优秀艺术空间设计奖 一兜糖“最有温暖私宅设计TOP500” 2022年度唯美中国设计奖·优秀空间 华艺杯“空间造型组TOP140” 2020 “星艺杯”公装项目设计实景类优秀奖
    设计说明 | Design Instruction
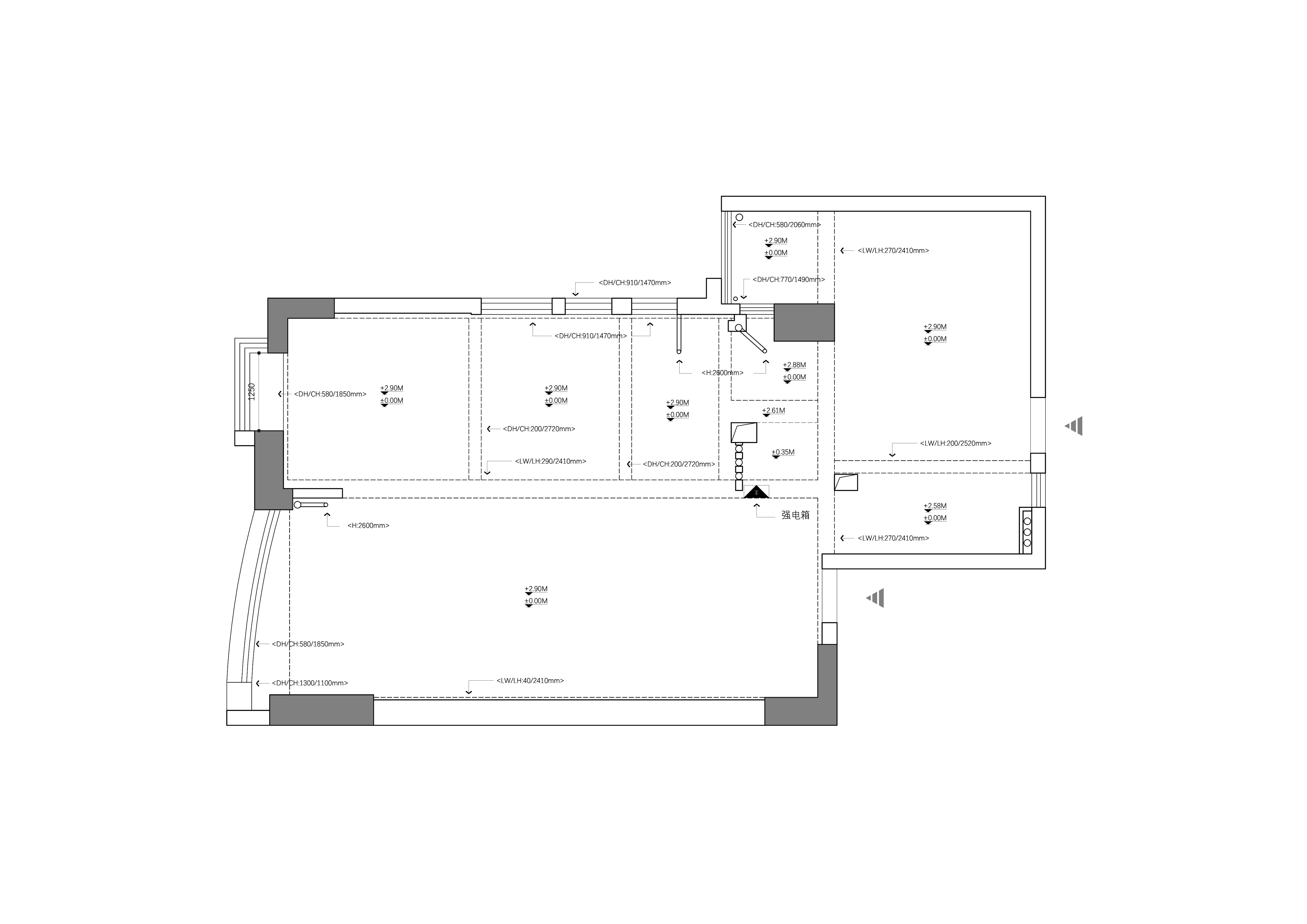
  • 1)以关键词“奶酪”贯穿整屋的设计主题,柔和整个家的视觉感受,简洁的线条包容性高,与现代生活的必需品共处和谐。 2)无主灯设计,一个个灯孔和椭圆形的窗户,让人联想到奶酪上的小孔;充满弧度的墙体细节,让整个空间看上去就像是一枚“融化的奶酪”。 业主需求及原户型缺点: 原户型很有意思,有两个独立的大门,但因此也造成户型的功能区割裂,互动性弱。结合这套房子大部分时间是屋主两人居住,以及他们对书房、吧台、客厅等功能区域的需求,我们对整个空间进行了重新梳理。 如何用设计解决问题  1. 纵向 1)首先我们二选一确定了主入口的位置,这样大的空间动线就清晰了起来; 2)考虑到整栋楼是商住两用的模式,人流量较大,我们在入户处设计了玄关,这样既能保证私密性又有玄关的功能性; 3)卫生间一改传统布局,极大扩容了洗漱台的收纳功能外/也给封闭阳台后没有归属地的洗衣机烘干机找到了合适的位置;独立马桶间+淋浴间,洗漱台+洗衣区依次排列开来,彻底实现四分离,彼此之间互不干扰。 2.横向 1)拆除客厅与书房、厨房、儿童房之间的隔墙,把原本独立封闭的厨房改成半开放式厨房,并新增了吧台,丰富了不同的使用场景; 2)考虑考虑到项目位于广州中心城区,车多嘈杂,因此用系统窗将阳台空间纳入室内,扩容整体公区空间。
  • 图片
  • 图片
  • 图片
  • 图片
  • 图片
  • 图片
  • 图片
  • 图片
  • 图片
  • 图片
  • 图片
  • 图片
  • 图片
  • 图片
  • 图片
  • 图片
  • 上一个 下一个
    《金腾奖优秀作品年鉴》 私宅丨地产丨餐饮丨酒店丨办公丨商业丨公共丨产品丨公益丨人气 jintengAWARD(小金_金腾奖组委会) 广州市海珠区琶洲大道68号华新中心21楼
    金腾奖视频号 金腾奖小红书号 监制:闫虹
    统筹:吴佳佳
    运营:朱倩仪 王赫萱 张芷莹 胡岚恩 小金
    新媒体:王贝贝 严洁 侯乐 鹅姐
    经纪:刘译遥 石征 曹凯月
    技术:张桐 黄天佑
    最终解释权归金腾奖主办方所有