292 square meters of micro-cement art paint, accompanied by high-end furniture, a 30-million-dollar mansion
作品详情
  • Details of the work 标题横线
    头像或者logo
    图片 戴家骏
    城市:北京
    公司: 家骏空间
    参赛作品: 292㎡微水泥艺术漆,高定家具相伴,三千万豪宅
    空间类型:公寓(150㎡以下)
    个人/公司简介:
    2013艾特奖       最佳样板房设计入围奖 2017年CCTV2《空间榜样》特邀嘉宾 2018拓者杯       年度最佳作品 2018红鼎奖       商业空间类TOP10设计作品奖 2018金堂奖       年度优秀住宅软装设计 2018CBDA中国软装陈设设计奖   住宅空间类·银奖 2019M+中国高端室内设计大赛全国城市赛区TOP奖 2019芒果奖       晋级 2019祝融奖       中国照明应用设计大赛北京赛区·优胜奖 2019红鼎奖       普通住宅类空间设计·银奖 2019营造家奖    华北赛区最佳中户型TOP20 2019筑巢奖       普通户型公众类别提名奖 2019中国陶瓷创新产品与空间应用设计大赛中荣获灯光照明设计应用先锋 2019人民邮电出版社出版《室内设计与施工完全手册》 2021 祝融奖       中国照明应用设计大赛北京赛区·优胜奖 2022 筑巢奖       商业空间-商铺·优秀奖
    设计说明 | Design Instruction
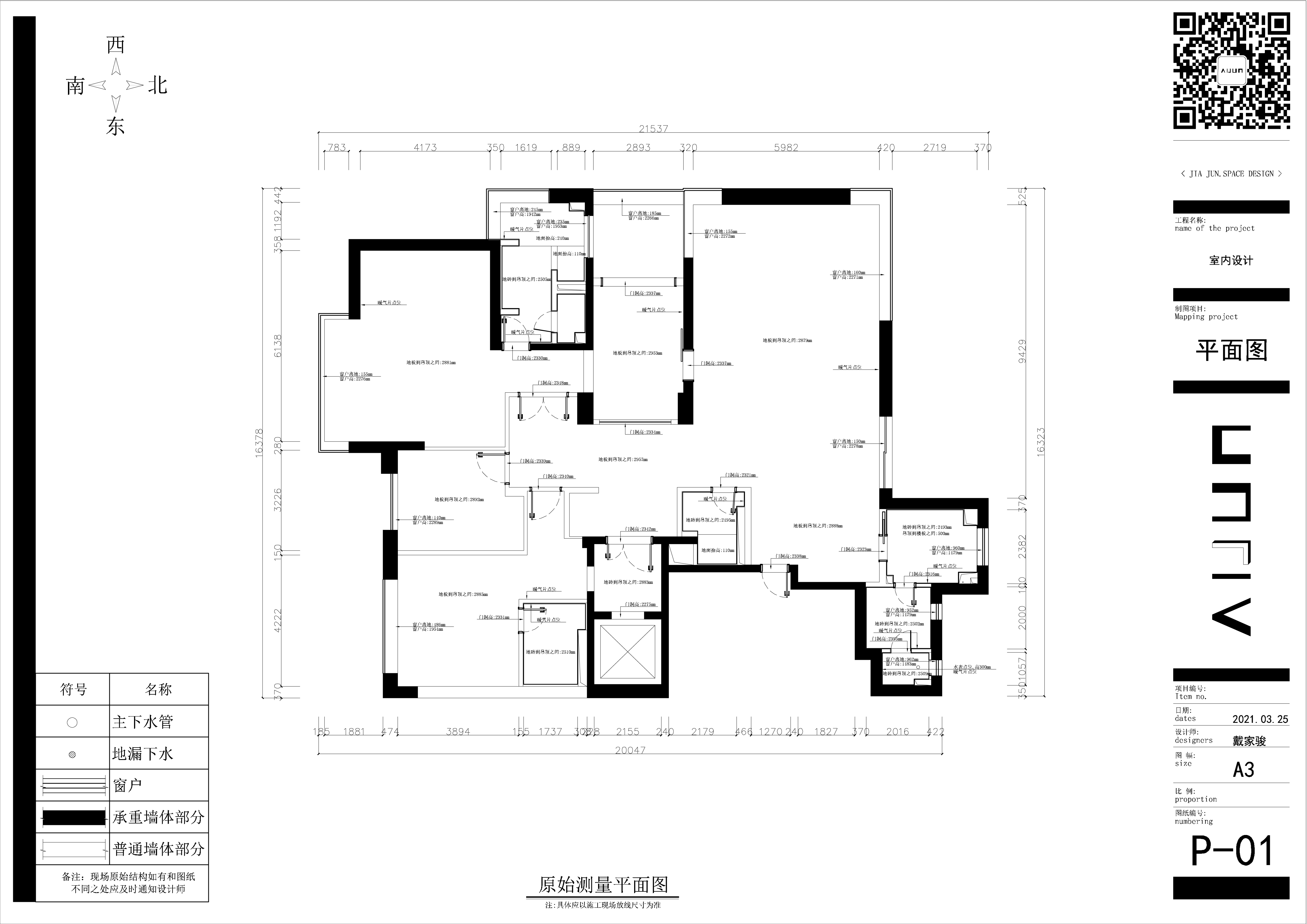
  • 需要解决的问题: 1. 面积很大,利用率比较低,很多空间闲置着。 2. 功能完善:需要儿童房,展示男主人爱好和适合健身的空间。 3. 对于292平米的房子来说,储物空间太少,东西都堆放在地上了。 解决问题的方法: 1. 更精细地划分空间,将转角或者小空间都悉数利用上。比如;利用电梯入户口改造成换鞋区;利用大客厅和厨房的过渡空间增加了西厨和吧台;旧卫生间和屋里打通,改造成洗衣房。主卧内卫的洗手池改到角落靠窗,增加了储物和男士便池。 2. 通过改变结构实现。将原书房改造成儿童房;缩小客房,扩充出一个大书房,放男主人的椭圆机和爱好收藏,并利用临近过道安装了健身架; 3. 利用新建墙体和靠墙空间,做了很多内嵌的柜子以及搁板,最显著改变是利用主卧的边角空间和一部分过道空间,增加了大人和孩子单独的步入式衣帽间,储物量翻倍增加。 作为一名设计师,我深知家居中每一个细节都至关重要。在这个案例中,我们对门、储物柜等元素进行了巧妙的改造和设计,以让空间更具实用性和美感。 首先,在保证原有安全性的前提下,我们对入户门进行了打磨和微水泥刷漆处理,并更换了智能门锁。这样不仅提高了使用的便捷性,还增加了整个玄关区域的现代感。 其次,在储物柜方面,我们采用镜子的形式来呈现柜门,解决出门前查看全身的需求。而右边的储物柜则选用原木色,结合竖条纹设计来拉伸空间感觉,并为玄关区域注入温馨的氛围。 通过这些细节上的微调和优化,我们成功地将一个普通玄关装点成为兼具实用性与美感于一身的空间。
  • 图片
  • 图片
  • 图片
  • 图片
  • 图片
  • 图片
  • 图片
  • 图片
  • 图片
  • 图片
  • 图片
  • 图片
  • 图片
  • 图片
  • 图片
  • 图片
  • 上一个 下一个
    《金腾奖优秀作品年鉴》 私宅丨地产丨餐饮丨酒店丨办公丨商业丨公共丨产品丨公益丨人气 jintengAWARD(小金_金腾奖组委会) 广州市海珠区琶洲大道68号华新中心21楼
    金腾奖视频号 金腾奖小红书号 监制:闫虹
    统筹:吴佳佳
    运营:朱倩仪 王赫萱 张芷莹 胡岚恩 小金
    新媒体:王贝贝 严洁 侯乐 鹅姐
    经纪:刘译遥 石征 曹凯月
    技术:张桐 黄天佑
    最终解释权归金腾奖主办方所有