origin
作品详情
  • Details of the work 标题横线
    头像或者logo
    图片 蒋娟
    城市:苏州
    公司: 苏州星瀚设计
    参赛作品: 归溯
    空间类型:公寓(150㎡以下)
    个人/公司简介:
    苏州星瀚设计成立于2013年,是一家集室内设计、施工、软装配套服务于一体的专业化家居设计公司,囊括了设计基装模式、软装模式和全案模式。 我们在苏州首创6S室内设计理念——创新设计、合理价格、独立施工、项目督查,全媒体监管、全程陪伴。让客户设计可见、消费可验、施工可管、细节可抓、问题可诉、过程可溯。
    设计说明 | Design Instruction
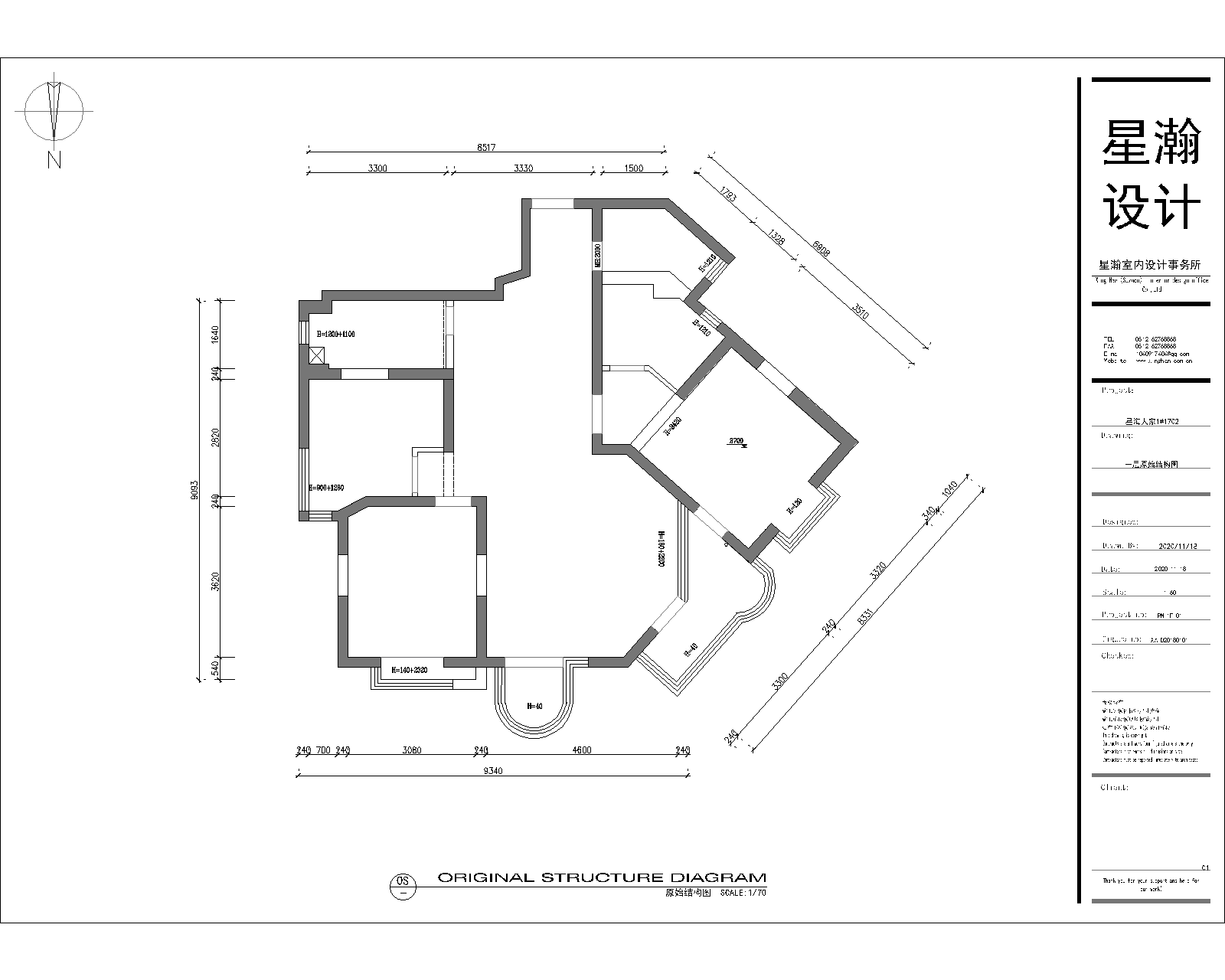
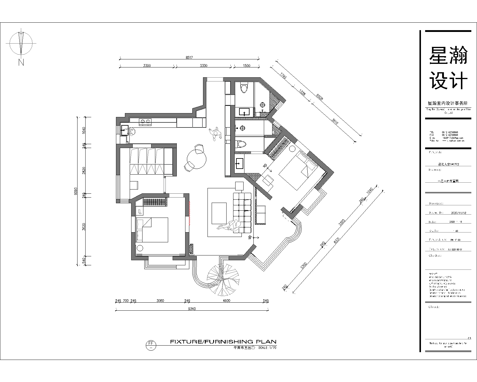
  • 作品简介 本案是奇葩户型的二手房改造 设计理念 梳理原始户型的不规则形,利用不同的三角空间实现多功能生活需求 设计特色 客厅,我们整体设计采用了白色的基础风格色调,搭配原木地板,营造简单素雅舒适的生活空间;顶面的设计,通过嵌入的造型,遮挡了原始错位屋梁。让层高反而有了一点向上的视觉感受,不压抑隐形的灯带,也为整个空间提供了相对充足大范围的照明。 从客厅位置看过去,玄关、厨房、餐厅一目了然,视野宽敞,居住体感松弛。客厅没有设置电视,简单的一幅肌理装饰画,一个沙发,一个边柜,一个小茶几,一方乳白色地毯,沙发后面是另外砌的墙,在墙体做了一个透景的设计,利用卧室的定制柜背板,让墙面不单调。 因为厨房相对比较长,从厨房往外看的时候,刚好可以看到定制柜上的端景设计;厨房的宽度也比较紧张,只能充分利用一侧墙面,形成L型的厨房设计。 书房也具备临时卧室休息的空间,因为采用了榻榻米的设计,长条的书桌也满足了多人使用的需求,同时用起来也更方便,舒适。
  • 图片
  • 图片
  • 图片
  • 图片
  • 图片
  • 图片
  • 图片
  • 图片
  • 图片
  • 图片
  • 图片
  • 图片
  • 图片
  • 图片
  • 图片
  • 图片
  • 图片
  • 图片
  • 图片
  • 图片
  • 图片
  • 图片
  • 图片
  • 图片
  • 图片
  • 图片
  • 图片
  • 图片
  • 图片
  • 图片
  • 图片
  • 图片
  • 图片
  • 图片
  • 图片
  • 图片
  • 图片
  • 图片
  • 上一个 下一个
    《金腾奖优秀作品年鉴》 私宅丨地产丨餐饮丨酒店丨办公丨商业丨公共丨产品丨公益丨人气 jintengAWARD(小金_金腾奖组委会) 广州市海珠区琶洲大道68号华新中心21楼
    金腾奖视频号 金腾奖小红书号 监制:闫虹
    统筹:吴佳佳
    运营:朱倩仪 王赫萱 张芷莹 胡岚恩 小金
    新媒体:王贝贝 严洁 侯乐 鹅姐
    经纪:刘译遥 石征 曹凯月
    技术:张桐 黄天佑
    最终解释权归金腾奖主办方所有