Seeing simplicity and embracing simplicity  Wang Zhai 
作品详情
  • Details of the work 标题横线
    头像或者logo
    图片 李斌
    城市:西安
    公司: ANG STUDIO
    参赛作品: 见素抱朴 王宅
    空间类型:公寓(150㎡以下)
    个人/公司简介:
    ANG STUDIO 设计总监&联合创始人 中国建筑装饰协会高级室内建筑师
    设计说明 | Design Instruction
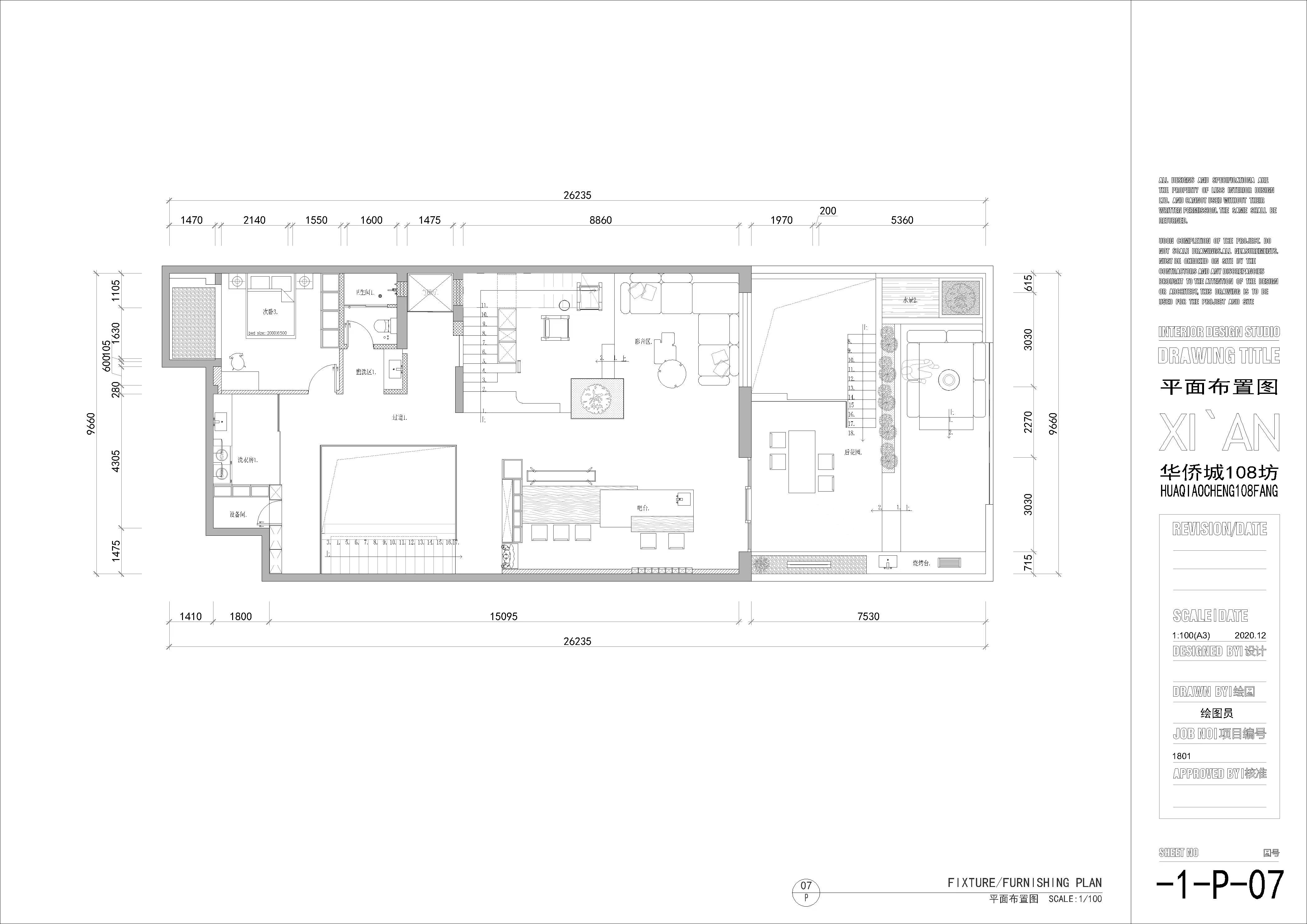
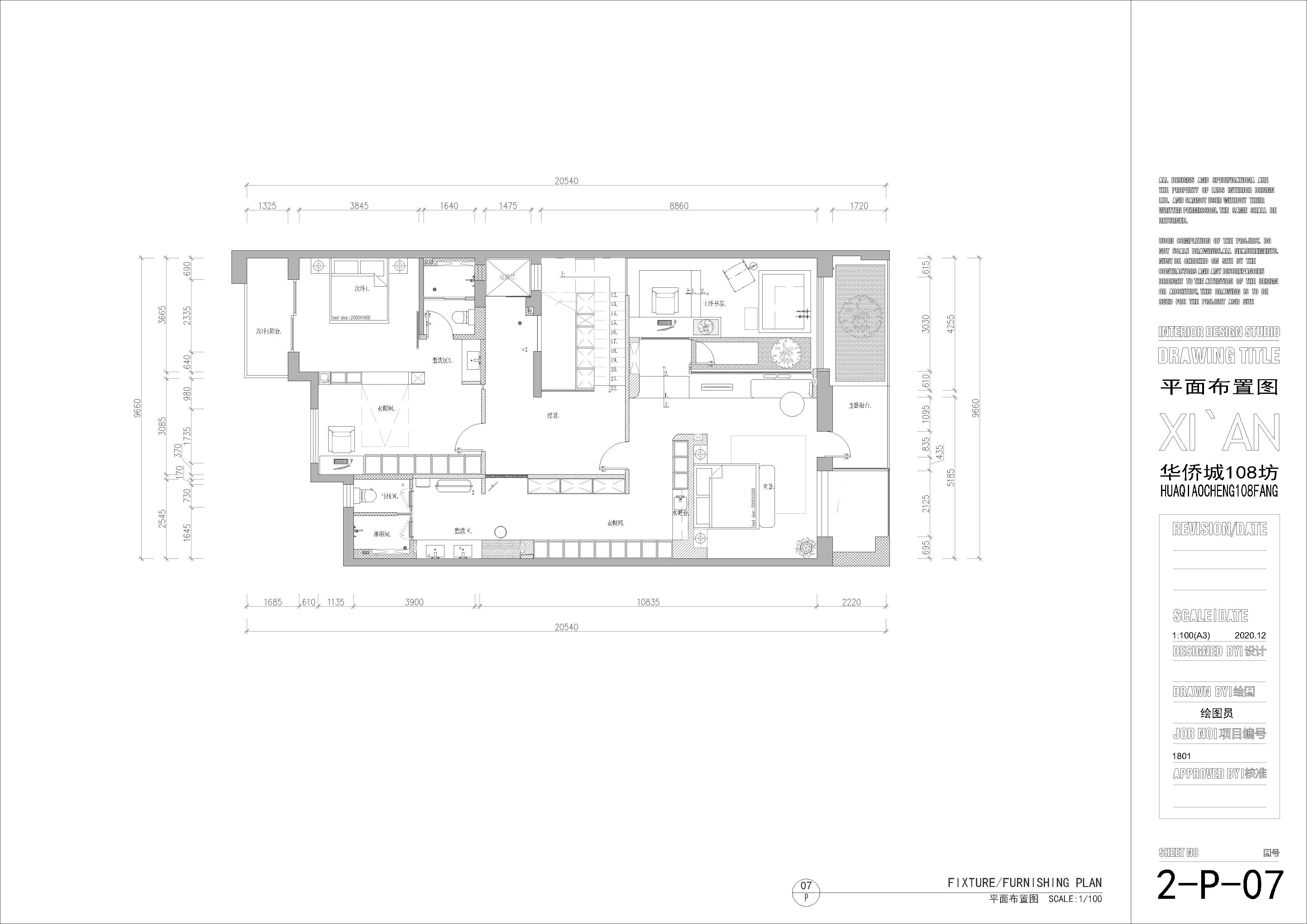
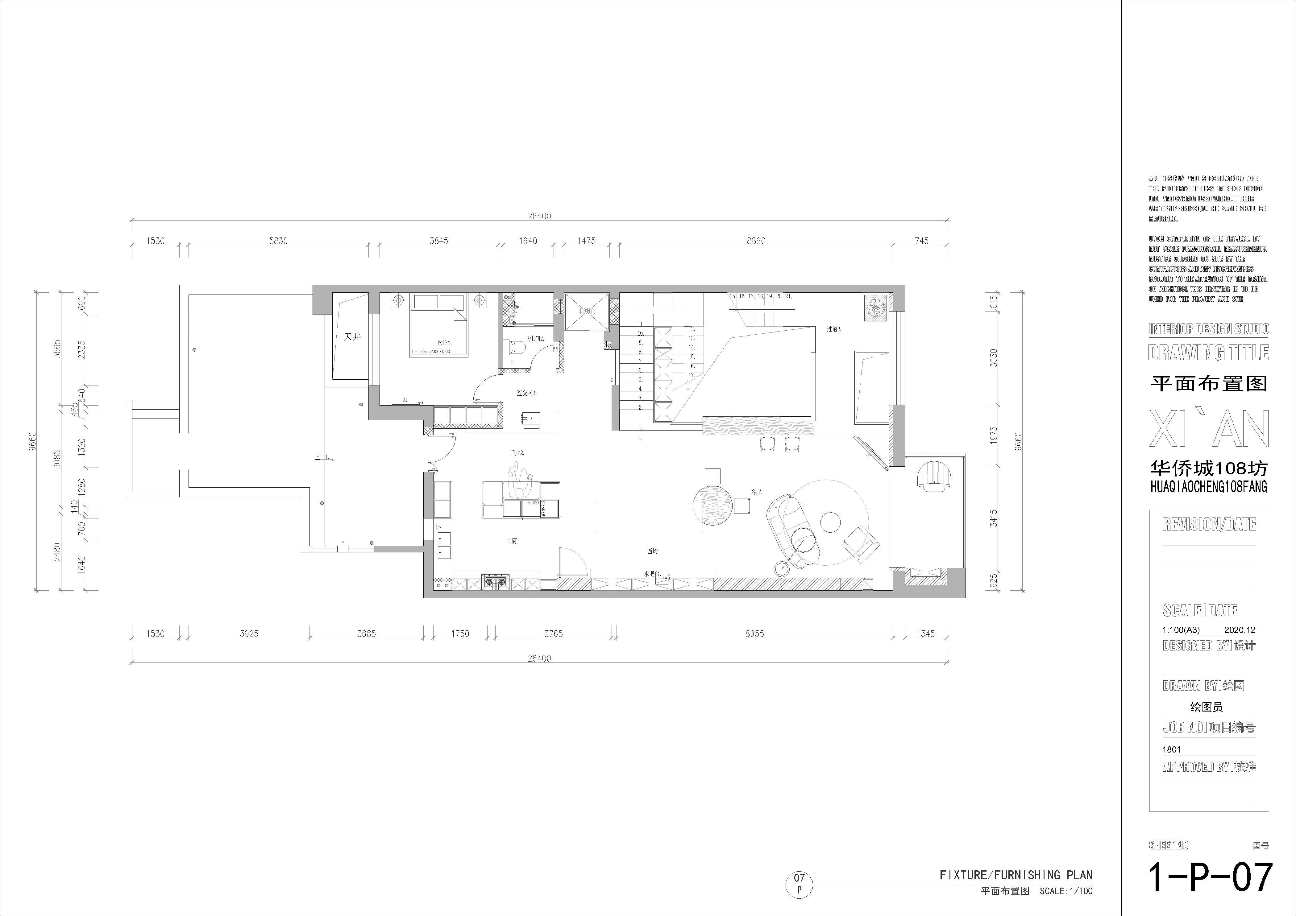
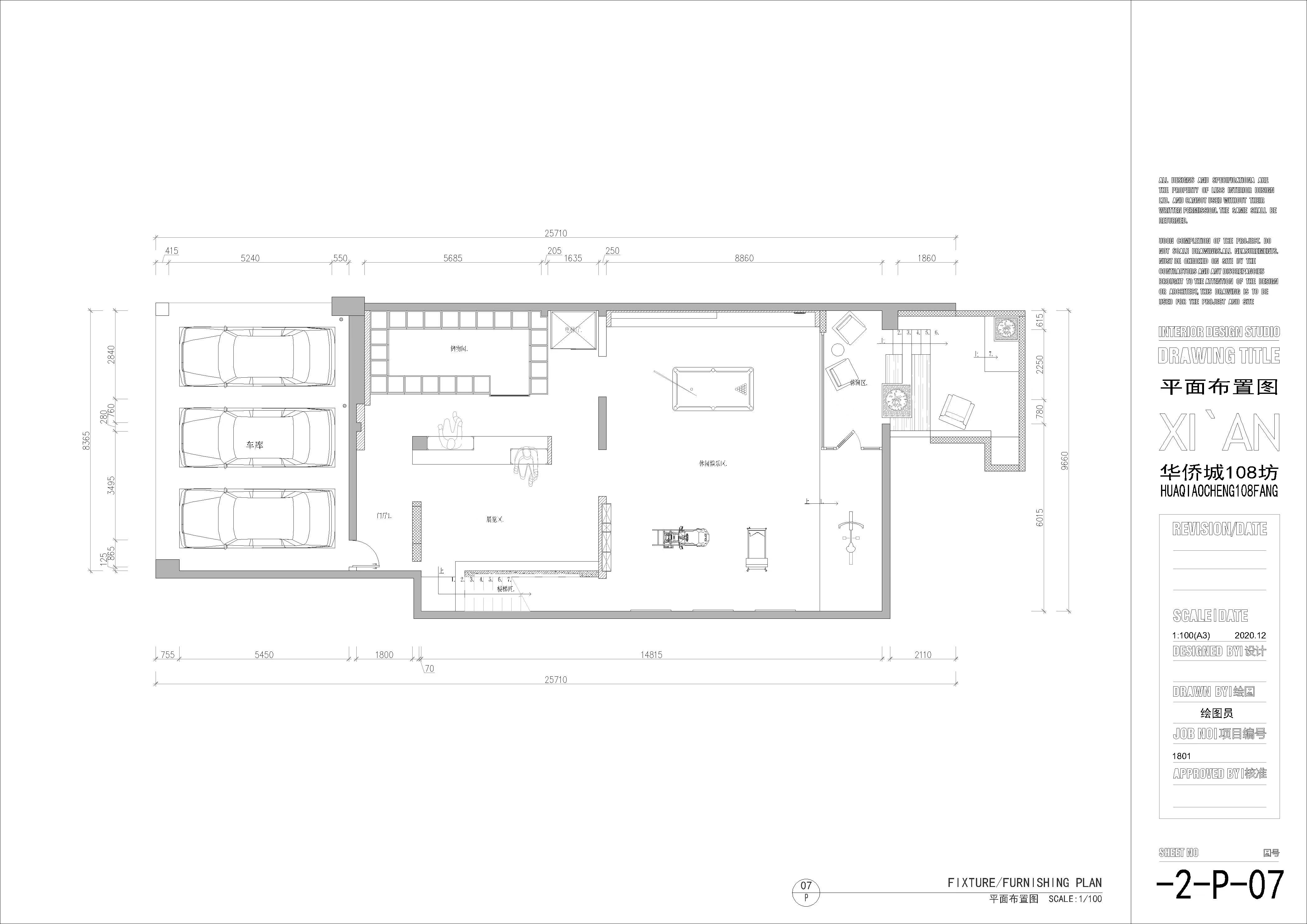
  • 本案是600平方米别墅空间,90后的屋主毕业于宾夕法尼亚建筑系,与设计师李 斌的设计思维碰撞让人期待,通过对空间的有效改造和建筑规划,室内的“主线” 穿插,将四层空间纵横贯穿,每一层都拥有明显的独立的“人设”,所有的客厅、卧室、餐厅都规划朝南,视野无遮挡,绿化景观一览眼底,开阔又私密。 当有个建筑师梦想的屋主遇上细节控的设计师,一切一拍即合,以建筑的手法结合细节的控制展开了空间的“创造”。 负一层空间 | -1FLOOL   将原始空荡的一楼空间,设计师定位其功能为储藏+娱乐,公共区域主要安置于此,下沉主客厅和北面 花园,内外建筑的改造结合,庭院以错层的方式关照室内空间,负一层和负二层间做出挑空空间,进行 有效的结构改造,空间有了主视觉和主通道,入户留有“视口”,空间的功能和明暗关系交错,挑空的开放让采光大面积进入,每一层都有了建筑的纵向感,不分主次,只分功能。 作为宾夕法尼亚建筑系毕业的屋主,对于建筑是有自己的思量的,而设计师亦玩转空间的结构细节,因此,在本案的设计中,他们不仅仅是甲乙方的关系,更是设计合作的“搭档”。 楼梯是整栋建筑的动线主线,在空间纵横里“穿针引线”,为了增加空间的建筑感,微水泥拟态清水混凝土的质感,体现建筑的精神元素,希望在上下楼梯的过程中,每个阶段都有生活的情节和故事发生,楼梯仿佛是生活中的栈道,可以随时看到家庭成员的动态,产生无形的互动; 依着楼梯的造型,地通顶的书架“切入”每层,多面关照让空间有了不同的视觉角度,综合了硬朗,增添了空间的文艺氛围。 负二层空间 | -2LOOL   生活的节奏慢下来,每个细节都拥有了满满的仪式感,负一层休闲功能也是一处多用,茶区、派对区、 冷餐区统统都满足,亦满足庭院的水吧功能关照,清雅不清淡,生活变得“有机再生”。 负二层的空间虽然更多的是储纳,但设计师希望为屋主引导式的赋予更多的生活可能,好的设计不仅规划空间,更要帮居住者营造“人设”—— 雪板、露营装备等等,娱乐项目的背后是鲜活的生活态度; 建筑结构的穿插都是精心的计算,将负二原始的部分室内空间让给室外,拥有了一个景观露台,并挖开原来的小天井外扩空间,成为负二层的庭院,室内外均有了交通动线,模糊掉室内外的边界感,舒适度绝佳,于是,这里不再是单一的储纳空间了,和楼上空间有了同等的“地位”, 一层空间 | 1FLOOL   建筑的改造无处不在,原始的天井被充分利用,改造成为电梯空间,上下有了挑空的公共关系,空间开始叠加成为丝丝入扣的整体,一层的空间更多的是屋主的休闲空间,设计去客厅化,没有刻意的电视墙,结合屋主的留学经历,希望将家庭的趣味感和随意的松弛感放大,更多的多场景和无障碍空间。更趋向于屋主的内在休闲需求,中西厨房满足不同的使用功能,但是又没有明显的设计界限,设计师希望屋主在空间的使用上,怎么舒服怎么来,预留了长辈房,虽然不常住,但是也需要面面俱到的考虑。 设计刻意地让空间的动线“复杂化”,即使空间很大,也不是空荡无趣,而是趣味化,李斌:“就像转公园,通过不同的设计视口去观赏和感受空间,在家里寻求更多的节奏感,因为空间有电梯的便捷,所以更多的有趣小心思在上下楼梯的过程中变得不再单一”; 几何立体,建筑概念在楼梯四面玩转,自然光、拟态光、灯光有效结合,不同的视觉停顿点结合“一步一景”的设计概念,每一处仿佛都随心境发生不同的故事,景色与楼梯互动,人的参与感和空间的接触感变得强烈。 二层空间 | 2FLOOL   二楼作为家庭成员的睡卧区域,主卧和未来的孩子房都被安置于本层,主卧的空间非常宽敞,于是,将主空间分为两个大区域,睡眠主卧区域&生活配套享受区,南边对外有景观,于是为主卧床的侧面营造景观叠加的效果,规划了日式的浴缸,拟态私人汤池的舒适感,折页型材门,开关随心,室内外随意切换; 卧室兼容办公区,女主人现在读博士,需要一个比较方便的办公学习空间,因此,延展的办公区域和室内气质保持一致,亦可以和室内互动。
  • 图片
  • 图片
  • 图片
  • 图片
  • 图片
  • 图片
  • 图片
  • 图片
  • 图片
  • 图片
  • 图片
  • 图片
  • 图片
  • 图片
  • 图片
  • 图片
  • 图片
  • 图片
  • 图片
  • 图片
  • 图片
  • 图片
  • 图片
  • 图片
  • 图片
  • 图片
  • 图片
  • 图片
  • 图片
  • 图片
  • 图片
  • 图片
  • 图片
  • 图片
  • 图片
  • 图片
  • 图片
  • 上一个 下一个
    《金腾奖优秀作品年鉴》 私宅丨地产丨餐饮丨酒店丨办公丨商业丨公共丨产品丨公益丨人气 jintengAWARD(小金_金腾奖组委会) 广州市海珠区琶洲大道68号华新中心21楼
    金腾奖视频号 金腾奖小红书号 监制:闫虹
    统筹:吴佳佳
    运营:朱倩仪 王赫萱 张芷莹 胡岚恩 小金
    新媒体:王贝贝 严洁 侯乐 鹅姐
    经纪:刘译遥 石征 曹凯月
    技术:张桐 黄天佑
    最终解释权归金腾奖主办方所有