yuekejunyihaohupan
作品详情
  • Details of the work 标题横线
    头像或者logo
    图片 刘云 华浔品味装饰集团特约推荐
    城市:重庆
    公司: 广东华浔品味装饰重庆有限公司
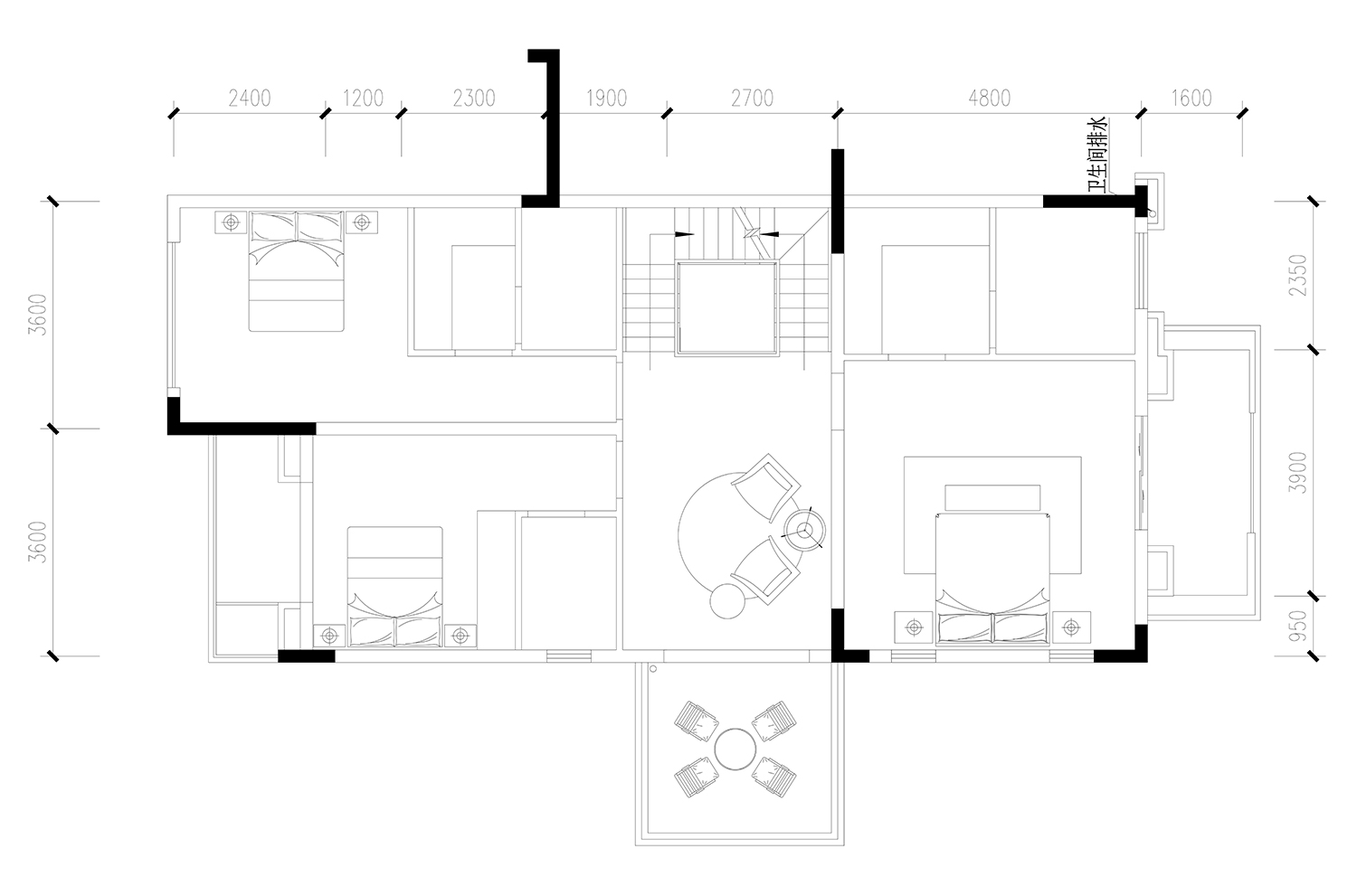
    参赛作品: 约克郡壹号湖畔
    空间类型:公寓(150㎡以下)
    个人/公司简介:
    设计师:刘云 设计理念:在实践的路上我认为很重要的一点是:设计出来的房子必定是温情、有生活化的,我拒绝没有烟火味的住宅。 任职:广东华浔品味装饰重庆有限公司 毕业院校:重庆工商大学视觉传达 擅长格调:雅致主义、自然主义、轻奢主义 设计历程:15年 专业资格:中国室内中级软装设计师 个人荣誉:重庆木兰会理事,2011年金马克二等奖,2013年金马克三等奖,2013年国际空间大赛艾特奖,{Ideal-Top}最佳公寓设计,2016年木兰奖年度人物,2018年金瓦奖家具空间铜奖,2019年金马克全国大奖铜奖,2020年华鼎奖银奖,2021年金马克全国大赛金奖。 项目楼盘: 龙湖两江新宸/龙湖江与城/龙湖紫云/香港置地约克郡/棕榈泉国际花园/中央公园大道/江山樾/庆隆高尔夫/蓝湖郡
    设计说明 | Design Instruction
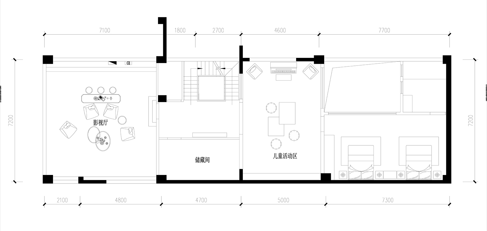
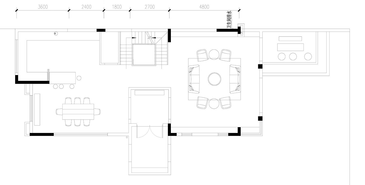
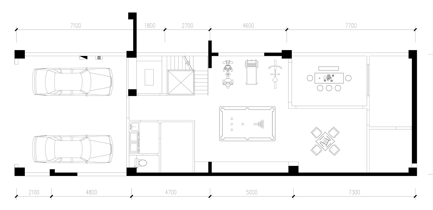
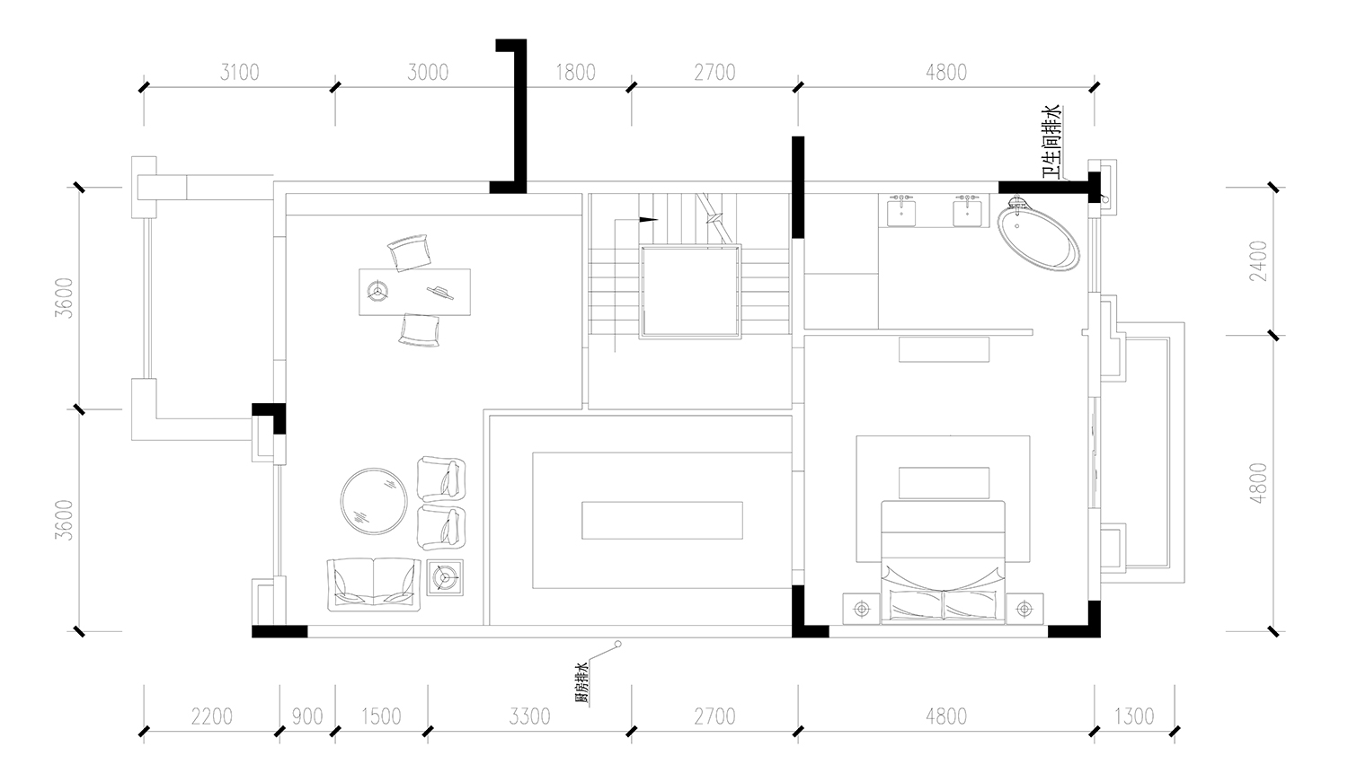
  • 基于对品牌的信任,屋主把新宅的全案设计全然托付于设计师和华浔。屋主一家六口,三代同堂,新宅共五层,施工面积达650㎡。设计师了解到屋主对传统国学很有研究,家里有很多书画收藏,结合了屋主的生活习惯,确立了以现代风格为主,局部造景融入传统元素,打造独一无二的人居空间。
  • 图片
  • 图片
  • 图片
  • 图片
  • 图片
  • 图片
  • 图片
  • 图片
  • 图片
  • 图片
  • 图片
  • 图片
  • 图片
  • 图片
  • 图片
  • 图片
  • 图片
  • 图片
  • 图片
  • 图片
  • 图片
  • 图片
  • 图片
  • 图片
  • 图片
  • 图片
  • 图片
  • 图片
  • 图片
  • 图片
  • 图片
  • 图片
  • 图片
  • 图片
  • 图片
  • 图片
  • 图片
  • 图片
  • 图片
  • 图片
  • 图片
  • 图片
  • 图片
  • 图片
  • 图片
  • 图片
  • 图片
  • 图片
  • 图片
  • 图片
  • 图片
  • 图片
  • 图片
  • 图片
  • 图片
  • 图片
  • 上一个 下一个
    《金腾奖优秀作品年鉴》 私宅丨地产丨餐饮丨酒店丨办公丨商业丨公共丨产品丨公益丨人气 jintengAWARD(小金_金腾奖组委会) 广州市海珠区琶洲大道68号华新中心21楼
    金腾奖视频号 金腾奖小红书号 监制:闫虹
    统筹:吴佳佳
    运营:朱倩仪 王赫萱 张芷莹 胡岚恩 小金
    新媒体:王贝贝 严洁 侯乐 鹅姐
    经纪:刘译遥 石征 曹凯月
    技术:张桐 黄天佑
    最终解释权归金腾奖主办方所有