rongchuangbinjiangyihao
作品详情
  • Details of the work 标题横线
    头像或者logo
    图片 庞家佳 华浔品味装饰集团特约推荐
    城市:重庆
    公司: 广东华浔品味装饰重庆有限公司
    参赛作品: 融创滨江壹号
    空间类型:公寓(150㎡以下)
    个人/公司简介:
    设计师:庞家佳 设计理念: 人为的设计生活方式,是为了努力去创造一种更好的生活状态。 行业履历 任 职:广东华浔品味装饰集团重庆有限公司 毕业院校:重庆大学 擅长格调:现代、轻奢、美式、原木风 设计历程:10年 个人经历:国家中级软装设计师 IFDA国际室内装饰协会会员 广东室内装饰协会会员 项目楼盘: 南山郡·御澜院/曲水风和·云起/华侨城·嘉陵江天 两江御园/龙湖揽境/昆明融创文旅城售楼中心
    设计说明 | Design Instruction
  • 屋主一家六口,希望未来的生活空间呈现自然与宁静的禅意美学,在追求居住功能性的同时,也对家的艺术审美提出了要求。自然风奠定了空间的肌理,独有的美学魅力能够让家保持历久弥新的状态。设计师将各种原木元素装进家中,从而达到亲近自然,回归本真的目的。
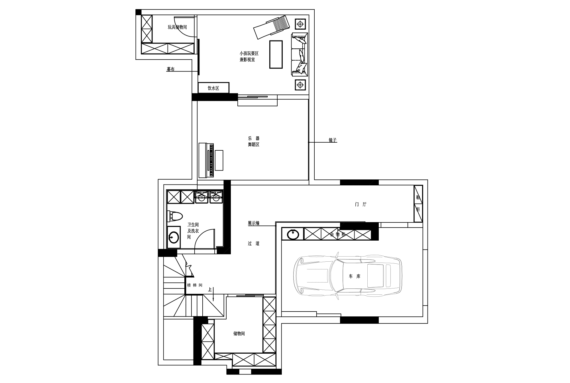
  • 图片
  • 图片
  • 图片
  • 图片
  • 图片
  • 图片
  • 图片
  • 图片
  • 图片
  • 图片
  • 图片
  • 图片
  • 图片
  • 图片
  • 图片
  • 图片
  • 图片
  • 图片
  • 图片
  • 图片
  • 图片
  • 图片
  • 图片
  • 图片
  • 图片
  • 图片
  • 图片
  • 图片
  • 图片
  • 图片
  • 图片
  • 图片
  • 图片
  • 图片
  • 图片
  • 图片
  • 图片
  • 图片
  • 图片
  • 图片
  • 图片
  • 图片
  • 图片
  • 上一个 下一个
    《金腾奖优秀作品年鉴》 私宅丨地产丨餐饮丨酒店丨办公丨商业丨公共丨产品丨公益丨人气 jintengAWARD(小金_金腾奖组委会) 广州市海珠区琶洲大道68号华新中心21楼
    金腾奖视频号 金腾奖小红书号 监制:闫虹
    统筹:吴佳佳
    运营:朱倩仪 王赫萱 张芷莹 胡岚恩 小金
    新媒体:王贝贝 严洁 侯乐 鹅姐
    经纪:刘译遥 石征 曹凯月
    技术:张桐 黄天佑
    最终解释权归金腾奖主办方所有