ideal home
作品详情
  • Details of the work 标题横线
    头像或者logo
    图片 周应钦
    城市:黄浦区
    公司: 广东华浔品味装饰集团
    参赛作品: 理想家
    空间类型:公寓(150㎡以下)
    个人/公司简介:
    周应钦 广东华浔品味装饰设计有限公司 创意总监 黄埔设计中心 设计总监 国家注册高级室内建筑师 所获荣誉: 2006年  作品入選《現代裝飾》雜誌 2008年  廣州“信息時報”設計大賽  最具創意奬 2009年  廣州“南方都市報”年度設計大賽  優秀作品 2009年  第三屆廣州建築設計大賽  住宅空間類  銅奬 2011年  第一屆金馬克杯大賽  優秀奬 2013年  第五屆廣州建築設計大賽  辦公空間類  銀奬 2015年  第三屆金馬克杯大賽  金奬 2015年  中南地區國際空間環境藝術設計大賽  銅奬   2016年  中國筑巢奬  辦公空間類優秀奬 2017年 第四届金馬克杯大賽  办公空间银奬 2017年 第四届戛迪杯设计邀请赛 金奖 2018年 第三届中南地区国际空间大赛 金奖 2018年 亚太空间设计年度评选 新锐设计师 2019年 第五届金马克大赛 年度别墅大宅类 银奖 2019年 第五届金马克大赛 年度十佳公共空间奖
    设计说明 | Design Instruction
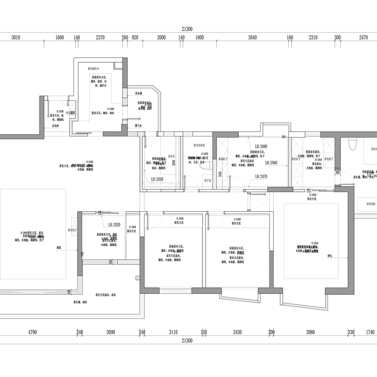
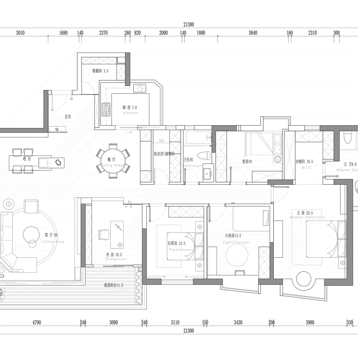
  • 理想家 关于家, 我们每个人都是设计师, 都想在属于自己的梦想之地画上几笔。 ——题记 接到这个项目,情理之中也颇感意外,偶然的一通来电,一个关于设计理想家的委托任务落在我手上,对我来说设计一个空间不算难事,但此番接洽,让我顿感这必然是一块难啃的骨头。电话里客户提问:“你是设计师,你觉得理想的家应该是什么样子的?”没有标准答案,却让人充满期待。理想中的家,绝不只是生活的容器,也不会只是一个落脚点,是最细小的温暖,是最珍贵的确幸。你说,是春暖花开,面朝大海,他说,是窗明几净,一尘不染;而我……设身处地,代入你的角度,陷入了一段冗长的思考。 房子的主人是一对年轻夫妻,新购入的220㎡的二手学位房,房子坐北朝南,光照充足,室内装潢时间已近十年,略显陈旧过时,胜在格局方正合理。但也正是这样的格局让设计可发挥的空间有了很多局限性。而客户找到我并期待我能找到一种全新的设计思路,颠覆原有的空间认识。或许正是源自客户信任的力量,对我有了莫大的触动,也是我决定接下这个项目的推动力,当然,这或许也是一名设计师的职业使命吧。 项目的第一步便是解构原有结构的墙体,“拆”是无可奈何的行为,是为了更合理、为了满足限定要求和功能的必然选择。而重新建构也是需要勇气的,怎么把原本合理的空间优化到更理想、更艺术的维度,这是个命题,需要结合预算成本、时间跨度、各种因素考量。 家的空间属性对于每个人来说都有不同的解读,而在这个空间里,原本狭小的玄关是需要被重建的,采光、通风都不是很理想,我决定果断拆掉原有一侧的墙体,重组厨房和生活阳台的空间,释放出女主人梦寐以求的鞋帽空间,我认为这是一笔颇为划算的设计买卖,从设计的角度解读,必然是来自设计师充满创意的设计亮点。 客厅和餐厅的空间,在传统的观念里,通常都是在一起的,这也是大多数人对“双厅一体”这个概念的解读。当我提出尝试在客厅和餐厅的转换处植入休闲水吧这个设计思想,恰好契合了客户希望能有一个地方可以给小孩吃饭、聚会的想法,同时也让客餐厅的转换节奏有了微妙的变化,空间的层次感丰富了许多。固步自封更像是一把枷锁,封印了设计师的思想,设计需要创新,唯有打破常规。 书房墙体空间推倒重建,目的是要透亮引光,对餐厅区域进行有效的补光,抬高处理也是为了与客厅的电视墙连贯起来,形成一个有意为之的整体性设计,同时也是玄关移步换景的视觉焦点所在之处。 房子某种程度需要美学、艺术,但我认为更重要的是美学背后的实用逻辑,设计的内核应该是满足功能的,解决生活的大小问题的。洗衣间对于一个大平层空间是有必要的,可以轻松整合日常生活的电器设备和卫生系统。这是一种更为合理又直接的具象设计。 我喜欢看到孩子的笑脸,喜欢这种天真纯粹的表情。每个小王子心中都有一个浩瀚的宇宙世界,星空、火箭、城堡等元素自然悉数登场,它们被合理地安排到每个设定的区域,原有飘台空间拿来做书桌,把衣柜和书柜设置在书桌的两侧,方便日常使用。床被安排靠着墙的一侧,如此一来原来不大的空间得以最大限度的释放,空间的中心自然成了小孩可以放肆玩耍的小天地。 空间过道的尽头是主卧的门,这个自然也是不符合人们对空间私密性的要求的,但又无法对其进行改造,思考许久,索性在主卧背景墙再造一景,呼应玄关对景的概念,从而弱化了过道正对房门的尴尬。主人喜好旅游,或许是喜欢那种离家又有归家的感觉吧,贯穿式的背景墙配上硬包、灯光简洁又舒适,高级感拉满,窗位空出来的空间用来营造一个休闲卡座,放上一张小圆桌,休闲又惬意。主卧的衣帽间空间扩大是必然的,隐蔽门的巧妙设计是为了遮住裸露的窗,这是有意的设计小心思,也是在解决好实用的同时指向美学的回应。 理想的家是什么样子的?我想一千个人眼中有一千个哈姆雷特!或许理想的家是主人工作之余温馨的港湾,是家人一起共享天伦之乐的栖息之地。
  • 图片
  • 图片
  • 图片
  • 图片
  • 图片
  • 图片
  • 图片
  • 图片
  • 图片
  • 图片
  • 图片
  • 图片
  • 图片
  • 图片
  • 图片
  • 图片
  • 图片
  • 图片
  • 图片
  • 图片
  • 图片
  • 图片
  • 图片
  • 图片
  • 图片
  • 图片
  • 图片
  • 图片
  • 图片
  • 图片
  • 图片
  • 图片
  • 图片
  • 上一个 下一个
    《金腾奖优秀作品年鉴》 私宅丨地产丨餐饮丨酒店丨办公丨商业丨公共丨产品丨公益丨人气 jintengAWARD(小金_金腾奖组委会) 广州市海珠区琶洲大道68号华新中心21楼
    金腾奖视频号 金腾奖小红书号 监制:闫虹
    统筹:吴佳佳
    运营:朱倩仪 王赫萱 张芷莹 胡岚恩 小金
    新媒体:王贝贝 严洁 侯乐 鹅姐
    经纪:刘译遥 石征 曹凯月
    技术:张桐 黄天佑
    最终解释权归金腾奖主办方所有