yujian hetangyuese
作品详情
  • Details of the work 标题横线
    头像或者logo
    图片 汤海涛 华浔品味装饰集团特约推荐
    城市:张家港
    公司: 华浔品味装饰张家港分公司
    参赛作品: 御见 池塘月色
    空间类型:公寓(150㎡以下)
    个人/公司简介:
    本案设计师: 汤海涛 华浔品味装饰张家港分公司设计总监 设计理念: 用专业的设计让居住空间满足人的需求 主要作品:建发御珑湾叠墅 缇香镜湖湾别墅 九溪墅别墅 九溪墅E墅 中昊檀宫别墅 阳光怡庭别墅 国泰润园别墅 擅长风格:新中式 现代 欧式
    设计说明 | Design Instruction
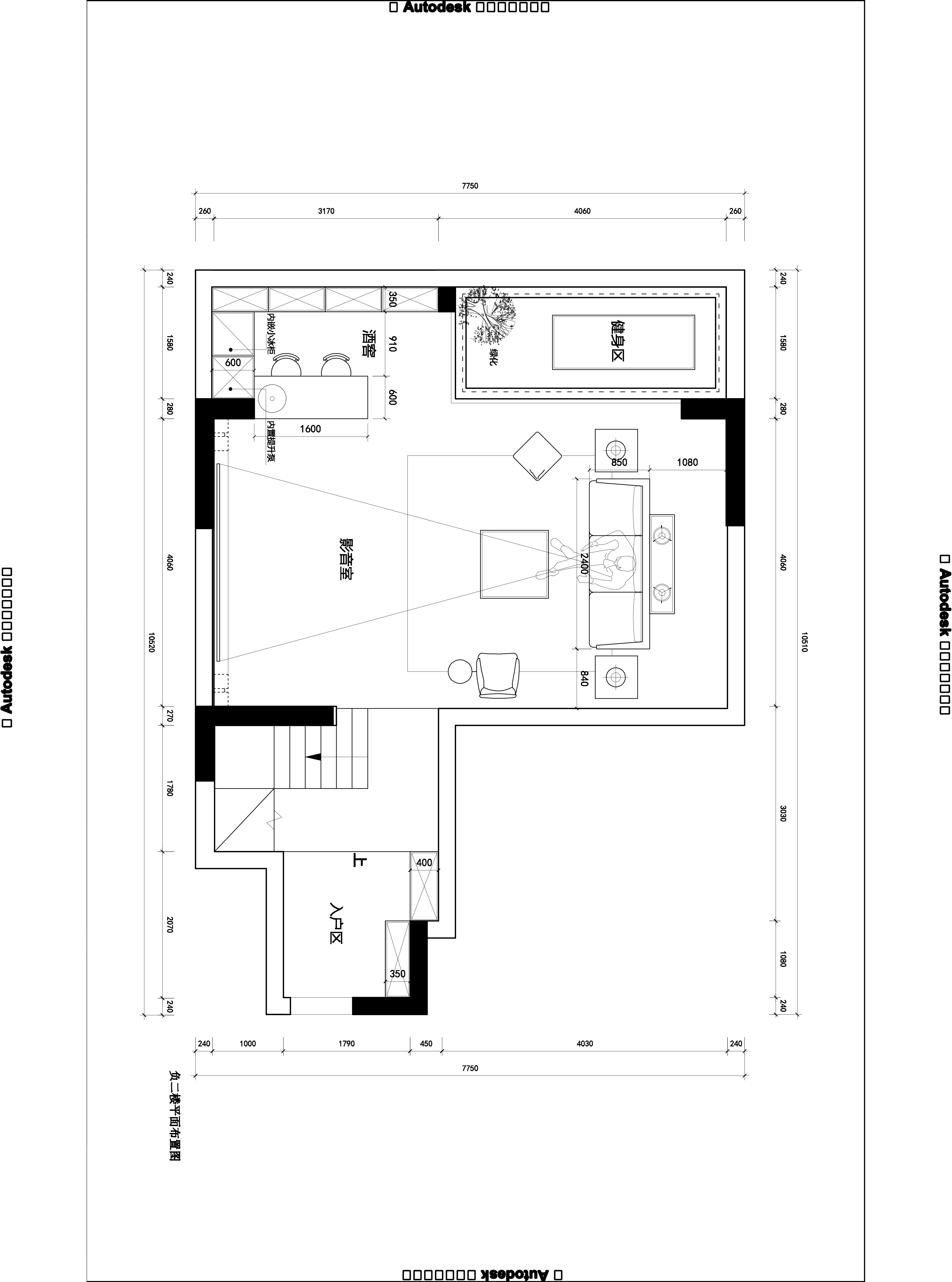
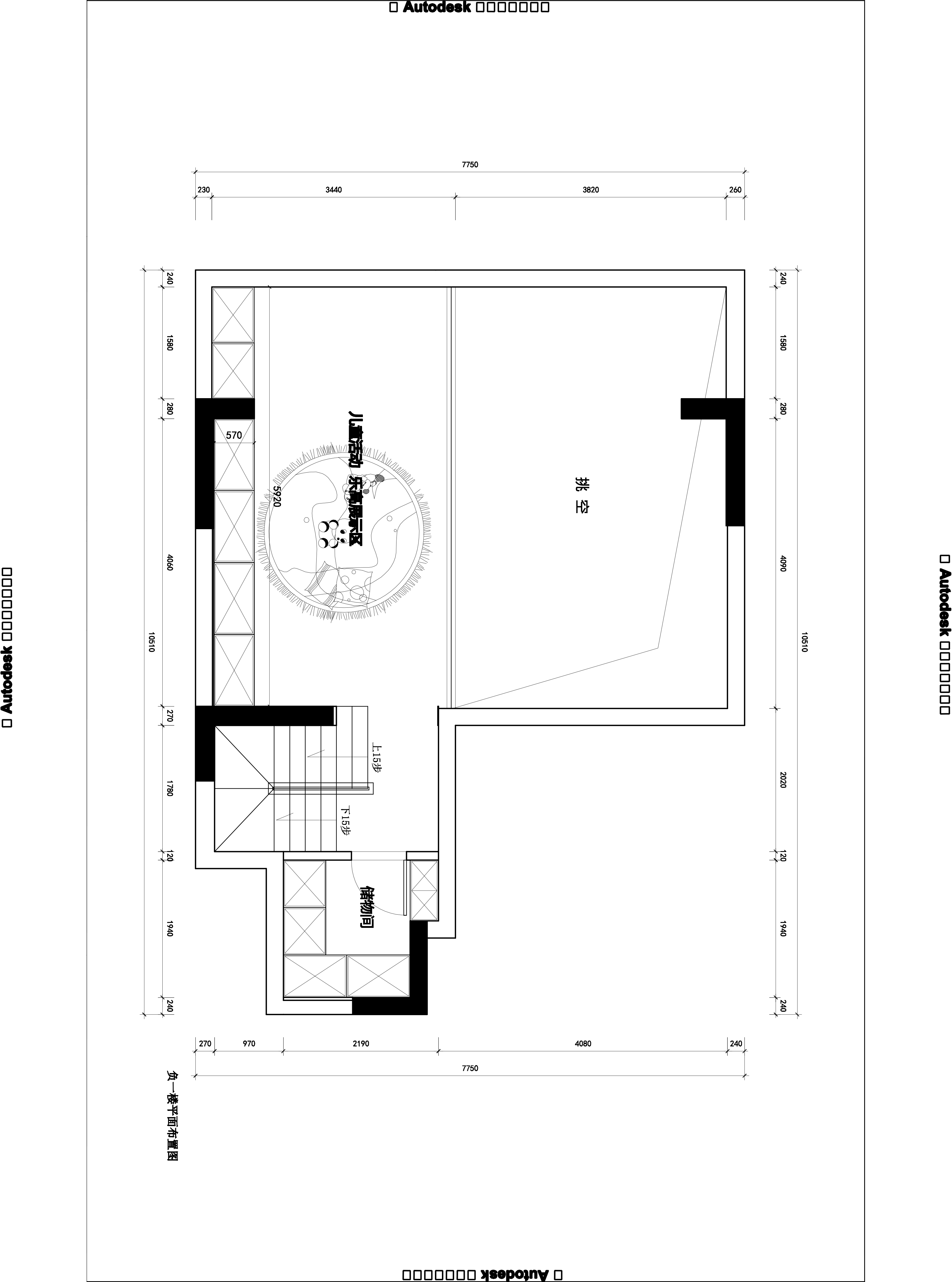
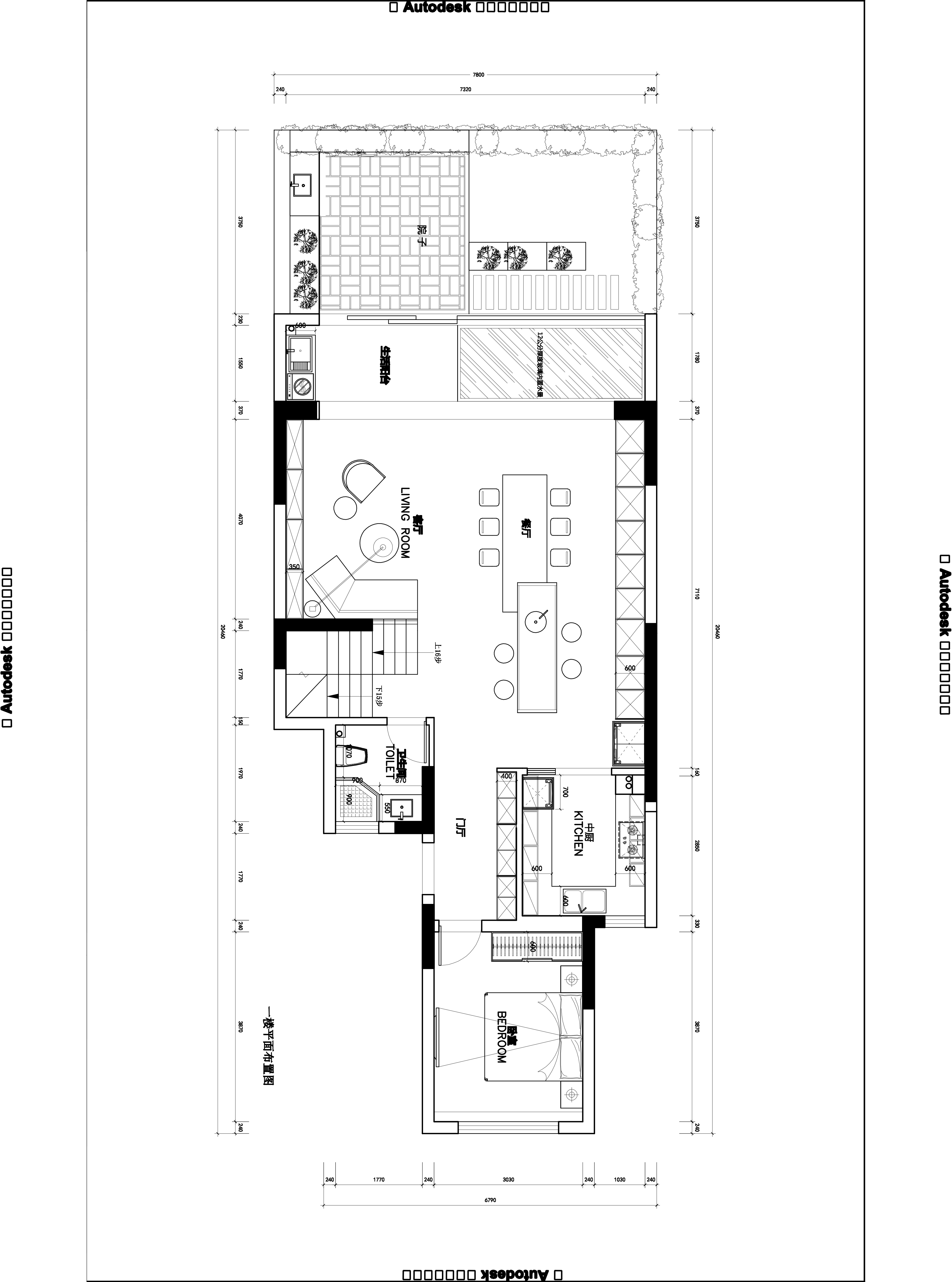
  • 从室内推开大门,院落前的池塘映入眼帘,恰逢九月,微风泛起波光粼粼,可垂钓可休闲,外界的景观以给予了房子自然、舒适、惬意的自然属性。呼应了室内从简、去繁的设计理念,去客厅化摒弃了传统的闲置空间,增加阅读亲子互动区,真正做到,设计一切以解决实际问题为导向,顺应空间环境的合理性。
  • 图片
  • 图片
  • 图片
  • 图片
  • 图片
  • 图片
  • 图片
  • 图片
  • 图片
  • 图片
  • 图片
  • 图片
  • 图片
  • 图片
  • 图片
  • 图片
  • 图片
  • 图片
  • 图片
  • 上一个 下一个
    《金腾奖优秀作品年鉴》 私宅丨地产丨餐饮丨酒店丨办公丨商业丨公共丨产品丨公益丨人气 jintengAWARD(小金_金腾奖组委会) 广州市海珠区琶洲大道68号华新中心21楼
    金腾奖视频号 金腾奖小红书号 监制:闫虹
    统筹:吴佳佳
    运营:朱倩仪 王赫萱 张芷莹 胡岚恩 小金
    新媒体:王贝贝 严洁 侯乐 鹅姐
    经纪:刘译遥 石征 曹凯月
    技术:张桐 黄天佑
    最终解释权归金腾奖主办方所有