Nanshanjundinganlan
作品详情
  • Details of the work 标题横线
    头像或者logo
    图片 朱熙茜;杨璇
    城市:重庆
    公司: 广东华浔品味装饰集团
    参赛作品: 南山郡汀澜岸
    空间类型:公寓(150㎡以下)
    个人/公司简介:
    主案设计师:朱熙茜 设计理念: 设计源于生活,以舒心、舒适、舒服为基础,以空间的灵动为核心,追求艺术与技术的完美结合。 任 职: 广东华浔品味装饰重庆有限公司 毕业院校: 南昌航空大学 设计历程:14年 职 称:ICAD-C (国际商业美术设计师环境艺术类中级设计师) (编号:10022C10618) 荣 誉: 金马克年度公寓住宅类优秀奖、 金马克年度别墅类top50 软装设计师:杨璇 ①从业年限:7年 ②擅长风格: 法式复古,现代轻奢,现代极简,美式格调,自然主义。 ③代表作品: 约克郡阅林、橡树澜湾、朗香郡、棕榈泉、江山樾、 北大资源、两江新宸、曲水风和等。 ④设计理念: 设计源于内心的表述。与其说设计是人与物之间联系的纽带。更不如说是在进行一种家庭 氛围的创作。 个人经历:国家中级软装设计师 IFDA国际室内装饰协会会员 广东室内装饰协会会员
    设计说明 | Design Instruction
  • 业主希望新家整体的基调是浪漫优雅的,在比较愉悦精致的氛围基础上再加入一些高雅的风情,所以设计师用了很多法式和轻奢的元素,多种灯光形式将浪漫优雅的氛围感拉满,让整体风格更多元化。将轻奢元素与传统法式融合,通过合理动线布局、色彩匹配,将优雅、乐趣和舒适的理念贯穿其中,在浪漫的法式格调里低吟浅唱,静诉时光的美好。
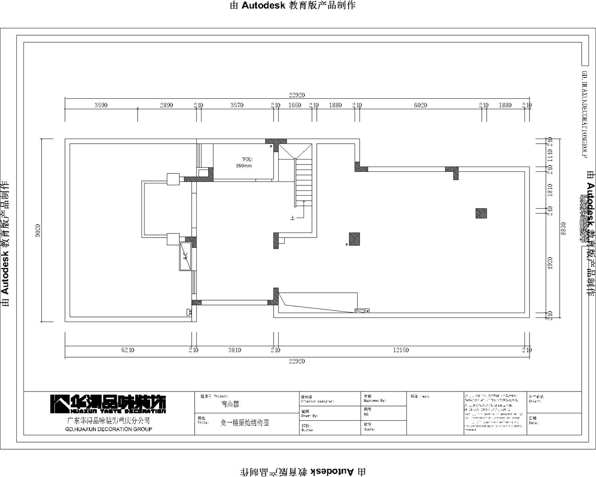
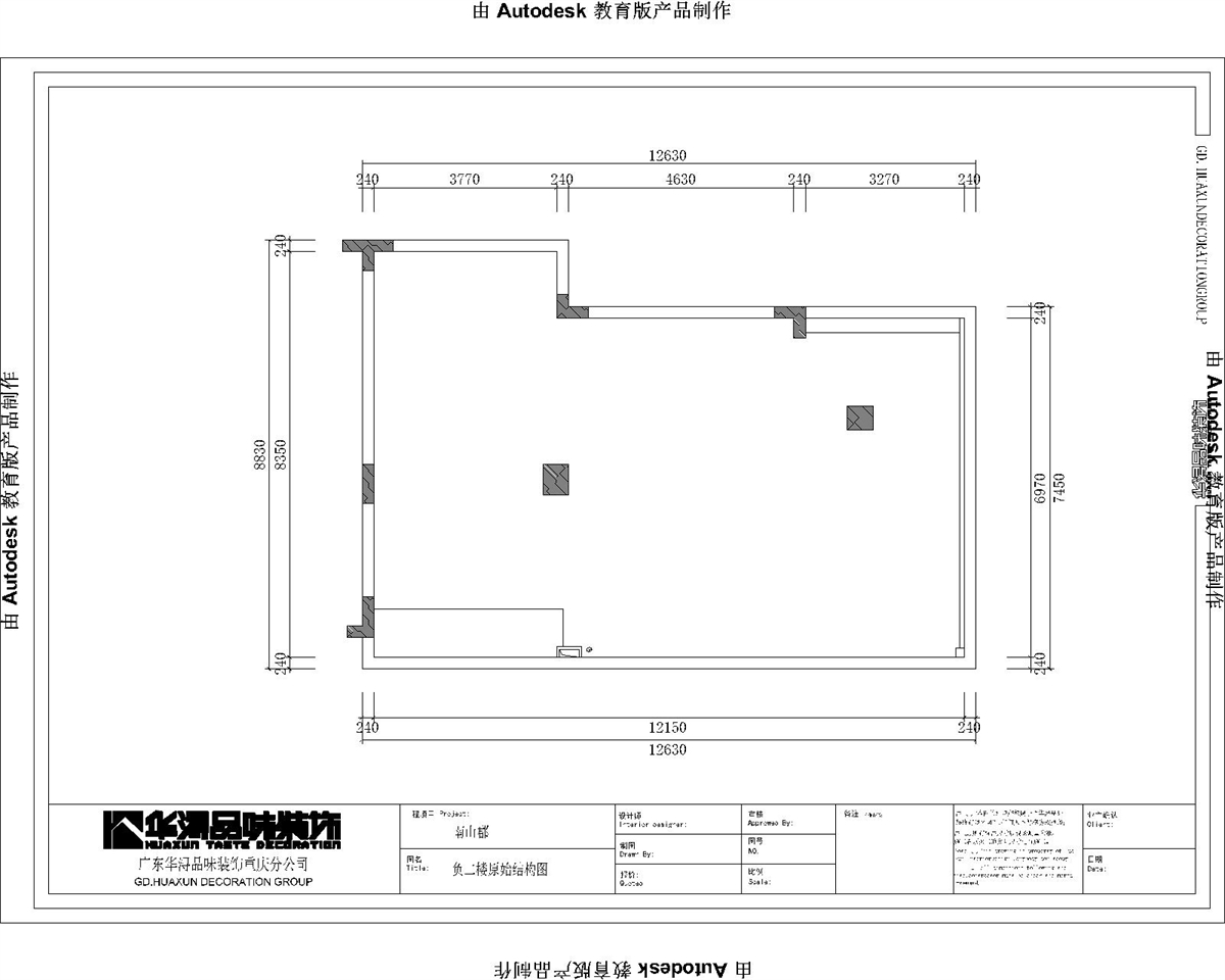
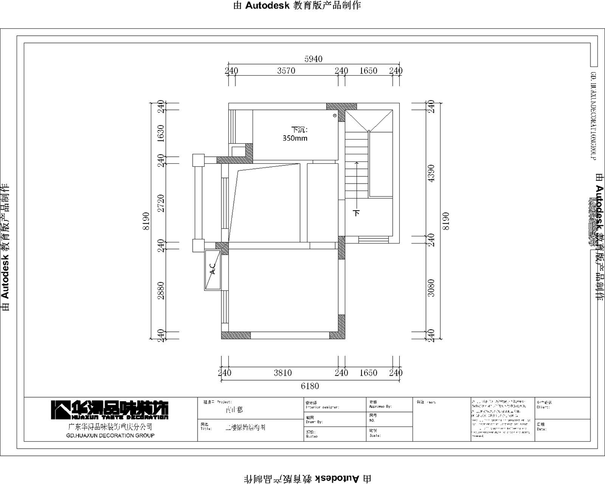
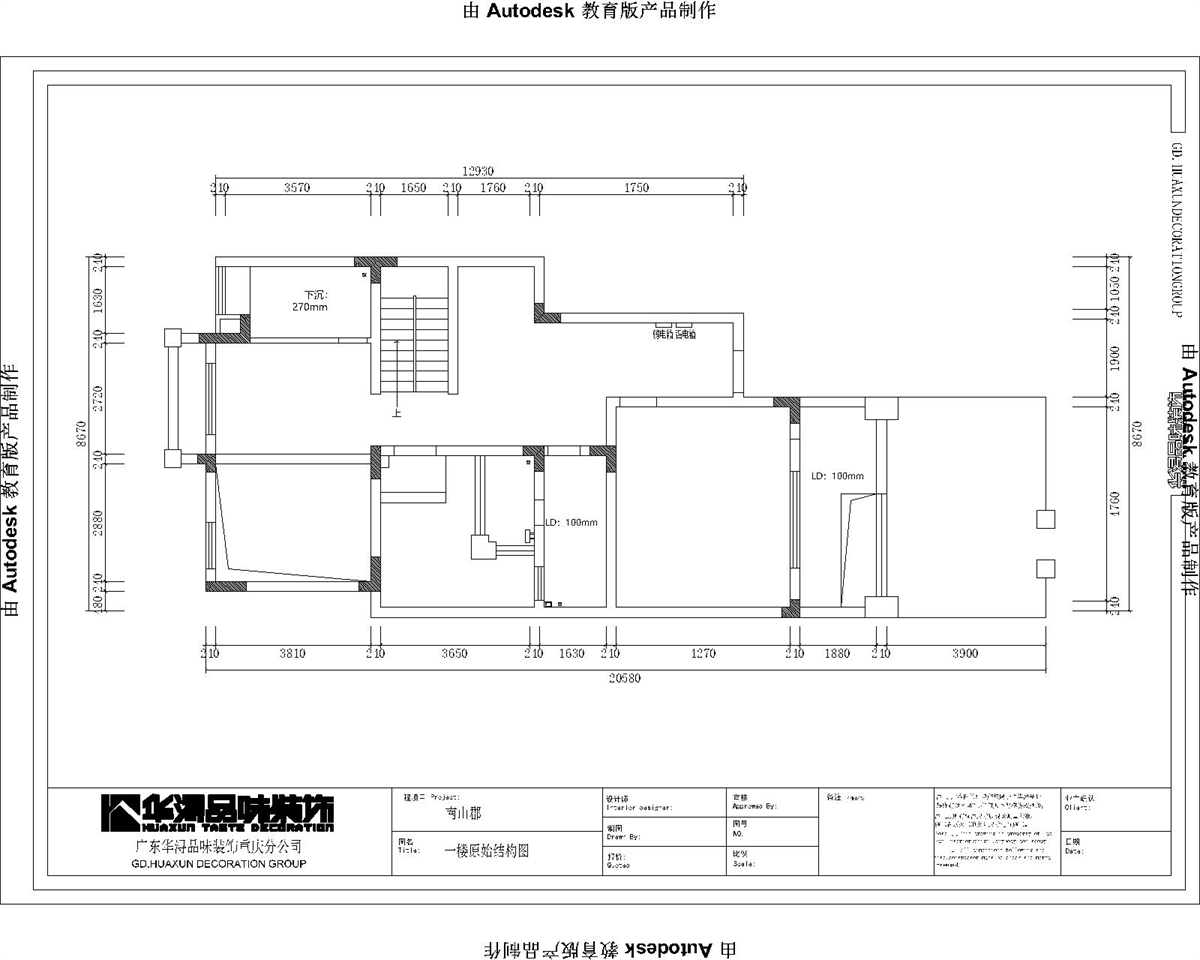
  • 图片
  • 图片
  • 图片
  • 图片
  • 图片
  • 图片
  • 图片
  • 图片
  • 图片
  • 图片
  • 图片
  • 图片
  • 图片
  • 图片
  • 图片
  • 图片
  • 图片
  • 图片
  • 图片
  • 图片
  • 图片
  • 图片
  • 图片
  • 图片
  • 图片
  • 图片
  • 图片
  • 图片
  • 图片
  • 图片
  • 图片
  • 图片
  • 图片
  • 图片
  • 图片
  • 图片
  • 图片
  • 图片
  • 图片
  • 图片
  • 图片
  • 图片
  • 图片
  • 图片
  • 图片
  • 图片
  • 图片
  • 图片
  • 图片
  • 图片
  • 图片
  • 图片
  • 图片
  • 图片
  • 图片
  • 图片
  • 图片
  • 图片
  • 图片
  • 上一个 下一个
    《金腾奖优秀作品年鉴》 私宅丨地产丨餐饮丨酒店丨办公丨商业丨公共丨产品丨公益丨人气 jintengAWARD(小金_金腾奖组委会) 广州市海珠区琶洲大道68号华新中心21楼
    金腾奖视频号 金腾奖小红书号 监制:闫虹
    统筹:吴佳佳
    运营:朱倩仪 王赫萱 张芷莹 胡岚恩 小金
    新媒体:王贝贝 严洁 侯乐 鹅姐
    经纪:刘译遥 石征 曹凯月
    技术:张桐 黄天佑
    最终解释权归金腾奖主办方所有