远中风华园
作品详情
  • Details of the work 标题横线
    头像或者logo
    图片 上海示觉室内设计
    城市:上海
    公司:上海示觉室内设计
    参赛作品: 远中风华园
    空间类型:公寓(150㎡以下)
    个人/公司简介:
    上海示觉室内设计事务所,2019年成立于上海,是一家擅长深度挖掘业主需求、个性、生活理念的设计公司,主要提供住宅及商业空间全案设计、软装设计和项目管理等落地服务,专注于豪宅设计,大平层设计、别墅设计、商业空间等高端室内设计。 公司理念 - - 深度解读业主社会文化背景和时代变迁 -- 尊重住者生活文化需求,诠释对生活美学的独特理解 -- 针对不同类型家庭的特定需求进行个性化量身设计 - - 提供最适合的设计方案,并兼具美感,舒适度与功能性 - - 引导人们关注生活环境,示觉设计,以心造家
    设计说明 | Design Instruction
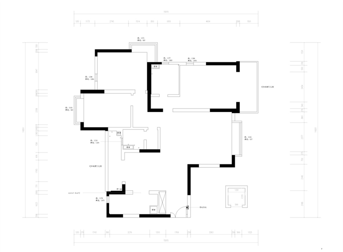
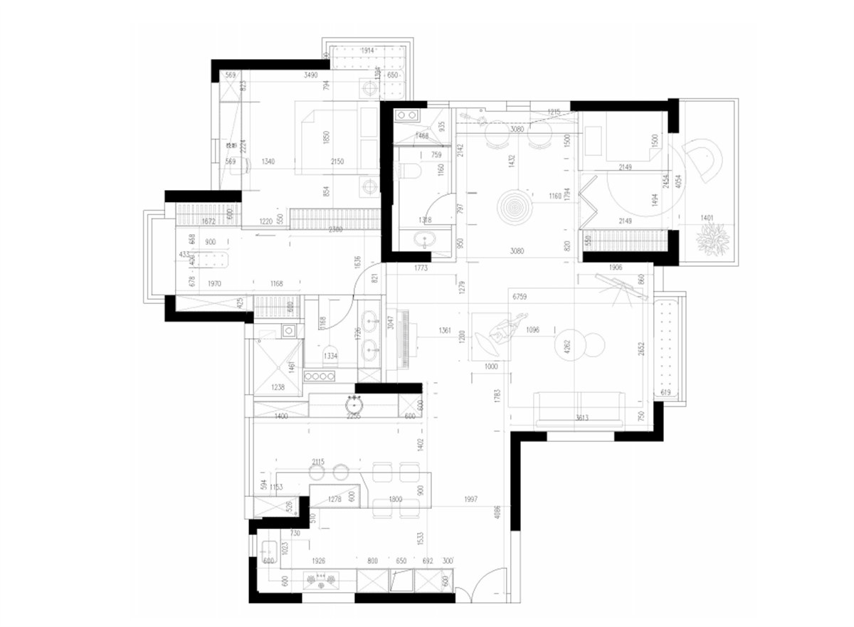
  • 简单,是最成熟的美丽单纯,是最丰富的高雅—— 汪国真 《线条》 本案,位于远中风华园,简约、线条、雅致是核心关键词,设计师以高级的简约风格为主题,营造出舒适惬意的气质。 160㎡的空间,重新布局规划,北面的功能阳台打通后,则形成了一个大的公共客厅,厨房,客厅,小书房,活动区相互链接,营造了一个极简大方的雅致空间。 南阳台,则划分为未来的儿童房空间,与墙面颜色接近的灰色折叠门,现阶段不使用的情况下,可以当作开放式区域,整个空间更显通透。 // 客厅: 灰白+木质+黑色,简约而高级 烟熏橡木皮,素色岩板,结合微水泥的粗糙质感,更较接近于自然,经得住时间的考磨。灰白之间,加入木质与黑色,显得更加简约而高级。 弧形巧妙藏梁的吊顶设计,窗台的弧形,是设计师为了增加窗帘盒融入的小心思。 Baxter的Milano可旋转沙发,脏橘色作为视觉焦点,表现手法直接、明确,便于受众理解和记忆容易引起人们的注意力。 简约经典的Cassina皮沙发,配合钓鱼灯从角落伸出,搭配可活动立式电视,这里是多功能的年轻人的社交客厅。 // 餐厅:点线面的组合重构 线条框的形式频繁用于设计中,设计师通过点线面的组合重构,拆解再揉合。餐厅灯来源于Estiluz,通过光的艺术将情感注入生活。餐桌来自于Ligne Roset,带来味蕾与精神的双重慰藉。 洗衣区“隐藏”于吧台之后,烟熏木纹洞洞门板做半开放式隔离,满足了喜欢在吧台办公的屋主不受到功能区的视觉干扰。
  • 图片
  • 图片
  • 图片
  • 图片
  • 图片
  • 图片
  • 图片
  • 图片
  • 图片
  • 图片
  • 图片
  • 图片
  • 图片
  • 图片
  • 图片
  • 图片
  • 图片
  • 图片
  • 图片
  • 图片
  • 图片
  • 图片
  • 图片
  • 图片
  • 图片
  • 图片
  • 图片
  • 上一个 下一个
    《金腾奖优秀作品年鉴》 私宅丨地产丨餐饮丨酒店丨办公丨商业丨公共丨产品丨公益丨人气 jintengAWARD(小金_金腾奖组委会) 广州市海珠区琶洲大道68号华新中心21楼
    金腾奖视频号 金腾奖小红书号 监制:闫虹
    统筹:吴佳佳
    运营:朱倩仪 王赫萱 张芷莹 胡岚恩 小金
    新媒体:王贝贝 严洁 侯乐 鹅姐
    经纪:刘译遥 石征 曹凯月
    技术:张桐 黄天佑
    最终解释权归金腾奖主办方所有