Rongcheng Huafu
作品详情
  • Details of the work 标题横线
    头像或者logo
    图片 操旭东 华浔品味装饰集团特约推荐
    城市:重庆
    公司: 华浔品味装饰集团重庆分公司
    参赛作品: 融城华府
    空间类型:公寓(150㎡以下)
    个人/公司简介:
    任      职:华浔品味装饰集团重庆大区管委会委员/华浔品味装饰集团重庆分公司设计总监/ 荣      誉:中国建筑学会室内设计学会会员                    中国注册室内高级设计师    重庆十大高端别墅设计师      重庆十大影响力设计师 毕业院校:南昌大学建筑学院 从业时间:20年  个人爱好:手绘,慢音乐,轻音乐。 风格擅长:只发现空间的结构美! 设计理念:设计上注重处理人与空间的关系,注重对居住文化的理解  典型个案: 常青藤别墅、比华利别墅、保利高尔夫别墅、棕榈泉别墅、复地君屿墅、融创曲水风和别墅、复地山与城别墅等 
    设计说明 | Design Instruction
  • 在整体设计沟通中,设计师与业主围绕“家”展开探讨,从容纳生活习性的基础功能出发,将生活的场景与艺术结合,让家延续仪式与温暖。设计师将整体的设计风格定位轻奢风,融入一些现代元素,奢华的元素,用空间传承精致时尚质感,结构上采用开放式的设计,有着丰富的自然光线,让人拥有一种温馨自然的家居感受。
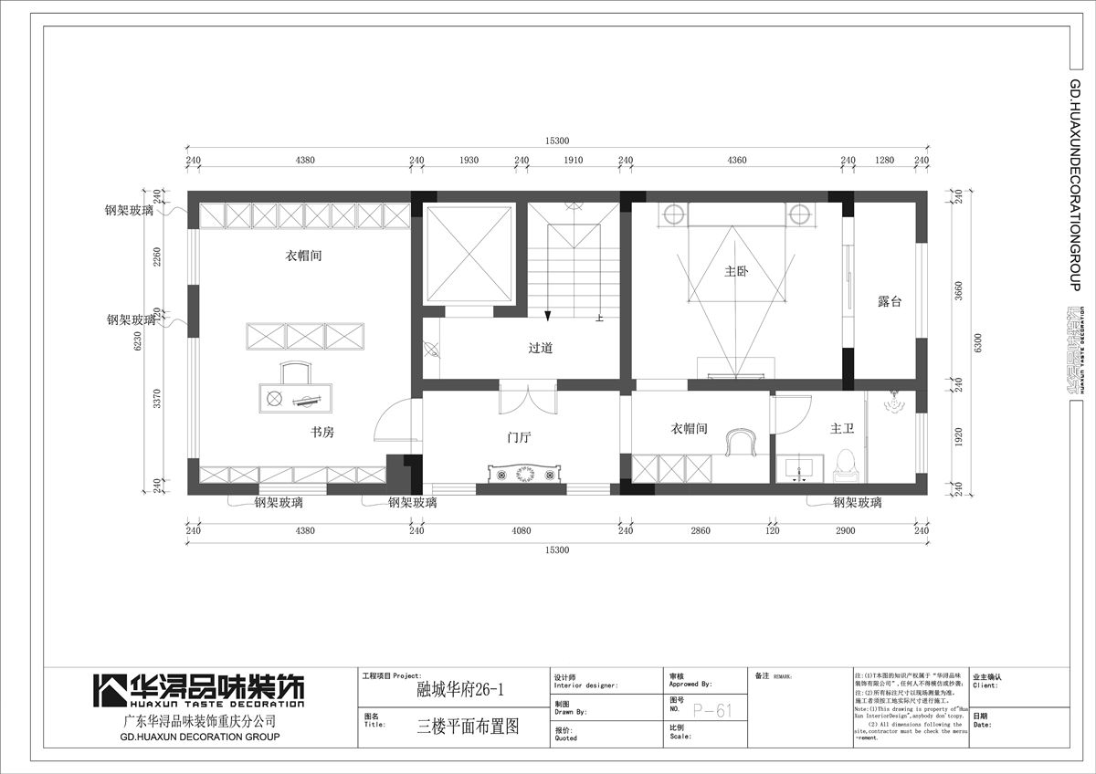
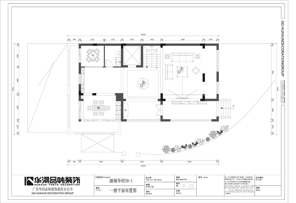
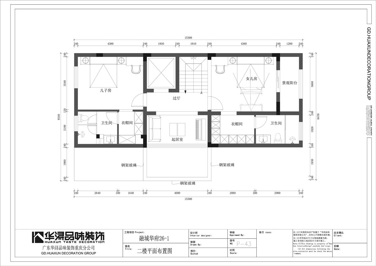
  • 图片
  • 图片
  • 图片
  • 图片
  • 图片
  • 图片
  • 图片
  • 图片
  • 图片
  • 图片
  • 图片
  • 图片
  • 图片
  • 图片
  • 图片
  • 图片
  • 图片
  • 图片
  • 图片
  • 图片
  • 图片
  • 图片
  • 图片
  • 图片
  • 图片
  • 图片
  • 图片
  • 图片
  • 图片
  • 图片
  • 图片
  • 图片
  • 图片
  • 图片
  • 图片
  • 图片
  • 图片
  • 图片
  • 图片
  • 图片
  • 图片
  • 图片
  • 图片
  • 图片
  • 图片
  • 图片
  • 图片
  • 上一个 下一个
    《金腾奖优秀作品年鉴》 私宅丨地产丨餐饮丨酒店丨办公丨商业丨公共丨产品丨公益丨人气 jintengAWARD(小金_金腾奖组委会) 广州市海珠区琶洲大道68号华新中心21楼
    金腾奖视频号 金腾奖小红书号 监制:闫虹
    统筹:吴佳佳
    运营:朱倩仪 王赫萱 张芷莹 胡岚恩 小金
    新媒体:王贝贝 严洁 侯乐 鹅姐
    经纪:刘译遥 石征 曹凯月
    技术:张桐 黄天佑
    最终解释权归金腾奖主办方所有